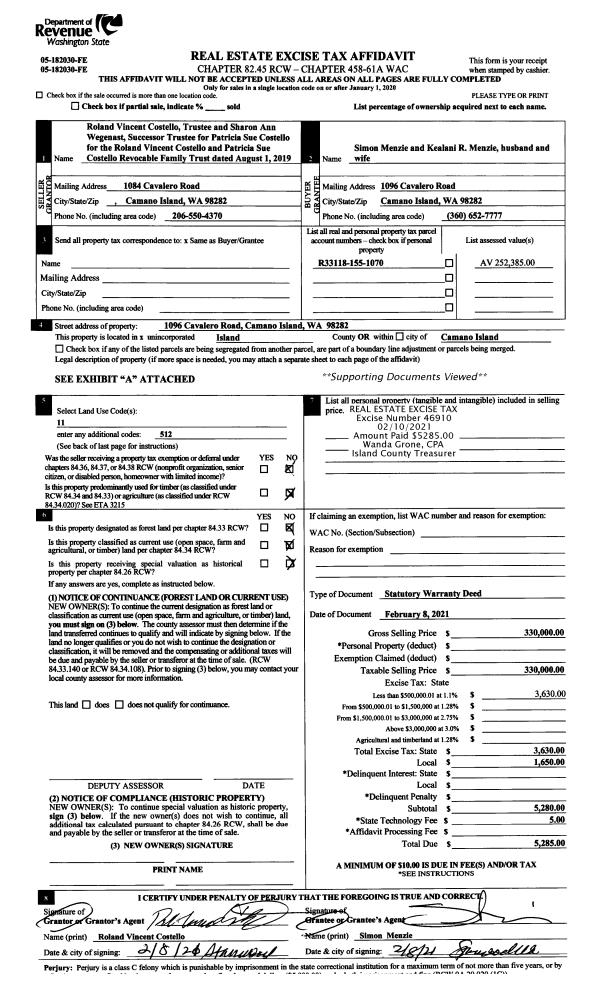
Property
Account |
| Property ID: | 749523 | Abbreviated Legal Description: | LOT A SP 459-95.32905.215-0250 V3 SP P104 AF#96014963 |
| Geographic ID: | R32905-247-0290 | Agent Code: | |
| Type: | Real | | |
| Tax Area: | 712 - APPRAISER-S Whid Schl Dist, outside Langley, improved, greater than 1 acre | Land Use Code | 11 |
| Open Space: | N | DFL | N |
| Historic Property: | N | Remodel Property: | N |
| Multi-Family Redevelopment: | N | | |
| Township: | 29 | Section: | 05 |
| Range: | R3 |
Location |
| Address: | 5021 LONE LAKE RD LANGLEY, WA 98260 | Mapsco: | |
| Neighborhood: | Cycle 4 | Map ID: | 732 |
| Neighborhood CD: | 4 |
Owner |
| Name: | LEWIS TRUSTEE, HAROLD L | Owner ID: | 269200 |
| Mailing Address: | ROSALIND R LEWIS TRUSTEE 5021 LONE LAKE RD LANGLEY, WA 98260 | % Ownership: | 100.0000000000% |
| | | Exemptions: | |
Taxes and Assessment Details
Values
| (+) Improvement Homesite Value: | + | $0 | |
| (+) Improvement Non-Homesite Value: | + | $683,159 | |
| (+) Land Homesite Value: | + | $0 | |
| (+) Land Non-Homesite Value: | + | $310,000 | |
| (+) Curr Use (HS): | + | $0 | $0 |
| (+) Curr Use (NHS): | + | $0 | $0 |
| | | -------------------------- | |
| (=) Market Value: | = | $993,159 | |
| (–) Productivity Loss: | – | $0 | |
| | | -------------------------- | |
| (=) Subtotal: | = | $993,159 | |
| (+) Senior Appraised Value: | + | $0 | |
| (+) Non-Senior Appraised Value: | + | $993,159 | |
| | | -------------------------- | |
| (=) Total Appraised Value: | = | $993,159 | |
| (–) Senior Exemption Loss: | – | $0 | |
| (–) Exemption Loss: | – | $0 | |
| | | -------------------------- | |
| (=) Taxable Value: | = | $993,159 | |
Taxing Jurisdiction
| Owner: | LEWIS TRUSTEE, HAROLD L | | |
| % Ownership: | 100.0000000000% | | |
| Total Value: | $993,159 | | |
| Tax Area: | 712 - APPRAISER-S Whid Schl Dist, outside Langley, improved, greater than 1 acre |
| CF | Conservation Futures | 0.0316035091 | $993,159 | $993,159 | $31.39 | | |
| FIRE3 | Fire & Rescue Dist #3 S Whidbey GEN | 1.2004855531 | $993,159 | $993,159 | $1,192.27 | | |
| HOBOND | Hospital BOND | 0.1910887512 | $993,159 | $993,159 | $189.78 | | |
| HOGEN | Hospital GEN | 0.3902502903 | $993,159 | $993,159 | $387.58 | | |
| CE | County Current Expense | 0.3708482477 | $993,159 | $993,159 | $368.31 | | |
| CR | County Roads | 0.4584763726 | $993,159 | $993,159 | $455.34 | | |
| ISLANDEMS | Hospital GEN (EMS) | 0.5000000000 | $993,159 | $993,159 | $496.58 | | |
| LIB | Library Sno-Isle GEN | 0.3153421757 | $993,159 | $993,159 | $313.18 | | |
| PORTWHID | Port of S Whidbey GEN | 0.1094540357 | $993,159 | $993,159 | $108.71 | | |
| SCH206BOND | School 206 BOND | 0.3161759235 | $993,159 | $993,159 | $314.01 | | |
| SCH206MO | School 206 Enrichment | 0.4547169547 | $993,159 | $993,159 | $451.61 | | |
| ST | State School | 1.3035497053 | $993,159 | $993,159 | $1,294.63 | | |
| ST2 | State School Part 2 | 0.8169543533 | $993,159 | $993,159 | $811.37 | | |
| SWHIDPRBD | P & R S Whidbey BOND | 0.0152817568 | $993,159 | $993,159 | $15.18 | | |
| SWHIDPRBD2 | P & R S Whidbey BOND2 | 0.0138911264 | $993,159 | $993,159 | $13.80 | | |
| SWHIDPRMT | P & R S Whidbey GEN | 0.2053334452 | $993,159 | $993,159 | $203.93 | | |
| | Total Tax Rate: | 6.6934522006 | | | | | |
| | | | | Taxes w/Current Exemptions: | $6,647.67 | | |
| | | | | Taxes w/o Exemptions: | $6,647.67 | | |
Improvement / Building
| Improvement #1: | RESIDENTIAL | State Code: | Y | 3611.5 sqft | Value: | $683,159 |
| Bathrooms: | 2.5 | Bedrooms: | 3 | | Ceiling: | DRYWALL PAINTED | Exterior Wall/Cover: | CEMENT FIBER | | Floor Covering: | CARPET/VINYL 80-20 | Floor Structure: | WOOD W/SUBFLOOR | | Foundation: | CONCRETE | Heating: | RADIANT FLOOR | | Interior Finish: | DRYWALL PAINT | Plumbing Fixture Cnt: | 14 | | Roof Slope: | 10" IN 12" | Roof Structure/Cover: | CJ ASPHALT |
|
| | Type | Description | Class CD | Sub Class CD | Year Built | Area |
| | BAS | BASE/MAIN FLOOR | 5 | 0 | 1998 | 2046.2 |
| | UPH | HALF STORY | 5 | 0 | 1998 | 544.0 |
| | BIG | BUILT IN GARAGE | 5 | 0 | 1998 | 1040.0 |
| | UPS | UPPER STORY | 5 | 0 | 1998 | 1021.3 |
| | OCP | OPEN CARPORT | 5 | 0 | 1998 | 312.0 |
| | OWC | OPEN WOOD PORCH W/STEPS/ROOF/C | 5 | 0 | 1998 | 641.9 |
| | OWC | OPEN WOOD PORCH W/STEPS/ROOF/C | 5 | 0 | 1998 | 40.0 |
| | OWC | OPEN WOOD PORCH W/STEPS/ROOF/C | 5 | 0 | 1998 | 75.0 |
| | oPOL | POLE BARN | 5 | 0 | 1998 | 0.0 |
| | UTY | STORAGE/UTILITY | 5 | 0 | 1998 | 96.0 |
Sketch
Property Image
Land
| 1 | 18 | AC (02.01-03.00) | 0.0000 | 0.00 | 0.00 | 0.00 | 1.00 | $310,000 | $0 |
Roll Value History
| 2026 | N/A | N/A | N/A | N/A | N/A |
| 2025 | $683,159 | $310,000 | $0 | $993,159 | $993,159 |
| 2024 | $691,095 | $300,000 | $0 | $991,095 | $991,095 |
| 2023 | $699,031 | $290,000 | $0 | $989,031 | $989,031 |
| 2022 | $642,297 | $270,000 | $0 | $912,297 | $912,297 |
| 2021 | $567,696 | $155,000 | $0 | $722,696 | $722,696 |
| 2020 | $554,102 | $165,000 | $0 | $719,102 | $719,102 |
| 2019 | $483,136 | $200,000 | $0 | $683,136 | $683,136 |
| 2018 | $484,426 | $170,000 | $0 | $654,426 | $654,426 |
| 2017 | $486,924 | $150,000 | $0 | $636,924 | $636,924 |
| 2016 | $492,085 | $125,000 | $0 | $617,085 | $617,085 |
| 2015 | $497,244 | $100,000 | $0 | $597,244 | $597,244 |
| 2014 | $389,382 | $95,000 | $0 | $484,382 | $484,382 |
| 2013 | $393,750 | $95,000 | $0 | $488,750 | $488,750 |
| 2012 | $398,118 | $97,750 | $0 | $495,868 | $495,868 |
| 2011 | $410,000 | $115,000 | $0 | $525,000 | $525,000 |
| 2010 | $423,539 | $115,000 | $0 | $538,539 | $538,539 |
| 2009 | $442,244 | $155,000 | $0 | $597,244 | $597,244 |
| 2008 | $443,665 | $205,700 | $0 | $649,365 | $649,365 |
| 2007 | $450,715 | $205,700 | $0 | $656,415 | $656,415 |
Deed and Sales History
| 1 | 02/04/2015 | WD | Warranty Deed | HUGHES, FORREST | LEWIS TRUSTEE, HAROLD L | | | $720,000.00 | 18467 | 4373169 |
| 2 | 02/01/1997 | WD | Warranty Deed | STOVEL, MARK J | HUGHES, FORREST & | | | $53,500.00 | 70496 | 97002147 |
| 3 | 01/01/1900 | OTHER | Other - Misc. Documents | Unknown | STOVEL, MARK J | | | $0.00 | 0 | 0 |
Payout Agreement
| No payout information available.. |