Property
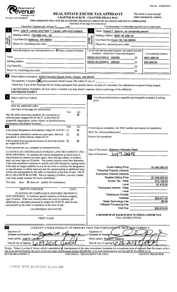
Account |
| Property ID: | 74966 | Abbreviated Legal Description: | 18 - IN GL1: BG INTER CLN RACE RD & NLN SHANGRI-LA SHORES N73*E928.47' N35*W 237.05' TPB N35*W116.42' N87*E304.18' TO ML N87*E63' M/L TO HITDLN SELY ALG SD LN TP N83*E367' M/L FR TPB S83*W367' M/L TPB INCL ADJ TIDES TGW EZ TR 2 REV SP 77-1 AF#353789 |
| Geographic ID: | R23108-140-1410 | Agent Code: | |
| Type: | Real | | |
| Tax Area: | 310 - APPRAISER-Cpvl Schl Dist, outside Cpvl, improved & 1 acre or less | Land Use Code | 11 |
| Open Space: | N | DFL | N |
| Historic Property: | N | Remodel Property: | N |
| Multi-Family Redevelopment: | N | | |
| Township: | 31 | Section: | 08 |
| Range: | R2 |
Location |
| Address: | 487 BELVEDERE PLACE COUPEVILLE, WA 98239 | Mapsco: | |
| Neighborhood: | Area 2 Waterfront Eastside Res | Map ID: | 466 |
| Neighborhood CD: | 2WFTE01R |
Owner |
| Name: | KEYES, JEFFREY | Owner ID: | 298001 |
| Mailing Address: | ERIN KEYES 3710 NE 70TH ST SEATTLE, WA 98115 | % Ownership: | 100.0000000000% |
| | | Exemptions: | |
Taxes and Assessment Details
Values
| (+) Improvement Homesite Value: | + | $0 | |
| (+) Improvement Non-Homesite Value: | + | $531,253 | |
| (+) Land Homesite Value: | + | $0 | |
| (+) Land Non-Homesite Value: | + | $625,700 | |
| (+) Curr Use (HS): | + | $0 | $0 |
| (+) Curr Use (NHS): | + | $0 | $0 |
| | | -------------------------- | |
| (=) Market Value: | = | $1,156,953 | |
| (–) Productivity Loss: | – | $0 | |
| | | -------------------------- | |
| (=) Subtotal: | = | $1,156,953 | |
| (+) Senior Appraised Value: | + | $0 | |
| (+) Non-Senior Appraised Value: | + | $1,156,953 | |
| | | -------------------------- | |
| (=) Total Appraised Value: | = | $1,156,953 | |
| (–) Senior Exemption Loss: | – | $0 | |
| (–) Exemption Loss: | – | $0 | |
| | | -------------------------- | |
| (=) Taxable Value: | = | $1,156,953 | |
Taxing Jurisdiction
| Owner: | KEYES, JEFFREY | | |
| % Ownership: | 100.0000000000% | | |
| Total Value: | $1,156,953 | | |
| Tax Area: | 310 - APPRAISER-Cpvl Schl Dist, outside Cpvl, improved & 1 acre or less |
| CF | Conservation Futures | 0.0316035091 | $1,156,953 | $1,156,953 | $36.56 | | |
| CEM2 | Cemetery #2 | 0.0095056933 | $1,156,953 | $1,156,953 | $11.00 | | |
| FIRE5 | Fire & Rescue Dist #5 C Whidbey GEN | 1.2008080668 | $1,156,953 | $1,156,953 | $1,389.28 | | |
| FIRE5BOND | Fire & Rescue Dist #5 C Whidbey BOND | 0.1400090713 | $1,156,953 | $1,156,953 | $161.98 | | |
| HOBOND | Hospital BOND | 0.1910887512 | $1,156,953 | $1,156,953 | $221.08 | | |
| HOGEN | Hospital GEN | 0.3902502903 | $1,156,953 | $1,156,953 | $451.50 | | |
| CE | County Current Expense | 0.3708482477 | $1,156,953 | $1,156,953 | $429.05 | | |
| CR | County Roads | 0.4584763726 | $1,156,953 | $1,156,953 | $530.44 | | |
| ISLANDEMS | Hospital GEN (EMS) | 0.5000000000 | $1,156,953 | $1,156,953 | $578.48 | | |
| LIB | Library Sno-Isle GEN | 0.3153421757 | $1,156,953 | $1,156,953 | $364.84 | | |
| LIBCAP | Library Sno-Isle BOND (Cap Fac Imp Area) | 0.0543427938 | $1,156,953 | $1,156,953 | $62.87 | | |
| POCOUP | Port of Coupeville GEN | 0.1093371703 | $1,156,953 | $1,156,953 | $126.50 | | |
| POCOUPIDD | Port of Coupeville IDD | 0.3409740022 | $1,156,953 | $1,156,953 | $394.49 | | |
| COUPSDTECH | School 204 CP (TECH) | 0.7545480007 | $1,156,953 | $1,156,953 | $872.98 | | |
| SCH204MO | School 204 Enrichment | 0.6716186034 | $1,156,953 | $1,156,953 | $777.03 | | |
| ST | State School | 1.3035497053 | $1,156,953 | $1,156,953 | $1,508.15 | | |
| ST2 | State School Part 2 | 0.8169543533 | $1,156,953 | $1,156,953 | $945.18 | | |
| | Total Tax Rate: | 7.6592568070 | | | | | |
| | | | | Taxes w/Current Exemptions: | $8,861.41 | | |
| | | | | Taxes w/o Exemptions: | $8,861.41 | | |
Improvement / Building
| Improvement #1: | RESIDENTIAL | State Code: | Y | 2848.0 sqft | Value: | $531,253 |
| Bathrooms: | 3 | Bedrooms: | 3 | | Ceiling: | DRYWALL PAINTED | Exterior Wall/Cover: | CEMENT FIBER | | Floor Covering: | CERAMIC TILE/CPT 40-60 | Floor Structure: | WOOD W/SUBFLOOR | | Foundation: | CONCRETE | Heating: | FHA GAS | | Interior Finish: | DRYWALL PAINT | Plumbing Fixture Cnt: | 15 | | Roof Slope: | 5" IN 12" | Roof Structure/Cover: | CJ ASPHALT |
|
| | Type | Description | Class CD | Sub Class CD | Year Built | Area |
| | BAS | BASE/MAIN FLOOR | 4 | 0 | 2005 | 1664.0 |
| | OP1 | OPEN PORCH SLAB | 4 | 0 | 2005 | 624.0 |
| | BGR | BASEMENT GARAGE | 4 | 0 | 2005 | 480.0 |
| | OWP | OPEN WOOD PORCH W/STEPS | 4 | 0 | 2005 | 812.0 |
| | OWC | OPEN WOOD PORCH W/STEPS/ROOF/C | 4 | 0 | 2005 | 64.0 |
| | DWN | DOWNSTAIRS LIVING AREA | 4 | 0 | 2005 | 1184.0 |
Sketch
Property Image
Land
| 1 | LB | LOW BANK | 0.4100 | 17859.60 | 70.00 | 0.00 | 1.00 | $625,000 | $0 |
| 2 | 55 | TIDES | 0.0000 | 0.00 | 70.00 | 0.00 | 1.00 | $700 | $0 |
Roll Value History
| 2026 | N/A | N/A | N/A | N/A | N/A |
| 2025 | $531,253 | $625,700 | $0 | $1,156,953 | $1,156,953 |
| 2024 | $551,461 | $625,700 | $0 | $1,177,161 | $1,177,161 |
| 2023 | $556,094 | $600,700 | $0 | $1,156,794 | $1,156,794 |
| 2022 | $508,015 | $475,700 | $0 | $983,715 | $983,715 |
| 2021 | $445,189 | $475,700 | $0 | $920,889 | $920,889 |
| 2020 | $402,995 | $375,700 | $0 | $778,695 | $778,695 |
| 2019 | $312,555 | $425,700 | $0 | $738,255 | $738,255 |
| 2018 | $289,286 | $400,000 | $0 | $689,286 | $689,286 |
| 2017 | $290,958 | $350,700 | $0 | $641,658 | $641,658 |
| 2016 | $294,303 | $350,700 | $0 | $645,003 | $645,003 |
| 2015 | $297,646 | $350,700 | $0 | $648,346 | $648,346 |
| 2014 | $300,992 | $350,700 | $0 | $651,692 | $651,692 |
| 2013 | $304,336 | $276,266 | $0 | $580,602 | $580,602 |
| 2012 | $326,146 | $276,266 | $0 | $602,412 | $602,412 |
| 2011 | $329,690 | $276,266 | $0 | $605,956 | $605,956 |
| 2010 | $338,026 | $276,266 | $0 | $614,292 | $614,292 |
| 2009 | $348,556 | $330,320 | $0 | $678,876 | $678,876 |
| 2008 | $352,326 | $330,320 | $0 | $682,646 | $682,646 |
| 2007 | $356,081 | $329,830 | $0 | $685,911 | $685,911 |
Deed and Sales History
| 1 | 01/22/2021 | WD | Warranty Deed | VOROBIEV, ALEXANDER | KEYES, JEFFREY | | | $1,285,000.00 | 46854 | 4510192 |
|   | |
| 2 | 10/23/2018 | WD | Warranty Deed | CROCKER, DEBRA L | VOROBIEV, ALEXANDER | | | $830,000.00 | 36474 | 4454248 |
|   | |
| 3 | 04/13/2007 | DECREE | Divorce Decree/Legal Separation | CROCKER, STEPHEN L | CROCKER, DEBRA L | | | $0.00 | 71227 | 4199518 |
| 4 | 06/02/1999 | WD | Warranty Deed | STAFFORD, CHARLES B | CROCKER, STEPHEN L | | | $145,702.00 | 92308 | 99014244 |
| 5 | 03/01/1994 | WD | Warranty Deed | KNUTSON, E K | STAFFORD, CHARLES B | | | $134,700.00 | 40914 | 94006000 |
| 6 | 01/01/1900 | OTHER | Other - Misc. Documents | Unknown | KNUTSON, E K | | | $0.00 | 0 | 0 |
Payout Agreement
| No payout information available.. |