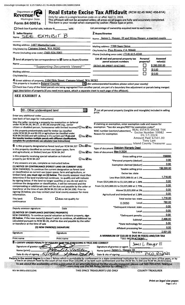
Property
Account |
| Property ID: | 749827 | Abbreviated Legal Description: | SHANNON FOREST #2 LOT 67 |
| Geographic ID: | S8152-02-00067-0 | Agent Code: | |
| Type: | Real | | |
| Tax Area: | 100 - APPRAISER-OH Schl Dist, in OH | Land Use Code | 11 |
| Open Space: | N | DFL | N |
| Historic Property: | N | Remodel Property: | N |
| Multi-Family Redevelopment: | N | | |
| Township: | | Section: | |
| Range: | |
Location |
| Address: | 1561 SW 10TH AVE OAK HARBOR, WA 98277 | Mapsco: | |
| Neighborhood: | Cycle 1 | Map ID: | 92 |
| Neighborhood CD: | 1 |
Owner |
| Name: | MONTOYA, GABINO | Owner ID: | 288101 |
| Mailing Address: | DEBORAH MONTOYA 1561 SW 10TH AVE OAK HARBOR, WA 98277 | % Ownership: | 100.0000000000% |
| | | Exemptions: | |
Taxes and Assessment Details
Values
| (+) Improvement Homesite Value: | + | $0 | |
| (+) Improvement Non-Homesite Value: | + | $303,050 | |
| (+) Land Homesite Value: | + | $0 | |
| (+) Land Non-Homesite Value: | + | $210,000 | |
| (+) Curr Use (HS): | + | $0 | $0 |
| (+) Curr Use (NHS): | + | $0 | $0 |
| | | -------------------------- | |
| (=) Market Value: | = | $513,050 | |
| (–) Productivity Loss: | – | $0 | |
| | | -------------------------- | |
| (=) Subtotal: | = | $513,050 | |
| (+) Senior Appraised Value: | + | $0 | |
| (+) Non-Senior Appraised Value: | + | $513,050 | |
| | | -------------------------- | |
| (=) Total Appraised Value: | = | $513,050 | |
| (–) Senior Exemption Loss: | – | $0 | |
| (–) Exemption Loss: | – | $0 | |
| | | -------------------------- | |
| (=) Taxable Value: | = | $513,050 | |
Taxing Jurisdiction
| Owner: | MONTOYA, GABINO | | |
| % Ownership: | 100.0000000000% | | |
| Total Value: | $513,050 | | |
| Tax Area: | 100 - APPRAISER-OH Schl Dist, in OH |
| CF | Conservation Futures | 0.0316035091 | $513,050 | $513,050 | $16.21 | | |
| CEM1 | Cemetery #1 | 0.0040320932 | $513,050 | $513,050 | $2.07 | | |
| COH | City of Oak Harbor | 2.3001546061 | $513,050 | $513,050 | $1,180.09 | | |
| OAKBOND | City of Oak Harbor BOND | 0.1926904192 | $513,050 | $513,050 | $98.86 | | |
| HOBOND | Hospital BOND | 0.1910887512 | $513,050 | $513,050 | $98.04 | | |
| HOGEN | Hospital GEN | 0.3902502903 | $513,050 | $513,050 | $200.22 | | |
| CE | County Current Expense | 0.3708482477 | $513,050 | $513,050 | $190.26 | | |
| ISLANDEMS | Hospital GEN (EMS) | 0.5000000000 | $513,050 | $513,050 | $256.53 | | |
| LIB | Library Sno-Isle GEN | 0.3153421757 | $513,050 | $513,050 | $161.79 | | |
| NWHIDPRMT | P & R N Whidbey GEN | 0.2004466701 | $513,050 | $513,050 | $102.84 | | |
| SCH201MO | School 201 Enrichment | 1.8559231640 | $513,050 | $513,050 | $952.18 | | |
| ST | State School | 1.3035497053 | $513,050 | $513,050 | $668.79 | | |
| ST2 | State School Part 2 | 0.8169543533 | $513,050 | $513,050 | $419.14 | | |
| | Total Tax Rate: | 8.4728839852 | | | | | |
| | | | | Taxes w/Current Exemptions: | $4,347.02 | | |
| | | | | Taxes w/o Exemptions: | $4,347.02 | | |
Improvement / Building
| Improvement #1: | RESIDENTIAL | State Code: | Y | 2231.7 sqft | Value: | $303,050 |
| Bathrooms: | 2.5 | Bedrooms: | 3 | | Ceiling: | DRYWALL PAINTED | Exterior Wall/Cover: | PLY/HARDBOARD T-111 | | Floor Covering: | CARPET/VINYL 80-20 | Floor Structure: | WOOD W/SUBFLOOR | | Foundation: | CONCRETE | Heating: | FHA GAS | | Interior Finish: | DRYWALL PAINT | Plumbing Fixture Cnt: | 11 | | Roof Slope: | 8" IN 12" | Roof Structure/Cover: | CJ ASPHALT |
|
| | Type | Description | Class CD | Sub Class CD | Year Built | Area |
| | BAS | BASE/MAIN FLOOR | 3 | 0 | 1998 | 1334.2 |
| | AGR | ATTACHED GARAGE | 3 | 0 | 1998 | 440.0 |
| | OWC | OPEN WOOD PORCH W/STEPS/ROOF/C | 3 | 0 | 1998 | 30.0 |
| | OWP | OPEN WOOD PORCH W/STEPS | 3 | 0 | 1998 | 96.0 |
| | DWN | DOWNSTAIRS LIVING AREA | 3 | 0 | 1998 | 897.5 |
Sketch
Property Image
Land
| 1 | 14 | SQ (08001-12000) | 0.0000 | 0.00 | 0.00 | 0.00 | 1.00 | $210,000 | $0 |
Roll Value History
| 2026 | N/A | N/A | N/A | N/A | N/A |
| 2025 | $303,050 | $210,000 | $0 | $513,050 | $513,050 |
| 2024 | $306,779 | $200,000 | $0 | $506,779 | $506,779 |
| 2023 | $303,050 | $190,000 | $0 | $493,050 | $493,050 |
| 2022 | $277,799 | $180,000 | $0 | $457,799 | $457,799 |
| 2021 | $244,499 | $120,000 | $0 | $364,499 | $364,499 |
| 2020 | $238,505 | $100,000 | $0 | $338,505 | $338,505 |
| 2019 | $183,330 | $150,000 | $0 | $333,330 | $333,330 |
| 2018 | $183,868 | $130,000 | $0 | $313,868 | $313,868 |
| 2017 | $181,042 | $110,000 | $0 | $291,042 | $291,042 |
| 2016 | $183,197 | $90,000 | $0 | $273,197 | $273,197 |
| 2015 | $185,354 | $70,000 | $0 | $255,354 | $255,354 |
| 2014 | $187,509 | $55,000 | $0 | $242,509 | $242,509 |
| 2013 | $189,663 | $55,000 | $0 | $244,663 | $244,663 |
| 2012 | $191,819 | $50,000 | $0 | $241,819 | $241,819 |
| 2011 | $167,372 | $50,000 | $0 | $217,372 | $217,372 |
| 2010 | $173,647 | $50,000 | $0 | $223,647 | $223,647 |
| 2009 | $181,020 | $75,000 | $0 | $256,020 | $256,020 |
| 2008 | $183,040 | $100,000 | $0 | $283,040 | $283,040 |
| 2007 | $185,072 | $100,000 | $0 | $285,072 | $285,072 |
Deed and Sales History
| 1 | 11/15/2018 | WD | Warranty Deed | CHURCHILL, JASON N | MONTOYA, GABINO | | | $338,000.00 | 36861 | 4455886 |
| 2 | 06/18/2008 | WD | Warranty Deed | FUMENTO, EVAN F | CHURCHILL, JASON N | | | $272,500.00 | 81670 | 4231741 |
| 3 | 07/08/2005 | WD | Warranty Deed | MENDOZA, BRINO G | FUMENTO, EVAN F | | | $255,000.00 | 53284 | 4140156 |
| 4 | 06/22/1998 | WD | Warranty Deed | MENDOZA, BRINO G | MENDOZA, BRINO G | | | $138,000.00 | 82560 | 98013249 |
| 5 | 06/01/1998 | WD | Warranty Deed | RKP, ENTERPRISES, I | MENDOZA, BRINO G | | | $138,000.00 | 82560 | 98013249 |
| 6 | 12/01/1997 | WD | Warranty Deed | FORESIGHT, INVESTMENTS I | RKP, ENTERPRISES, I | | | $40,750.00 | 80064 | 98000331 |
| 7 | 01/01/1900 | OTHER | Other - Misc. Documents | Unknown | FORESIGHT, INVESTMENTS I | | | $0.00 | 66678 | 0 |
Payout Agreement
| No payout information available.. |