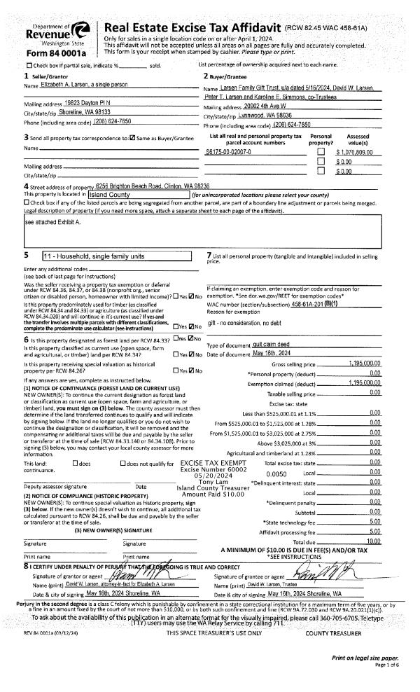
Property
Account |
| Property ID: | 749845 | Abbreviated Legal Description: | SHANNON FOREST #2 LOT 69 |
| Geographic ID: | S8152-02-00069-0 | Agent Code: | |
| Type: | Real | | |
| Tax Area: | 100 - APPRAISER-OH Schl Dist, in OH | Land Use Code | 11 |
| Open Space: | N | DFL | N |
| Historic Property: | N | Remodel Property: | N |
| Multi-Family Redevelopment: | N | | |
| Township: | | Section: | |
| Range: | |
Location |
| Address: | 1521 SW 10TH AVE OAK HARBOR, WA 98277 | Mapsco: | |
| Neighborhood: | Cycle 1 | Map ID: | 92 |
| Neighborhood CD: | 1 |
Owner |
| Name: | O'BRIEN, KENNETH C | Owner ID: | 178573 |
| Mailing Address: | KARLOTTHA A O'BRIEN 1521 SW 10TH AVE OAK HARBOR, WA 98277-7235 | % Ownership: | 100.0000000000% |
| | | Exemptions: | |
Taxes and Assessment Details
Values
| (+) Improvement Homesite Value: | + | $0 | |
| (+) Improvement Non-Homesite Value: | + | $306,953 | |
| (+) Land Homesite Value: | + | $0 | |
| (+) Land Non-Homesite Value: | + | $210,000 | |
| (+) Curr Use (HS): | + | $0 | $0 |
| (+) Curr Use (NHS): | + | $0 | $0 |
| | | -------------------------- | |
| (=) Market Value: | = | $516,953 | |
| (–) Productivity Loss: | – | $0 | |
| | | -------------------------- | |
| (=) Subtotal: | = | $516,953 | |
| (+) Senior Appraised Value: | + | $0 | |
| (+) Non-Senior Appraised Value: | + | $516,953 | |
| | | -------------------------- | |
| (=) Total Appraised Value: | = | $516,953 | |
| (–) Senior Exemption Loss: | – | $0 | |
| (–) Exemption Loss: | – | $0 | |
| | | -------------------------- | |
| (=) Taxable Value: | = | $516,953 | |
Taxing Jurisdiction
| Owner: | O'BRIEN, KENNETH C | | |
| % Ownership: | 100.0000000000% | | |
| Total Value: | $516,953 | | |
| Tax Area: | 100 - APPRAISER-OH Schl Dist, in OH |
| CF | Conservation Futures | 0.0316035091 | $516,953 | $516,953 | $16.34 | | |
| CEM1 | Cemetery #1 | 0.0040320932 | $516,953 | $516,953 | $2.08 | | |
| COH | City of Oak Harbor | 2.3001546061 | $516,953 | $516,953 | $1,189.07 | | |
| OAKBOND | City of Oak Harbor BOND | 0.1926904192 | $516,953 | $516,953 | $99.61 | | |
| HOBOND | Hospital BOND | 0.1910887512 | $516,953 | $516,953 | $98.78 | | |
| HOGEN | Hospital GEN | 0.3902502903 | $516,953 | $516,953 | $201.74 | | |
| CE | County Current Expense | 0.3708482477 | $516,953 | $516,953 | $191.71 | | |
| ISLANDEMS | Hospital GEN (EMS) | 0.5000000000 | $516,953 | $516,953 | $258.48 | | |
| LIB | Library Sno-Isle GEN | 0.3153421757 | $516,953 | $516,953 | $163.02 | | |
| NWHIDPRMT | P & R N Whidbey GEN | 0.2004466701 | $516,953 | $516,953 | $103.62 | | |
| SCH201MO | School 201 Enrichment | 1.8559231640 | $516,953 | $516,953 | $959.43 | | |
| ST | State School | 1.3035497053 | $516,953 | $516,953 | $673.87 | | |
| ST2 | State School Part 2 | 0.8169543533 | $516,953 | $516,953 | $422.33 | | |
| | Total Tax Rate: | 8.4728839852 | | | | | |
| | | | | Taxes w/Current Exemptions: | $4,380.08 | | |
| | | | | Taxes w/o Exemptions: | $4,380.08 | | |
Improvement / Building
| Improvement #1: | RESIDENTIAL | State Code: | Y | 1882.5 sqft | Value: | $306,953 |
| Bathrooms: | 2.5 | Bedrooms: | 3 | | Ceiling: | DRYWALL PAINTED | Exterior Wall/Cover: | PLY/HARDBOARD T-111 | | Floor Covering: | CARPET/VINYL 60-40 | Floor Structure: | WOOD W/SUBFLOOR | | Foundation: | CONCRETE | Heating: | FHA GAS | | Interior Finish: | DRYWALL PAINT | Plumbing Fixture Cnt: | 11 | | Roof Slope: | 8" IN 12" | Roof Structure/Cover: | CJ ASPHALT |
|
| | Type | Description | Class CD | Sub Class CD | Year Built | Area |
| | BAS | BASE/MAIN FLOOR | 3 | 0 | 1998 | 1306.5 |
| | OP1 | OPEN PORCH SLAB | 3 | 0 | 1998 | 240.0 |
| | AGR | ATTACHED GARAGE | 3 | 0 | 1998 | 400.0 |
| | OWP | OPEN WOOD PORCH W/STEPS | 3 | 0 | 1998 | 255.0 |
| | OWP | OPEN WOOD PORCH W/STEPS | 3 | 0 | 1998 | 37.5 |
| | DWN | DOWNSTAIRS LIVING AREA | 3 | 0 | 1998 | 576.0 |
Sketch
Property Image
Land
| 1 | 14 | SQ (08001-12000) | 0.0000 | 0.00 | 0.00 | 0.00 | 1.00 | $210,000 | $0 |
Roll Value History
| 2026 | N/A | N/A | N/A | N/A | N/A |
| 2025 | $306,953 | $210,000 | $0 | $516,953 | $516,953 |
| 2024 | $310,554 | $200,000 | $0 | $510,554 | $510,554 |
| 2023 | $296,152 | $190,000 | $0 | $486,152 | $486,152 |
| 2022 | $271,424 | $180,000 | $0 | $451,424 | $451,424 |
| 2021 | $238,851 | $120,000 | $0 | $358,851 | $358,851 |
| 2020 | $232,725 | $100,000 | $0 | $332,725 | $332,725 |
| 2019 | $174,136 | $150,000 | $0 | $324,136 | $324,136 |
| 2018 | $174,641 | $130,000 | $0 | $304,641 | $304,641 |
| 2017 | $163,701 | $110,000 | $0 | $273,701 | $273,701 |
| 2016 | $165,648 | $90,000 | $0 | $255,648 | $255,648 |
| 2015 | $167,598 | $70,000 | $0 | $237,598 | $237,598 |
| 2014 | $169,546 | $55,000 | $0 | $224,546 | $224,546 |
| 2013 | $171,495 | $55,000 | $0 | $226,495 | $226,495 |
| 2012 | $173,443 | $50,000 | $0 | $223,443 | $223,443 |
| 2011 | $166,775 | $50,000 | $0 | $216,775 | $216,775 |
| 2010 | $173,176 | $50,000 | $0 | $223,176 | $223,176 |
| 2009 | $180,742 | $75,000 | $0 | $255,742 | $255,742 |
| 2008 | $183,065 | $100,000 | $0 | $283,065 | $283,065 |
| 2007 | $185,398 | $100,000 | $0 | $285,398 | $285,398 |
Deed and Sales History
| 1 | 08/07/2007 | WD | Warranty Deed | TUBOLINO III, ANTHONY T | O'BRIEN, KENNETH C | | | $269,900.00 | 72770 | 4209541 |
| 2 | 12/03/2004 | WD | Warranty Deed | STANFORD, AARON D/HILDA C | TUBOLINO III, ANTHONY T | | | $205,000.00 | 45833 | 4120778 |
| 3 | 06/18/1998 | WD | Warranty Deed | RKP ENTERPRISES INC, | STANFORD, AARON D/HILDA C | | | $144,287.00 | 82507 | 98013099 |
| 4 | 01/01/1998 | WD | Warranty Deed | FORESIGHT, INVESTMENTS I | RKP, ENTERPRISES, I | | | $38,250.00 | 80423 | 98002117 |
| 5 | 01/01/1900 | OTHER | Other - Misc. Documents | Unknown | FORESIGHT, INVESTMENTS I | | | $0.00 | 66678 | 0 |
| 6 | 01/01/1900 | OTHER | Other - Misc. Documents | RKP, ENTERPRISES, I | STANFORD, AARON D | | | $0.00 | 82507 | 98013099 |
| 7 | 01/01/1900 | OTHER | Other - Misc. Documents | STANFORD, AARON D | RKP ENTERPRISES INC, | | | $0.00 | 0 | 0 |
Payout Agreement
| No payout information available.. |