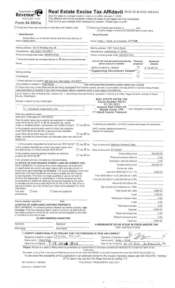
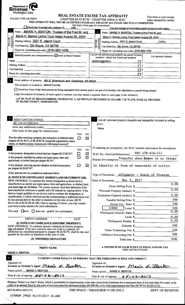
Property
Account |
| Property ID: | 75019 | Abbreviated Legal Description: | 11 - IN GL1: S145' OF FOLL DESC: BG SWCR GL1 E389.5' N240.3' TPB N435' E TO ML ALG ML S31*E420.4' S16*E79 .6' W TPB EX W40' FOR RD INCL ADJ TIDES |
| Geographic ID: | R23108-164-0960 | Agent Code: | |
| Type: | Real | | |
| Tax Area: | 312 - APPRAISER-Cpvl Schl Dist, outside Cpvl, improved, greater than 1 acre | Land Use Code | 11 |
| Open Space: | N | DFL | N |
| Historic Property: | N | Remodel Property: | N |
| Multi-Family Redevelopment: | N | | |
| Township: | 31 | Section: | 08 |
| Range: | R2 |
Location |
| Address: | 675 RACE RD COUPEVILLE, WA 98239 | Mapsco: | |
| Neighborhood: | Area 2 Waterfront Eastside Res | Map ID: | 466 |
| Neighborhood CD: | 2WFTE01R |
Owner |
| Name: | SCHMIDT, STEPHEN V | Owner ID: | 298601 |
| Mailing Address: | ELIZABETH M SCHMIDT 2416 NW 91ST ST SEATTLE, WA 98117 | % Ownership: | 100.0000000000% |
| | | Exemptions: | |
Taxes and Assessment Details
Values
| (+) Improvement Homesite Value: | + | $0 | |
| (+) Improvement Non-Homesite Value: | + | $1,661,424 | |
| (+) Land Homesite Value: | + | $0 | |
| (+) Land Non-Homesite Value: | + | $701,450 | |
| (+) Curr Use (HS): | + | $0 | $0 |
| (+) Curr Use (NHS): | + | $0 | $0 |
| | | -------------------------- | |
| (=) Market Value: | = | $2,362,874 | |
| (–) Productivity Loss: | – | $0 | |
| | | -------------------------- | |
| (=) Subtotal: | = | $2,362,874 | |
| (+) Senior Appraised Value: | + | $0 | |
| (+) Non-Senior Appraised Value: | + | $2,362,874 | |
| | | -------------------------- | |
| (=) Total Appraised Value: | = | $2,362,874 | |
| (–) Senior Exemption Loss: | – | $0 | |
| (–) Exemption Loss: | – | $0 | |
| | | -------------------------- | |
| (=) Taxable Value: | = | $2,362,874 | |
Taxing Jurisdiction
| Owner: | SCHMIDT, STEPHEN V | | |
| % Ownership: | 100.0000000000% | | |
| Total Value: | $2,362,874 | | |
| Tax Area: | 312 - APPRAISER-Cpvl Schl Dist, outside Cpvl, improved, greater than 1 acre |
| CF | Conservation Futures | 0.0316035091 | $2,362,874 | $2,362,874 | $74.68 | | |
| CEM2 | Cemetery #2 | 0.0095056933 | $2,362,874 | $2,362,874 | $22.46 | | |
| FIRE5 | Fire & Rescue Dist #5 C Whidbey GEN | 1.2008080668 | $2,362,874 | $2,362,874 | $2,837.36 | | |
| FIRE5BOND | Fire & Rescue Dist #5 C Whidbey BOND | 0.1400090713 | $2,362,874 | $2,362,874 | $330.82 | | |
| HOBOND | Hospital BOND | 0.1910887512 | $2,362,874 | $2,362,874 | $451.52 | | |
| HOGEN | Hospital GEN | 0.3902502903 | $2,362,874 | $2,362,874 | $922.11 | | |
| CE | County Current Expense | 0.3708482477 | $2,362,874 | $2,362,874 | $876.27 | | |
| CR | County Roads | 0.4584763726 | $2,362,874 | $2,362,874 | $1,083.32 | | |
| ISLANDEMS | Hospital GEN (EMS) | 0.5000000000 | $2,362,874 | $2,362,874 | $1,181.44 | | |
| LIB | Library Sno-Isle GEN | 0.3153421757 | $2,362,874 | $2,362,874 | $745.11 | | |
| LIBCAP | Library Sno-Isle BOND (Cap Fac Imp Area) | 0.0543427938 | $2,362,874 | $2,362,874 | $128.41 | | |
| POCOUP | Port of Coupeville GEN | 0.1093371703 | $2,362,874 | $2,362,874 | $258.35 | | |
| POCOUPIDD | Port of Coupeville IDD | 0.3409740022 | $2,362,874 | $2,362,874 | $805.68 | | |
| COUPSDTECH | School 204 CP (TECH) | 0.7545480007 | $2,362,874 | $2,362,874 | $1,782.90 | | |
| SCH204MO | School 204 Enrichment | 0.6716186034 | $2,362,874 | $2,362,874 | $1,586.95 | | |
| ST | State School | 1.3035497053 | $2,362,874 | $2,362,874 | $3,080.12 | | |
| ST2 | State School Part 2 | 0.8169543533 | $2,362,874 | $2,362,874 | $1,930.36 | | |
| | Total Tax Rate: | 7.6592568070 | | | | | |
| | | | | Taxes w/Current Exemptions: | $18,097.86 | | |
| | | | | Taxes w/o Exemptions: | $18,097.86 | | |
Improvement / Building
| Improvement #1: | RESIDENTIAL | State Code: | Y | 2697.0 sqft | Value: | $1,092,629 |
| Bathrooms: | 3.5 | Bedrooms: | 3 | | Ceiling: | TONGUE & GROOVE | Exterior Wall/Cover: | SHINGLE | | Floor Covering: | CERAMIC TILE/HWD 40/60 | Floor Structure: | WOOD W/SUBFLOOR | | Foundation: | CONCRETE | Heating: | RADIANT FLOOR | | Interior Finish: | DRYWALL PAINT | Plumbing Fixture Cnt: | 15 | | Roof Slope: | 12" IN 12" | Roof Structure/Cover: | BEAM ASPHALT |
|
| | Type | Description | Class CD | Sub Class CD | Year Built | Area |
| | UB8 | BASEMENT UNFINISHED 8" | 7 | 0 | 2004 | 120.0 |
| | UPS | UPPER STORY | 7 | 0 | 2004 | 747.0 |
| | OWP | OPEN WOOD PORCH W/STEPS | 7 | 0 | 2004 | 50.0 |
| | OWP | OPEN WOOD PORCH W/STEPS | 7 | 0 | 2004 | 192.0 |
| | OWC | OPEN WOOD PORCH W/STEPS/ROOF/C | 7 | 0 | 2004 | 160.0 |
| | DWN | DOWNSTAIRS LIVING AREA | 7 | 0 | 2004 | 960.0 |
| | BAS | BASE/MAIN FLOOR | 7 | 0 | 2004 | 990.0 |
| | OWC | OPEN WOOD PORCH W/STEPS/ROOF/C | 7 | 0 | 2004 | 87.5 |
| | OWP | OPEN WOOD PORCH W/STEPS | 7 | 0 | 2004 | 170.1 |
| Improvement #2: | RESIDENTIAL | State Code: | Y | 1191.5 sqft | Value: | $568,795 |
| Bathrooms: | 1 | Bedrooms: | 1 | | Ceiling: | DRYWALL PAINTED | Exterior Wall/Cover: | SHINGLE | | Floor Covering: | HARDWOOD/CARP 60-40 | Floor Structure: | WOOD W/SUBFLOOR | | Foundation: | CONCRETE | Heating: | WALL HEAT ELECTRIC | | Interior Finish: | DRYWALL PAINT | Plumbing Fixture Cnt: | 6 | | Roof Slope: | 8" IN 12" | Roof Structure/Cover: | BEAM ASPHALT |
|
| | Type | Description | Class CD | Sub Class CD | Year Built | Area |
| | BAS | BASE/MAIN FLOOR | 6 | 0 | 2005 | 303.5 |
| | AGR | ATTACHED GARAGE | 6 | 0 | 2005 | 646.0 |
| | UPS | UPPER STORY | 6 | 0 | 2005 | 240.0 |
| | OWC | OPEN WOOD PORCH W/STEPS/ROOF/C | 6 | 0 | 2005 | 21.0 |
| | BIG | BUILT IN GARAGE | 6 | 0 | 2005 | 936.0 |
| | UPH | HALF STORY | 6 | 0 | 2005 | 648.0 |
Sketch
Property Image
Land
| 1 | MB | MEDIUM BANK | 2.7500 | 119790.00 | 145.00 | 0.00 | 1.00 | $700,000 | $0 |
| 2 | 55 | TIDES | 0.0000 | 0.00 | 145.00 | 0.00 | 1.00 | $1,450 | $0 |
Roll Value History
| 2026 | N/A | N/A | N/A | N/A | N/A |
| 2025 | $1,661,424 | $701,450 | $0 | $2,362,874 | $2,362,874 |
| 2024 | $1,634,371 | $676,450 | $0 | $2,310,821 | $2,310,821 |
| 2023 | $1,652,889 | $651,450 | $0 | $2,304,339 | $2,304,339 |
| 2022 | $1,509,288 | $526,450 | $0 | $2,035,738 | $2,035,738 |
| 2021 | $1,324,109 | $476,450 | $0 | $1,800,559 | $1,800,559 |
| 2020 | $1,157,187 | $401,450 | $0 | $1,558,637 | $1,558,637 |
| 2019 | $946,604 | $451,450 | $0 | $1,398,054 | $1,398,054 |
| 2018 | $902,860 | $451,450 | $0 | $1,354,310 | $1,354,310 |
| 2017 | $660,708 | $351,450 | $0 | $1,012,158 | $1,012,158 |
| 2016 | $668,301 | $351,450 | $0 | $1,019,751 | $1,019,751 |
| 2015 | $664,507 | $351,450 | $0 | $1,015,957 | $1,015,957 |
| 2014 | $637,422 | $351,450 | $0 | $988,872 | $988,872 |
| 2013 | $644,505 | $344,476 | $0 | $988,981 | $988,981 |
| 2012 | $622,270 | $344,476 | $0 | $966,746 | $966,746 |
| 2011 | $629,031 | $344,476 | $0 | $973,507 | $973,507 |
| 2010 | $655,942 | $344,476 | $0 | $1,000,418 | $1,000,418 |
| 2009 | $676,706 | $385,641 | $0 | $1,062,347 | $1,062,347 |
| 2008 | $684,541 | $385,641 | $0 | $1,070,182 | $1,070,182 |
| 2007 | $692,377 | $317,736 | $0 | $1,010,113 | $1,010,113 |
Deed and Sales History
| 1 | 03/17/2021 | WD | Warranty Deed | MAGOON, CAPRICE E | SCHMIDT, STEPHEN V | | | $2,420,000.00 | 47455 | 4514410 |
| 2 | 08/03/2017 | WD | Warranty Deed | STUART TRUSTEE, SUSANNAH PROCTOR | MAGOON, CAPRICE E | | | $1,800,000.00 | 30704 | 4428464 |
| 3 | 09/06/2012 | WD | Warranty Deed | MORFORD, RICHARD L | STUART TRUSTEE, SUSANNAH PROCTOR | | | $1,100,000.00 | 8845 | 4323026 |
| 4 | 05/21/2001 | WD | Warranty Deed | INVESTMENT STRATEGY INC, | MORFORD, RICHARD L | | | $227,000.00 | 11859 | 20033144 |
| 5 | 05/18/2001 | ESTSEPPROP | Establish Separate Property | INVESTMENT STRAGEGY INC, | INVESTMENT STRATEGY INC, | | | $0.00 | 11740 | 20032556 |
| 6 | 09/08/2000 | TRUSTEED | Trustee's Deed | INVESTMENT STRAGEGY INC, | INVESTMENT STRAGEGY INC, | | | $0.00 | 3487 | 20016101 |
| 7 | 07/27/2000 | TRUSTEED | Trustee's Deed | MATTHEWS, PAUL A | INVESTMENT STRAGEGY INC, | | | $0.00 | 3203 | 20014983 |
| 8 | 05/01/1995 | QCD | Quit Claim Deed | MATTHEWS, PAUL A | MATTHEWS, PAUL A | | | $0.00 | 51879 | 95008721 |
| 9 | 04/01/1995 | QCD | Quit Claim Deed | FOGELMAN, DONNA M | MATTHEWS, PAUL A | | | $0.00 | 51228 | 95005811 |
| 10 | 01/01/1990 | QCD | Quit Claim Deed | MATTHEWS, ALTON T | FOGELMAN, DONNA M | | | $0.00 | 487 | 90001512 |
| 11 | 06/01/1989 | OTHER | Other - Misc. Documents | MATTHEWS, ALTON & | MATTHEWS, ALTON T | | | $0.00 | 63148 | 0 |
| 12 | 01/01/1900 | OTHER | Other - Misc. Documents | Unknown | MATTHEWS, ALTON & | | | $0.00 | 0 | 0 |
Payout Agreement
| No payout information available.. |