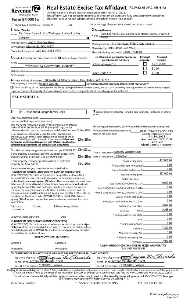
Property
Account |
| Property ID: | 750413 | Abbreviated Legal Description: | SCENIC VISTA #1 LOT 4 |
| Geographic ID: | S8116-00-00004-0 | Agent Code: | |
| Type: | Real | | |
| Tax Area: | 100 - APPRAISER-OH Schl Dist, in OH | Land Use Code | 11 |
| Open Space: | N | DFL | N |
| Historic Property: | N | Remodel Property: | N |
| Multi-Family Redevelopment: | N | | |
| Township: | | Section: | |
| Range: | |
Location |
| Address: | 2371 SW FREUND ST OAK HARBOR, WA 98277 | Mapsco: | |
| Neighborhood: | Cycle 1 | Map ID: | 119 |
| Neighborhood CD: | 1 |
Owner |
| Name: | SERVATIUS, JOEL ANTHONY | Owner ID: | 202140 |
| Mailing Address: | CELINE PATRICE SERVATIUS 2371 SW FREUND ST OAK HARBOR, WA 98277 | % Ownership: | 100.0000000000% |
| | | Exemptions: | |
Taxes and Assessment Details
Values
| (+) Improvement Homesite Value: | + | $0 | |
| (+) Improvement Non-Homesite Value: | + | $758,879 | |
| (+) Land Homesite Value: | + | $0 | |
| (+) Land Non-Homesite Value: | + | $300,000 | |
| (+) Curr Use (HS): | + | $0 | $0 |
| (+) Curr Use (NHS): | + | $0 | $0 |
| | | -------------------------- | |
| (=) Market Value: | = | $1,058,879 | |
| (–) Productivity Loss: | – | $0 | |
| | | -------------------------- | |
| (=) Subtotal: | = | $1,058,879 | |
| (+) Senior Appraised Value: | + | $0 | |
| (+) Non-Senior Appraised Value: | + | $1,058,879 | |
| | | -------------------------- | |
| (=) Total Appraised Value: | = | $1,058,879 | |
| (–) Senior Exemption Loss: | – | $0 | |
| (–) Exemption Loss: | – | $0 | |
| | | -------------------------- | |
| (=) Taxable Value: | = | $1,058,879 | |
Taxing Jurisdiction
| Owner: | SERVATIUS, JOEL ANTHONY | | |
| % Ownership: | 100.0000000000% | | |
| Total Value: | $1,058,879 | | |
| Tax Area: | 100 - APPRAISER-OH Schl Dist, in OH |
| CF | Conservation Futures | 0.0316035091 | $1,058,879 | $1,058,879 | $33.46 | | |
| CEM1 | Cemetery #1 | 0.0040320932 | $1,058,879 | $1,058,879 | $4.27 | | |
| COH | City of Oak Harbor | 2.3001546061 | $1,058,879 | $1,058,879 | $2,435.59 | | |
| OAKBOND | City of Oak Harbor BOND | 0.1926904192 | $1,058,879 | $1,058,879 | $204.04 | | |
| HOBOND | Hospital BOND | 0.1910887512 | $1,058,879 | $1,058,879 | $202.34 | | |
| HOGEN | Hospital GEN | 0.3902502903 | $1,058,879 | $1,058,879 | $413.23 | | |
| CE | County Current Expense | 0.3708482477 | $1,058,879 | $1,058,879 | $392.68 | | |
| ISLANDEMS | Hospital GEN (EMS) | 0.5000000000 | $1,058,879 | $1,058,879 | $529.44 | | |
| LIB | Library Sno-Isle GEN | 0.3153421757 | $1,058,879 | $1,058,879 | $333.91 | | |
| NWHIDPRMT | P & R N Whidbey GEN | 0.2004466701 | $1,058,879 | $1,058,879 | $212.25 | | |
| SCH201MO | School 201 Enrichment | 1.8559231640 | $1,058,879 | $1,058,879 | $1,965.20 | | |
| ST | State School | 1.3035497053 | $1,058,879 | $1,058,879 | $1,380.30 | | |
| ST2 | State School Part 2 | 0.8169543533 | $1,058,879 | $1,058,879 | $865.06 | | |
| | Total Tax Rate: | 8.4728839852 | | | | | |
| | | | | Taxes w/Current Exemptions: | $8,971.77 | | |
| | | | | Taxes w/o Exemptions: | $8,971.77 | | |
Improvement / Building
| Improvement #1: | RESIDENTIAL | State Code: | Y | 4619.2 sqft | Value: | $758,879 |
| Bathrooms: | 3.25 | Bedrooms: | 3 | | Ceiling: | DRYWALL PAINTED | Exterior Wall/Cover: | CEMENT FIBER | | Floor Covering: | COLORED CONCRETE | Floor Structure: | WOOD W/SUBFLOOR | | Foundation: | CONCRETE | Heating: | RADIANT FLOOR | | Interior Finish: | DRYWALL PAINT | Plumbing Fixture Cnt: | 16 | | Roof Slope: | 6" IN 12" | Roof Structure/Cover: | CJ ASPHALT |
|
| | Type | Description | Class CD | Sub Class CD | Year Built | Area |
| | BAS | BASE/MAIN FLOOR | 5 | 0 | 2007 | 1562.2 |
| | BIG | BUILT IN GARAGE | 5 | 0 | 2007 | 767.2 |
| | UPS | UPPER STORY | 5 | 0 | 2007 | 1507.5 |
| | OWP | OPEN WOOD PORCH W/STEPS | 5 | 0 | 2007 | 410.0 |
| | OWP | OPEN WOOD PORCH W/STEPS | 5 | 0 | 2007 | 335.0 |
| | OWC | OPEN WOOD PORCH W/STEPS/ROOF/C | 5 | 0 | 2007 | 178.5 |
| | DWN | DOWNSTAIRS LIVING AREA | 5 | 0 | 2007 | 1549.5 |
| | BAW | BALCONY WOOD RAIL | 5 | 0 | 2007 | 20.2 |
Sketch
Property Image
Land
| 1 | 15 | SQ (12001-21780) | 0.0000 | 0.00 | 0.00 | 0.00 | 1.00 | $300,000 | $0 |
Roll Value History
| 2026 | N/A | N/A | N/A | N/A | N/A |
| 2025 | $758,879 | $300,000 | $0 | $1,058,879 | $1,058,879 |
| 2024 | $767,578 | $300,000 | $0 | $1,067,578 | $1,067,578 |
| 2023 | $750,183 | $250,000 | $0 | $1,000,183 | $1,000,183 |
| 2022 | $687,183 | $250,000 | $0 | $937,183 | $937,183 |
| 2021 | $604,406 | $180,000 | $0 | $784,406 | $784,406 |
| 2020 | $589,553 | $150,000 | $0 | $739,553 | $739,553 |
| 2019 | $531,561 | $210,000 | $0 | $741,561 | $741,561 |
| 2018 | $533,033 | $190,000 | $0 | $723,033 | $723,033 |
| 2017 | $500,820 | $150,000 | $0 | $650,820 | $650,820 |
| 2016 | $506,446 | $120,000 | $0 | $626,446 | $626,446 |
| 2015 | $512,075 | $90,000 | $0 | $602,075 | $602,075 |
| 2014 | $517,702 | $90,000 | $0 | $607,702 | $607,702 |
| 2013 | $523,329 | $85,000 | $0 | $608,329 | $608,329 |
| 2012 | $528,955 | $102,000 | $0 | $630,955 | $630,955 |
| 2011 | $535,053 | $120,000 | $0 | $655,053 | $655,053 |
| 2010 | $566,288 | $120,000 | $0 | $686,288 | $686,288 |
| 2009 | $589,736 | $130,000 | $0 | $719,736 | $719,736 |
| 2008 | $494,981 | $148,000 | $0 | $642,981 | $642,981 |
| 2007 | $75,766 | $168,640 | $0 | $244,406 | $244,406 |
Deed and Sales History
| 1 | 04/06/2005 | WD | Warranty Deed | CHRISTENSEN, ROGER | SERVATIUS, JOEL ANTHONY | | | $150,000.00 | 51496 | 4130869 |
| 2 | 07/21/2004 | WD | Warranty Deed | FREUND, ARNOLD R | CHRISTENSEN, ROGER | | | $110,000.00 | 43393 | 418107 |
| 3 | 10/25/2002 | QCD | Quit Claim Deed | FREUND, JANET W | FREUND, ARNOLD R | | | $75,000.00 | 24289 | 4035471 |
| 4 | 12/01/1996 | QCD | Quit Claim Deed | FREUND, CARL | FREUND, JANET W | | | $0.00 | 64281 | 96020904 |
| 5 | 01/01/1900 | OTHER | Other - Misc. Documents | Unknown | FREUND, CARL | | | $0.00 | 13553 | 91015102 |
Payout Agreement
| No payout information available.. |