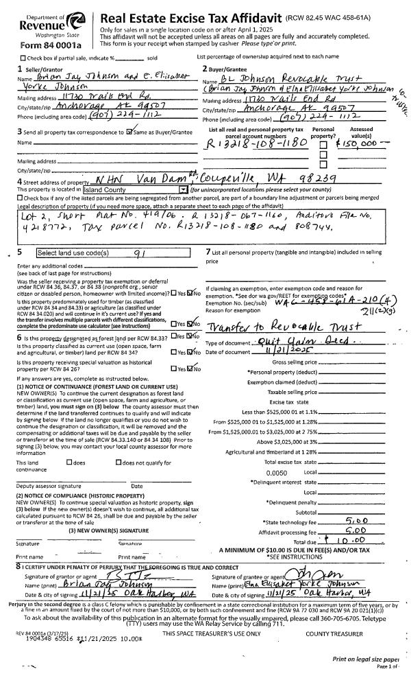
Property
Account |
| Property ID: | 750574 | Abbreviated Legal Description: | IN HASTIE DC: BG NECR SD DC S1*W3234' TPB N88*W536.51' S12*W705.21' S44*W619.95' S45*E203.50' N44*E619.95' N37*E899.38' M/L TPB FR 128-4650 |
| Geographic ID: | R13217-140-4810 | Agent Code: | |
| Type: | Real | | |
| Tax Area: | 112 - APPRAISER-OH Schl Dist, outside OH, improved, greater than 1 acre | Land Use Code | 11 |
| Open Space: | N | DFL | N |
| Historic Property: | N | Remodel Property: | N |
| Multi-Family Redevelopment: | N | | |
| Township: | 32 | Section: | 17 |
| Range: | R1 |
Location |
| Address: | 27961 SR20 OAK HARBOR, WA 98277 | Mapsco: | |
| Neighborhood: | Cycle 1 | Map ID: | 133 |
| Neighborhood CD: | 1 |
Owner |
| Name: | TACK, SPENCER JORDAN | Owner ID: | 315820 |
| Mailing Address: | BRITTANY KAY TACK 27961 SR 20 OAK HARBOR, WA 98277 | % Ownership: | 100.0000000000% |
| | | Exemptions: | |
Taxes and Assessment Details
Values
| (+) Improvement Homesite Value: | + | $0 | |
| (+) Improvement Non-Homesite Value: | + | $207,474 | |
| (+) Land Homesite Value: | + | $0 | |
| (+) Land Non-Homesite Value: | + | $350,000 | |
| (+) Curr Use (HS): | + | $0 | $0 |
| (+) Curr Use (NHS): | + | $0 | $0 |
| | | -------------------------- | |
| (=) Market Value: | = | $557,474 | |
| (–) Productivity Loss: | – | $0 | |
| | | -------------------------- | |
| (=) Subtotal: | = | $557,474 | |
| (+) Senior Appraised Value: | + | $0 | |
| (+) Non-Senior Appraised Value: | + | $557,474 | |
| | | -------------------------- | |
| (=) Total Appraised Value: | = | $557,474 | |
| (–) Senior Exemption Loss: | – | $0 | |
| (–) Exemption Loss: | – | $0 | |
| | | -------------------------- | |
| (=) Taxable Value: | = | $557,474 | |
Taxing Jurisdiction
| Owner: | TACK, SPENCER JORDAN | | |
| % Ownership: | 100.0000000000% | | |
| Total Value: | $557,474 | | |
| Tax Area: | 112 - APPRAISER-OH Schl Dist, outside OH, improved, greater than 1 acre |
| CF | Conservation Futures | 0.0316035091 | $557,474 | $557,474 | $17.62 | | |
| CEM1 | Cemetery #1 | 0.0040320932 | $557,474 | $557,474 | $2.25 | | |
| FIRE2 | Fire & Rescue Dist #2 N Whidbey GEN | 0.5475949600 | $557,474 | $557,474 | $305.27 | | |
| HOBOND | Hospital BOND | 0.1910887512 | $557,474 | $557,474 | $106.53 | | |
| HOGEN | Hospital GEN | 0.3902502903 | $557,474 | $557,474 | $217.55 | | |
| CE | County Current Expense | 0.3708482477 | $557,474 | $557,474 | $206.74 | | |
| CR | County Roads | 0.4584763726 | $557,474 | $557,474 | $255.59 | | |
| ISLANDEMS | Hospital GEN (EMS) | 0.5000000000 | $557,474 | $557,474 | $278.74 | | |
| LIB | Library Sno-Isle GEN | 0.3153421757 | $557,474 | $557,474 | $175.80 | | |
| NWHIDPRMT | P & R N Whidbey GEN | 0.2004466701 | $557,474 | $557,474 | $111.74 | | |
| SCH201MO | School 201 Enrichment | 1.8559231640 | $557,474 | $557,474 | $1,034.63 | | |
| ST | State School | 1.3035497053 | $557,474 | $557,474 | $726.70 | | |
| ST2 | State School Part 2 | 0.8169543533 | $557,474 | $557,474 | $455.43 | | |
| | Total Tax Rate: | 6.9861102925 | | | | | |
| | | | | Taxes w/Current Exemptions: | $3,894.59 | | |
| | | | | Taxes w/o Exemptions: | $3,894.59 | | |
Improvement / Building
| Improvement #1: | MANUFACTURED HOME | State Code: | Y | 2556.0 sqft | Value: | $207,474 |
| Bathrooms: | 2 | Bedrooms: | 4 | | Ceiling: | PLASTER PAINTED | Cooling: | HEAT PUMP/CONV/V | | Exterior Wall/Cover: | VINYL | Floor Covering: | CARPET 100% | | Floor Structure: | SLAB ON GRADE | Foundation: | SLAB | | Interior Finish: | PLASTER | Plumbing Fixture Cnt: | 1 | | Roof Slope: | FLAT | Roof Structure/Cover: | CJ ALUMINIUM HEAVY |
|
| | Type | Description | Class CD | Sub Class CD | Year Built | Area |
| | BAS | BASE/MAIN FLOOR | 5 | 0 | 1999 | 2556.0 |
| | OWC | OPEN WOOD PORCH W/STEPS/ROOF/C | 5 | 0 | 1999 | 280.0 |
| | UTY | STORAGE/UTILITY | 5 | 0 | 1999 | 96.0 |
| | CPD | OPEN CARPORT DIRT FLOOR | 5 | 0 | 1999 | 40.0 |
| | UTY | STORAGE/UTILITY | 5 | 0 | 1999 | 120.0 |
Sketch
Property Image
Land
| 1 | 91 | UNDEVELOPED LAND-METES AND BOUNDS | 1.0000 | 43560.00 | 0.00 | 0.00 | 1.00 | $130,000 | $0 |
| 2 | HS | HOMESITE | 1.0000 | 43560.00 | 0.00 | 0.00 | 1.00 | $220,000 | $0 |
Roll Value History
| 2026 | N/A | N/A | N/A | N/A | N/A |
| 2025 | $207,474 | $350,000 | $0 | $557,474 | $557,474 |
| 2024 | $212,728 | $310,000 | $0 | $522,728 | $522,728 |
| 2023 | $185,876 | $290,000 | $0 | $475,876 | $475,876 |
| 2022 | $172,811 | $270,000 | $0 | $442,811 | $442,811 |
| 2021 | $154,164 | $255,000 | $0 | $409,164 | $409,164 |
| 2020 | $153,458 | $200,000 | $0 | $353,458 | $353,458 |
| 2019 | $123,874 | $200,000 | $0 | $323,874 | $323,874 |
| 2018 | $126,859 | $170,000 | $0 | $296,859 | $296,859 |
| 2017 | $115,760 | $160,000 | $0 | $275,760 | $275,760 |
| 2016 | $118,603 | $160,000 | $0 | $278,603 | $278,603 |
| 2015 | $121,445 | $100,000 | $0 | $221,445 | $221,445 |
| 2014 | $124,287 | $100,000 | $0 | $224,287 | $224,287 |
| 2013 | $127,129 | $60,597 | $0 | $187,726 | $187,726 |
| 2012 | $129,972 | $60,597 | $0 | $190,569 | $190,569 |
| 2011 | $146,369 | $71,291 | $0 | $217,660 | $217,660 |
| 2010 | $176,550 | $71,291 | $0 | $247,841 | $247,841 |
| 2009 | $205,185 | $80,591 | $0 | $285,776 | $285,776 |
| 2008 | $207,982 | $126,000 | $0 | $333,982 | $333,982 |
| 2007 | $210,655 | $126,000 | $0 | $336,655 | $336,655 |
Deed and Sales History
| 1 | 03/18/2025 | WD | Warranty Deed | HOLZER, DAVID P | TACK, SPENCER JORDAN | | | $575,000.00 | 62841 | 4583376 |
| 2 | 03/18/2025 | LACPROBATE | Lack of Probate | ESTATE OF DEBORAH SUE HOLZER | HOLZER, DAVID P | | | $0.00 | 62839 | 4583351 |
| 3 | 07/11/2007 | WD | Warranty Deed | ELLIS, ROBERT K | HOLZER, DAVID P | | | $340,000.00 | 72350 | 4206950 |
| 4 | 12/30/1998 | WD | Warranty Deed | ROESLER, TIMBER C | ELLIS, ROBERT K | | | $39,000.00 | 90091 | 99000647 |
| 5 | 04/01/1997 | SEG | DNU - Segregation | ROESLER, TIMBER C | ROESLER, TIMBER C | | | $0.00 | 67371 | 0 |
| 6 | 01/01/1900 | OTHER | Other - Misc. Documents | Unknown | ROESLER, TIMBER C | | | $0.00 | 0 | 0 |
Payout Agreement
| No payout information available.. |