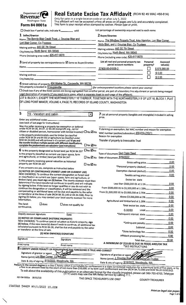
Property
Account |
| Property ID: | 750921 | Abbreviated Legal Description: | CAVALERO ESTATES - PRD LOT 22 |
| Geographic ID: | S6347-00-00022-0 | Agent Code: | |
| Type: | Real | | |
| Tax Area: | 510 - APPRAISER-Stan/Cam Schl Dist, improved & 1 acre or less | Land Use Code | 11 |
| Open Space: | N | DFL | N |
| Historic Property: | N | Remodel Property: | N |
| Multi-Family Redevelopment: | N | | |
| Township: | | Section: | |
| Range: | |
Location |
| Address: | 126 VALDES CT CAMANO ISLAND, WA 98282 | Mapsco: | |
| Neighborhood: | Cycle 5 | Map ID: | 927 |
| Neighborhood CD: | 5 |
Owner |
| Name: | TIPPETT TTEE, DOUGLAS C | Owner ID: | 295208 |
| Mailing Address: | ROSEANNE L GIBSON, TTEE 126 VALDES CT CAMANO ISLAND, WA 98282 | % Ownership: | 100.0000000000% |
| | | Exemptions: | |
Taxes and Assessment Details
Values
| (+) Improvement Homesite Value: | + | $0 | |
| (+) Improvement Non-Homesite Value: | + | $448,107 | |
| (+) Land Homesite Value: | + | $0 | |
| (+) Land Non-Homesite Value: | + | $250,000 | |
| (+) Curr Use (HS): | + | $0 | $0 |
| (+) Curr Use (NHS): | + | $0 | $0 |
| | | -------------------------- | |
| (=) Market Value: | = | $698,107 | |
| (–) Productivity Loss: | – | $0 | |
| | | -------------------------- | |
| (=) Subtotal: | = | $698,107 | |
| (+) Senior Appraised Value: | + | $0 | |
| (+) Non-Senior Appraised Value: | + | $698,107 | |
| | | -------------------------- | |
| (=) Total Appraised Value: | = | $698,107 | |
| (–) Senior Exemption Loss: | – | $0 | |
| (–) Exemption Loss: | – | $0 | |
| | | -------------------------- | |
| (=) Taxable Value: | = | $698,107 | |
Taxing Jurisdiction
| Owner: | TIPPETT TTEE, DOUGLAS C | | |
| % Ownership: | 100.0000000000% | | |
| Total Value: | $698,107 | | |
| Tax Area: | 510 - APPRAISER-Stan/Cam Schl Dist, improved & 1 acre or less |
| CF | Conservation Futures | 0.0316035091 | $698,107 | $698,107 | $22.06 | | |
| EMS1 | Fire & Rescue Dist #1 Camano GEN (EMS) | 0.3677864386 | $698,107 | $698,107 | $256.75 | | |
| FIRE1 | Fire & Rescue Dist #1 Camano GEN | 1.2502910536 | $698,107 | $698,107 | $872.84 | | |
| FIRE1BOND | Fire & Rescue Dist #1 Camano BOND | 0.1570001679 | $698,107 | $698,107 | $109.60 | | |
| CE | County Current Expense | 0.3708482477 | $698,107 | $698,107 | $258.89 | | |
| CR | County Roads | 0.4584763726 | $698,107 | $698,107 | $320.07 | | |
| LCIB | Library Sno-Isle BOND (Camano Island) | 0.0396325772 | $698,107 | $698,107 | $27.67 | | |
| LIB | Library Sno-Isle GEN | 0.3153421757 | $698,107 | $698,107 | $220.14 | | |
| SCH205_401 | School 205-401 Enrichment | 1.2698420524 | $698,107 | $698,107 | $886.49 | | |
| SCH205BOND | School 205-401 BOND | 0.9396497583 | $698,107 | $698,107 | $655.98 | | |
| ST | State School | 1.3035497053 | $698,107 | $698,107 | $910.02 | | |
| ST2 | State School Part 2 | 0.8169543533 | $698,107 | $698,107 | $570.32 | | |
| | Total Tax Rate: | 7.3209764117 | | | | | |
| | | | | Taxes w/Current Exemptions: | $5,110.83 | | |
| | | | | Taxes w/o Exemptions: | $5,110.83 | | |
Improvement / Building
| Improvement #1: | RESIDENTIAL | State Code: | Y | 2320.8 sqft | Value: | $448,107 |
| Bathrooms: | 2.5 | Bedrooms: | 2 | | Ceiling: | DRYWALL PAINTED | Cooling: | HEAT PUMP/CONV/V | | Exterior Wall/Cover: | WOOD SIDING | Floor Covering: | CARPET/VINYL 80-20 | | Floor Structure: | WOOD W/SUBFLOOR | Foundation: | SLAB/CONCRETE | | Interior Finish: | DRYWALL PAINT | Plumbing Fixture Cnt: | 13 | | Roof Slope: | 6" IN 12" | Roof Structure/Cover: | CJ ASPHALT |
|
| | Type | Description | Class CD | Sub Class CD | Year Built | Area |
| | BAS | BASE/MAIN FLOOR | 4 | 0 | 2002 | 1966.8 |
| | OP4 | OPEN PORCH W/CEILING-ROOF | 4 | 0 | 2002 | 53.9 |
| | BIG | BUILT IN GARAGE | 4 | 0 | 2002 | 735.6 |
| | OWP | OPEN WOOD PORCH W/STEPS | 4 | 0 | 2002 | 193.2 |
| | OWP | OPEN WOOD PORCH W/STEPS | 4 | 0 | 2002 | 160.2 |
| | UPH | HALF STORY | 4 | 0 | 2002 | 354.0 |
Sketch
Property Image
Land
| 1 | 15 | SQ (12001-21780) | 0.0000 | 0.00 | 0.00 | 0.00 | 1.00 | $250,000 | $0 |
Roll Value History
| 2026 | N/A | N/A | N/A | N/A | N/A |
| 2025 | $448,107 | $250,000 | $0 | $698,107 | $698,107 |
| 2024 | $453,241 | $240,000 | $0 | $693,241 | $693,241 |
| 2023 | $458,379 | $240,000 | $0 | $698,379 | $698,379 |
| 2022 | $418,557 | $230,000 | $0 | $648,557 | $648,557 |
| 2021 | $356,301 | $150,000 | $0 | $506,301 | $506,301 |
| 2020 | $345,800 | $135,000 | $0 | $480,800 | $480,800 |
| 2019 | $236,748 | $250,000 | $0 | $486,748 | $486,748 |
| 2018 | $237,436 | $140,000 | $0 | $377,436 | $377,436 |
| 2017 | $238,779 | $90,000 | $0 | $328,779 | $328,779 |
| 2016 | $241,523 | $90,000 | $0 | $331,523 | $331,523 |
| 2015 | $237,208 | $50,000 | $0 | $287,208 | $287,208 |
| 2014 | $239,966 | $50,000 | $0 | $289,966 | $289,966 |
| 2013 | $242,723 | $56,000 | $0 | $298,723 | $298,723 |
| 2012 | $245,480 | $56,000 | $0 | $301,480 | $301,480 |
| 2011 | $248,241 | $84,000 | $0 | $332,241 | $332,241 |
| 2010 | $255,979 | $84,000 | $0 | $339,979 | $339,979 |
| 2009 | $264,083 | $90,000 | $0 | $354,083 | $354,083 |
| 2008 | $267,198 | $115,000 | $0 | $382,198 | $382,198 |
| 2007 | $273,065 | $115,000 | $0 | $388,065 | $388,065 |
Deed and Sales History
| 1 | 06/26/2020 | QCD | Quit Claim Deed | TIPPETT, DOUGLAS C | TIPPETT TTEE, DOUGLAS C | | | $0.00 | 43816 | 4491377 |
| 2 | 05/29/2019 | WD | Warranty Deed | JOHNSTON, ROBERT J | TIPPETT, DOUGLAS C | | | $502,000.00 | 38805 | 4464641 |
| 3 | 02/24/1999 | WD | Warranty Deed | PORT, SUSAN I | JOHNSTON, ROBERT J | | | $45,000.00 | 90706 | 99005159 |
| 4 | 01/01/1900 | OTHER | Other - Misc. Documents | Unknown | PORT, SUSAN I | | | $0.00 | 51950 | 95009011 |
Payout Agreement
| No payout information available.. |