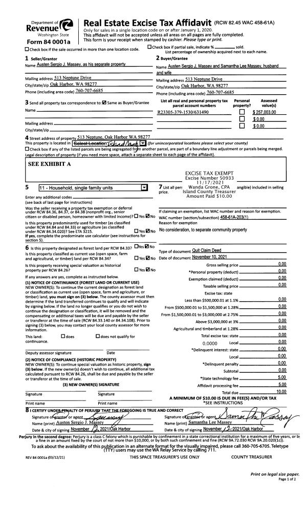
Property
Account |
| Property ID: | 751047 | Abbreviated Legal Description: | CAVALERO ESTATES - PRD LOT 10 |
| Geographic ID: | S6347-00-00010-0 | Agent Code: | |
| Type: | Real | | |
| Tax Area: | 510 - APPRAISER-Stan/Cam Schl Dist, improved & 1 acre or less | Land Use Code | 11 |
| Open Space: | N | DFL | N |
| Historic Property: | N | Remodel Property: | N |
| Multi-Family Redevelopment: | N | | |
| Township: | | Section: | |
| Range: | |
Location |
| Address: | 1138 SAN JUAN DR CAMANO ISLAND, WA 98282 | Mapsco: | |
| Neighborhood: | Cycle 5 | Map ID: | 927 |
| Neighborhood CD: | 5 |
Owner |
| Name: | KLOCHAK, JOHN | Owner ID: | 299994 |
| Mailing Address: | JESSICA WOLF 1138 SAN JUAN DR CAMANO ISLAND, WA 98282 | % Ownership: | 100.0000000000% |
| | | Exemptions: | |
Taxes and Assessment Details
Values
| (+) Improvement Homesite Value: | + | $0 | |
| (+) Improvement Non-Homesite Value: | + | $426,999 | |
| (+) Land Homesite Value: | + | $0 | |
| (+) Land Non-Homesite Value: | + | $250,000 | |
| (+) Curr Use (HS): | + | $0 | $0 |
| (+) Curr Use (NHS): | + | $0 | $0 |
| | | -------------------------- | |
| (=) Market Value: | = | $676,999 | |
| (–) Productivity Loss: | – | $0 | |
| | | -------------------------- | |
| (=) Subtotal: | = | $676,999 | |
| (+) Senior Appraised Value: | + | $0 | |
| (+) Non-Senior Appraised Value: | + | $676,999 | |
| | | -------------------------- | |
| (=) Total Appraised Value: | = | $676,999 | |
| (–) Senior Exemption Loss: | – | $0 | |
| (–) Exemption Loss: | – | $0 | |
| | | -------------------------- | |
| (=) Taxable Value: | = | $676,999 | |
Taxing Jurisdiction
| Owner: | KLOCHAK, JOHN | | |
| % Ownership: | 100.0000000000% | | |
| Total Value: | $676,999 | | |
| Tax Area: | 510 - APPRAISER-Stan/Cam Schl Dist, improved & 1 acre or less |
| CF | Conservation Futures | 0.0316035091 | $676,999 | $676,999 | $21.40 | | |
| EMS1 | Fire & Rescue Dist #1 Camano GEN (EMS) | 0.3677864386 | $676,999 | $676,999 | $248.99 | | |
| FIRE1 | Fire & Rescue Dist #1 Camano GEN | 1.2502910536 | $676,999 | $676,999 | $846.45 | | |
| FIRE1BOND | Fire & Rescue Dist #1 Camano BOND | 0.1570001679 | $676,999 | $676,999 | $106.29 | | |
| CE | County Current Expense | 0.3708482477 | $676,999 | $676,999 | $251.06 | | |
| CR | County Roads | 0.4584763726 | $676,999 | $676,999 | $310.39 | | |
| LCIB | Library Sno-Isle BOND (Camano Island) | 0.0396325772 | $676,999 | $676,999 | $26.83 | | |
| LIB | Library Sno-Isle GEN | 0.3153421757 | $676,999 | $676,999 | $213.49 | | |
| SCH205_401 | School 205-401 Enrichment | 1.2698420524 | $676,999 | $676,999 | $859.68 | | |
| SCH205BOND | School 205-401 BOND | 0.9396497583 | $676,999 | $676,999 | $636.14 | | |
| ST | State School | 1.3035497053 | $676,999 | $676,999 | $882.50 | | |
| ST2 | State School Part 2 | 0.8169543533 | $676,999 | $676,999 | $553.08 | | |
| | Total Tax Rate: | 7.3209764117 | | | | | |
| | | | | Taxes w/Current Exemptions: | $4,956.30 | | |
| | | | | Taxes w/o Exemptions: | $4,956.30 | | |
Improvement / Building
| Improvement #1: | RESIDENTIAL | State Code: | Y | 2074.0 sqft | Value: | $426,999 |
| Bathrooms: | 2.5 | Bedrooms: | 3 | | Ceiling: | DRYWALL PAINTED | Exterior Wall/Cover: | CEMENT FIBER | | Floor Covering: | HARDWOOD/CARP 20-80 | Floor Structure: | WOOD W/SUBFLOOR | | Foundation: | CONCRETE | Heating: | FHA GAS | | Interior Finish: | DRYWALL PAINT | Plumbing Fixture Cnt: | 14 | | Roof Slope: | 6" IN 12" | Roof Structure/Cover: | CJ ASPHALT |
|
| | Type | Description | Class CD | Sub Class CD | Year Built | Area |
| | BAS | BASE/MAIN FLOOR | 4 | 0 | 1998 | 2074.0 |
| | AGR | ATTACHED GARAGE | 4 | 0 | 1998 | 462.0 |
| | OWR | OPEN WOOD PORCH W/STEPS/ROOF | 4 | 0 | 1998 | 224.0 |
| | UTY | STORAGE/UTILITY | 4 | 0 | 1998 | 160.0 |
Sketch
Property Image
Land
| 1 | 15 | SQ (12001-21780) | 0.0000 | 0.00 | 0.00 | 0.00 | 1.00 | $250,000 | $0 |
Roll Value History
| 2026 | N/A | N/A | N/A | N/A | N/A |
| 2025 | $426,999 | $250,000 | $0 | $676,999 | $676,999 |
| 2024 | $432,129 | $240,000 | $0 | $672,129 | $672,129 |
| 2023 | $437,258 | $240,000 | $0 | $677,258 | $677,258 |
| 2022 | $400,597 | $230,000 | $0 | $630,597 | $630,597 |
| 2021 | $287,441 | $150,000 | $0 | $437,441 | $437,441 |
| 2020 | $279,891 | $135,000 | $0 | $414,891 | $414,891 |
| 2019 | $211,543 | $250,000 | $0 | $461,543 | $461,543 |
| 2018 | $212,179 | $140,000 | $0 | $352,179 | $352,179 |
| 2017 | $213,450 | $90,000 | $0 | $303,450 | $303,450 |
| 2016 | $215,991 | $90,000 | $0 | $305,991 | $305,991 |
| 2015 | $208,330 | $50,000 | $0 | $258,330 | $258,330 |
| 2014 | $210,829 | $50,000 | $0 | $260,829 | $260,829 |
| 2013 | $213,327 | $56,000 | $0 | $269,327 | $269,327 |
| 2012 | $215,825 | $56,000 | $0 | $271,825 | $271,825 |
| 2011 | $218,324 | $84,000 | $0 | $302,324 | $302,324 |
| 2010 | $226,010 | $84,000 | $0 | $310,010 | $310,010 |
| 2009 | $270,615 | $90,000 | $0 | $360,615 | $360,615 |
| 2008 | $273,786 | $115,000 | $0 | $388,786 | $388,786 |
| 2007 | $276,963 | $115,000 | $0 | $391,963 | $391,963 |
Deed and Sales History
| 1 | 06/18/2021 | WD | Warranty Deed | BURNS, WILLIAM J | KLOCHAK, JOHN | | | $600,000.00 | 48913 | 4523076 |
| 2 | 09/28/1998 | WD | Warranty Deed | BURKE, CONSTRUCTION, I | BURNS, WILLIAM J | | | $220,450.00 | 83936 | 98021210 |
| 3 | 02/01/1998 | WD | Warranty Deed | PORT, SUSAN I | BURKE, CONSTRUCTION, I | | | $42,000.00 | 80619 | 98003364 |
| 4 | 01/01/1900 | OTHER | Other - Misc. Documents | Unknown | PORT, SUSAN I | | | $0.00 | 51950 | 95009011 |
Payout Agreement
| No payout information available.. |