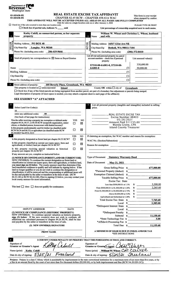
Property
Account |
| Property ID: | 751065 | Abbreviated Legal Description: | CAVALERO ESTATES - PRD LOT 8 |
| Geographic ID: | S6347-00-00008-0 | Agent Code: | |
| Type: | Real | | |
| Tax Area: | 510 - APPRAISER-Stan/Cam Schl Dist, improved & 1 acre or less | Land Use Code | 11 |
| Open Space: | N | DFL | N |
| Historic Property: | N | Remodel Property: | N |
| Multi-Family Redevelopment: | N | | |
| Township: | | Section: | |
| Range: | |
Location |
| Address: | 1130 SAN JUAN DR CAMANO ISLAND, WA 98282 | Mapsco: | |
| Neighborhood: | Cycle 5 | Map ID: | 927 |
| Neighborhood CD: | 5 |
Owner |
| Name: | JONES, JOHN F | Owner ID: | 297768 |
| Mailing Address: | DONNELL M JONES 1130 SAN JUAN DR CAMANO ISLAND, WA 98282 | % Ownership: | 100.0000000000% |
| | | Exemptions: | |
Taxes and Assessment Details
Values
| (+) Improvement Homesite Value: | + | $0 | |
| (+) Improvement Non-Homesite Value: | + | $320,030 | |
| (+) Land Homesite Value: | + | $0 | |
| (+) Land Non-Homesite Value: | + | $250,000 | |
| (+) Curr Use (HS): | + | $0 | $0 |
| (+) Curr Use (NHS): | + | $0 | $0 |
| | | -------------------------- | |
| (=) Market Value: | = | $570,030 | |
| (–) Productivity Loss: | – | $0 | |
| | | -------------------------- | |
| (=) Subtotal: | = | $570,030 | |
| (+) Senior Appraised Value: | + | $0 | |
| (+) Non-Senior Appraised Value: | + | $570,030 | |
| | | -------------------------- | |
| (=) Total Appraised Value: | = | $570,030 | |
| (–) Senior Exemption Loss: | – | $0 | |
| (–) Exemption Loss: | – | $0 | |
| | | -------------------------- | |
| (=) Taxable Value: | = | $570,030 | |
Taxing Jurisdiction
| Owner: | JONES, JOHN F | | |
| % Ownership: | 100.0000000000% | | |
| Total Value: | $570,030 | | |
| Tax Area: | 510 - APPRAISER-Stan/Cam Schl Dist, improved & 1 acre or less |
| CF | Conservation Futures | 0.0316035091 | $570,030 | $570,030 | $18.01 | | |
| EMS1 | Fire & Rescue Dist #1 Camano GEN (EMS) | 0.3677864386 | $570,030 | $570,030 | $209.65 | | |
| FIRE1 | Fire & Rescue Dist #1 Camano GEN | 1.2502910536 | $570,030 | $570,030 | $712.70 | | |
| FIRE1BOND | Fire & Rescue Dist #1 Camano BOND | 0.1570001679 | $570,030 | $570,030 | $89.49 | | |
| CE | County Current Expense | 0.3708482477 | $570,030 | $570,030 | $211.39 | | |
| CR | County Roads | 0.4584763726 | $570,030 | $570,030 | $261.35 | | |
| LCIB | Library Sno-Isle BOND (Camano Island) | 0.0396325772 | $570,030 | $570,030 | $22.59 | | |
| LIB | Library Sno-Isle GEN | 0.3153421757 | $570,030 | $570,030 | $179.75 | | |
| SCH205_401 | School 205-401 Enrichment | 1.2698420524 | $570,030 | $570,030 | $723.85 | | |
| SCH205BOND | School 205-401 BOND | 0.9396497583 | $570,030 | $570,030 | $535.63 | | |
| ST | State School | 1.3035497053 | $570,030 | $570,030 | $743.06 | | |
| ST2 | State School Part 2 | 0.8169543533 | $570,030 | $570,030 | $465.69 | | |
| | Total Tax Rate: | 7.3209764117 | | | | | |
| | | | | Taxes w/Current Exemptions: | $4,173.16 | | |
| | | | | Taxes w/o Exemptions: | $4,173.16 | | |
Improvement / Building
| Improvement #1: | RESIDENTIAL | State Code: | Y | 1783.0 sqft | Value: | $320,030 |
| Bathrooms: | 2 | Bedrooms: | 3 | | Ceiling: | DRYWALL PAINTED | Cooling: | HEAT PUMP/CONV/V | | Exterior Wall/Cover: | CEMENT FIBER | Floor Covering: | HARDWOOD/CARP 20-80 | | Floor Structure: | WOOD W/SUBFLOOR | Foundation: | CONCRETE | | Interior Finish: | DRYWALL PAINT | Plumbing Fixture Cnt: | 11 | | Roof Slope: | 6" IN 12" | Roof Structure/Cover: | CJ ASPHALT |
|
| | Type | Description | Class CD | Sub Class CD | Year Built | Area |
| | BAS | BASE/MAIN FLOOR | 3 | 0 | 1999 | 1783.0 |
| | AGR | ATTACHED GARAGE | 3 | 0 | 1999 | 528.0 |
| | OWP | OPEN WOOD PORCH W/STEPS | 3 | 0 | 1999 | 240.0 |
| | OWR | OPEN WOOD PORCH W/STEPS/ROOF | 3 | 0 | 1999 | 10.0 |
Sketch
Property Image
Land
| 1 | 15 | SQ (12001-21780) | 0.0000 | 0.00 | 0.00 | 0.00 | 1.00 | $250,000 | $0 |
Roll Value History
| 2026 | N/A | N/A | N/A | N/A | N/A |
| 2025 | $320,030 | $250,000 | $0 | $570,030 | $570,030 |
| 2024 | $323,783 | $240,000 | $0 | $563,783 | $563,783 |
| 2023 | $327,539 | $240,000 | $0 | $567,539 | $567,539 |
| 2022 | $299,991 | $230,000 | $0 | $529,991 | $529,991 |
| 2021 | $243,098 | $150,000 | $0 | $393,098 | $393,098 |
| 2020 | $236,822 | $135,000 | $0 | $371,822 | $371,822 |
| 2019 | $174,829 | $250,000 | $0 | $424,829 | $424,829 |
| 2018 | $175,341 | $140,000 | $0 | $315,341 | $315,341 |
| 2017 | $176,366 | $90,000 | $0 | $266,366 | $266,366 |
| 2016 | $178,419 | $90,000 | $0 | $268,419 | $268,419 |
| 2015 | $174,531 | $50,000 | $0 | $224,531 | $224,531 |
| 2014 | $176,608 | $50,000 | $0 | $226,608 | $226,608 |
| 2013 | $178,685 | $56,000 | $0 | $234,685 | $234,685 |
| 2012 | $180,761 | $56,000 | $0 | $236,761 | $236,761 |
| 2011 | $182,837 | $84,000 | $0 | $266,837 | $266,837 |
| 2010 | $190,434 | $84,000 | $0 | $274,434 | $274,434 |
| 2009 | $194,794 | $90,000 | $0 | $284,794 | $284,794 |
| 2008 | $197,054 | $115,000 | $0 | $312,054 | $312,054 |
| 2007 | $199,297 | $115,000 | $0 | $314,297 | $314,297 |
Deed and Sales History
| 1 | 01/18/2021 | QCD | Quit Claim Deed | JONES, DONNELL M | JONES, JOHN F | | | $0.00 | 46604 | 4508362 |
| 2 | 07/24/2020 | QCD | Quit Claim Deed | DOLAN, DONALD E | JONES, DONNELL M | | | $0.00 | 43959 | 4492154 |
| 3 | 09/22/1999 | WD | Warranty Deed | CRONIN DEVELOPMENT INC, | DOLAN, DONALD E | | | $179,000.00 | 94020 | 99022270 |
| 4 | 06/10/1998 | WD | Warranty Deed | PORT SUSAN INVESTMENTS INC, | CRONIN DEVELOPMENT INC, | | | $45,000.00 | 82282 | 98011876 |
| 5 | 01/01/1900 | OTHER | Other - Misc. Documents | Unknown | PORT, SUSAN I | | | $0.00 | 51950 | 95009011 |
| 6 | 01/01/1900 | OTHER | Other - Misc. Documents | PORT, SUSAN I | PORT SUSAN INVESTMENTS INC, | | | $0.00 | 0 | 0 |
Payout Agreement
| No payout information available.. |