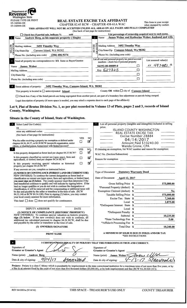
Property
Account |
| Property ID: | 751252 | Abbreviated Legal Description: | CHRISMAR VISTA LOT 12 |
| Geographic ID: | S6377-00-00012-0 | Agent Code: | |
| Type: | Real | | |
| Tax Area: | 760 - APPRAISER-S Whid Schl Dist, Special District, improved & less than 1 acre | Land Use Code | 11 |
| Open Space: | N | DFL | N |
| Historic Property: | N | Remodel Property: | N |
| Multi-Family Redevelopment: | N | | |
| Township: | | Section: | |
| Range: | |
Location |
| Address: | 5596 CHRIS MAR LN FREELAND, WA 98249 | Mapsco: | |
| Neighborhood: | Cycle 3 | Map ID: | 309 |
| Neighborhood CD: | 3 |
Owner |
| Name: | WELLS, JOHN HOWARD | Owner ID: | 279703 |
| Mailing Address: | 5596 CHRIS MAR LANE FREELAND, WA 98249 | % Ownership: | 100.0000000000% |
| | | Exemptions: | |
Taxes and Assessment Details
Values
| (+) Improvement Homesite Value: | + | $0 | |
| (+) Improvement Non-Homesite Value: | + | $691,985 | |
| (+) Land Homesite Value: | + | $0 | |
| (+) Land Non-Homesite Value: | + | $240,000 | |
| (+) Curr Use (HS): | + | $0 | $0 |
| (+) Curr Use (NHS): | + | $0 | $0 |
| | | -------------------------- | |
| (=) Market Value: | = | $931,985 | |
| (–) Productivity Loss: | – | $0 | |
| | | -------------------------- | |
| (=) Subtotal: | = | $931,985 | |
| (+) Senior Appraised Value: | + | $0 | |
| (+) Non-Senior Appraised Value: | + | $931,985 | |
| | | -------------------------- | |
| (=) Total Appraised Value: | = | $931,985 | |
| (–) Senior Exemption Loss: | – | $0 | |
| (–) Exemption Loss: | – | $0 | |
| | | -------------------------- | |
| (=) Taxable Value: | = | $931,985 | |
Taxing Jurisdiction
| Owner: | WELLS, JOHN HOWARD | | |
| % Ownership: | 100.0000000000% | | |
| Total Value: | $931,985 | | |
| Tax Area: | 760 - APPRAISER-S Whid Schl Dist, Special District, improved & less than 1 acre |
| CF | Conservation Futures | 0.0316035091 | $931,985 | $931,985 | $29.45 | | |
| FIRE3 | Fire & Rescue Dist #3 S Whidbey GEN | 1.2004855531 | $931,985 | $931,985 | $1,118.83 | | |
| HOBOND | Hospital BOND | 0.1910887512 | $931,985 | $931,985 | $178.09 | | |
| HOGEN | Hospital GEN | 0.3902502903 | $931,985 | $931,985 | $363.71 | | |
| CE | County Current Expense | 0.3708482477 | $931,985 | $931,985 | $345.63 | | |
| CR | County Roads | 0.4584763726 | $931,985 | $931,985 | $427.29 | | |
| ISLANDEMS | Hospital GEN (EMS) | 0.5000000000 | $931,985 | $931,985 | $465.99 | | |
| LIB | Library Sno-Isle GEN | 0.3153421757 | $931,985 | $931,985 | $293.89 | | |
| PORTWHID | Port of S Whidbey GEN | 0.1094540357 | $931,985 | $931,985 | $102.01 | | |
| SCH206BOND | School 206 BOND | 0.3161759235 | $931,985 | $931,985 | $294.67 | | |
| SCH206MO | School 206 Enrichment | 0.4547169547 | $931,985 | $931,985 | $423.79 | | |
| ST | State School | 1.3035497053 | $931,985 | $931,985 | $1,214.89 | | |
| ST2 | State School Part 2 | 0.8169543533 | $931,985 | $931,985 | $761.39 | | |
| SWHIDPRBD | P & R S Whidbey BOND | 0.0152817568 | $931,985 | $931,985 | $14.24 | | |
| SWHIDPRBD2 | P & R S Whidbey BOND2 | 0.0138911264 | $931,985 | $931,985 | $12.95 | | |
| SWHIDPRMT | P & R S Whidbey GEN | 0.2053334452 | $931,985 | $931,985 | $191.37 | | |
| | Total Tax Rate: | 6.6934522006 | | | | | |
| | | | | Taxes w/Current Exemptions: | $6,238.19 | | |
| | | | | Taxes w/o Exemptions: | $6,238.19 | | |
Improvement / Building
| Improvement #1: | RESIDENTIAL | State Code: | Y | 4506.8 sqft | Value: | $691,985 |
| Bathrooms: | 4.5 | Bedrooms: | 3 | | Ceiling: | DRYWALL PAINTED | Cooling: | HEAT PUMP/CONV/V | | Exterior Wall/Cover: | CEMENT FIBER | Floor Covering: | CARPET/VINYL 20-80 | | Floor Structure: | WOOD W/SUBFLOOR | Foundation: | CONCRETE | | Interior Finish: | DRYWALL PAINT | Plumbing Fixture Cnt: | 22 | | Roof Slope: | 4" IN 12" | Roof Structure/Cover: | CJ ASPHALT |
|
| | Type | Description | Class CD | Sub Class CD | Year Built | Area |
| | BAS | BASE/MAIN FLOOR | 4 | 0 | 2019 | 2333.5 |
| | UB8 | BASEMENT UNFINISHED 8" | 4 | 0 | 2019 | 120.2 |
| | AGR | ATTACHED GARAGE | 4 | 0 | 2019 | 702.0 |
| | DWN | DOWNSTAIRS LIVING AREA | 4 | 0 | 2019 | 2173.3 |
| | OWP | OPEN WOOD PORCH W/STEPS | 4 | 0 | 2019 | 471.5 |
| | OP4 | OPEN PORCH W/CEILING-ROOF | 4 | 0 | 2019 | 167.5 |
| | OP3 | OPEN PORCH W/ROOF | 4 | 0 | 2019 | 385.5 |
Sketch
Property Image
Land
| 1 | 15 | SQ (12001-21780) | 0.0000 | 0.00 | 0.00 | 0.00 | 1.00 | $240,000 | $0 |
Roll Value History
| 2026 | N/A | N/A | N/A | N/A | N/A |
| 2025 | $691,985 | $240,000 | $0 | $931,985 | $931,985 |
| 2024 | $697,567 | $230,000 | $0 | $927,567 | $927,567 |
| 2023 | $689,117 | $230,000 | $0 | $919,117 | $919,117 |
| 2022 | $577,743 | $210,000 | $0 | $787,743 | $787,743 |
| 2021 | $442,243 | $140,000 | $0 | $582,243 | $582,243 |
| 2020 | $429,206 | $115,000 | $0 | $544,206 | $544,206 |
| 2019 | $0 | $80,000 | $0 | $80,000 | $80,000 |
| 2018 | $0 | $80,000 | $0 | $80,000 | $80,000 |
| 2017 | $0 | $80,000 | $0 | $80,000 | $80,000 |
| 2016 | $0 | $100,000 | $0 | $100,000 | $100,000 |
| 2015 | $0 | $100,000 | $0 | $100,000 | $100,000 |
| 2014 | $0 | $100,000 | $0 | $100,000 | $100,000 |
| 2013 | $0 | $100,000 | $0 | $100,000 | $100,000 |
| 2012 | $0 | $100,000 | $0 | $100,000 | $100,000 |
| 2011 | $0 | $100,000 | $0 | $100,000 | $100,000 |
| 2010 | $0 | $100,000 | $0 | $100,000 | $100,000 |
| 2009 | $0 | $132,046 | $0 | $132,046 | $132,046 |
| 2008 | $0 | $132,046 | $0 | $132,046 | $132,046 |
| 2007 | $0 | $92,047 | $0 | $92,047 | $92,047 |
Deed and Sales History
| 1 | 04/25/2017 | WD | Warranty Deed | SCHUTT, MICHEAL S | WELLS, JOHN HOWARD | | | $105,000.00 | 29111 | 4421732 |
| 2 | 04/23/2008 | WD | Warranty Deed | WILLIAMS, MICHAEL | SCHUTT, MICHEAL S | | | $134,000.00 | 81023 | 4227189 |
| 3 | 09/01/2006 | WD | Warranty Deed | DIERKING, BRUCE | WILLIAMS, MICHAEL | | | $110,000.00 | 63857 | 4181003 |
| 4 | 09/07/2005 | WD | Warranty Deed | GABELEIN, VERLANE & MARILYN | DIERKING, BRUCE | | | $115,000.00 | 54512 | 4147136 |
| 5 | 12/27/2004 | QCD | Quit Claim Deed | GABELEIN, VERNON E | GABELEIN, VERLANE & MARILYN | | | $0.00 | 46070 | 4122071 |
| 6 | 01/01/1900 | WD | Warranty Deed | WILLIAMS, MICHAEL | WILLIAMS, MICHAEL | | | $0.00 | 0 | 4227189 |
| 7 | 01/01/1900 | OTHER | Other - Misc. Documents | Unknown | GABELEIN, VERNON E | | | $0.00 | 24676 | 92023050 |
Payout Agreement
| No payout information available.. |