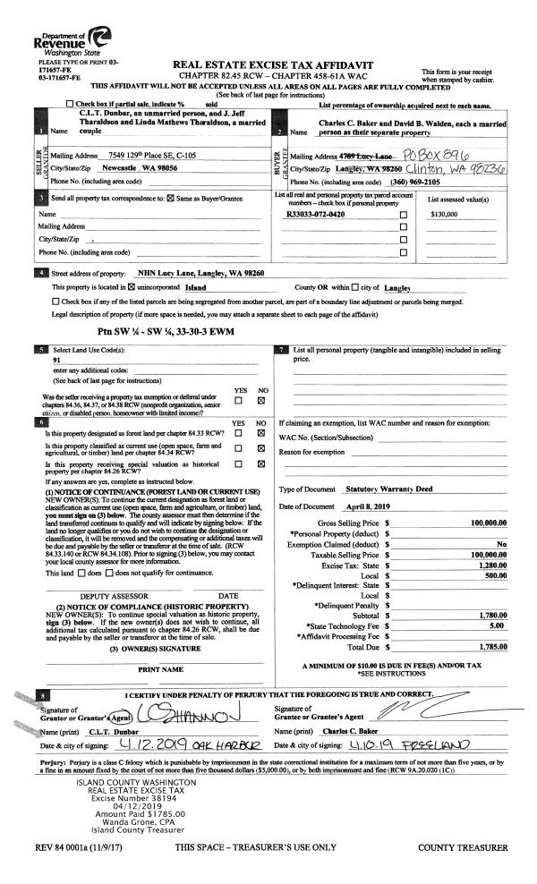
Property
Account |
| Property ID: | 751680 | Abbreviated Legal Description: | COTTAGE GLEN LOT 25 |
| Geographic ID: | S6413-00-00025-0 | Agent Code: | |
| Type: | Real | | |
| Tax Area: | 740 - APPRAISER-S Whid Schl Dist, Special District, improved & less than 1 acre | Land Use Code | 11 |
| Open Space: | N | DFL | N |
| Historic Property: | N | Remodel Property: | N |
| Multi-Family Redevelopment: | N | | |
| Township: | | Section: | |
| Range: | |
Location |
| Address: | 3668 BRITZMAN LOOP CLINTON, WA 98236 | Mapsco: | |
| Neighborhood: | Cycle 4 | Map ID: | 712 |
| Neighborhood CD: | 4 |
Owner |
| Name: | BALOGH, MORGAN L | Owner ID: | 289707 |
| Mailing Address: | 22828 24TH AVE W BRIER, WA 98036 | % Ownership: | 100.0000000000% |
| | | Exemptions: | |
Taxes and Assessment Details
Values
| (+) Improvement Homesite Value: | + | $0 | |
| (+) Improvement Non-Homesite Value: | + | $184,778 | |
| (+) Land Homesite Value: | + | $0 | |
| (+) Land Non-Homesite Value: | + | $230,000 | |
| (+) Curr Use (HS): | + | $0 | $0 |
| (+) Curr Use (NHS): | + | $0 | $0 |
| | | -------------------------- | |
| (=) Market Value: | = | $414,778 | |
| (–) Productivity Loss: | – | $0 | |
| | | -------------------------- | |
| (=) Subtotal: | = | $414,778 | |
| (+) Senior Appraised Value: | + | $0 | |
| (+) Non-Senior Appraised Value: | + | $414,778 | |
| | | -------------------------- | |
| (=) Total Appraised Value: | = | $414,778 | |
| (–) Senior Exemption Loss: | – | $0 | |
| (–) Exemption Loss: | – | $0 | |
| | | -------------------------- | |
| (=) Taxable Value: | = | $414,778 | |
Taxing Jurisdiction
| Owner: | BALOGH, MORGAN L | | |
| % Ownership: | 100.0000000000% | | |
| Total Value: | $414,778 | | |
| Tax Area: | 740 - APPRAISER-S Whid Schl Dist, Special District, improved & less than 1 acre |
| CF | Conservation Futures | 0.0316035091 | $414,778 | $414,778 | $13.11 | | |
| FIRE3 | Fire & Rescue Dist #3 S Whidbey GEN | 1.2004855531 | $414,778 | $414,778 | $497.93 | | |
| HOBOND | Hospital BOND | 0.1910887512 | $414,778 | $414,778 | $79.26 | | |
| HOGEN | Hospital GEN | 0.3902502903 | $414,778 | $414,778 | $161.87 | | |
| CE | County Current Expense | 0.3708482477 | $414,778 | $414,778 | $153.82 | | |
| CR | County Roads | 0.4584763726 | $414,778 | $414,778 | $190.17 | | |
| ISLANDEMS | Hospital GEN (EMS) | 0.5000000000 | $414,778 | $414,778 | $207.39 | | |
| LIB | Library Sno-Isle GEN | 0.3153421757 | $414,778 | $414,778 | $130.80 | | |
| PORTWHID | Port of S Whidbey GEN | 0.1094540357 | $414,778 | $414,778 | $45.40 | | |
| SCH206BOND | School 206 BOND | 0.3161759235 | $414,778 | $414,778 | $131.14 | | |
| SCH206MO | School 206 Enrichment | 0.4547169547 | $414,778 | $414,778 | $188.61 | | |
| ST | State School | 1.3035497053 | $414,778 | $414,778 | $540.68 | | |
| ST2 | State School Part 2 | 0.8169543533 | $414,778 | $414,778 | $338.85 | | |
| SWHIDPRBD | P & R S Whidbey BOND | 0.0152817568 | $414,778 | $414,778 | $6.34 | | |
| SWHIDPRBD2 | P & R S Whidbey BOND2 | 0.0138911264 | $414,778 | $414,778 | $5.76 | | |
| SWHIDPRMT | P & R S Whidbey GEN | 0.2053334452 | $414,778 | $414,778 | $85.17 | | |
| | Total Tax Rate: | 6.6934522006 | | | | | |
| | | | | Taxes w/Current Exemptions: | $2,776.30 | | |
| | | | | Taxes w/o Exemptions: | $2,776.30 | | |
Improvement / Building
| Improvement #1: | RESIDENTIAL | State Code: | Y | 893.4 sqft | Value: | $184,778 |
| Bathrooms: | 1 | Bedrooms: | 2 | | Ceiling: | DRYWALL PAINTED | Exterior Wall/Cover: | CEMENT FIBER | | Floor Covering: | CARPET/VINYL 80-20 | Floor Structure: | WOOD W/SUBFLOOR | | Foundation: | CONCRETE | Heating: | WALL HEAT ELECTRIC | | Interior Finish: | DRYWALL PAINT | Plumbing Fixture Cnt: | 6 | | Roof Slope: | 8" IN 12" | Roof Structure/Cover: | CJ ASPHALT |
|
| | Type | Description | Class CD | Sub Class CD | Year Built | Area |
| | BAS | BASE/MAIN FLOOR | 3 | 0 | 2001 | 893.4 |
| | OP1 | OPEN PORCH SLAB | 3 | 0 | 2001 | 224.0 |
| | AGR | ATTACHED GARAGE | 3 | 0 | 2001 | 317.0 |
| | OWP | OPEN WOOD PORCH W/STEPS | 3 | 0 | 2001 | 6.0 |
| | OWC | OPEN WOOD PORCH W/STEPS/ROOF/C | 3 | 0 | 2001 | 48.0 |
Sketch
Property Image
Land
| 1 | 14 | SQ (08001-12000) | 0.0000 | 0.00 | 0.00 | 0.00 | 1.00 | $230,000 | $0 |
Roll Value History
| 2026 | N/A | N/A | N/A | N/A | N/A |
| 2025 | $184,778 | $230,000 | $0 | $414,778 | $414,778 |
| 2024 | $187,053 | $210,000 | $0 | $397,053 | $397,053 |
| 2023 | $189,327 | $210,000 | $0 | $399,327 | $399,327 |
| 2022 | $173,492 | $200,000 | $0 | $373,492 | $373,492 |
| 2021 | $152,651 | $140,000 | $0 | $292,651 | $292,651 |
| 2020 | $148,525 | $125,000 | $0 | $273,525 | $273,525 |
| 2019 | $105,588 | $130,000 | $0 | $235,588 | $235,588 |
| 2018 | $90,225 | $120,000 | $0 | $210,225 | $210,225 |
| 2017 | $90,740 | $80,000 | $0 | $170,740 | $170,740 |
| 2016 | $91,819 | $70,000 | $0 | $161,819 | $161,819 |
| 2015 | $92,899 | $55,000 | $0 | $147,899 | $147,899 |
| 2014 | $97,719 | $55,000 | $0 | $152,719 | $152,719 |
| 2013 | $98,817 | $55,000 | $0 | $153,817 | $153,817 |
| 2012 | $99,916 | $72,250 | $0 | $172,166 | $172,166 |
| 2011 | $101,013 | $85,000 | $0 | $186,013 | $186,013 |
| 2010 | $104,476 | $85,000 | $0 | $189,476 | $189,476 |
| 2009 | $108,889 | $114,000 | $0 | $222,889 | $222,889 |
| 2008 | $111,134 | $123,000 | $0 | $234,134 | $234,134 |
| 2007 | $112,515 | $128,000 | $0 | $240,515 | $240,515 |
Deed and Sales History
| 1 | 04/29/2019 | WD | Warranty Deed | BROOKS, DIONNE | BALOGH, MORGAN L | | | $257,500.00 | 38448 | 4463079 |
| 2 | 07/08/2015 | DECREE | Divorce Decree/Legal Separation | TERRY, BRUCE L | BROOKS, DIONNE | | | $0.00 | 20484 | 4382187 |
| 3 | 08/23/2013 | SPWARDEED | Special Warranty Deed | US BANK N A | TERRY, BRUCE L | | | $133,500.00 | 12571 | 4347173 |
| 4 | 07/03/2013 | QCD | Quit Claim Deed | SECRETARY OF VETERAN AFFAIRS | US BANK N A | | | $131,314.00 | 11933 | 4343561 |
| 5 | 02/14/2011 | WD | Warranty Deed | US BANK NA | SECRETARY OF VETERAN AFFAIRS | | | $131,314.00 | 3830 | 4292052 |
| 6 | 02/14/2011 | TRUSTEED | Trustee's Deed | BISHOP, MATTHEW M | US BANK NA | | | $131,314.00 | 3829 | 4292053 |
| 7 | 10/17/2005 | WD | Warranty Deed | HENRY, RANDALL J | BISHOP, MATTHEW M | | | $227,000.00 | 55396 | 4152139 |
| 8 | 07/19/2001 | WD | Warranty Deed | DEAN, JERRY B | HENRY, RANDALL J | | | $113,000.00 | 12742 | 20037727 |
| 9 | 12/12/2000 | WD | Warranty Deed | WILDERUNN ENTERPRISES INC, | DEAN, JERRY B | | | $20,165.00 | 4749 | 20021994 |
| 10 | 08/03/1998 | QCD | Quit Claim Deed | R K P ENTERPRISES INC, | WILDERUNN ENTERPRISES INC, | | | $0.00 | 83119 | 98016327 |
| 11 | 07/31/1998 | QCD | Quit Claim Deed | WILDERUNN, ENTERPRISES I | R K P ENTERPRISES INC, | | | $0.00 | 83118 | 98016326 |
| 12 | 01/01/1900 | OTHER | Other - Misc. Documents | Unknown | R, K P | | | $0.00 | 66501 | 0 |
Payout Agreement
| No payout information available.. |