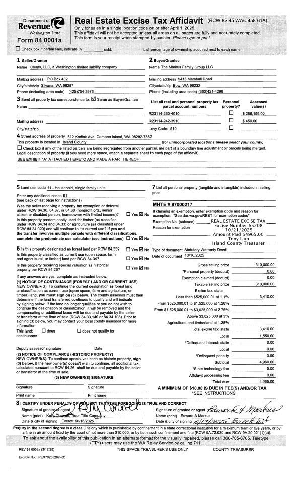
Property
Account |
| Property ID: | 7520 | Abbreviated Legal Description: | 20 - SW 3-31-1 & NW 10-31-1 :BG SLN 3-31-1 INTER ELN J CROCKETT DLC E1149' N20' TPB E150' TO ELN TR AF# 27320 S ALG ELN 350' W300' NELY TPB EX RDS SUB TO EZ TGW & SUB EZ AF#86002146 PT DRAINFIELD FOR 492-1540 AF#94023107 |
| Geographic ID: | R13110-508-1810 | Agent Code: | |
| Type: | Real | | |
| Tax Area: | 312 - APPRAISER-Cpvl Schl Dist, outside Cpvl, improved, greater than 1 acre | Land Use Code | 11 |
| Open Space: | N | DFL | N |
| Historic Property: | N | Remodel Property: | N |
| Multi-Family Redevelopment: | N | | |
| Township: | 31 | Section: | 10 |
| Range: | R1 |
Location |
| Address: | 1075 BURCHELL RD COUPEVILLE, WA 98239 | Mapsco: | |
| Neighborhood: | Cycle 2 | Map ID: | 48 |
| Neighborhood CD: | 2 |
Owner |
| Name: | PICKARD TRUSTEE, JANICE L | Owner ID: | 273086 |
| Mailing Address: | ANNE NANCY CRISWELL HARVEY TRUSTEE 1075 BURCHELL RD COUPEVILLE, WA 98239 | % Ownership: | 100.0000000000% |
| | | Exemptions: | |
Taxes and Assessment Details
Values
| (+) Improvement Homesite Value: | + | $0 | |
| (+) Improvement Non-Homesite Value: | + | $505,615 | |
| (+) Land Homesite Value: | + | $0 | |
| (+) Land Non-Homesite Value: | + | $348,000 | |
| (+) Curr Use (HS): | + | $0 | $0 |
| (+) Curr Use (NHS): | + | $0 | $0 |
| | | -------------------------- | |
| (=) Market Value: | = | $853,615 | |
| (–) Productivity Loss: | – | $0 | |
| | | -------------------------- | |
| (=) Subtotal: | = | $853,615 | |
| (+) Senior Appraised Value: | + | $0 | |
| (+) Non-Senior Appraised Value: | + | $853,615 | |
| | | -------------------------- | |
| (=) Total Appraised Value: | = | $853,615 | |
| (–) Senior Exemption Loss: | – | $0 | |
| (–) Exemption Loss: | – | $0 | |
| | | -------------------------- | |
| (=) Taxable Value: | = | $853,615 | |
Taxing Jurisdiction
| Owner: | PICKARD TRUSTEE, JANICE L | | |
| % Ownership: | 100.0000000000% | | |
| Total Value: | $853,615 | | |
| Tax Area: | 312 - APPRAISER-Cpvl Schl Dist, outside Cpvl, improved, greater than 1 acre |
| CF | Conservation Futures | 0.0316035091 | $853,615 | $853,615 | $26.98 | | |
| CEM2 | Cemetery #2 | 0.0095056933 | $853,615 | $853,615 | $8.11 | | |
| FIRE5 | Fire & Rescue Dist #5 C Whidbey GEN | 1.2008080668 | $853,615 | $853,615 | $1,025.03 | | |
| FIRE5BOND | Fire & Rescue Dist #5 C Whidbey BOND | 0.1400090713 | $853,615 | $853,615 | $119.51 | | |
| HOBOND | Hospital BOND | 0.1910887512 | $853,615 | $853,615 | $163.12 | | |
| HOGEN | Hospital GEN | 0.3902502903 | $853,615 | $853,615 | $333.12 | | |
| CE | County Current Expense | 0.3708482477 | $853,615 | $853,615 | $316.56 | | |
| CR | County Roads | 0.4584763726 | $853,615 | $853,615 | $391.36 | | |
| ISLANDEMS | Hospital GEN (EMS) | 0.5000000000 | $853,615 | $853,615 | $426.81 | | |
| LIB | Library Sno-Isle GEN | 0.3153421757 | $853,615 | $853,615 | $269.18 | | |
| LIBCAP | Library Sno-Isle BOND (Cap Fac Imp Area) | 0.0543427938 | $853,615 | $853,615 | $46.39 | | |
| POCOUP | Port of Coupeville GEN | 0.1093371703 | $853,615 | $853,615 | $93.33 | | |
| POCOUPIDD | Port of Coupeville IDD | 0.3409740022 | $853,615 | $853,615 | $291.06 | | |
| COUPSDTECH | School 204 CP (TECH) | 0.7545480007 | $853,615 | $853,615 | $644.09 | | |
| SCH204MO | School 204 Enrichment | 0.6716186034 | $853,615 | $853,615 | $573.30 | | |
| ST | State School | 1.3035497053 | $853,615 | $853,615 | $1,112.73 | | |
| ST2 | State School Part 2 | 0.8169543533 | $853,615 | $853,615 | $697.36 | | |
| | Total Tax Rate: | 7.6592568070 | | | | | |
| | | | | Taxes w/Current Exemptions: | $6,538.04 | | |
| | | | | Taxes w/o Exemptions: | $6,538.04 | | |
Improvement / Building
| Improvement #1: | RESIDENTIAL | State Code: | Y | 2360.0 sqft | Value: | $505,615 |
| Bathrooms: | 3 | Bedrooms: | 4 | | Ceiling: | TONGUE & GROOVE | Exterior Wall/Cover: | PLY/HARDBOARD T-111 | | Floor Covering: | HARDWOOD/CARP 60-40 | Floor Structure: | WOOD W/SUBFLOOR | | Foundation: | CONCRETE | Heating: | FHA GAS | | Interior Finish: | DRYWALL PAINT | Plumbing Fixture Cnt: | 17 | | Roof Slope: | 6" IN 12" | Roof Structure/Cover: | BEAM ASPHALT |
|
| | Type | Description | Class CD | Sub Class CD | Year Built | Area |
| | BAS | BASE/MAIN FLOOR | 4 | 0 | 1977 | 836.0 |
| | CPD | OPEN CARPORT DIRT FLOOR | 4 | 0 | 1977 | 70.0 |
| | LOF | LOFT | 4 | 0 | 1977 | 140.0 |
| | AGR | ATTACHED GARAGE | 4 | 0 | 1977 | 552.0 |
| | UPS | UPPER STORY | 4 | 0 | 1977 | 300.0 |
| | UPS | UPPER STORY | 4 | 0 | 1977 | 504.0 |
| | OWP | OPEN WOOD PORCH W/STEPS | 4 | 0 | 1977 | 119.2 |
| | OWP | OPEN WOOD PORCH W/STEPS | 4 | 0 | 1977 | 292.0 |
| | OWC | OPEN WOOD PORCH W/STEPS/ROOF/C | 4 | 0 | 1977 | 80.0 |
| | ENP | ENCLOSED PORCH | 4 | 0 | 1977 | 400.0 |
| | DWN | DOWNSTAIRS LIVING AREA | 4 | 0 | 1977 | 580.0 |
| | OWC | OPEN WOOD PORCH W/STEPS/ROOF/C | 4 | 0 | 1977 | 183.5 |
Sketch
Property Image
Land
| 1 | HS | HOMESITE | 1.0000 | 43560.00 | 0.00 | 0.00 | 1.00 | $340,000 | $0 |
| 2 | 91 | UNDEVELOPED LAND-METES AND BOUNDS | 0.8000 | 34848.00 | 0.00 | 0.00 | 1.00 | $8,000 | $0 |
Roll Value History
| 2026 | N/A | N/A | N/A | N/A | N/A |
| 2025 | $505,615 | $348,000 | $0 | $853,615 | $853,615 |
| 2024 | $480,287 | $340,000 | $0 | $820,287 | $820,287 |
| 2023 | $486,587 | $330,000 | $0 | $816,587 | $816,587 |
| 2022 | $446,304 | $300,000 | $0 | $746,304 | $746,304 |
| 2021 | $393,055 | $220,000 | $0 | $613,055 | $613,055 |
| 2020 | $382,726 | $200,000 | $0 | $582,726 | $582,726 |
| 2019 | $281,664 | $230,000 | $0 | $511,664 | $511,664 |
| 2018 | $229,775 | $210,000 | $0 | $439,775 | $439,775 |
| 2017 | $231,084 | $180,000 | $0 | $411,084 | $411,084 |
| 2016 | $233,792 | $180,250 | $0 | $414,042 | $414,042 |
| 2015 | $236,497 | $140,250 | $0 | $376,747 | $376,747 |
| 2014 | $239,205 | $140,250 | $0 | $379,455 | $379,455 |
| 2013 | $241,912 | $140,250 | $0 | $382,162 | $382,162 |
| 2012 | $247,269 | $140,250 | $0 | $387,519 | $387,519 |
| 2011 | $249,977 | $165,000 | $0 | $414,977 | $414,977 |
| 2010 | $258,499 | $165,000 | $0 | $423,499 | $423,499 |
| 2009 | $269,200 | $175,000 | $0 | $444,200 | $444,200 |
| 2008 | $281,799 | $190,000 | $0 | $471,799 | $471,799 |
| 2007 | $287,117 | $161,750 | $0 | $448,867 | $448,867 |
Deed and Sales History
| 1 | 12/08/2015 | TRUSTEED | Trustee's Deed | PICKARD, JANICE L | PICKARD TRUSTEE, JANICE L | | | $0.00 | 22435 | 4390841 |
| 2 | 12/21/1998 | QCD | Quit Claim Deed | PICKARD, JANICE L | PICKARD, JANICE L | | | $0.00 | 85131 | 98028071 |
| 3 | 08/01/1994 | DECREE | Divorce Decree/Legal Separation | PICKARD, JANICE L | PICKARD, JANICE L | | | $0.00 | 43675 | 94019413 |
| 4 | 04/01/1977 | OTHER | Other - Misc. Documents | NIEDER, JANICE L | PICKARD, JANICE L | | | $1.00 | 59431 | 0 |
| 5 | 01/01/1900 | OTHER | Other - Misc. Documents | Unknown | NIEDER, JANICE L | | | $0.00 | 0 | 0 |
Payout Agreement
| No payout information available.. |