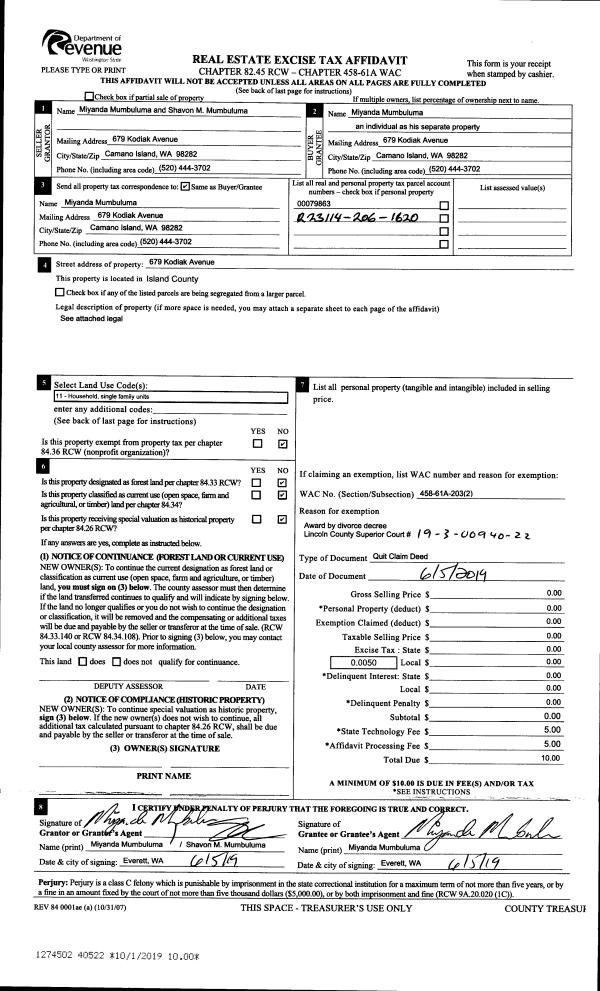
Property
Account |
| Property ID: | 752199 | Abbreviated Legal Description: | USELESS BAY COLONY # 17 LOT 2 |
| Geographic ID: | S8340-17-00002-0 | Agent Code: | |
| Type: | Real | | |
| Tax Area: | 750 - APPRAISER-S Whid Schl Dist, Special District, improved & less than 1 acre | Land Use Code | 11 |
| Open Space: | N | DFL | N |
| Historic Property: | N | Remodel Property: | N |
| Multi-Family Redevelopment: | N | | |
| Township: | | Section: | |
| Range: | |
Location |
| Address: | 2434 HILLIS DR LANGLEY, WA 98260 | Mapsco: | |
| Neighborhood: | Cycle 3 | Map ID: | 785 |
| Neighborhood CD: | 3 |
Owner |
| Name: | BICKEL, F GORDON | Owner ID: | 267143 |
| Mailing Address: | JUDITH M BICKEL 2434 HILLIS DR LANGLEY, WA 98260 | % Ownership: | 100.0000000000% |
| | | Exemptions: | |
Taxes and Assessment Details
Values
| (+) Improvement Homesite Value: | + | $0 | |
| (+) Improvement Non-Homesite Value: | + | $674,899 | |
| (+) Land Homesite Value: | + | $0 | |
| (+) Land Non-Homesite Value: | + | $350,000 | |
| (+) Curr Use (HS): | + | $0 | $0 |
| (+) Curr Use (NHS): | + | $0 | $0 |
| | | -------------------------- | |
| (=) Market Value: | = | $1,024,899 | |
| (–) Productivity Loss: | – | $0 | |
| | | -------------------------- | |
| (=) Subtotal: | = | $1,024,899 | |
| (+) Senior Appraised Value: | + | $0 | |
| (+) Non-Senior Appraised Value: | + | $1,024,899 | |
| | | -------------------------- | |
| (=) Total Appraised Value: | = | $1,024,899 | |
| (–) Senior Exemption Loss: | – | $0 | |
| (–) Exemption Loss: | – | $0 | |
| | | -------------------------- | |
| (=) Taxable Value: | = | $1,024,899 | |
Taxing Jurisdiction
| Owner: | BICKEL, F GORDON | | |
| % Ownership: | 100.0000000000% | | |
| Total Value: | $1,024,899 | | |
| Tax Area: | 750 - APPRAISER-S Whid Schl Dist, Special District, improved & less than 1 acre |
| CF | Conservation Futures | 0.0316035091 | $1,024,899 | $1,024,899 | $32.39 | | |
| FIRE3 | Fire & Rescue Dist #3 S Whidbey GEN | 1.2004855531 | $1,024,899 | $1,024,899 | $1,230.38 | | |
| HOBOND | Hospital BOND | 0.1910887512 | $1,024,899 | $1,024,899 | $195.85 | | |
| HOGEN | Hospital GEN | 0.3902502903 | $1,024,899 | $1,024,899 | $399.97 | | |
| CE | County Current Expense | 0.3708482477 | $1,024,899 | $1,024,899 | $380.08 | | |
| CR | County Roads | 0.4584763726 | $1,024,899 | $1,024,899 | $469.89 | | |
| ISLANDEMS | Hospital GEN (EMS) | 0.5000000000 | $1,024,899 | $1,024,899 | $512.45 | | |
| LIB | Library Sno-Isle GEN | 0.3153421757 | $1,024,899 | $1,024,899 | $323.19 | | |
| PORTWHID | Port of S Whidbey GEN | 0.1094540357 | $1,024,899 | $1,024,899 | $112.18 | | |
| SCH206BOND | School 206 BOND | 0.3161759235 | $1,024,899 | $1,024,899 | $324.05 | | |
| SCH206MO | School 206 Enrichment | 0.4547169547 | $1,024,899 | $1,024,899 | $466.04 | | |
| ST | State School | 1.3035497053 | $1,024,899 | $1,024,899 | $1,336.01 | | |
| ST2 | State School Part 2 | 0.8169543533 | $1,024,899 | $1,024,899 | $837.30 | | |
| SWHIDPRBD | P & R S Whidbey BOND | 0.0152817568 | $1,024,899 | $1,024,899 | $15.66 | | |
| SWHIDPRBD2 | P & R S Whidbey BOND2 | 0.0138911264 | $1,024,899 | $1,024,899 | $14.24 | | |
| SWHIDPRMT | P & R S Whidbey GEN | 0.2053334452 | $1,024,899 | $1,024,899 | $210.45 | | |
| | Total Tax Rate: | 6.6934522006 | | | | | |
| | | | | Taxes w/Current Exemptions: | $6,860.13 | | |
| | | | | Taxes w/o Exemptions: | $6,860.13 | | |
Improvement / Building
| Improvement #1: | RESIDENTIAL | State Code: | Y | 3647.0 sqft | Value: | $674,899 |
| Bathrooms: | 3 | Bedrooms: | 3 | | Ceiling: | DRYWALL PAINTED | Exterior Wall/Cover: | SHINGLE | | Floor Covering: | CERAMIC TILE/CPT 40-60 | Floor Structure: | WOOD W/SUBFLOOR | | Foundation: | CONCRETE | Heating: | FHA GAS | | Interior Finish: | DRYWALL PAINT | Plumbing Fixture Cnt: | 16 | | Roof Slope: | 8" IN 12" | Roof Structure/Cover: | CJ ASPHALT |
|
| | Type | Description | Class CD | Sub Class CD | Year Built | Area |
| | BAS | BASE/MAIN FLOOR | 5 | 0 | 1998 | 2002.0 |
| | OP1 | OPEN PORCH SLAB | 5 | 0 | 1998 | 429.0 |
| | OP4 | OPEN PORCH W/CEILING-ROOF | 5 | 0 | 1998 | 104.0 |
| | OP4 | OPEN PORCH W/CEILING-ROOF | 5 | 0 | 1998 | 36.0 |
| | AGR | ATTACHED GARAGE | 5 | 0 | 1998 | 768.0 |
| | BAR | BALCONY W/ROOF | 5 | 0 | 1998 | 36.0 |
| | OWP | OPEN WOOD PORCH W/STEPS | 5 | 0 | 1998 | 851.9 |
| | OWP | OPEN WOOD PORCH W/STEPS | 5 | 0 | 1998 | 36.0 |
| | DWN | DOWNSTAIRS LIVING AREA | 5 | 0 | 1998 | 1645.0 |
Sketch
Property Image
Land
| 1 | 16 | AC (00.51-01.00) | 0.0000 | 0.00 | 0.00 | 0.00 | 1.00 | $350,000 | $0 |
Roll Value History
| 2026 | N/A | N/A | N/A | N/A | N/A |
| 2025 | $674,899 | $350,000 | $0 | $1,024,899 | $1,024,899 |
| 2024 | $683,203 | $320,000 | $0 | $1,003,203 | $1,003,203 |
| 2023 | $691,512 | $300,000 | $0 | $991,512 | $991,512 |
| 2022 | $633,693 | $280,000 | $0 | $913,693 | $913,693 |
| 2021 | $557,605 | $210,000 | $0 | $767,605 | $767,605 |
| 2020 | $543,580 | $160,000 | $0 | $703,580 | $703,580 |
| 2019 | $473,046 | $210,000 | $0 | $683,046 | $683,046 |
| 2018 | $474,431 | $190,000 | $0 | $664,431 | $664,431 |
| 2017 | $477,149 | $160,000 | $0 | $637,149 | $637,149 |
| 2016 | $482,693 | $130,000 | $0 | $612,693 | $612,693 |
| 2015 | $488,243 | $130,000 | $0 | $618,243 | $618,243 |
| 2014 | $493,793 | $100,000 | $0 | $593,793 | $593,793 |
| 2013 | $448,708 | $96,800 | $0 | $545,508 | $545,508 |
| 2012 | $453,943 | $82,370 | $0 | $536,313 | $536,313 |
| 2011 | $459,173 | $82,370 | $0 | $541,543 | $541,543 |
| 2010 | $470,141 | $93,600 | $0 | $563,741 | $563,741 |
| 2009 | $490,492 | $217,000 | $0 | $707,492 | $707,492 |
| 2008 | $496,810 | $217,500 | $0 | $714,310 | $714,310 |
| 2007 | $488,531 | $217,500 | $0 | $706,031 | $706,031 |
Deed and Sales History
| 1 | 07/11/2014 | WD | Warranty Deed | ANTEZANA, RICARDO | BICKEL, F GORDON | | | $645,000.00 | 16040 | 4362438 |
| 2 | 07/11/2003 | WD | Warranty Deed | JONES, RICHARD E | ANTEZANA, RICARDO | | | $578,000.00 | 32994 | 4066432 |
| 3 | 07/01/1997 | WD | Warranty Deed | H, & H | JONES, RICHARD E | | | $115,000.00 | 72305 | 97010845 |
| 4 | 01/01/1900 | OTHER | Other - Misc. Documents | Unknown | H, & H | | | $0.00 | 33436 | 417867 |
Payout Agreement
| No payout information available.. |