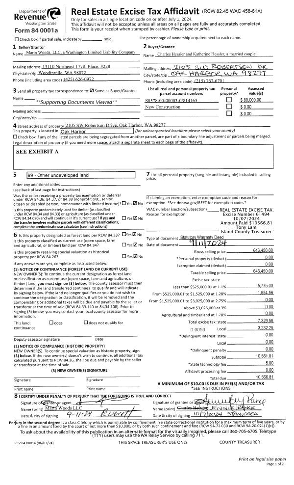
Property
Account |
| Property ID: | 752233 | Abbreviated Legal Description: | USELESS BAY COLONY # 17 LOT 6 |
| Geographic ID: | S8340-17-00006-0 | Agent Code: | |
| Type: | Real | | |
| Tax Area: | 750 - APPRAISER-S Whid Schl Dist, Special District, improved & less than 1 acre | Land Use Code | 11 |
| Open Space: | N | DFL | N |
| Historic Property: | N | Remodel Property: | N |
| Multi-Family Redevelopment: | N | | |
| Township: | | Section: | |
| Range: | |
Location |
| Address: | 5685 MACDONALD DR LANGLEY, WA 98260 | Mapsco: | |
| Neighborhood: | Cycle 3 | Map ID: | 785 |
| Neighborhood CD: | 3 |
Owner |
| Name: | KETTER, MARK L | Owner ID: | 312168 |
| Mailing Address: | JAMES S SIMMONS 5685 MCDONALD DR LANGLEY, WA 98260 | % Ownership: | 100.0000000000% |
| | | Exemptions: | |
Taxes and Assessment Details
Values
| (+) Improvement Homesite Value: | + | $0 | |
| (+) Improvement Non-Homesite Value: | + | $558,327 | |
| (+) Land Homesite Value: | + | $0 | |
| (+) Land Non-Homesite Value: | + | $310,000 | |
| (+) Curr Use (HS): | + | $0 | $0 |
| (+) Curr Use (NHS): | + | $0 | $0 |
| | | -------------------------- | |
| (=) Market Value: | = | $868,327 | |
| (–) Productivity Loss: | – | $0 | |
| | | -------------------------- | |
| (=) Subtotal: | = | $868,327 | |
| (+) Senior Appraised Value: | + | $0 | |
| (+) Non-Senior Appraised Value: | + | $868,327 | |
| | | -------------------------- | |
| (=) Total Appraised Value: | = | $868,327 | |
| (–) Senior Exemption Loss: | – | $0 | |
| (–) Exemption Loss: | – | $0 | |
| | | -------------------------- | |
| (=) Taxable Value: | = | $868,327 | |
Taxing Jurisdiction
| Owner: | KETTER, MARK L | | |
| % Ownership: | 100.0000000000% | | |
| Total Value: | $868,327 | | |
| Tax Area: | 750 - APPRAISER-S Whid Schl Dist, Special District, improved & less than 1 acre |
| CF | Conservation Futures | 0.0316035091 | $868,327 | $868,327 | $27.44 | | |
| FIRE3 | Fire & Rescue Dist #3 S Whidbey GEN | 1.2004855531 | $868,327 | $868,327 | $1,042.41 | | |
| HOBOND | Hospital BOND | 0.1910887512 | $868,327 | $868,327 | $165.93 | | |
| HOGEN | Hospital GEN | 0.3902502903 | $868,327 | $868,327 | $338.86 | | |
| CE | County Current Expense | 0.3708482477 | $868,327 | $868,327 | $322.02 | | |
| CR | County Roads | 0.4584763726 | $868,327 | $868,327 | $398.11 | | |
| ISLANDEMS | Hospital GEN (EMS) | 0.5000000000 | $868,327 | $868,327 | $434.16 | | |
| LIB | Library Sno-Isle GEN | 0.3153421757 | $868,327 | $868,327 | $273.82 | | |
| PORTWHID | Port of S Whidbey GEN | 0.1094540357 | $868,327 | $868,327 | $95.04 | | |
| SCH206BOND | School 206 BOND | 0.3161759235 | $868,327 | $868,327 | $274.54 | | |
| SCH206MO | School 206 Enrichment | 0.4547169547 | $868,327 | $868,327 | $394.84 | | |
| ST | State School | 1.3035497053 | $868,327 | $868,327 | $1,131.91 | | |
| ST2 | State School Part 2 | 0.8169543533 | $868,327 | $868,327 | $709.38 | | |
| SWHIDPRBD | P & R S Whidbey BOND | 0.0152817568 | $868,327 | $868,327 | $13.27 | | |
| SWHIDPRBD2 | P & R S Whidbey BOND2 | 0.0138911264 | $868,327 | $868,327 | $12.06 | | |
| SWHIDPRMT | P & R S Whidbey GEN | 0.2053334452 | $868,327 | $868,327 | $178.30 | | |
| | Total Tax Rate: | 6.6934522006 | | | | | |
| | | | | Taxes w/Current Exemptions: | $5,812.09 | | |
| | | | | Taxes w/o Exemptions: | $5,812.09 | | |
Improvement / Building
| Improvement #1: | RESIDENTIAL | State Code: | Y | 2345.0 sqft | Value: | $558,327 |
| Bathrooms: | 2.5 | Bedrooms: | 3 | | Ceiling: | DRYWALL PAINTED | Cooling: | HEAT PUMP/CONV/V | | Exterior Wall/Cover: | WOOD SIDING | Floor Covering: | HARDWOOD/CARP 20-80 | | Floor Structure: | WOOD W/SUBFLOOR | Foundation: | CONCRETE | | Interior Finish: | DRYWALL PAINT | Plumbing Fixture Cnt: | 13 | | Roof Slope: | 6" IN 12" | Roof Structure/Cover: | CJ ALUMINIUM HEAVY |
|
| | Type | Description | Class CD | Sub Class CD | Year Built | Area |
| | BAS | BASE/MAIN FLOOR | 4 | 0 | 2001 | 2345.0 |
| | OP4 | OPEN PORCH W/CEILING-ROOF | 4 | 0 | 2001 | 47.6 |
| | AGR | ATTACHED GARAGE | 4 | 0 | 2001 | 734.7 |
| | BGR | BASEMENT GARAGE | 4 | 0 | 2001 | 980.1 |
| | OWC | OPEN WOOD PORCH W/STEPS/ROOF/C | 4 | 0 | 2001 | 156.0 |
| | OWP | OPEN WOOD PORCH W/STEPS | 4 | 0 | 2001 | 168.0 |
Sketch
Property Image
Land
| 1 | 16 | AC (00.51-01.00) | 0.0000 | 0.00 | 0.00 | 0.00 | 1.00 | $310,000 | $0 |
Roll Value History
| 2026 | N/A | N/A | N/A | N/A | N/A |
| 2025 | $558,327 | $310,000 | $0 | $868,327 | $868,327 |
| 2024 | $564,878 | $270,000 | $0 | $834,878 | $834,878 |
| 2023 | $538,518 | $250,000 | $0 | $788,518 | $788,518 |
| 2022 | $493,346 | $210,000 | $0 | $703,346 | $703,346 |
| 2021 | $428,703 | $180,000 | $0 | $608,703 | $608,703 |
| 2020 | $417,770 | $140,000 | $0 | $557,770 | $557,770 |
| 2019 | $315,044 | $180,000 | $0 | $495,044 | $495,044 |
| 2018 | $315,968 | $155,000 | $0 | $470,968 | $470,968 |
| 2017 | $317,837 | $120,000 | $0 | $437,837 | $437,837 |
| 2016 | $321,532 | $85,000 | $0 | $406,532 | $406,532 |
| 2015 | $325,229 | $85,000 | $0 | $410,229 | $410,229 |
| 2014 | $328,924 | $85,000 | $0 | $413,924 | $413,924 |
| 2013 | $316,209 | $75,500 | $0 | $391,709 | $391,709 |
| 2012 | $319,807 | $75,500 | $0 | $395,307 | $395,307 |
| 2011 | $323,403 | $75,500 | $0 | $398,903 | $398,903 |
| 2010 | $334,760 | $85,800 | $0 | $420,560 | $420,560 |
| 2009 | $348,952 | $217,000 | $0 | $565,952 | $565,952 |
| 2008 | $349,321 | $217,500 | $0 | $566,821 | $566,821 |
| 2007 | $342,449 | $217,500 | $0 | $559,949 | $559,949 |
Deed and Sales History
| 1 | 04/25/2024 | WD | Warranty Deed | COLLYER, MICHAEL ALAN | KETTER, MARK L | | | $890,000.00 | 59789 | 4571806 |
| 2 | 07/08/2015 | WD | Warranty Deed | LADD, ROBERT S | COLLYER, MICHAEL ALAN | | | $440,000.00 | 20476 | 4382174 |
| 3 | 09/21/2001 | WD | Warranty Deed | CASA GROUP CORPORATION, | LADD, ROBERT S | | | $343,000.00 | 13668 | 20043673 |
| 4 | 05/23/2001 | WD | Warranty Deed | H, & H | CASA GROUP CORPORATION, | | | $80,000.00 | 11437 | 20030817 |
| 5 | 01/01/1900 | OTHER | Other - Misc. Documents | Unknown | H, & H | | | $0.00 | 33436 | 417867 |
Payout Agreement
| No payout information available.. |