Property
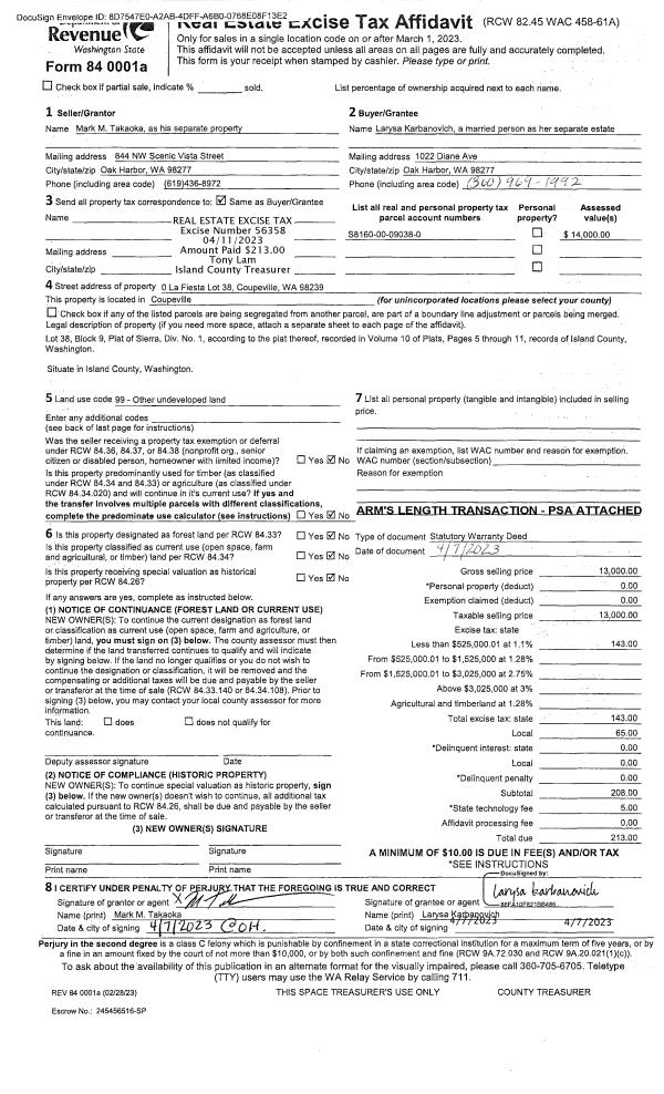
Account |
| Property ID: | 752475 | Abbreviated Legal Description: | 34 - IN GL 1 |
| Geographic ID: | R13436-450-1370 | Agent Code: | |
| Type: | Real | | |
| Tax Area: | 110 - APPRAISER-OH Schl Dist, outside OH, improved & 1 acre or less | Land Use Code | 11 |
| Open Space: | N | DFL | N |
| Historic Property: | N | Remodel Property: | N |
| Multi-Family Redevelopment: | N | | |
| Township: | 34 | Section: | 36 |
| Range: | R1 |
Location |
| Address: | 5141 BAYVIEW LN OAK HARBOR, WA 98277 | Mapsco: | |
| Neighborhood: | Cycle 6 | Map ID: | 279 |
| Neighborhood CD: | 6 |
Owner |
| Name: | ROBINSON, TIMOTHY K | Owner ID: | 184214 |
| Mailing Address: | LAURIE G HOLGATE 5141 BAYVIEW LN OAK HARBOR, WA 98277-7916 | % Ownership: | 100.0000000000% |
| | | Exemptions: | |
Taxes and Assessment Details
Values
| (+) Improvement Homesite Value: | + | $0 | |
| (+) Improvement Non-Homesite Value: | + | $216,301 | |
| (+) Land Homesite Value: | + | $0 | |
| (+) Land Non-Homesite Value: | + | $250,000 | |
| (+) Curr Use (HS): | + | $0 | $0 |
| (+) Curr Use (NHS): | + | $0 | $0 |
| | | -------------------------- | |
| (=) Market Value: | = | $466,301 | |
| (–) Productivity Loss: | – | $0 | |
| | | -------------------------- | |
| (=) Subtotal: | = | $466,301 | |
| (+) Senior Appraised Value: | + | $0 | |
| (+) Non-Senior Appraised Value: | + | $466,301 | |
| | | -------------------------- | |
| (=) Total Appraised Value: | = | $466,301 | |
| (–) Senior Exemption Loss: | – | $0 | |
| (–) Exemption Loss: | – | $0 | |
| | | -------------------------- | |
| (=) Taxable Value: | = | $466,301 | |
Taxing Jurisdiction
| Owner: | ROBINSON, TIMOTHY K | | |
| % Ownership: | 100.0000000000% | | |
| Total Value: | $466,301 | | |
| Tax Area: | 110 - APPRAISER-OH Schl Dist, outside OH, improved & 1 acre or less |
| CF | Conservation Futures | 0.0316035091 | $466,301 | $466,301 | $14.74 | | |
| CEM1 | Cemetery #1 | 0.0040320932 | $466,301 | $466,301 | $1.88 | | |
| FIRE2 | Fire & Rescue Dist #2 N Whidbey GEN | 0.5475949600 | $466,301 | $466,301 | $255.34 | | |
| HOBOND | Hospital BOND | 0.1910887512 | $466,301 | $466,301 | $89.10 | | |
| HOGEN | Hospital GEN | 0.3902502903 | $466,301 | $466,301 | $181.97 | | |
| CE | County Current Expense | 0.3708482477 | $466,301 | $466,301 | $172.93 | | |
| CR | County Roads | 0.4584763726 | $466,301 | $466,301 | $213.79 | | |
| ISLANDEMS | Hospital GEN (EMS) | 0.5000000000 | $466,301 | $466,301 | $233.15 | | |
| LIB | Library Sno-Isle GEN | 0.3153421757 | $466,301 | $466,301 | $147.04 | | |
| NWHIDPRMT | P & R N Whidbey GEN | 0.2004466701 | $466,301 | $466,301 | $93.47 | | |
| SCH201MO | School 201 Enrichment | 1.8559231640 | $466,301 | $466,301 | $865.42 | | |
| ST | State School | 1.3035497053 | $466,301 | $466,301 | $607.85 | | |
| ST2 | State School Part 2 | 0.8169543533 | $466,301 | $466,301 | $380.95 | | |
| | Total Tax Rate: | 6.9861102925 | | | | | |
| | | | | Taxes w/Current Exemptions: | $3,257.63 | | |
| | | | | Taxes w/o Exemptions: | $3,257.63 | | |
Improvement / Building
| Improvement #1: | RESIDENTIAL | State Code: | Y | 1258.4 sqft | Value: | $216,301 |
| Bathrooms: | 1 | Bedrooms: | 2 | | Ceiling: | DRYWALL PAINTED | Cooling: | HEAT PUMP/CONV/V | | Exterior Wall/Cover: | CONCRETE BLOCK | Floor Covering: | CERAMIC TILE/CPT 40-60 | | Floor Structure: | SLAB ON GRADE | Foundation: | SLAB/CONCRETE | | Interior Finish: | DRYWALL PAINT | Plumbing Fixture Cnt: | 6 | | Roof Slope: | FLAT | Roof Structure/Cover: | BEAM BUILT-UP ROCK |
|
| | Type | Description | Class CD | Sub Class CD | Year Built | Area |
| | BAS | BASE/MAIN FLOOR | 3 | 0 | 1954 | 1258.4 |
| | OWP | OPEN WOOD PORCH W/STEPS | 3 | 0 | 1954 | 113.2 |
| | DGR | DETACHED GARAGE | 3 | 0 | 1954 | 1728.0 |
Sketch
Property Image
Land
| 1 | 15 | SQ (12001-21780) | 0.0000 | 0.00 | 0.00 | 0.00 | 1.00 | $250,000 | $0 |
Roll Value History
| 2026 | N/A | N/A | N/A | N/A | N/A |
| 2025 | $216,301 | $250,000 | $0 | $466,301 | $466,301 |
| 2024 | $219,667 | $240,000 | $0 | $459,667 | $459,667 |
| 2023 | $223,034 | $240,000 | $0 | $463,034 | $463,034 |
| 2022 | $198,915 | $125,000 | $0 | $323,915 | $323,915 |
| 2021 | $166,649 | $95,000 | $0 | $261,649 | $261,649 |
| 2020 | $163,066 | $95,000 | $0 | $258,066 | $258,066 |
| 2019 | $117,505 | $125,000 | $0 | $242,505 | $242,505 |
| 2018 | $117,937 | $125,000 | $0 | $242,937 | $242,937 |
| 2017 | $118,797 | $125,000 | $0 | $243,797 | $243,797 |
| 2016 | $100,754 | $100,000 | $0 | $200,754 | $200,754 |
| 2015 | $101,784 | $85,000 | $0 | $186,784 | $186,784 |
| 2014 | $102,815 | $75,000 | $0 | $177,815 | $177,815 |
| 2013 | $110,954 | $85,000 | $0 | $195,954 | $195,954 |
| 2012 | $112,071 | $85,000 | $0 | $197,071 | $197,071 |
| 2011 | $113,188 | $100,000 | $0 | $213,188 | $213,188 |
| 2010 | $114,445 | $100,000 | $0 | $214,445 | $214,445 |
| 2009 | $118,607 | $119,000 | $0 | $237,607 | $237,607 |
| 2008 | $120,801 | $119,000 | $0 | $239,801 | $239,801 |
| 2007 | $122,995 | $119,000 | $0 | $241,995 | $241,995 |
Deed and Sales History
| 1 | 05/22/2012 | WD | Warranty Deed | ROBINSON, TIMOTHY K | ROBINSON, TIMOTHY K | | | $0.00 | 8111 | 4318275 |
| 2 | 10/11/2000 | WD | Warranty Deed | GLEFFE, LEWIS A | ROBINSON, TIMOTHY K | | | $75,000.00 | 4000 | 20018353 |
| 3 | 01/01/1900 | OTHER | Other - Misc. Documents | Unknown | GLEFFE, LEWIS A | | | $0.00 | 0 | 0 |
Payout Agreement
| No payout information available.. |