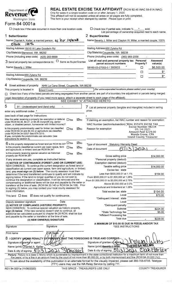
Property
Account |
| Property ID: | 752581 | Abbreviated Legal Description: | SANDY HOOK TERR LOT 4 |
| Geographic ID: | S8070-00-00004-0 | Agent Code: | |
| Type: | Real | | |
| Tax Area: | 710 - APPRAISER-S Whid Schl Dist, outside Langley, improved & 1 acre or less | Land Use Code | 11 |
| Open Space: | N | DFL | N |
| Historic Property: | N | Remodel Property: | N |
| Multi-Family Redevelopment: | N | | |
| Township: | | Section: | |
| Range: | |
Location |
| Address: | 8240 SANDY HOOK DR CLINTON, WA 98236 | Mapsco: | |
| Neighborhood: | Cycle 4 | Map ID: | 708 |
| Neighborhood CD: | 4 |
Owner |
| Name: | ANDERSON, WADE | Owner ID: | 192713 |
| Mailing Address: | CHERRI ANDERSON 8240 SANDY HOOK DR CLINTON, WA 98236-8938 | % Ownership: | 100.0000000000% |
| | | Exemptions: | |
Taxes and Assessment Details
Values
| (+) Improvement Homesite Value: | + | $0 | |
| (+) Improvement Non-Homesite Value: | + | $242,844 | |
| (+) Land Homesite Value: | + | $0 | |
| (+) Land Non-Homesite Value: | + | $360,000 | |
| (+) Curr Use (HS): | + | $0 | $0 |
| (+) Curr Use (NHS): | + | $0 | $0 |
| | | -------------------------- | |
| (=) Market Value: | = | $602,844 | |
| (–) Productivity Loss: | – | $0 | |
| | | -------------------------- | |
| (=) Subtotal: | = | $602,844 | |
| (+) Senior Appraised Value: | + | $0 | |
| (+) Non-Senior Appraised Value: | + | $602,844 | |
| | | -------------------------- | |
| (=) Total Appraised Value: | = | $602,844 | |
| (–) Senior Exemption Loss: | – | $0 | |
| (–) Exemption Loss: | – | $0 | |
| | | -------------------------- | |
| (=) Taxable Value: | = | $602,844 | |
Taxing Jurisdiction
| Owner: | ANDERSON, WADE | | |
| % Ownership: | 100.0000000000% | | |
| Total Value: | $602,844 | | |
| Tax Area: | 710 - APPRAISER-S Whid Schl Dist, outside Langley, improved & 1 acre or less |
| CF | Conservation Futures | 0.0316035091 | $602,844 | $602,844 | $19.05 | | |
| FIRE3 | Fire & Rescue Dist #3 S Whidbey GEN | 1.2004855531 | $602,844 | $602,844 | $723.71 | | |
| HOBOND | Hospital BOND | 0.1910887512 | $602,844 | $602,844 | $115.20 | | |
| HOGEN | Hospital GEN | 0.3902502903 | $602,844 | $602,844 | $235.26 | | |
| CE | County Current Expense | 0.3708482477 | $602,844 | $602,844 | $223.56 | | |
| CR | County Roads | 0.4584763726 | $602,844 | $602,844 | $276.39 | | |
| ISLANDEMS | Hospital GEN (EMS) | 0.5000000000 | $602,844 | $602,844 | $301.42 | | |
| LIB | Library Sno-Isle GEN | 0.3153421757 | $602,844 | $602,844 | $190.10 | | |
| PORTWHID | Port of S Whidbey GEN | 0.1094540357 | $602,844 | $602,844 | $65.98 | | |
| SCH206BOND | School 206 BOND | 0.3161759235 | $602,844 | $602,844 | $190.60 | | |
| SCH206MO | School 206 Enrichment | 0.4547169547 | $602,844 | $602,844 | $274.12 | | |
| ST | State School | 1.3035497053 | $602,844 | $602,844 | $785.84 | | |
| ST2 | State School Part 2 | 0.8169543533 | $602,844 | $602,844 | $492.50 | | |
| SWHIDPRBD | P & R S Whidbey BOND | 0.0152817568 | $602,844 | $602,844 | $9.21 | | |
| SWHIDPRBD2 | P & R S Whidbey BOND2 | 0.0138911264 | $602,844 | $602,844 | $8.37 | | |
| SWHIDPRMT | P & R S Whidbey GEN | 0.2053334452 | $602,844 | $602,844 | $123.78 | | |
| | Total Tax Rate: | 6.6934522006 | | | | | |
| | | | | Taxes w/Current Exemptions: | $4,035.09 | | |
| | | | | Taxes w/o Exemptions: | $4,035.09 | | |
Improvement / Building
| Improvement #1: | RESIDENTIAL | State Code: | Y | 1458.1 sqft | Value: | $242,844 |
| Bathrooms: | 2 | Bedrooms: | 3 | | Ceiling: | DRYWALL PAINTED | Cooling: | HEAT PUMP/CONV/V | | Exterior Wall/Cover: | PLY/HARDBOARD T-111 | Floor Covering: | SOFTWOOD 100% | | Floor Structure: | WOOD W/SUBFLOOR | Foundation: | CONCRETE | | Interior Finish: | DRYWALL PAINT | Plumbing Fixture Cnt: | 9 | | Roof Slope: | 3" IN 12" | Roof Structure/Cover: | STEEL TERNE |
|
| | Type | Description | Class CD | Sub Class CD | Year Built | Area |
| | BAS | BASE/MAIN FLOOR | 3 | 0 | 1978 | 1458.1 |
| | AGR | ATTACHED GARAGE | 3 | 0 | 1978 | 462.0 |
| | UTY | STORAGE/UTILITY | 3 | 0 | 1978 | 26.6 |
| | OWP | OPEN WOOD PORCH W/STEPS | 3 | 0 | 1978 | 818.5 |
| | OWR | OPEN WOOD PORCH W/STEPS/ROOF | 3 | 0 | 1978 | 108.0 |
| | CPD | OPEN CARPORT DIRT FLOOR | 3 | 0 | 1978 | 220.0 |
| | UTY | STORAGE/UTILITY | 3 | 0 | 1978 | 192.0 |
Sketch
| No sketches available for this property. |
Property Image
Land
| 1 | 15 | SQ (12001-21780) | 0.0000 | 0.00 | 0.00 | 0.00 | 1.00 | $360,000 | $0 |
Roll Value History
| 2026 | N/A | N/A | N/A | N/A | N/A |
| 2025 | $242,844 | $360,000 | $0 | $602,844 | $602,844 |
| 2024 | $246,319 | $330,000 | $0 | $576,319 | $576,319 |
| 2023 | $250,274 | $320,000 | $0 | $570,274 | $570,274 |
| 2022 | $224,336 | $280,000 | $0 | $504,336 | $504,336 |
| 2021 | $198,104 | $220,000 | $0 | $418,104 | $418,104 |
| 2020 | $148,271 | $180,000 | $0 | $328,271 | $328,271 |
| 2019 | $107,537 | $210,000 | $0 | $317,537 | $317,537 |
| 2018 | $107,976 | $200,000 | $0 | $307,976 | $307,976 |
| 2017 | $108,836 | $170,000 | $0 | $278,836 | $278,836 |
| 2016 | $110,591 | $145,000 | $0 | $255,591 | $255,591 |
| 2015 | $112,349 | $140,000 | $0 | $252,349 | $252,349 |
| 2014 | $95,457 | $200,000 | $0 | $295,457 | $295,457 |
| 2013 | $96,926 | $200,000 | $0 | $296,926 | $296,926 |
| 2012 | $98,394 | $136,000 | $0 | $234,394 | $234,394 |
| 2011 | $99,861 | $160,000 | $0 | $259,861 | $259,861 |
| 2010 | $108,011 | $160,000 | $0 | $268,011 | $268,011 |
| 2009 | $112,825 | $200,000 | $0 | $312,825 | $312,825 |
| 2008 | $114,296 | $215,000 | $0 | $329,296 | $329,296 |
| 2007 | $115,805 | $215,000 | $0 | $330,805 | $330,805 |
Deed and Sales History
| 1 | 05/11/2005 | WD | Warranty Deed | STANCIK, THOMAS C | ANDERSON, WADE | | | $140,000.00 | 52029 | 4133694 |
| 2 | 03/20/2003 | QCD | Quit Claim Deed | STANCIK, THOMAS C | STANCIK, THOMAS C | | | $0.00 | 51919 | 4133079 |
| 3 | 03/01/1990 | QCD | Quit Claim Deed | STANCIK, THOMAS C | STANCIK, THOMAS C | | | $0.00 | 2807 | 90009174 |
| 4 | 01/01/1900 | OTHER | Other - Misc. Documents | Unknown | STANCIK, THOMAS C | | | $0.00 | 0 | 0 |
Payout Agreement
| No payout information available.. |