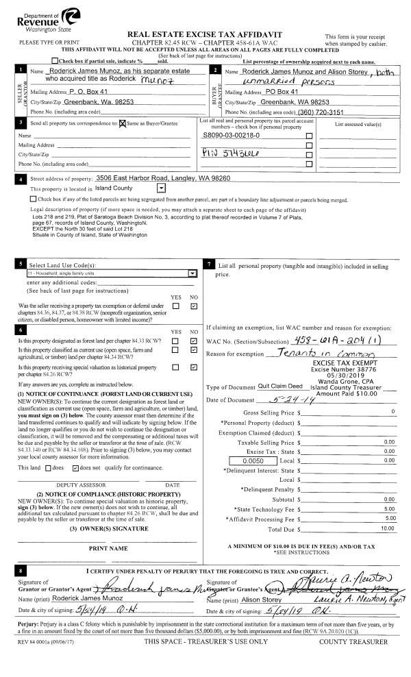
Property
Account |
| Property ID: | 752714 | Abbreviated Legal Description: | 11.4100 Acres ins Section 13s Township 31s Range R2s LOT A LOT COMB AF# 4463600;s |
| Geographic ID: | R23113-086-4200 | Agent Code: | |
| Type: | Real | | |
| Tax Area: | 512 - APPRAISER-Stan/Cam Schl Dist, improved, greater than 1 acre | Land Use Code | 11 |
| Open Space: | N | DFL | N |
| Historic Property: | N | Remodel Property: | N |
| Multi-Family Redevelopment: | N | | |
| Township: | 31 | Section: | 13 |
| Range: | R2 |
Location |
| Address: | 1265 LAWSON RD CAMANO ISLAND, WA 98282 | Mapsco: | |
| Neighborhood: | Cycle 5 | Map ID: | 478 |
| Neighborhood CD: | 5 |
Owner |
| Name: | DONALD DACHENHAUSEN III | Owner ID: | 289937 |
| Mailing Address: | DAWN MONCALIERI 22624 8TH DR SE BOTHELL, WA 98021 | % Ownership: | 100.0000000000% |
| | | Exemptions: | |
Taxes and Assessment Details
Values
| (+) Improvement Homesite Value: | + | $0 | |
| (+) Improvement Non-Homesite Value: | + | $398,076 | |
| (+) Land Homesite Value: | + | $0 | |
| (+) Land Non-Homesite Value: | + | $370,000 | |
| (+) Curr Use (HS): | + | $0 | $0 |
| (+) Curr Use (NHS): | + | $0 | $0 |
| | | -------------------------- | |
| (=) Market Value: | = | $768,076 | |
| (–) Productivity Loss: | – | $0 | |
| | | -------------------------- | |
| (=) Subtotal: | = | $768,076 | |
| (+) Senior Appraised Value: | + | $0 | |
| (+) Non-Senior Appraised Value: | + | $768,076 | |
| | | -------------------------- | |
| (=) Total Appraised Value: | = | $768,076 | |
| (–) Senior Exemption Loss: | – | $0 | |
| (–) Exemption Loss: | – | $0 | |
| | | -------------------------- | |
| (=) Taxable Value: | = | $768,076 | |
Taxing Jurisdiction
| Owner: | DONALD DACHENHAUSEN III | | |
| % Ownership: | 100.0000000000% | | |
| Total Value: | $768,076 | | |
| Tax Area: | 512 - APPRAISER-Stan/Cam Schl Dist, improved, greater than 1 acre |
| CF | Conservation Futures | 0.0316035091 | $768,076 | $768,076 | $24.27 | | |
| EMS1 | Fire & Rescue Dist #1 Camano GEN (EMS) | 0.3677864386 | $768,076 | $768,076 | $282.49 | | |
| FIRE1 | Fire & Rescue Dist #1 Camano GEN | 1.2502910536 | $768,076 | $768,076 | $960.32 | | |
| FIRE1BOND | Fire & Rescue Dist #1 Camano BOND | 0.1570001679 | $768,076 | $768,076 | $120.59 | | |
| CE | County Current Expense | 0.3708482477 | $768,076 | $768,076 | $284.84 | | |
| CR | County Roads | 0.4584763726 | $768,076 | $768,076 | $352.14 | | |
| LCIB | Library Sno-Isle BOND (Camano Island) | 0.0396325772 | $768,076 | $768,076 | $30.44 | | |
| LIB | Library Sno-Isle GEN | 0.3153421757 | $768,076 | $768,076 | $242.21 | | |
| SCH205_401 | School 205-401 Enrichment | 1.2698420524 | $768,076 | $768,076 | $975.34 | | |
| SCH205BOND | School 205-401 BOND | 0.9396497583 | $768,076 | $768,076 | $721.72 | | |
| ST | State School | 1.3035497053 | $768,076 | $768,076 | $1,001.23 | | |
| ST2 | State School Part 2 | 0.8169543533 | $768,076 | $768,076 | $627.48 | | |
| | Total Tax Rate: | 7.3209764117 | | | | | |
| | | | | Taxes w/Current Exemptions: | $5,623.07 | | |
| | | | | Taxes w/o Exemptions: | $5,623.07 | | |
Improvement / Building
| Improvement #1: | RESIDENTIAL | State Code: | Y | 1866.0 sqft | Value: | $398,076 |
| Bathrooms: | 2 | Bedrooms: | 2 | | Ceiling: | DRYWALL PAINTED | Exterior Wall/Cover: | VINYL | | Floor Covering: | CARPET/VINYL 80-20 | Floor Structure: | WOOD W/SUBFLOOR | | Foundation: | CONCRETE | Heating: | FHA GAS | | Interior Finish: | DRYWALL PAINT | Plumbing Fixture Cnt: | 10 | | Roof Slope: | 6" IN 12" | Roof Structure/Cover: | CJ ASPHALT |
|
| | Type | Description | Class CD | Sub Class CD | Year Built | Area |
| | BAS | BASE/MAIN FLOOR | 4 | 0 | 1997 | 1866.0 |
| | OP4 | OPEN PORCH W/CEILING-ROOF | 4 | 0 | 1997 | 174.5 |
| | AGR | ATTACHED GARAGE | 4 | 0 | 1997 | 780.0 |
| | OWP | OPEN WOOD PORCH W/STEPS | 4 | 0 | 1997 | 307.6 |
| | OCP | OPEN CARPORT | 4 | 0 | 1997 | 480.0 |
Sketch
Property Image
Land
| 1 | 35 | AC (10.00-30.99) | 11.4100 | 497019.60 | 0.00 | 0.00 | 1.00 | $370,000 | $0 |
Roll Value History
| 2026 | N/A | N/A | N/A | N/A | N/A |
| 2025 | $398,076 | $370,000 | $0 | $768,076 | $768,076 |
| 2024 | $402,976 | $340,000 | $0 | $742,976 | $742,976 |
| 2023 | $407,876 | $390,000 | $0 | $797,876 | $797,876 |
| 2022 | $373,775 | $330,000 | $0 | $703,775 | $703,775 |
| 2021 | $313,436 | $400,000 | $0 | $713,436 | $713,436 |
| 2020 | $305,723 | $400,000 | $0 | $705,723 | $705,723 |
| 2019 | $225,894 | $260,000 | $0 | $485,894 | $485,894 |
| 2018 | $226,571 | $190,000 | $0 | $416,571 | $416,571 |
| 2017 | $227,920 | $160,000 | $0 | $387,920 | $387,920 |
| 2016 | $230,634 | $140,000 | $0 | $370,634 | $370,634 |
| 2015 | $233,417 | $126,600 | $0 | $360,017 | $360,017 |
| 2014 | $236,206 | $126,600 | $0 | $362,806 | $362,806 |
| 2013 | $238,996 | $126,600 | $0 | $365,596 | $365,596 |
| 2012 | $241,784 | $126,600 | $0 | $368,384 | $368,384 |
| 2011 | $244,573 | $158,250 | $0 | $402,823 | $402,823 |
| 2010 | $252,640 | $158,250 | $0 | $410,890 | $410,890 |
| 2009 | $263,323 | $232,100 | $0 | $495,423 | $495,423 |
| 2008 | $266,464 | $172,777 | $0 | $439,241 | $439,241 |
| 2007 | $269,592 | $172,777 | $0 | $442,369 | $442,369 |
Deed and Sales History
| 1 | 05/21/2019 | REC | Real Estate Contract | GEIGER, KYLE W | DONALD DACHENHAUSEN III | | | $409,410.00 | 38749 | 4513107 |
| 2 | 07/19/1999 | WD | Warranty Deed | GILBERTSON, ALLEN L/JOAN | GEIGER, KYLE W | | | $218,520.00 | 92888 | 99017097 |
| 3 | 06/01/1997 | SEG | DNU - Segregation | GILBERTSON, ALLEN L | GILBERTSON, ALLEN L | | | $0.00 | 67431 | 0 |
| 4 | 01/01/1900 | OTHER | Other - Misc. Documents | Unknown | GILBERTSON, ALLEN L | | | $0.00 | 67424 | 97004284 |
| 5 | 01/01/1900 | OTHER | Other - Misc. Documents | GILBERTSON, ALLEN L | GILBERTSON, ALLEN L/JOAN | | | $0.00 | 0 | 0 |
Payout Agreement
| No payout information available.. |