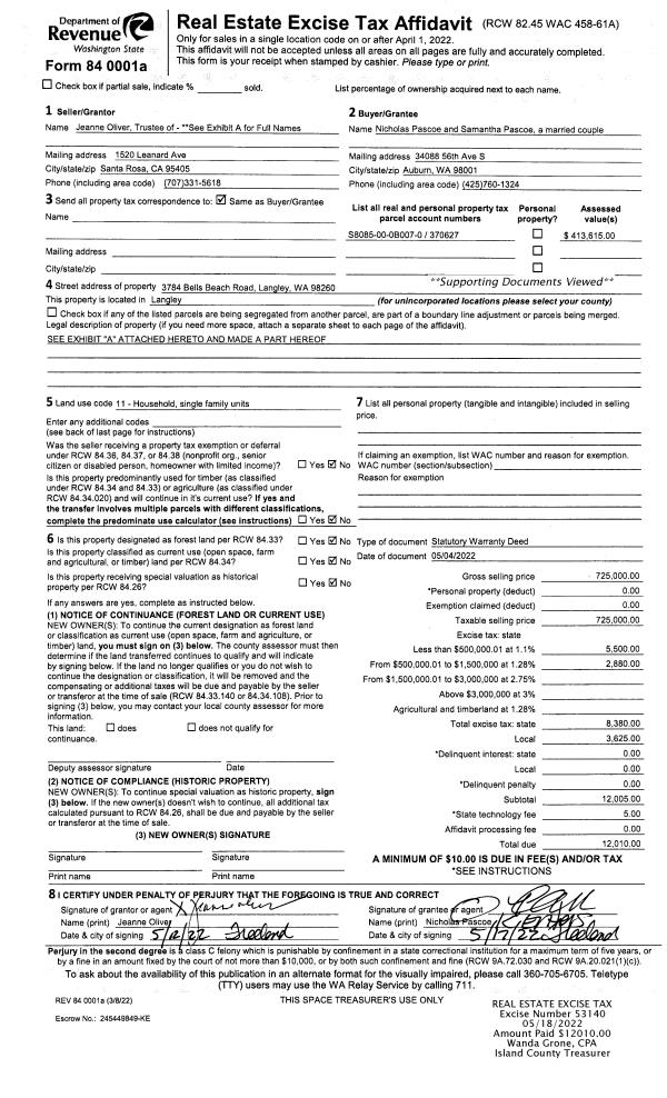
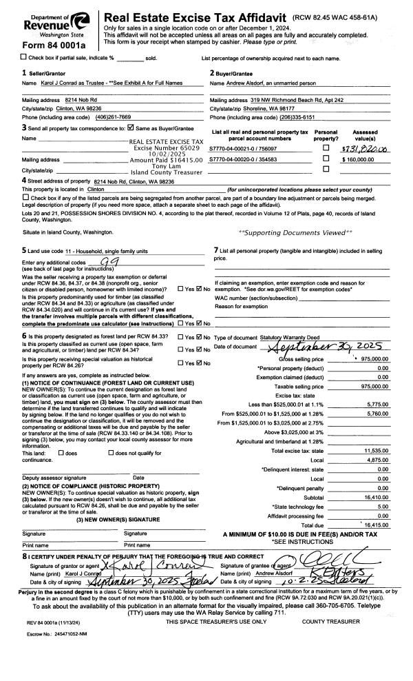
Property
Account |
| Property ID: | 752974 | Abbreviated Legal Description: | LOT 2 SP 91-95.33130.521-2410 V3 SP P98 AF#96012779 |
| Geographic ID: | R33130-521-2390 | Agent Code: | |
| Type: | Real | | |
| Tax Area: | 510 - APPRAISER-Stan/Cam Schl Dist, improved & 1 acre or less | Land Use Code | 11 |
| Open Space: | N | DFL | N |
| Historic Property: | N | Remodel Property: | N |
| Multi-Family Redevelopment: | N | | |
| Township: | 31 | Section: | 30 |
| Range: | R3 |
Location |
| Address: | 153 MYST PLACE CAMANO ISLAND, WA 98282 | Mapsco: | |
| Neighborhood: | Cycle 5 | Map ID: | 938 |
| Neighborhood CD: | 5 |
Owner |
| Name: | CAVIT, PATRICIA ANN | Owner ID: | 315103 |
| Mailing Address: | PO BOX 427 SILVANA, WA 98287 | % Ownership: | 100.0000000000% |
| | | Exemptions: | |
Taxes and Assessment Details
Values
| (+) Improvement Homesite Value: | + | $0 | |
| (+) Improvement Non-Homesite Value: | + | $333,465 | |
| (+) Land Homesite Value: | + | $0 | |
| (+) Land Non-Homesite Value: | + | $250,000 | |
| (+) Curr Use (HS): | + | $0 | $0 |
| (+) Curr Use (NHS): | + | $0 | $0 |
| | | -------------------------- | |
| (=) Market Value: | = | $583,465 | |
| (–) Productivity Loss: | – | $0 | |
| | | -------------------------- | |
| (=) Subtotal: | = | $583,465 | |
| (+) Senior Appraised Value: | + | $0 | |
| (+) Non-Senior Appraised Value: | + | $583,465 | |
| | | -------------------------- | |
| (=) Total Appraised Value: | = | $583,465 | |
| (–) Senior Exemption Loss: | – | $0 | |
| (–) Exemption Loss: | – | $0 | |
| | | -------------------------- | |
| (=) Taxable Value: | = | $583,465 | |
Taxing Jurisdiction
| Owner: | CAVIT, PATRICIA ANN | | |
| % Ownership: | 100.0000000000% | | |
| Total Value: | $583,465 | | |
| Tax Area: | 510 - APPRAISER-Stan/Cam Schl Dist, improved & 1 acre or less |
| CF | Conservation Futures | 0.0316035091 | $583,465 | $583,465 | $18.44 | | |
| EMS1 | Fire & Rescue Dist #1 Camano GEN (EMS) | 0.3677864386 | $583,465 | $583,465 | $214.59 | | |
| FIRE1 | Fire & Rescue Dist #1 Camano GEN | 1.2502910536 | $583,465 | $583,465 | $729.50 | | |
| FIRE1BOND | Fire & Rescue Dist #1 Camano BOND | 0.1570001679 | $583,465 | $583,465 | $91.60 | | |
| CE | County Current Expense | 0.3708482477 | $583,465 | $583,465 | $216.38 | | |
| CR | County Roads | 0.4584763726 | $583,465 | $583,465 | $267.50 | | |
| LCIB | Library Sno-Isle BOND (Camano Island) | 0.0396325772 | $583,465 | $583,465 | $23.12 | | |
| LIB | Library Sno-Isle GEN | 0.3153421757 | $583,465 | $583,465 | $183.99 | | |
| SCH205_401 | School 205-401 Enrichment | 1.2698420524 | $583,465 | $583,465 | $740.91 | | |
| SCH205BOND | School 205-401 BOND | 0.9396497583 | $583,465 | $583,465 | $548.25 | | |
| ST | State School | 1.3035497053 | $583,465 | $583,465 | $760.58 | | |
| ST2 | State School Part 2 | 0.8169543533 | $583,465 | $583,465 | $476.66 | | |
| | Total Tax Rate: | 7.3209764117 | | | | | |
| | | | | Taxes w/Current Exemptions: | $4,271.52 | | |
| | | | | Taxes w/o Exemptions: | $4,271.52 | | |
Improvement / Building
| Improvement #1: | RESIDENTIAL | State Code: | Y | 1700.0 sqft | Value: | $333,465 |
| Bathrooms: | 2.5 | Bedrooms: | 3 | | Ceiling: | DRYWALL PAINTED | Exterior Wall/Cover: | WOOD SIDING | | Floor Covering: | HARDWOOD/CARP 20-80 | Floor Structure: | WOOD W/SUBFLOOR | | Foundation: | CONCRETE | Heating: | FHA GAS | | Interior Finish: | DRYWALL PAINT | Plumbing Fixture Cnt: | 12 | | Roof Slope: | 6" IN 12" | Roof Structure/Cover: | CJ ASPHALT |
|
| | Type | Description | Class CD | Sub Class CD | Year Built | Area |
| | BAS | BASE/MAIN FLOOR | 3 | 0 | 1998 | 1228.0 |
| | AGR | ATTACHED GARAGE | 3 | 0 | 1998 | 624.0 |
| | OCP | OPEN CARPORT | 3 | 0 | 1998 | 384.0 |
| | UPS | UPPER STORY | 3 | 0 | 1998 | 472.0 |
| | OWP | OPEN WOOD PORCH W/STEPS | 3 | 0 | 1998 | 27.0 |
| | OWC | OPEN WOOD PORCH W/STEPS/ROOF/C | 3 | 0 | 1998 | 160.0 |
| | OWC | OPEN WOOD PORCH W/STEPS/ROOF/C | 3 | 0 | 1998 | 333.0 |
Sketch
Property Image
Land
| 1 | 16 | AC (00.51-01.00) | 0.0000 | 0.00 | 0.00 | 0.00 | 1.00 | $250,000 | $0 |
Roll Value History
| 2026 | N/A | N/A | N/A | N/A | N/A |
| 2025 | $333,465 | $250,000 | $0 | $583,465 | $583,465 |
| 2024 | $337,784 | $230,000 | $0 | $567,784 | $567,784 |
| 2023 | $342,100 | $230,000 | $0 | $572,100 | $572,100 |
| 2022 | $313,686 | $210,000 | $0 | $523,686 | $523,686 |
| 2021 | $269,367 | $150,000 | $0 | $419,367 | $419,367 |
| 2020 | $262,335 | $120,000 | $0 | $382,335 | $382,335 |
| 2019 | $190,882 | $160,000 | $0 | $350,882 | $350,882 |
| 2018 | $191,471 | $120,000 | $0 | $311,471 | $311,471 |
| 2017 | $192,646 | $100,000 | $0 | $292,646 | $292,646 |
| 2016 | $194,994 | $80,000 | $0 | $274,994 | $274,994 |
| 2015 | $212,988 | $60,000 | $0 | $272,988 | $272,988 |
| 2014 | $215,506 | $60,000 | $0 | $275,506 | $275,506 |
| 2013 | $218,021 | $65,000 | $0 | $283,021 | $283,021 |
| 2012 | $220,541 | $65,000 | $0 | $285,541 | $285,541 |
| 2011 | $223,058 | $90,000 | $0 | $313,058 | $313,058 |
| 2010 | $233,664 | $90,000 | $0 | $323,664 | $323,664 |
| 2009 | $242,045 | $90,000 | $0 | $332,045 | $332,045 |
| 2008 | $245,464 | $90,000 | $0 | $335,464 | $335,464 |
| 2007 | $248,823 | $90,000 | $0 | $338,823 | $338,823 |
Deed and Sales History
| 1 | 04/27/2022 | TOD | Transfer On Death Deed | HOHMAN, PAMELA J | CAVIT, PATRICIA ANN | | | $0.00 | 62295 | 4544802 |
| 2 | 04/05/2012 | WD | Warranty Deed | GROUTAGE, DALE ANN L | HOHMAN, PAMELA J | | | $289,000.00 | 7326 | 4313206 |
| 3 | 09/23/1998 | WD | Warranty Deed | TOSHNER ET AL, BRIAN D | GROUTAGE, DALE ANN L | | | $197,625.00 | 83885 | 98020939 |
| 4 | 06/01/1998 | QCD | Quit Claim Deed | TOSHNER, BRIAN D | TOSHNER ET AL, BRIAN D | | | $0.00 | 82127 | 98011104 |
| 5 | 01/01/1900 | OTHER | Other - Misc. Documents | Unknown | TOSHNER, BRIAN D | | | $0.00 | 40942 | 94006186 |
Payout Agreement
| No payout information available.. |