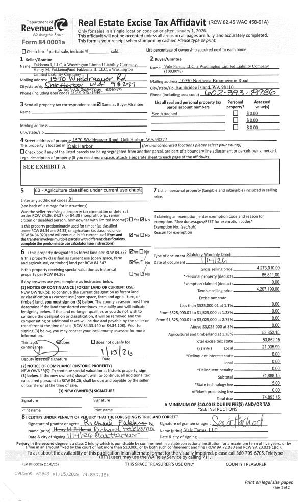
Property
Account |
| Property ID: | 753241 | Abbreviated Legal Description: | LOT 1 SP 109-96.13103.430-3440 V3 SP P138 AF#97002968 |
| Geographic ID: | R13103-422-3360 | Agent Code: | |
| Type: | Real | | |
| Tax Area: | 312 - APPRAISER-Cpvl Schl Dist, outside Cpvl, improved, greater than 1 acre | Land Use Code | 11 |
| Open Space: | N | DFL | N |
| Historic Property: | N | Remodel Property: | N |
| Multi-Family Redevelopment: | N | | |
| Township: | 31 | Section: | 03 |
| Range: | R1 |
Location |
| Address: | 965 W TERRY RD COUPEVILLE, WA 98239 | Mapsco: | |
| Neighborhood: | Cycle 2 | Map ID: | 28 |
| Neighborhood CD: | 2 |
Owner |
| Name: | LIBBEY, DALE A | Owner ID: | 5818 |
| Mailing Address: | BOX 49 COUPEVILLE, WA 98239 | % Ownership: | 100.0000000000% |
| | | Exemptions: | |
Taxes and Assessment Details
Values
| (+) Improvement Homesite Value: | + | $0 | |
| (+) Improvement Non-Homesite Value: | + | $433,787 | |
| (+) Land Homesite Value: | + | $0 | |
| (+) Land Non-Homesite Value: | + | $340,689 | |
| (+) Curr Use (HS): | + | $0 | $0 |
| (+) Curr Use (NHS): | + | $0 | $0 |
| | | -------------------------- | |
| (=) Market Value: | = | $774,476 | |
| (–) Productivity Loss: | – | $0 | |
| | | -------------------------- | |
| (=) Subtotal: | = | $774,476 | |
| (+) Senior Appraised Value: | + | $0 | |
| (+) Non-Senior Appraised Value: | + | $774,476 | |
| | | -------------------------- | |
| (=) Total Appraised Value: | = | $774,476 | |
| (–) Senior Exemption Loss: | – | $0 | |
| (–) Exemption Loss: | – | $0 | |
| | | -------------------------- | |
| (=) Taxable Value: | = | $774,476 | |
Taxing Jurisdiction
| Owner: | LIBBEY, DALE A | | |
| % Ownership: | 100.0000000000% | | |
| Total Value: | $774,476 | | |
| Tax Area: | 312 - APPRAISER-Cpvl Schl Dist, outside Cpvl, improved, greater than 1 acre |
| CF | Conservation Futures | 0.0316035091 | $774,476 | $774,476 | $24.48 | | |
| CEM2 | Cemetery #2 | 0.0095056933 | $774,476 | $774,476 | $7.36 | | |
| FIRE5 | Fire & Rescue Dist #5 C Whidbey GEN | 1.2008080668 | $774,476 | $774,476 | $930.00 | | |
| FIRE5BOND | Fire & Rescue Dist #5 C Whidbey BOND | 0.1400090713 | $774,476 | $774,476 | $108.43 | | |
| HOBOND | Hospital BOND | 0.1910887512 | $774,476 | $774,476 | $147.99 | | |
| HOGEN | Hospital GEN | 0.3902502903 | $774,476 | $774,476 | $302.24 | | |
| CE | County Current Expense | 0.3708482477 | $774,476 | $774,476 | $287.21 | | |
| CR | County Roads | 0.4584763726 | $774,476 | $774,476 | $355.08 | | |
| ISLANDEMS | Hospital GEN (EMS) | 0.5000000000 | $774,476 | $774,476 | $387.24 | | |
| LIB | Library Sno-Isle GEN | 0.3153421757 | $774,476 | $774,476 | $244.22 | | |
| LIBCAP | Library Sno-Isle BOND (Cap Fac Imp Area) | 0.0543427938 | $774,476 | $774,476 | $42.09 | | |
| POCOUP | Port of Coupeville GEN | 0.1093371703 | $774,476 | $774,476 | $84.68 | | |
| POCOUPIDD | Port of Coupeville IDD | 0.3409740022 | $774,476 | $774,476 | $264.08 | | |
| COUPSDTECH | School 204 CP (TECH) | 0.7545480007 | $774,476 | $774,476 | $584.38 | | |
| SCH204MO | School 204 Enrichment | 0.6716186034 | $774,476 | $774,476 | $520.15 | | |
| ST | State School | 1.3035497053 | $774,476 | $774,476 | $1,009.57 | | |
| ST2 | State School Part 2 | 0.8169543533 | $774,476 | $774,476 | $632.71 | | |
| | Total Tax Rate: | 7.6592568070 | | | | | |
| | | | | Taxes w/Current Exemptions: | $5,931.91 | | |
| | | | | Taxes w/o Exemptions: | $5,931.91 | | |
Improvement / Building
| Improvement #1: | RESIDENTIAL | State Code: | Y | 2824.0 sqft | Value: | $433,787 |
| Bathrooms: | 2 | Bedrooms: | 3 | | Ceiling: | DRYWALL PAINTED | Exterior Wall/Cover: | WOOD SIDING | | Floor Covering: | CARPET/VINYL 60-40 | Floor Structure: | WOOD W/SUBFLOOR | | Foundation: | CONCRETE | Heating: | FHA ELECTRIC | | Interior Finish: | DRYWALL PAINT | Plumbing Fixture Cnt: | 10 | | Roof Slope: | 4" IN 12" | Roof Structure/Cover: | STEEL TERNE |
|
| | Type | Description | Class CD | Sub Class CD | Year Built | Area |
| | BAS | BASE/MAIN FLOOR | 3 | 0 | 1984 | 2212.0 |
| | AGR | ATTACHED GARAGE | 3 | 0 | 1984 | 660.0 |
| | UPS | UPPER STORY | 3 | 0 | 1984 | 612.0 |
| | BAW | BALCONY WOOD RAIL | 3 | 0 | 1984 | 150.0 |
| | OWP | OPEN WOOD PORCH W/STEPS | 3 | 0 | 1984 | 216.0 |
| | OWC | OPEN WOOD PORCH W/STEPS/ROOF/C | 3 | 0 | 1984 | 20.0 |
| | CPD | OPEN CARPORT DIRT FLOOR | 3 | 0 | 1984 | 352.0 |
| | CPD | OPEN CARPORT DIRT FLOOR | 3 | 0 | 1984 | 336.0 |
| | DGR | DETACHED GARAGE | 3 | 0 | 1984 | 616.0 |
Sketch
Property Image
Land
| 1 | HS | HOMESITE | 1.0000 | 43560.00 | 0.00 | 0.00 | 1.00 | $220,000 | $0 |
| 2 | 91 | UNDEVELOPED LAND-METES AND BOUNDS | 4.1700 | 181645.20 | 0.00 | 0.00 | 1.00 | $120,689 | $0 |
Roll Value History
| 2026 | N/A | N/A | N/A | N/A | N/A |
| 2025 | $433,787 | $340,689 | $0 | $774,476 | $774,476 |
| 2024 | $414,455 | $300,000 | $0 | $714,455 | $714,455 |
| 2023 | $420,034 | $280,000 | $0 | $700,034 | $700,034 |
| 2022 | $385,413 | $260,000 | $0 | $645,413 | $645,413 |
| 2021 | $339,527 | $170,000 | $0 | $509,527 | $509,527 |
| 2020 | $332,357 | $160,000 | $0 | $492,357 | $492,357 |
| 2019 | $266,154 | $230,000 | $0 | $496,154 | $496,154 |
| 2018 | $251,337 | $200,000 | $0 | $451,337 | $451,337 |
| 2017 | $252,897 | $200,000 | $0 | $452,897 | $452,897 |
| 2016 | $256,015 | $150,000 | $0 | $406,015 | $406,015 |
| 2015 | $259,132 | $129,250 | $0 | $388,382 | $388,382 |
| 2014 | $262,251 | $129,250 | $0 | $391,501 | $391,501 |
| 2013 | $265,369 | $125,631 | $0 | $391,000 | $391,000 |
| 2012 | $268,488 | $125,631 | $0 | $394,119 | $394,119 |
| 2011 | $271,606 | $139,590 | $0 | $411,196 | $411,196 |
| 2010 | $282,127 | $139,590 | $0 | $421,717 | $421,717 |
| 2009 | $259,228 | $155,100 | $0 | $414,328 | $414,328 |
| 2008 | $262,521 | $152,515 | $0 | $415,036 | $415,036 |
| 2007 | $265,814 | $152,515 | $0 | $418,329 | $418,329 |
Deed and Sales History
| 1 | 12/08/2009 | EZ | Easement | LIBBEY, DALE A | LIBBEY, DALE A | | | $2,048.00 | 21 | 4266496 |
| 2 | 01/01/1900 | OTHER | Other - Misc. Documents | Unknown | LIBBEY, DALE A | | | $0.00 | 61485 | 85012633 |
Payout Agreement
| No payout information available.. |