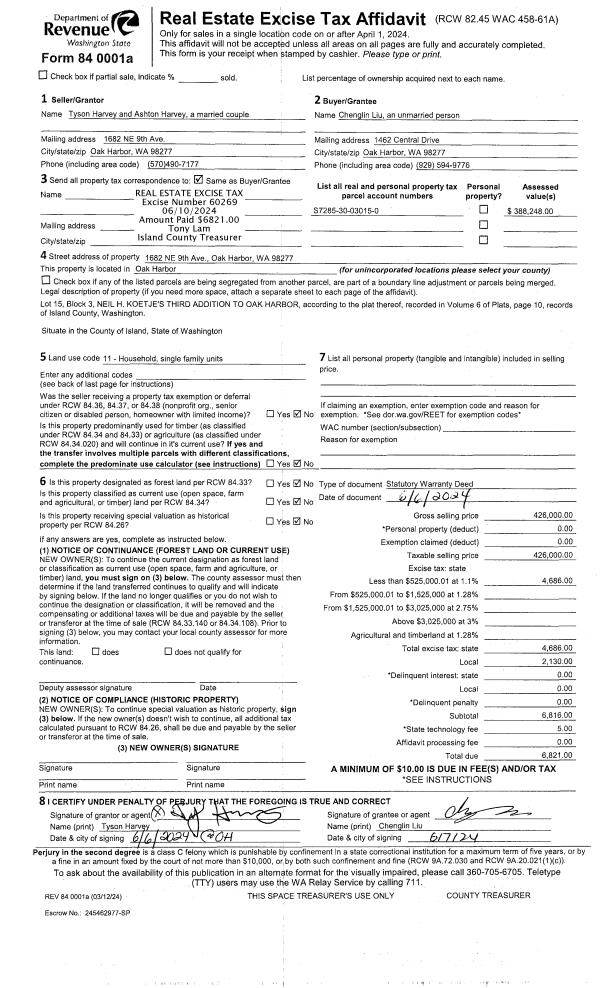
Property
Account |
| Property ID: | 753401 | Abbreviated Legal Description: | MATERNE'S 1ST ADD LOT 6 |
| Geographic ID: | S7489-00-00006-0 | Agent Code: | |
| Type: | Real | | |
| Tax Area: | 100 - APPRAISER-OH Schl Dist, in OH | Land Use Code | 11 |
| Open Space: | N | DFL | N |
| Historic Property: | N | Remodel Property: | N |
| Multi-Family Redevelopment: | N | | |
| Township: | | Section: | |
| Range: | |
Location |
| Address: | 85 NE NUNAN LOOP OAK HARBOR, WA 98277 | Mapsco: | |
| Neighborhood: | Cycle 1 | Map ID: | 257 |
| Neighborhood CD: | 1 |
Owner |
| Name: | FULCHER, BRADLEY CHARLES | Owner ID: | 293144 |
| Mailing Address: | TAYLOR MARIE HART 1301 E LEONARD STREET PENSACOLA, FL 32503 | % Ownership: | 100.0000000000% |
| | | Exemptions: | |
Taxes and Assessment Details
Values
| (+) Improvement Homesite Value: | + | $0 | |
| (+) Improvement Non-Homesite Value: | + | $376,460 | |
| (+) Land Homesite Value: | + | $180,000 | |
| (+) Land Non-Homesite Value: | + | $0 | |
| (+) Curr Use (HS): | + | $0 | $0 |
| (+) Curr Use (NHS): | + | $0 | $0 |
| | | -------------------------- | |
| (=) Market Value: | = | $556,460 | |
| (–) Productivity Loss: | – | $0 | |
| | | -------------------------- | |
| (=) Subtotal: | = | $556,460 | |
| (+) Senior Appraised Value: | + | $0 | |
| (+) Non-Senior Appraised Value: | + | $556,460 | |
| | | -------------------------- | |
| (=) Total Appraised Value: | = | $556,460 | |
| (–) Senior Exemption Loss: | – | $0 | |
| (–) Exemption Loss: | – | $0 | |
| | | -------------------------- | |
| (=) Taxable Value: | = | $556,460 | |
Taxing Jurisdiction
| Owner: | FULCHER, BRADLEY CHARLES | | |
| % Ownership: | 100.0000000000% | | |
| Total Value: | $556,460 | | |
| Tax Area: | 100 - APPRAISER-OH Schl Dist, in OH |
| CF | Conservation Futures | 0.0316035091 | $556,460 | $556,460 | $17.59 | | |
| CEM1 | Cemetery #1 | 0.0040320932 | $556,460 | $556,460 | $2.24 | | |
| COH | City of Oak Harbor | 2.3001546061 | $556,460 | $556,460 | $1,279.94 | | |
| OAKBOND | City of Oak Harbor BOND | 0.1926904192 | $556,460 | $556,460 | $107.22 | | |
| HOBOND | Hospital BOND | 0.1910887512 | $556,460 | $556,460 | $106.33 | | |
| HOGEN | Hospital GEN | 0.3902502903 | $556,460 | $556,460 | $217.16 | | |
| CE | County Current Expense | 0.3708482477 | $556,460 | $556,460 | $206.36 | | |
| ISLANDEMS | Hospital GEN (EMS) | 0.5000000000 | $556,460 | $556,460 | $278.23 | | |
| LIB | Library Sno-Isle GEN | 0.3153421757 | $556,460 | $556,460 | $175.48 | | |
| NWHIDPRMT | P & R N Whidbey GEN | 0.2004466701 | $556,460 | $556,460 | $111.54 | | |
| SCH201MO | School 201 Enrichment | 1.8559231640 | $556,460 | $556,460 | $1,032.75 | | |
| ST | State School | 1.3035497053 | $556,460 | $556,460 | $725.37 | | |
| ST2 | State School Part 2 | 0.8169543533 | $556,460 | $556,460 | $454.60 | | |
| | Total Tax Rate: | 8.4728839852 | | | | | |
| | | | | Taxes w/Current Exemptions: | $4,714.81 | | |
| | | | | Taxes w/o Exemptions: | $4,714.81 | | |
Improvement / Building
| Improvement #1: | RESIDENTIAL | State Code: | Y | 1907.2 sqft | Value: | $376,460 |
| Bathrooms: | 2.5 | Bedrooms: | 4 | | Ceiling: | DRYWALL PAINTED | Cooling: | HEAT PUMP/CONV/V | | Exterior Wall/Cover: | CEMENT FIBER | Floor Covering: | VINYL TILE/CARP 20-80 | | Floor Structure: | WOOD W/SUBFLOOR | Foundation: | CONCRETE | | Interior Finish: | DRYWALL PAINT | Plumbing Fixture Cnt: | 13 | | Roof Slope: | 6" IN 12" | Roof Structure/Cover: | CJ ASPHALT |
|
| | Type | Description | Class CD | Sub Class CD | Year Built | Area |
| | BAS | BASE/MAIN FLOOR | 3 | 0 | 2019 | 789.0 |
| | UPS | UPPER STORY | 3 | 0 | 2019 | 1118.2 |
| | BIG | BUILT IN GARAGE | 3 | 0 | 2019 | 407.0 |
| | OP4 | OPEN PORCH W/CEILING-ROOF | 3 | 0 | 2019 | 72.0 |
| | OP4 | OPEN PORCH W/CEILING-ROOF | 3 | 0 | 2019 | 102.0 |
| | OWP | OPEN WOOD PORCH W/STEPS | 3 | 0 | 2019 | 60.0 |
Sketch
Property Image
Land
| 1 | 14 | SQ (08001-12000) | 0.0000 | 0.00 | 0.00 | 0.00 | 1.00 | $180,000 | $0 |
Roll Value History
| 2026 | N/A | N/A | N/A | N/A | N/A |
| 2025 | $376,460 | $180,000 | $0 | $556,460 | $556,460 |
| 2024 | $379,496 | $170,000 | $0 | $549,496 | $549,496 |
| 2023 | $382,397 | $170,000 | $0 | $552,397 | $552,397 |
| 2022 | $349,024 | $160,000 | $0 | $509,024 | $509,024 |
| 2021 | $306,675 | $125,000 | $0 | $431,675 | $431,675 |
| 2020 | $300,356 | $100,000 | $0 | $400,356 | $400,356 |
| 2019 | $109,356 | $75,000 | $0 | $184,356 | $184,356 |
| 2018 | $0 | $65,000 | $0 | $65,000 | $65,000 |
| 2017 | $0 | $60,000 | $0 | $60,000 | $60,000 |
| 2016 | $0 | $70,000 | $0 | $70,000 | $70,000 |
| 2015 | $0 | $50,000 | $0 | $50,000 | $50,000 |
| 2014 | $0 | $50,000 | $0 | $50,000 | $50,000 |
| 2013 | $0 | $50,700 | $0 | $50,700 | $50,700 |
| 2012 | $0 | $50,700 | $0 | $50,700 | $50,700 |
| 2011 | $0 | $50,700 | $0 | $50,700 | $50,700 |
| 2010 | $0 | $50,700 | $0 | $50,700 | $50,700 |
| 2009 | $0 | $57,000 | $0 | $57,000 | $57,000 |
| 2008 | $0 | $57,000 | $0 | $57,000 | $57,000 |
| 2007 | $0 | $57,000 | $0 | $57,000 | $57,000 |
Deed and Sales History
| 1 | 01/09/2020 | WD | Warranty Deed | SIDHU, SARABJIT KAUR | FULCHER, BRADLEY CHARLES | | | $395,000.00 | 41750 | 4478976 |
| 2 | 07/31/2018 | WD | Warranty Deed | MATERNE, JOSE P | SIDHU, SARABJIT KAUR | | | $68,750.00 | 35291 | 4449190 |
|   | |
| 3 | 01/01/1900 | OTHER | Other - Misc. Documents | Unknown | MATERNE, JOSE P | | | $0.00 | 20986 | 92004940 |
Payout Agreement
| No payout information available.. |