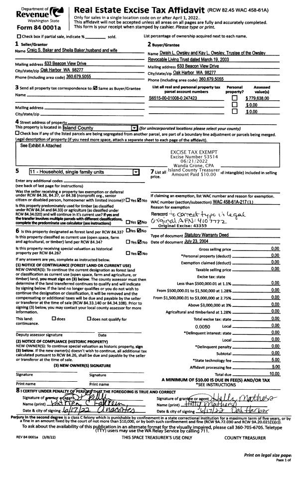
Property
Account |
| Property ID: | 753697 | Abbreviated Legal Description: | LOT 4 SP 62-96.33130.442-1400 V3 SP P146-7 AF#97005958 |
| Geographic ID: | R33130-441-1570 | Agent Code: | |
| Type: | Real | | |
| Tax Area: | 512 - APPRAISER-Stan/Cam Schl Dist, improved, greater than 1 acre | Land Use Code | 11 |
| Open Space: | N | DFL | N |
| Historic Property: | N | Remodel Property: | N |
| Multi-Family Redevelopment: | N | | |
| Township: | 31 | Section: | 30 |
| Range: | R3 |
Location |
| Address: | 1661 BONNIE LN CAMANO ISLAND, WA 98282 | Mapsco: | |
| Neighborhood: | Cycle 5 | Map ID: | 938 |
| Neighborhood CD: | 5 |
Owner |
| Name: | TCHENG, JOSHUA SIMON | Owner ID: | 278360 |
| Mailing Address: | AIMEE MICAELA TCHENG 1681 BONNIE LN CAMANO ISLAND, WA 98282 | % Ownership: | 100.0000000000% |
| | | Exemptions: | |
Taxes and Assessment Details
Values
| (+) Improvement Homesite Value: | + | $0 | |
| (+) Improvement Non-Homesite Value: | + | $215,442 | |
| (+) Land Homesite Value: | + | $0 | |
| (+) Land Non-Homesite Value: | + | $260,000 | |
| (+) Curr Use (HS): | + | $0 | $0 |
| (+) Curr Use (NHS): | + | $0 | $0 |
| | | -------------------------- | |
| (=) Market Value: | = | $475,442 | |
| (–) Productivity Loss: | – | $0 | |
| | | -------------------------- | |
| (=) Subtotal: | = | $475,442 | |
| (+) Senior Appraised Value: | + | $0 | |
| (+) Non-Senior Appraised Value: | + | $475,442 | |
| | | -------------------------- | |
| (=) Total Appraised Value: | = | $475,442 | |
| (–) Senior Exemption Loss: | – | $0 | |
| (–) Exemption Loss: | – | $0 | |
| | | -------------------------- | |
| (=) Taxable Value: | = | $475,442 | |
Taxing Jurisdiction
| Owner: | TCHENG, JOSHUA SIMON | | |
| % Ownership: | 100.0000000000% | | |
| Total Value: | $475,442 | | |
| Tax Area: | 512 - APPRAISER-Stan/Cam Schl Dist, improved, greater than 1 acre |
| CF | Conservation Futures | 0.0316035091 | $475,442 | $475,442 | $15.03 | | |
| EMS1 | Fire & Rescue Dist #1 Camano GEN (EMS) | 0.3677864386 | $475,442 | $475,442 | $174.86 | | |
| FIRE1 | Fire & Rescue Dist #1 Camano GEN | 1.2502910536 | $475,442 | $475,442 | $594.44 | | |
| FIRE1BOND | Fire & Rescue Dist #1 Camano BOND | 0.1570001679 | $475,442 | $475,442 | $74.64 | | |
| CE | County Current Expense | 0.3708482477 | $475,442 | $475,442 | $176.32 | | |
| CR | County Roads | 0.4584763726 | $475,442 | $475,442 | $217.98 | | |
| LCIB | Library Sno-Isle BOND (Camano Island) | 0.0396325772 | $475,442 | $475,442 | $18.84 | | |
| LIB | Library Sno-Isle GEN | 0.3153421757 | $475,442 | $475,442 | $149.93 | | |
| SCH205_401 | School 205-401 Enrichment | 1.2698420524 | $475,442 | $475,442 | $603.74 | | |
| SCH205BOND | School 205-401 BOND | 0.9396497583 | $475,442 | $475,442 | $446.75 | | |
| ST | State School | 1.3035497053 | $475,442 | $475,442 | $619.76 | | |
| ST2 | State School Part 2 | 0.8169543533 | $475,442 | $475,442 | $388.41 | | |
| | Total Tax Rate: | 7.3209764117 | | | | | |
| | | | | Taxes w/Current Exemptions: | $3,480.70 | | |
| | | | | Taxes w/o Exemptions: | $3,480.70 | | |
Improvement / Building
| Improvement #1: | RESIDENTIAL | State Code: | Y | 1045.8 sqft | Value: | $215,442 |
| Bathrooms: | 2 | Bedrooms: | 0 | | Ceiling: | DRYWALL PAINTED | Cooling: | HEAT PUMP/CONV/V | | Exterior Wall/Cover: | CEMENT FIBER | Floor Covering: | HARDWOOD/CARP 60-40 | | Floor Structure: | WOOD W/SUBFLOOR | Foundation: | CONCRETE | | Interior Finish: | DRYWALL PAINT | Plumbing Fixture Cnt: | 9 | | Roof Slope: | 4" IN 12" | Roof Structure/Cover: | CJ ASPHALT |
|
| | Type | Description | Class CD | Sub Class CD | Year Built | Area |
| | BAS | BASE/MAIN FLOOR | 3 | 0 | 1997 | 1045.8 |
| | AGR | ATTACHED GARAGE | 3 | 0 | 1997 | 480.0 |
Sketch
Property Image
Land
| 1 | 17 | AC (01.01-02.00) | 0.0000 | 0.00 | 0.00 | 0.00 | 1.00 | $260,000 | $0 |
Roll Value History
| 2026 | N/A | N/A | N/A | N/A | N/A |
| 2025 | $215,442 | $260,000 | $0 | $475,442 | $475,442 |
| 2024 | $218,031 | $240,000 | $0 | $458,031 | $458,031 |
| 2023 | $220,619 | $230,000 | $0 | $450,619 | $450,619 |
| 2022 | $202,117 | $240,000 | $0 | $442,117 | $442,117 |
| 2021 | $165,764 | $170,000 | $0 | $335,764 | $335,764 |
| 2020 | $161,004 | $150,000 | $0 | $311,004 | $311,004 |
| 2019 | $112,307 | $200,000 | $0 | $312,307 | $312,307 |
| 2018 | $112,633 | $150,000 | $0 | $262,633 | $262,633 |
| 2017 | $113,238 | $120,000 | $0 | $233,238 | $233,238 |
| 2016 | $114,539 | $80,000 | $0 | $194,539 | $194,539 |
| 2015 | $113,084 | $69,200 | $0 | $182,284 | $182,284 |
| 2014 | $114,481 | $69,200 | $0 | $183,681 | $183,681 |
| 2013 | $115,876 | $69,200 | $0 | $185,076 | $185,076 |
| 2012 | $117,273 | $69,200 | $0 | $186,473 | $186,473 |
| 2011 | $118,670 | $86,500 | $0 | $205,170 | $205,170 |
| 2010 | $120,653 | $86,500 | $0 | $207,153 | $207,153 |
| 2009 | $125,787 | $119,600 | $0 | $245,387 | $245,387 |
| 2008 | $127,216 | $130,000 | $0 | $257,216 | $257,216 |
| 2007 | $128,636 | $130,000 | $0 | $258,636 | $258,636 |
Deed and Sales History
| 1 | 01/24/2017 | WD | Warranty Deed | V & R INVESTMENTS, LLC | TCHENG, JOSHUA SIMON | | | $265,000.00 | 27873 | 4415982 |
| 2 | 07/05/2016 | TRUSTEED | Trustee's Deed | PHILLIPS, JUSTIN T | V & R INVESTMENTS, LLC | | | $143,635.00 | 25164 | 4402810 |
| 3 | 03/21/2006 | 5 | DNU - Marriage License/Name Change | PHILLIPS, JUSTIN T | PHILLIPS, JUSTIN T | | | $0.00 | 61428 | 4166475 |
| 4 | 08/01/1997 | WD | Warranty Deed | WITHERS, JOHN & | PHILLIPS, JUSTIN T | | | $106,150.00 | 72812 | 97013349 |
| 5 | 01/01/1900 | OTHER | Other - Misc. Documents | Unknown | WITHERS, JOHN & | | | $0.00 | 70480 | 97002139 |
Payout Agreement
| No payout information available.. |