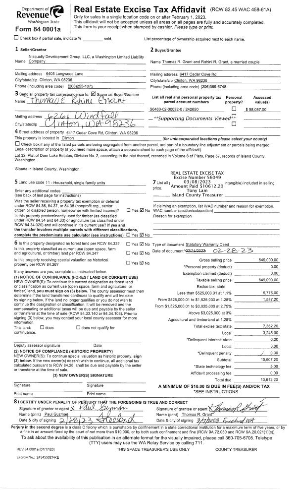
Property
Account |
| Property ID: | 753786 | Abbreviated Legal Description: | REPLACES 23335-098-0180 IN GL1 SEC 35 & GL1 SEC 36: BG CM SWCR GL1 SEC 35 N1*E 600' S88*E550' N1*E400' S88*E697.98' N5*E59.66' S83*E135' TPB S83*E278.01' TO HITDLN S1*W94.87' S89*W 254' S71*W21.21' N135.95' TPB FR PT 23335-094-5030 |
| Geographic ID: | R23336-098-0180 | Agent Code: | |
| Type: | Real | | |
| Tax Area: | 110 - APPRAISER-OH Schl Dist, outside OH, improved & 1 acre or less | Land Use Code | 11 |
| Open Space: | N | DFL | N |
| Historic Property: | N | Remodel Property: | N |
| Multi-Family Redevelopment: | N | | |
| Township: | 33 | Section: | 36 |
| Range: | R2 |
Location |
| Address: | 2478 MATSEN LN OAK HARBOR, WA 98277 | Mapsco: | |
| Neighborhood: | Cycle 6 | Map ID: | 661 |
| Neighborhood CD: | 6 |
Owner |
| Name: | NIENHUIS, PHILIP | Owner ID: | 6578 |
| Mailing Address: | KATHYRN NIENHUIS 2457 MATSEN LANE OAK HARBOR, WA 98277 | % Ownership: | 100.0000000000% |
| | | Exemptions: | |
Taxes and Assessment Details
Values
| (+) Improvement Homesite Value: | + | $0 | |
| (+) Improvement Non-Homesite Value: | + | $454,176 | |
| (+) Land Homesite Value: | + | $0 | |
| (+) Land Non-Homesite Value: | + | $525,000 | |
| (+) Curr Use (HS): | + | $0 | $0 |
| (+) Curr Use (NHS): | + | $0 | $0 |
| | | -------------------------- | |
| (=) Market Value: | = | $979,176 | |
| (–) Productivity Loss: | – | $0 | |
| | | -------------------------- | |
| (=) Subtotal: | = | $979,176 | |
| (+) Senior Appraised Value: | + | $0 | |
| (+) Non-Senior Appraised Value: | + | $979,176 | |
| | | -------------------------- | |
| (=) Total Appraised Value: | = | $979,176 | |
| (–) Senior Exemption Loss: | – | $0 | |
| (–) Exemption Loss: | – | $0 | |
| | | -------------------------- | |
| (=) Taxable Value: | = | $979,176 | |
Taxing Jurisdiction
| Owner: | NIENHUIS, PHILIP | | |
| % Ownership: | 100.0000000000% | | |
| Total Value: | $979,176 | | |
| Tax Area: | 110 - APPRAISER-OH Schl Dist, outside OH, improved & 1 acre or less |
| CF | Conservation Futures | 0.0316035091 | $979,176 | $979,176 | $30.95 | | |
| CEM1 | Cemetery #1 | 0.0040320932 | $979,176 | $979,176 | $3.95 | | |
| FIRE2 | Fire & Rescue Dist #2 N Whidbey GEN | 0.5475949600 | $979,176 | $979,176 | $536.19 | | |
| HOBOND | Hospital BOND | 0.1910887512 | $979,176 | $979,176 | $187.11 | | |
| HOGEN | Hospital GEN | 0.3902502903 | $979,176 | $979,176 | $382.12 | | |
| CE | County Current Expense | 0.3708482477 | $979,176 | $979,176 | $363.13 | | |
| CR | County Roads | 0.4584763726 | $979,176 | $979,176 | $448.93 | | |
| ISLANDEMS | Hospital GEN (EMS) | 0.5000000000 | $979,176 | $979,176 | $489.59 | | |
| LIB | Library Sno-Isle GEN | 0.3153421757 | $979,176 | $979,176 | $308.78 | | |
| NWHIDPRMT | P & R N Whidbey GEN | 0.2004466701 | $979,176 | $979,176 | $196.27 | | |
| SCH201MO | School 201 Enrichment | 1.8559231640 | $979,176 | $979,176 | $1,817.28 | | |
| ST | State School | 1.3035497053 | $979,176 | $979,176 | $1,276.40 | | |
| ST2 | State School Part 2 | 0.8169543533 | $979,176 | $979,176 | $799.94 | | |
| | Total Tax Rate: | 6.9861102925 | | | | | |
| | | | | Taxes w/Current Exemptions: | $6,840.64 | | |
| | | | | Taxes w/o Exemptions: | $6,840.64 | | |
Improvement / Building
| Improvement #1: | RESIDENTIAL | State Code: | Y | 2656.0 sqft | Value: | $454,176 |
| Bathrooms: | 2 | Bedrooms: | 3 | | Ceiling: | DRYWALL PAINTED | Exterior Wall/Cover: | SHINGLE | | Floor Covering: | CERAMIC TILE/CPT 40-60 | Floor Structure: | SLAB ABOVE GRADE | | Foundation: | SLAB | Heating: | FHA ELECTRIC | | Interior Finish: | DRYWALL PAINT | Plumbing Fixture Cnt: | 15 | | Roof Slope: | 12" IN 12" | Roof Structure/Cover: | CJ ASPHALT |
|
| | Type | Description | Class CD | Sub Class CD | Year Built | Area |
| | BAS | BASE/MAIN FLOOR | 4 | 0 | 1980 | 1288.0 |
| | OP4 | OPEN PORCH W/CEILING-ROOF | 4 | 0 | 1980 | 96.0 |
| | DGR | DETACHED GARAGE | 4 | 0 | 1980 | 688.0 |
| | UPS | UPPER STORY | 4 | 0 | 1980 | 744.0 |
| | ENP | ENCLOSED PORCH | 4 | 0 | 1980 | 96.0 |
| | UPH | HALF STORY | 4 | 0 | 1980 | 624.0 |
| | OP4 | OPEN PORCH W/CEILING-ROOF | 4 | 0 | 1980 | 120.0 |
Sketch
Property Image
Land
| 1 | HB | HIGH BLUFF | 0.7100 | 30927.60 | 94.00 | 0.00 | 1.00 | $525,000 | $0 |
Roll Value History
| 2026 | N/A | N/A | N/A | N/A | N/A |
| 2025 | $454,176 | $525,000 | $0 | $979,176 | $979,176 |
| 2024 | $460,929 | $500,000 | $0 | $960,929 | $960,929 |
| 2023 | $467,683 | $475,000 | $0 | $942,683 | $942,683 |
| 2022 | $405,146 | $450,000 | $0 | $855,146 | $855,146 |
| 2021 | $357,614 | $350,000 | $0 | $707,614 | $707,614 |
| 2020 | $349,615 | $300,000 | $0 | $649,615 | $649,615 |
| 2019 | $266,534 | $350,000 | $0 | $616,534 | $616,534 |
| 2018 | $267,495 | $250,000 | $0 | $517,495 | $517,495 |
| 2017 | $269,422 | $200,000 | $0 | $469,422 | $469,422 |
| 2016 | $256,468 | $200,000 | $0 | $456,468 | $456,468 |
| 2015 | $260,538 | $200,000 | $0 | $460,538 | $460,538 |
| 2014 | $264,610 | $200,000 | $0 | $464,610 | $464,610 |
| 2013 | $268,682 | $186,796 | $0 | $455,478 | $455,478 |
| 2012 | $272,753 | $186,796 | $0 | $459,549 | $459,549 |
| 2011 | $276,823 | $186,796 | $0 | $463,619 | $463,619 |
| 2010 | $332,716 | $186,796 | $0 | $519,512 | $519,512 |
| 2009 | $347,607 | $252,599 | $0 | $600,206 | $600,206 |
| 2008 | $352,275 | $252,599 | $0 | $604,874 | $604,874 |
| 2007 | $356,942 | $191,093 | $0 | $548,035 | $548,035 |
Deed and Sales History
| 1 | 10/04/2018 | WD | Warranty Deed | FROSTAD, STEVEN R | NIENHUIS, PHILIP | | | $350,000.00 | 36255 | 4453279 |
| 2 | 10/30/2017 | QCD | Quit Claim Deed | LUECHAUER TRUST, JOHN K | FROSTAD, STEVEN R | | | $0.00 | 31764 | 4433298 |
| 3 | 03/01/1997 | BLA | DNU - Boundary Line Adjustment | Unknown | LUECHAUER, JOHN K | | | $0.00 | 67276 | 96021763 |
Payout Agreement
| No payout information available.. |