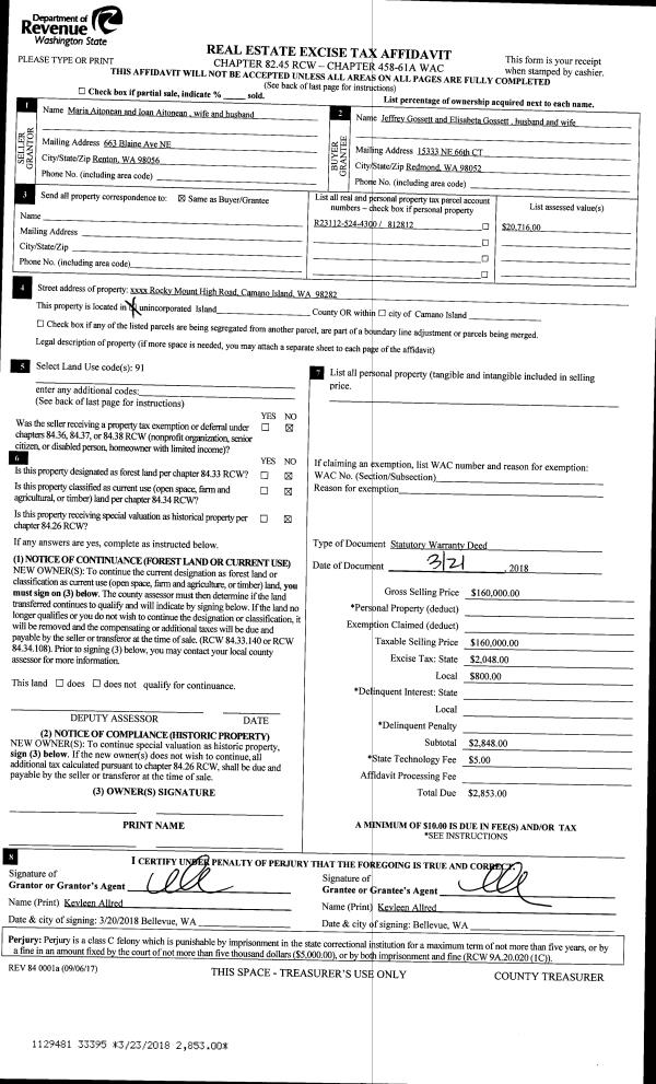
Property
Account |
| Property ID: | 753982 | Abbreviated Legal Description: | LOST LAKE GROVE #6 LOT 1 SP 139-96.7410.06-02007-0 V3 SP P145 AF#97005597 |
| Geographic ID: | S7410-06-02007-1 | Agent Code: | |
| Type: | Real | | |
| Tax Area: | 510 - APPRAISER-Stan/Cam Schl Dist, improved & 1 acre or less | Land Use Code | 11 |
| Open Space: | N | DFL | N |
| Historic Property: | N | Remodel Property: | N |
| Multi-Family Redevelopment: | N | | |
| Township: | | Section: | |
| Range: | |
Location |
| Address: | 1637 POPLAR LN CAMANO ISLAND, WA 98282 | Mapsco: | |
| Neighborhood: | Cycle 5 | Map ID: | 511 |
| Neighborhood CD: | 5 |
Owner |
| Name: | HINRICHS, VICTORIA | Owner ID: | 283840 |
| Mailing Address: | 1637 POPLAR LN CAMANO ISLAND, WA 98282 | % Ownership: | 100.0000000000% |
| | | Exemptions: | |
Taxes and Assessment Details
Values
| (+) Improvement Homesite Value: | + | $0 | |
| (+) Improvement Non-Homesite Value: | + | $311,157 | |
| (+) Land Homesite Value: | + | $0 | |
| (+) Land Non-Homesite Value: | + | $250,000 | |
| (+) Curr Use (HS): | + | $0 | $0 |
| (+) Curr Use (NHS): | + | $0 | $0 |
| | | -------------------------- | |
| (=) Market Value: | = | $561,157 | |
| (–) Productivity Loss: | – | $0 | |
| | | -------------------------- | |
| (=) Subtotal: | = | $561,157 | |
| (+) Senior Appraised Value: | + | $0 | |
| (+) Non-Senior Appraised Value: | + | $561,157 | |
| | | -------------------------- | |
| (=) Total Appraised Value: | = | $561,157 | |
| (–) Senior Exemption Loss: | – | $0 | |
| (–) Exemption Loss: | – | $0 | |
| | | -------------------------- | |
| (=) Taxable Value: | = | $561,157 | |
Taxing Jurisdiction
| Owner: | HINRICHS, VICTORIA | | |
| % Ownership: | 100.0000000000% | | |
| Total Value: | $561,157 | | |
| Tax Area: | 510 - APPRAISER-Stan/Cam Schl Dist, improved & 1 acre or less |
| CF | Conservation Futures | 0.0316035091 | $561,157 | $561,157 | $17.73 | | |
| EMS1 | Fire & Rescue Dist #1 Camano GEN (EMS) | 0.3677864386 | $561,157 | $561,157 | $206.39 | | |
| FIRE1 | Fire & Rescue Dist #1 Camano GEN | 1.2502910536 | $561,157 | $561,157 | $701.61 | | |
| FIRE1BOND | Fire & Rescue Dist #1 Camano BOND | 0.1570001679 | $561,157 | $561,157 | $88.10 | | |
| CE | County Current Expense | 0.3708482477 | $561,157 | $561,157 | $208.10 | | |
| CR | County Roads | 0.4584763726 | $561,157 | $561,157 | $257.28 | | |
| LCIB | Library Sno-Isle BOND (Camano Island) | 0.0396325772 | $561,157 | $561,157 | $22.24 | | |
| LIB | Library Sno-Isle GEN | 0.3153421757 | $561,157 | $561,157 | $176.96 | | |
| SCH205_401 | School 205-401 Enrichment | 1.2698420524 | $561,157 | $561,157 | $712.58 | | |
| SCH205BOND | School 205-401 BOND | 0.9396497583 | $561,157 | $561,157 | $527.29 | | |
| ST | State School | 1.3035497053 | $561,157 | $561,157 | $731.50 | | |
| ST2 | State School Part 2 | 0.8169543533 | $561,157 | $561,157 | $458.44 | | |
| | Total Tax Rate: | 7.3209764117 | | | | | |
| | | | | Taxes w/Current Exemptions: | $4,108.22 | | |
| | | | | Taxes w/o Exemptions: | $4,108.22 | | |
Improvement / Building
| Improvement #1: | RESIDENTIAL | State Code: | Y | 1952.0 sqft | Value: | $311,157 |
| Bathrooms: | 2 | Bedrooms: | 3 | | Ceiling: | DRYWALL PAINTED | Cooling: | HEAT PUMP/CONV/V | | Exterior Wall/Cover: | CEMENT FIBER | Floor Covering: | CERAMIC TILE/CPT 40-60 | | Floor Structure: | WOOD W/SUBFLOOR | Foundation: | CONCRETE | | Interior Finish: | DRYWALL PAINT | Plumbing Fixture Cnt: | 14 | | Roof Slope: | 5" IN 12" | Roof Structure/Cover: | CJ ALUMINIUM HEAVY |
|
| | Type | Description | Class CD | Sub Class CD | Year Built | Area |
| | BAS | BASE/MAIN FLOOR | 3 | 0 | 1997 | 1200.0 |
| | DWN | DOWNSTAIRS LIVING AREA | 3 | 0 | 1997 | 752.0 |
| | AGR | ATTACHED GARAGE | 3 | 0 | 1997 | 460.0 |
| | OWP | OPEN WOOD PORCH W/STEPS | 3 | 0 | 1997 | 112.0 |
| | OWP | OPEN WOOD PORCH W/STEPS | 3 | 0 | 1997 | 240.0 |
Sketch
Property Image
Land
| 1 | 15 | SQ (12001-21780) | 0.0000 | 0.00 | 0.00 | 0.00 | 1.00 | $250,000 | $0 |
Roll Value History
| 2026 | N/A | N/A | N/A | N/A | N/A |
| 2025 | $311,157 | $250,000 | $0 | $561,157 | $561,157 |
| 2024 | $315,133 | $240,000 | $0 | $555,133 | $555,133 |
| 2023 | $319,110 | $240,000 | $0 | $559,110 | $559,110 |
| 2022 | $292,551 | $210,000 | $0 | $502,551 | $502,551 |
| 2021 | $254,394 | $170,000 | $0 | $424,394 | $424,394 |
| 2020 | $247,783 | $130,000 | $0 | $377,783 | $377,783 |
| 2019 | $185,951 | $150,000 | $0 | $335,951 | $335,951 |
| 2018 | $186,510 | $125,000 | $0 | $311,510 | $311,510 |
| 2017 | $181,273 | $90,000 | $0 | $271,273 | $271,273 |
| 2016 | $183,483 | $75,000 | $0 | $258,483 | $258,483 |
| 2015 | $178,637 | $52,000 | $0 | $230,637 | $230,637 |
| 2014 | $180,793 | $52,000 | $0 | $232,793 | $232,793 |
| 2013 | $182,948 | $52,000 | $0 | $234,948 | $234,948 |
| 2012 | $185,104 | $52,000 | $0 | $237,104 | $237,104 |
| 2011 | $187,257 | $65,000 | $0 | $252,257 | $252,257 |
| 2010 | $188,726 | $84,000 | $0 | $272,726 | $272,726 |
| 2009 | $175,017 | $90,000 | $0 | $265,017 | $265,017 |
| 2008 | $177,008 | $90,000 | $0 | $267,008 | $267,008 |
| 2007 | $179,004 | $90,000 | $0 | $269,004 | $269,004 |
Deed and Sales History
| 1 | 08/04/2025 | WD | Warranty Deed | HINRICHS, VICTORIA | BLACKBURN, SCOTT A | | | $590,000.00 | 64415 | 4589326 |
| 2 | 02/02/2018 | WD | Warranty Deed | THOM, MELVIN L & GAYLE L | HINRICHS, VICTORIA | | | $308,000.00 | 32881 | 4438833 |
| 3 | 01/01/1900 | OTHER | Other - Misc. Documents | Unknown | THOM, MELVIN L | | | $0.00 | 52406 | 95011113 |
Payout Agreement
| No payout information available.. |