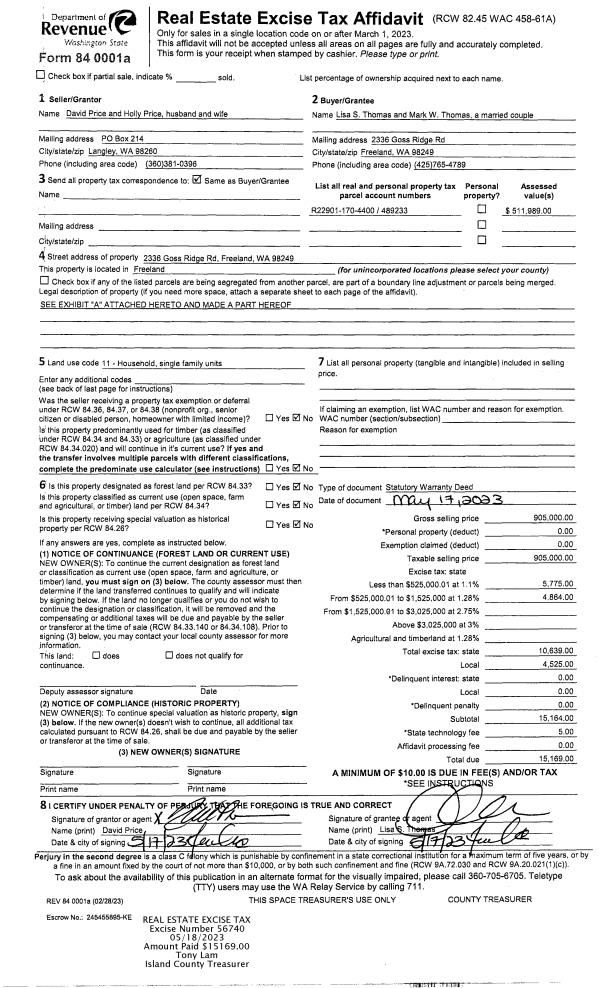
Property
Account |
| Property ID: | 755418 | Abbreviated Legal Description: | LOT 2 SP 26-96.23320.162-1310 V3 SP P152 AF#97007329 |
| Geographic ID: | R23320-162-0980 | Agent Code: | |
| Type: | Real | | |
| Tax Area: | 112 - APPRAISER-OH Schl Dist, outside OH, improved, greater than 1 acre | Land Use Code | 11 |
| Open Space: | N | DFL | N |
| Historic Property: | N | Remodel Property: | N |
| Multi-Family Redevelopment: | N | | |
| Township: | 33 | Section: | 20 |
| Range: | R2 |
Location |
| Address: | 3302 TAYLOR RD OAK HARBOR, WA 98277 | Mapsco: | |
| Neighborhood: | Cycle 6 | Map ID: | 612 |
| Neighborhood CD: | 6 |
Owner |
| Name: | ADKINS, JOSHUA R | Owner ID: | 197777 |
| Mailing Address: | ASHLEY N ADKINS 3302 TAYLOR RD OAK HARBOR, WA 98277-7837 | % Ownership: | 100.0000000000% |
| | | Exemptions: | |
Taxes and Assessment Details
Values
| (+) Improvement Homesite Value: | + | $0 | |
| (+) Improvement Non-Homesite Value: | + | $557,723 | |
| (+) Land Homesite Value: | + | $0 | |
| (+) Land Non-Homesite Value: | + | $300,000 | |
| (+) Curr Use (HS): | + | $0 | $0 |
| (+) Curr Use (NHS): | + | $0 | $0 |
| | | -------------------------- | |
| (=) Market Value: | = | $857,723 | |
| (–) Productivity Loss: | – | $0 | |
| | | -------------------------- | |
| (=) Subtotal: | = | $857,723 | |
| (+) Senior Appraised Value: | + | $0 | |
| (+) Non-Senior Appraised Value: | + | $857,723 | |
| | | -------------------------- | |
| (=) Total Appraised Value: | = | $857,723 | |
| (–) Senior Exemption Loss: | – | $0 | |
| (–) Exemption Loss: | – | $0 | |
| | | -------------------------- | |
| (=) Taxable Value: | = | $857,723 | |
Taxing Jurisdiction
| Owner: | ADKINS, JOSHUA R | | |
| % Ownership: | 100.0000000000% | | |
| Total Value: | $857,723 | | |
| Tax Area: | 112 - APPRAISER-OH Schl Dist, outside OH, improved, greater than 1 acre |
| CF | Conservation Futures | 0.0316035091 | $857,723 | $857,723 | $27.11 | | |
| CEM1 | Cemetery #1 | 0.0040320932 | $857,723 | $857,723 | $3.46 | | |
| FIRE2 | Fire & Rescue Dist #2 N Whidbey GEN | 0.5475949600 | $857,723 | $857,723 | $469.68 | | |
| HOBOND | Hospital BOND | 0.1910887512 | $857,723 | $857,723 | $163.90 | | |
| HOGEN | Hospital GEN | 0.3902502903 | $857,723 | $857,723 | $334.73 | | |
| CE | County Current Expense | 0.3708482477 | $857,723 | $857,723 | $318.09 | | |
| CR | County Roads | 0.4584763726 | $857,723 | $857,723 | $393.25 | | |
| ISLANDEMS | Hospital GEN (EMS) | 0.5000000000 | $857,723 | $857,723 | $428.86 | | |
| LIB | Library Sno-Isle GEN | 0.3153421757 | $857,723 | $857,723 | $270.48 | | |
| NWHIDPRMT | P & R N Whidbey GEN | 0.2004466701 | $857,723 | $857,723 | $171.93 | | |
| SCH201MO | School 201 Enrichment | 1.8559231640 | $857,723 | $857,723 | $1,591.87 | | |
| ST | State School | 1.3035497053 | $857,723 | $857,723 | $1,118.08 | | |
| ST2 | State School Part 2 | 0.8169543533 | $857,723 | $857,723 | $700.72 | | |
| | Total Tax Rate: | 6.9861102925 | | | | | |
| | | | | Taxes w/Current Exemptions: | $5,992.16 | | |
| | | | | Taxes w/o Exemptions: | $5,992.16 | | |
Improvement / Building
| Improvement #1: | RESIDENTIAL | State Code: | Y | 2918.0 sqft | Value: | $557,723 |
| Bathrooms: | 3 | Bedrooms: | 3 | | Ceiling: | DRYWALL PAINTED | Cooling: | HEAT PUMP/CONV/V | | Exterior Wall/Cover: | CEMENT FIBER | Floor Covering: | CARPET/VINYL 60-40 | | Floor Structure: | WOOD W/SUBFLOOR | Foundation: | CONCRETE | | Interior Finish: | DRYWALL PAINT | Plumbing Fixture Cnt: | 15 | | Roof Slope: | 6" IN 12" | Roof Structure/Cover: | CJ ASPHALT |
|
| | Type | Description | Class CD | Sub Class CD | Year Built | Area |
| | BAS | BASE/MAIN FLOOR | 4 | 0 | 2015 | 1382.8 |
| | UPS | UPPER STORY | 4 | 0 | 2015 | 1535.2 |
| | AGR | ATTACHED GARAGE | 4 | 0 | 2015 | 674.8 |
| | OP4 | OPEN PORCH W/CEILING-ROOF | 4 | 0 | 2015 | 169.0 |
| | OP1 | OPEN PORCH SLAB | 4 | 0 | 2015 | 78.0 |
| | OP4 | OPEN PORCH W/CEILING-ROOF | 4 | 0 | 2015 | 40.0 |
Sketch
Property Image
Land
| 1 | 32 | AC (03.01-09.99) | 4.9400 | 0.00 | 0.00 | 0.00 | 1.00 | $300,000 | $0 |
Roll Value History
| 2026 | N/A | N/A | N/A | N/A | N/A |
| 2025 | $557,723 | $300,000 | $0 | $857,723 | $857,723 |
| 2024 | $562,024 | $280,000 | $0 | $842,024 | $842,024 |
| 2023 | $566,631 | $270,000 | $0 | $836,631 | $836,631 |
| 2022 | $517,252 | $240,000 | $0 | $757,252 | $757,252 |
| 2021 | $453,414 | $175,000 | $0 | $628,414 | $628,414 |
| 2020 | $440,263 | $150,000 | $0 | $590,263 | $590,263 |
| 2019 | $347,925 | $185,000 | $0 | $532,925 | $532,925 |
| 2018 | $348,819 | $170,000 | $0 | $518,819 | $518,819 |
| 2017 | $350,609 | $150,000 | $0 | $500,609 | $500,609 |
| 2016 | $357,764 | $130,000 | $0 | $487,764 | $487,764 |
| 2015 | $69,341 | $120,000 | $0 | $189,341 | $189,341 |
| 2014 | $58,550 | $100,000 | $0 | $158,550 | $158,550 |
| 2013 | $62,971 | $97,812 | $0 | $160,783 | $160,783 |
| 2012 | $64,392 | $97,812 | $0 | $162,204 | $162,204 |
| 2011 | $65,814 | $108,680 | $0 | $174,494 | $174,494 |
| 2010 | $65,578 | $108,680 | $0 | $174,258 | $174,258 |
| 2009 | $69,183 | $122,992 | $0 | $192,175 | $192,175 |
| 2008 | $69,535 | $143,260 | $0 | $212,795 | $212,795 |
| 2007 | $51,372 | $91,327 | $0 | $142,699 | $142,699 |
Deed and Sales History
| 1 | 11/06/2006 | WD | Warranty Deed | BUTZ, JOHN E | ADKINS, JOSHUA R | | | $150,000.00 | 64806 | 4186638 |
| 2 | 01/01/1900 | OTHER | Other - Misc. Documents | Unknown | BUTZ, JOHN E | | | $0.00 | 42717 | 84003234 |
Payout Agreement
| No payout information available.. |