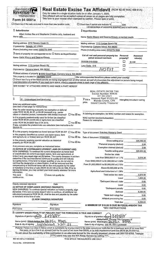
Property
Account |
| Property ID: | 755711 | Abbreviated Legal Description: | LOT 2 SP 167-96.32903.045-3420 V3 SP P160 AF#97011185 |
| Geographic ID: | R32903-043-3310 | Agent Code: | |
| Type: | Real | | |
| Tax Area: | 712 - APPRAISER-S Whid Schl Dist, outside Langley, improved, greater than 1 acre | Land Use Code | 11 |
| Open Space: | N | DFL | N |
| Historic Property: | N | Remodel Property: | N |
| Multi-Family Redevelopment: | N | | |
| Township: | 29 | Section: | 03 |
| Range: | R3 |
Location |
| Address: | 5195 MAXWELTON RD LANGLEY, WA 98260 | Mapsco: | |
| Neighborhood: | Cycle 4 | Map ID: | 724 |
| Neighborhood CD: | 4 |
Owner |
| Name: | COOKS, MICHAEL | Owner ID: | 197019 |
| Mailing Address: | PO BOX 1469 LANGLEY, WA 98260-1469 | % Ownership: | 100.0000000000% |
| | | Exemptions: | |
Taxes and Assessment Details
Values
| (+) Improvement Homesite Value: | + | $0 | |
| (+) Improvement Non-Homesite Value: | + | $470,827 | |
| (+) Land Homesite Value: | + | $0 | |
| (+) Land Non-Homesite Value: | + | $370,000 | |
| (+) Curr Use (HS): | + | $0 | $0 |
| (+) Curr Use (NHS): | + | $0 | $0 |
| | | -------------------------- | |
| (=) Market Value: | = | $840,827 | |
| (–) Productivity Loss: | – | $0 | |
| | | -------------------------- | |
| (=) Subtotal: | = | $840,827 | |
| (+) Senior Appraised Value: | + | $0 | |
| (+) Non-Senior Appraised Value: | + | $840,827 | |
| | | -------------------------- | |
| (=) Total Appraised Value: | = | $840,827 | |
| (–) Senior Exemption Loss: | – | $0 | |
| (–) Exemption Loss: | – | $0 | |
| | | -------------------------- | |
| (=) Taxable Value: | = | $840,827 | |
Taxing Jurisdiction
| Owner: | COOKS, MICHAEL | | |
| % Ownership: | 100.0000000000% | | |
| Total Value: | $840,827 | | |
| Tax Area: | 712 - APPRAISER-S Whid Schl Dist, outside Langley, improved, greater than 1 acre |
| CF | Conservation Futures | 0.0316035091 | $840,827 | $840,827 | $26.57 | | |
| FIRE3 | Fire & Rescue Dist #3 S Whidbey GEN | 1.2004855531 | $840,827 | $840,827 | $1,009.40 | | |
| HOBOND | Hospital BOND | 0.1910887512 | $840,827 | $840,827 | $160.67 | | |
| HOGEN | Hospital GEN | 0.3902502903 | $840,827 | $840,827 | $328.13 | | |
| CE | County Current Expense | 0.3708482477 | $840,827 | $840,827 | $311.82 | | |
| CR | County Roads | 0.4584763726 | $840,827 | $840,827 | $385.50 | | |
| ISLANDEMS | Hospital GEN (EMS) | 0.5000000000 | $840,827 | $840,827 | $420.41 | | |
| LIB | Library Sno-Isle GEN | 0.3153421757 | $840,827 | $840,827 | $265.15 | | |
| PORTWHID | Port of S Whidbey GEN | 0.1094540357 | $840,827 | $840,827 | $92.03 | | |
| SCH206BOND | School 206 BOND | 0.3161759235 | $840,827 | $840,827 | $265.85 | | |
| SCH206MO | School 206 Enrichment | 0.4547169547 | $840,827 | $840,827 | $382.34 | | |
| ST | State School | 1.3035497053 | $840,827 | $840,827 | $1,096.06 | | |
| ST2 | State School Part 2 | 0.8169543533 | $840,827 | $840,827 | $686.92 | | |
| SWHIDPRBD | P & R S Whidbey BOND | 0.0152817568 | $840,827 | $840,827 | $12.85 | | |
| SWHIDPRBD2 | P & R S Whidbey BOND2 | 0.0138911264 | $840,827 | $840,827 | $11.68 | | |
| SWHIDPRMT | P & R S Whidbey GEN | 0.2053334452 | $840,827 | $840,827 | $172.65 | | |
| | Total Tax Rate: | 6.6934522006 | | | | | |
| | | | | Taxes w/Current Exemptions: | $5,628.03 | | |
| | | | | Taxes w/o Exemptions: | $5,628.03 | | |
Improvement / Building
| Improvement #1: | RESIDENTIAL | State Code: | Y | 960.0 sqft | Value: | $213,416 |
| Bathrooms: | 1 | Bedrooms: | 0 | | Ceiling: | DRYWALL PAINTED | Cooling: | HEAT PUMP/CONV/V | | Exterior Wall/Cover: | VINYL | Floor Covering: | COLORED CONCRETE | | Floor Structure: | SLAB ON GRADE | Foundation: | SLAB | | Interior Finish: | DRYWALL PAINT | Plumbing Fixture Cnt: | 7 | | Roof Slope: | 3" IN 12" | Roof Structure/Cover: | CJ ALUMINIUM HEAVY |
|
| | Type | Description | Class CD | Sub Class CD | Year Built | Area |
| | BAS | BASE/MAIN FLOOR | 3 | 0 | 2019 | 960.0 |
| | DGR | DETACHED GARAGE | 3 | 0 | 2019 | 384.0 |
| | OP4 | OPEN PORCH W/CEILING-ROOF | 3 | 0 | 2019 | 96.0 |
| Improvement #2: | RESIDENTIAL | State Code: | Y | 600.0 sqft | Value: | $257,411 |
| Bathrooms: | 0.75 | Bedrooms: | 0 | | Ceiling: | DRYWALL PAINTED | Cooling: | HEAT PUMP/CONV/V | | Exterior Wall/Cover: | VINYL | Floor Covering: | HARDWOOD 100% | | Floor Structure: | WOOD W/SUBFLOOR | Foundation: | SLAB | | Interior Finish: | DRYWALL PAINT | Plumbing Fixture Cnt: | 6 | | Roof Slope: | 4" IN 12" | Roof Structure/Cover: | CJ ALUMINIUM HEAVY |
|
| | Type | Description | Class CD | Sub Class CD | Year Built | Area |
| | BAS | BASE/MAIN FLOOR | 2 | 0 | 2015 | 600.0 |
| | UTY | STORAGE/UTILITY | 2 | 0 | 2015 | 600.0 |
| | BIG | BUILT IN GARAGE | 2 | 0 | 2015 | 2000.0 |
| | OWR | OPEN WOOD PORCH W/STEPS/ROOF | 3 | 0 | 2015 | 320.0 |
| | OWP | OPEN WOOD PORCH W/STEPS | 3 | 0 | 2015 | 48.0 |
Sketch
Property Image
Land
| 1 | 32 | AC (03.01-09.99) | 5.3300 | 0.00 | 0.00 | 0.00 | 1.00 | $370,000 | $0 |
Roll Value History
| 2026 | N/A | N/A | N/A | N/A | N/A |
| 2025 | $470,827 | $370,000 | $0 | $840,827 | $840,827 |
| 2024 | $474,531 | $350,000 | $0 | $824,531 | $824,531 |
| 2023 | $478,380 | $330,000 | $0 | $808,380 | $808,380 |
| 2022 | $436,657 | $280,000 | $0 | $716,657 | $716,657 |
| 2021 | $383,185 | $230,000 | $0 | $613,185 | $613,185 |
| 2020 | $365,617 | $190,000 | $0 | $555,617 | $555,617 |
| 2019 | $230,302 | $250,000 | $0 | $480,302 | $480,302 |
| 2018 | $139,044 | $130,000 | $0 | $269,044 | $269,044 |
| 2017 | $70,000 | $130,000 | $0 | $200,000 | $200,000 |
| 2016 | $70,000 | $130,000 | $0 | $200,000 | $200,000 |
| 2015 | $70,000 | $135,000 | $0 | $205,000 | $205,000 |
| 2014 | $0 | $143,910 | $0 | $143,910 | $143,910 |
| 2013 | $0 | $143,910 | $0 | $143,910 | $143,910 |
| 2012 | $0 | $143,910 | $0 | $143,910 | $143,910 |
| 2011 | $0 | $143,910 | $0 | $143,910 | $143,910 |
| 2010 | $0 | $143,910 | $0 | $143,910 | $143,910 |
| 2009 | $0 | $181,220 | $0 | $181,220 | $181,220 |
| 2008 | $0 | $181,220 | $0 | $181,220 | $181,220 |
| 2007 | $0 | $159,900 | $0 | $159,900 | $159,900 |
Deed and Sales History
| 1 | 06/15/2006 | WD | Warranty Deed | SLEIGHT, ROBERT F | COOKS, MICHAEL | | | $227,970.00 | 62719 | 4173953 |
| 2 | 01/01/1900 | OTHER | Other - Misc. Documents | Unknown | SLEIGHT, ROBERT F | | | $0.00 | 43150 | 97007032 |
Payout Agreement
| No payout information available.. |