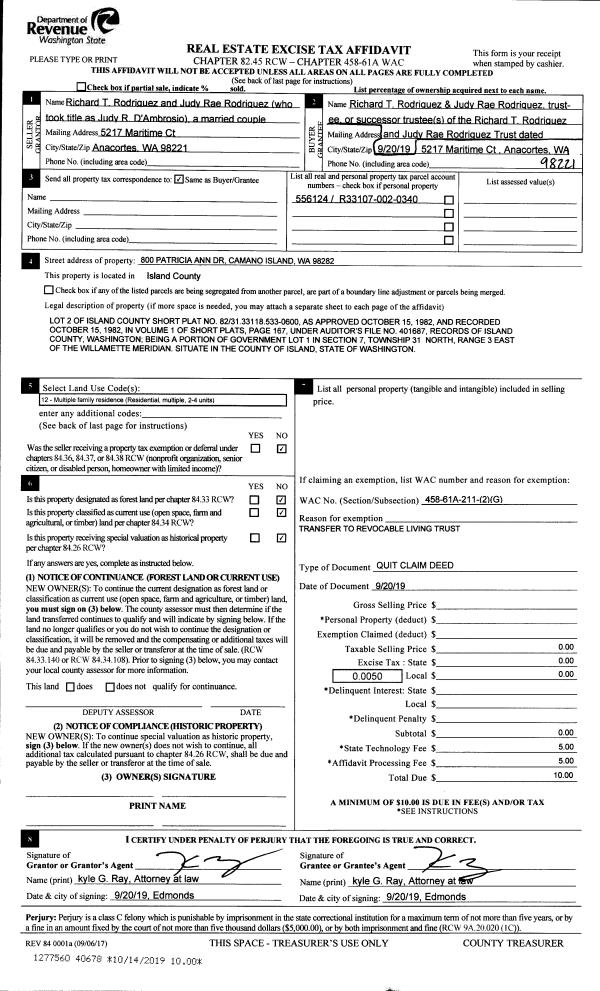
Property
Account |
| Property ID: | 755846 | Abbreviated Legal Description: | LOT 4 SP 474-95.23317.288-1200 V3 SP P163 AF#97011859 |
| Geographic ID: | R23317-310-1290 | Agent Code: | |
| Type: | Real | | |
| Tax Area: | 112 - APPRAISER-OH Schl Dist, outside OH, improved, greater than 1 acre | Land Use Code | 11 |
| Open Space: | N | DFL | N |
| Historic Property: | N | Remodel Property: | N |
| Multi-Family Redevelopment: | N | | |
| Township: | 33 | Section: | 17 |
| Range: | R2 |
Location |
| Address: | 3829 LINDEMANS WAY OAK HARBOR, WA 98277 | Mapsco: | |
| Neighborhood: | Cycle 6 | Map ID: | 602 |
| Neighborhood CD: | 6 |
Owner |
| Name: | WARD, JAMES DANIEL | Owner ID: | 291739 |
| Mailing Address: | SUSAN SEEGMILLER WARD 3829 LINDEMANS WAY OAK HARBOR, WA 98277 | % Ownership: | 100.0000000000% |
| | | Exemptions: | |
Taxes and Assessment Details
Values
| (+) Improvement Homesite Value: | + | $0 | |
| (+) Improvement Non-Homesite Value: | + | $350,273 | |
| (+) Land Homesite Value: | + | $0 | |
| (+) Land Non-Homesite Value: | + | $210,000 | |
| (+) Curr Use (HS): | + | $0 | $0 |
| (+) Curr Use (NHS): | + | $0 | $0 |
| | | -------------------------- | |
| (=) Market Value: | = | $560,273 | |
| (–) Productivity Loss: | – | $0 | |
| | | -------------------------- | |
| (=) Subtotal: | = | $560,273 | |
| (+) Senior Appraised Value: | + | $0 | |
| (+) Non-Senior Appraised Value: | + | $560,273 | |
| | | -------------------------- | |
| (=) Total Appraised Value: | = | $560,273 | |
| (–) Senior Exemption Loss: | – | $0 | |
| (–) Exemption Loss: | – | $0 | |
| | | -------------------------- | |
| (=) Taxable Value: | = | $560,273 | |
Taxing Jurisdiction
| Owner: | WARD, JAMES DANIEL | | |
| % Ownership: | 100.0000000000% | | |
| Total Value: | $560,273 | | |
| Tax Area: | 112 - APPRAISER-OH Schl Dist, outside OH, improved, greater than 1 acre |
| CF | Conservation Futures | 0.0316035091 | $560,273 | $560,273 | $17.71 | | |
| CEM1 | Cemetery #1 | 0.0040320932 | $560,273 | $560,273 | $2.26 | | |
| FIRE2 | Fire & Rescue Dist #2 N Whidbey GEN | 0.5475949600 | $560,273 | $560,273 | $306.80 | | |
| HOBOND | Hospital BOND | 0.1910887512 | $560,273 | $560,273 | $107.06 | | |
| HOGEN | Hospital GEN | 0.3902502903 | $560,273 | $560,273 | $218.65 | | |
| CE | County Current Expense | 0.3708482477 | $560,273 | $560,273 | $207.78 | | |
| CR | County Roads | 0.4584763726 | $560,273 | $560,273 | $256.87 | | |
| ISLANDEMS | Hospital GEN (EMS) | 0.5000000000 | $560,273 | $560,273 | $280.14 | | |
| LIB | Library Sno-Isle GEN | 0.3153421757 | $560,273 | $560,273 | $176.68 | | |
| NWHIDPRMT | P & R N Whidbey GEN | 0.2004466701 | $560,273 | $560,273 | $112.30 | | |
| SCH201MO | School 201 Enrichment | 1.8559231640 | $560,273 | $560,273 | $1,039.82 | | |
| ST | State School | 1.3035497053 | $560,273 | $560,273 | $730.34 | | |
| ST2 | State School Part 2 | 0.8169543533 | $560,273 | $560,273 | $457.72 | | |
| | Total Tax Rate: | 6.9861102925 | | | | | |
| | | | | Taxes w/Current Exemptions: | $3,914.13 | | |
| | | | | Taxes w/o Exemptions: | $3,914.13 | | |
Improvement / Building
| Improvement #1: | RESIDENTIAL | State Code: | Y | 1925.5 sqft | Value: | $350,273 |
| Bathrooms: | 2.5 | Bedrooms: | 4 | | Ceiling: | DRYWALL PAINTED | Exterior Wall/Cover: | PLY/HARDBOARD T-111 | | Floor Covering: | HARDWOOD/CARP 60-40 | Floor Structure: | WOOD W/SUBFLOOR | | Foundation: | CONCRETE | Heating: | FHA GAS | | Interior Finish: | DRYWALL PAINT | Plumbing Fixture Cnt: | 12 | | Roof Slope: | 6" IN 12" | Roof Structure/Cover: | CJ ASPHALT |
|
| | Type | Description | Class CD | Sub Class CD | Year Built | Area |
| | BAS | BASE/MAIN FLOOR | 3 | 0 | 2000 | 1925.5 |
| | AGR | ATTACHED GARAGE | 3 | 0 | 2000 | 400.0 |
| | OWP | OPEN WOOD PORCH W/STEPS | 3 | 0 | 2000 | 1292.0 |
Sketch
Property Image
Land
| 1 | 17 | AC (01.01-02.00) | 1.1000 | 47916.00 | 0.00 | 0.00 | 1.00 | $210,000 | $0 |
Roll Value History
| 2026 | N/A | N/A | N/A | N/A | N/A |
| 2025 | $350,273 | $210,000 | $0 | $560,273 | $560,273 |
| 2024 | $354,383 | $210,000 | $0 | $564,383 | $564,383 |
| 2023 | $358,492 | $210,000 | $0 | $568,492 | $568,492 |
| 2022 | $320,895 | $200,000 | $0 | $520,895 | $520,895 |
| 2021 | $282,282 | $140,000 | $0 | $422,282 | $422,282 |
| 2020 | $274,857 | $130,000 | $0 | $404,857 | $404,857 |
| 2019 | $206,347 | $165,000 | $0 | $371,347 | $371,347 |
| 2018 | $206,925 | $150,000 | $0 | $356,925 | $356,925 |
| 2017 | $208,081 | $100,000 | $0 | $308,081 | $308,081 |
| 2016 | $212,446 | $100,000 | $0 | $312,446 | $312,446 |
| 2015 | $214,888 | $85,000 | $0 | $299,888 | $299,888 |
| 2014 | $217,329 | $80,000 | $0 | $297,329 | $297,329 |
| 2013 | $219,772 | $72,250 | $0 | $292,022 | $292,022 |
| 2012 | $212,521 | $72,250 | $0 | $284,771 | $284,771 |
| 2011 | $214,964 | $85,000 | $0 | $299,964 | $299,964 |
| 2010 | $225,205 | $85,000 | $0 | $310,205 | $310,205 |
| 2009 | $235,390 | $95,000 | $0 | $330,390 | $330,390 |
| 2008 | $238,917 | $104,000 | $0 | $342,917 | $342,917 |
| 2007 | $240,160 | $104,000 | $0 | $344,160 | $344,160 |
Deed and Sales History
| 1 | 09/09/2019 | WD | Warranty Deed | EDWARDS, CHARLES D | WARD, JAMES DANIEL | | | $437,000.00 | 40230 | 4471226 |
| 2 | 03/20/2013 | WD | Warranty Deed | BARNES, TRENT A | EDWARDS, CHARLES D | | | $314,000.00 | 10749 | 4336032 |
| 3 | 10/13/2005 | WD | Warranty Deed | DAVIS, MARK R | BARNES, TRENT A | | | $334,000.00 | 55363 | 4151841 |
| 4 | 07/29/2004 | WD | Warranty Deed | THE KAY HIATT TRUST, | DAVIS, MARK R | | | $242,500.00 | 43709 | 4109656 |
| 5 | 06/07/2001 | QCD | Quit Claim Deed | FOOTE, KAY HIATT | THE KAY HIATT TRUST, | | | $0.00 | 12316 | 20035685 |
| 6 | 12/20/2000 | WD | Warranty Deed | COACHMAN CONSTRUCTION INC, | FOOTE, KAY HIATT | | | $201,900.00 | 4910 | 20022670 |
| 7 | 02/15/2000 | WD | Warranty Deed | PUGET LAND COMPANY, | COACHMAN CONSTRUCTION INC, | | | $35,000.00 | 617 | 20003295 |
| 8 | 01/01/1900 | OTHER | Other - Misc. Documents | Unknown | PUGET, LAND C | | | $0.00 | 62667 | 96013103 |
Payout Agreement
| No payout information available.. |