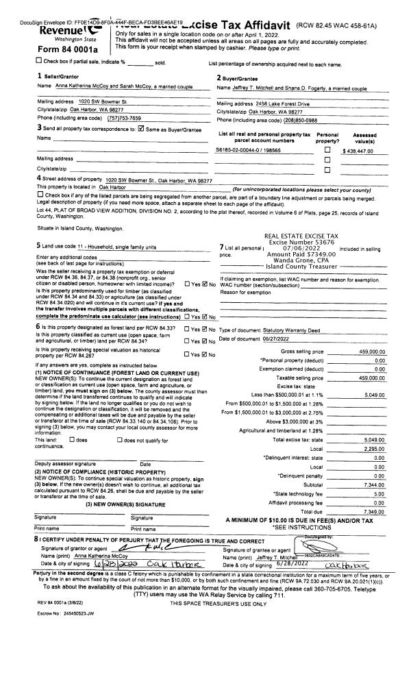
Property
Account |
| Property ID: | 75607 | Abbreviated Legal Description: | 50 - IN SW SW: E/2 OF: BG SWCR SEC 11 N1332.16' E445 .64' TPB E445.64' S499.94' W445.45' TO NECR CONKLIN TR AF#168638 N499.75' TPB |
| Geographic ID: | R23111-113-0820 | Agent Code: | |
| Type: | Real | | |
| Tax Area: | 519 - APPRAISER-Stan/Cam Schl Dist, vacant & 50 acres or less | Land Use Code | 91 |
| Open Space: | N | DFL | N |
| Historic Property: | N | Remodel Property: | N |
| Multi-Family Redevelopment: | N | | |
| Township: | 31 | Section: | 11 |
| Range: | R2 |
Location |
| Address: | | Mapsco: | |
| Neighborhood: | Cycle 5 | Map ID: | 469 |
| Neighborhood CD: | 5 |
Owner |
| Name: | BANKS, BRYAN M | Owner ID: | 3371 |
| Mailing Address: | 23409 50TH AVE W MOUNTLAKE TERRACE, WA 98043-5305 | % Ownership: | 100.0000000000% |
| | | Exemptions: | |
Taxes and Assessment Details
Values
| (+) Improvement Homesite Value: | + | $0 | |
| (+) Improvement Non-Homesite Value: | + | $0 | |
| (+) Land Homesite Value: | + | $0 | |
| (+) Land Non-Homesite Value: | + | $170,000 | |
| (+) Curr Use (HS): | + | $0 | $0 |
| (+) Curr Use (NHS): | + | $0 | $0 |
| | | -------------------------- | |
| (=) Market Value: | = | $170,000 | |
| (–) Productivity Loss: | – | $0 | |
| | | -------------------------- | |
| (=) Subtotal: | = | $170,000 | |
| (+) Senior Appraised Value: | + | $0 | |
| (+) Non-Senior Appraised Value: | + | $170,000 | |
| | | -------------------------- | |
| (=) Total Appraised Value: | = | $170,000 | |
| (–) Senior Exemption Loss: | – | $0 | |
| (–) Exemption Loss: | – | $0 | |
| | | -------------------------- | |
| (=) Taxable Value: | = | $170,000 | |
Taxing Jurisdiction
| Owner: | BANKS, BRYAN M | | |
| % Ownership: | 100.0000000000% | | |
| Total Value: | $170,000 | | |
| Tax Area: | 519 - APPRAISER-Stan/Cam Schl Dist, vacant & 50 acres or less |
| CF | Conservation Futures | 0.0316035091 | $170,000 | $170,000 | $5.37 | | |
| EMS1 | Fire & Rescue Dist #1 Camano GEN (EMS) | 0.3677864386 | $170,000 | $170,000 | $62.52 | | |
| CE | County Current Expense | 0.3708482477 | $170,000 | $170,000 | $63.04 | | |
| CR | County Roads | 0.4584763726 | $170,000 | $170,000 | $77.94 | | |
| LCIB | Library Sno-Isle BOND (Camano Island) | 0.0396325772 | $170,000 | $170,000 | $6.74 | | |
| LIB | Library Sno-Isle GEN | 0.3153421757 | $170,000 | $170,000 | $53.61 | | |
| SCH205_401 | School 205-401 Enrichment | 1.2698420524 | $170,000 | $170,000 | $215.87 | | |
| SCH205BOND | School 205-401 BOND | 0.9396497583 | $170,000 | $170,000 | $159.74 | | |
| ST | State School | 1.3035497053 | $170,000 | $170,000 | $221.60 | | |
| ST2 | State School Part 2 | 0.8169543533 | $170,000 | $170,000 | $138.88 | | |
| | Total Tax Rate: | 5.9136851902 | | | | | |
| | | | | Taxes w/Current Exemptions: | $1,005.31 | | |
| | | | | Taxes w/o Exemptions: | $1,005.31 | | |
Improvement / Building
Sketch
| No sketches available for this property. |
Property Image
Land
| 1 | 18 | AC (02.01-03.00) | 2.5500 | 111078.00 | 0.00 | 0.00 | 1.00 | $170,000 | $0 |
Roll Value History
| 2026 | N/A | N/A | N/A | N/A | N/A |
| 2025 | $0 | $170,000 | $0 | $170,000 | $170,000 |
| 2024 | $0 | $150,000 | $0 | $150,000 | $150,000 |
| 2023 | $0 | $140,000 | $0 | $140,000 | $140,000 |
| 2022 | $0 | $130,000 | $0 | $130,000 | $130,000 |
| 2021 | $0 | $100,000 | $0 | $100,000 | $100,000 |
| 2020 | $0 | $90,000 | $0 | $90,000 | $90,000 |
| 2019 | $0 | $90,000 | $0 | $90,000 | $90,000 |
| 2018 | $0 | $80,000 | $0 | $80,000 | $80,000 |
| 2017 | $0 | $80,000 | $0 | $80,000 | $80,000 |
| 2016 | $0 | $75,000 | $0 | $75,000 | $75,000 |
| 2015 | $0 | $86,500 | $0 | $86,500 | $86,500 |
| 2014 | $0 | $86,500 | $0 | $86,500 | $86,500 |
| 2013 | $0 | $86,500 | $0 | $86,500 | $86,500 |
| 2012 | $0 | $86,500 | $0 | $86,500 | $86,500 |
| 2011 | $0 | $86,500 | $0 | $86,500 | $86,500 |
| 2010 | $0 | $86,500 | $0 | $86,500 | $86,500 |
| 2009 | $0 | $125,000 | $0 | $125,000 | $125,000 |
| 2008 | $0 | $107,100 | $0 | $107,100 | $107,100 |
| 2007 | $0 | $107,100 | $0 | $107,100 | $107,100 |
Deed and Sales History
| 1 | 10/01/1989 | OTHER | Other - Misc. Documents | BANKS, BRYAN M | COOK, RUTH F | | | $0.00 | 63310 | 89013346 |
| 2 | 09/01/1989 | QCD | Quit Claim Deed | COOK, DALE | BANKS, BRYAN M | | | $0.00 | 94036 | 89013345 |
| 3 | 08/01/1965 | EXECUTORD | Executor Deed | KOCH, ARTHUR | COOK, DALE | | | $0.00 | 19426 | 0 |
| 4 | 01/01/1900 | OTHER | Other - Misc. Documents | Unknown | KOCH, ARTHUR | | | $0.00 | 0 | 0 |
Payout Agreement
| No payout information available.. |