Property
Account |
| Property ID: | 756195 | Abbreviated Legal Description: | WHIDBEY COTTAGES CONDO PHASE 2 UNIT 32 2.7027% INT |
| Geographic ID: | S8408-00-00032-0 | Agent Code: | |
| Type: | Real | | |
| Tax Area: | 100 - APPRAISER-OH Schl Dist, in OH | Land Use Code | 14 |
| Open Space: | N | DFL | N |
| Historic Property: | N | Remodel Property: | N |
| Multi-Family Redevelopment: | N | | |
| Township: | | Section: | |
| Range: | |
Location |
| Address: | 161 W WHIDBEY AVE UNIT 32 OAK HARBOR, WA 98277 | Mapsco: | |
| Neighborhood: | 4B*OH-whidbey cot | Map ID: | 253 |
| Neighborhood CD: | 4B*OHwhdby |
Owner |
| Name: | PETERS, DIANA W | Owner ID: | 307341 |
| Mailing Address: | 161 W WHIDBEY AVE #32 OAK HARBOR, WA 98277 | % Ownership: | 100.0000000000% |
| | | Exemptions: | |
Taxes and Assessment Details
Values
| (+) Improvement Homesite Value: | + | $0 | |
| (+) Improvement Non-Homesite Value: | + | $172,459 | |
| (+) Land Homesite Value: | + | $0 | |
| (+) Land Non-Homesite Value: | + | $75,000 | |
| (+) Curr Use (HS): | + | $0 | $0 |
| (+) Curr Use (NHS): | + | $0 | $0 |
| | | -------------------------- | |
| (=) Market Value: | = | $247,459 | |
| (–) Productivity Loss: | – | $0 | |
| | | -------------------------- | |
| (=) Subtotal: | = | $247,459 | |
| (+) Senior Appraised Value: | + | $0 | |
| (+) Non-Senior Appraised Value: | + | $247,459 | |
| | | -------------------------- | |
| (=) Total Appraised Value: | = | $247,459 | |
| (–) Senior Exemption Loss: | – | $0 | |
| (–) Exemption Loss: | – | $0 | |
| | | -------------------------- | |
| (=) Taxable Value: | = | $247,459 | |
Taxing Jurisdiction
| Owner: | PETERS, DIANA W | | |
| % Ownership: | 100.0000000000% | | |
| Total Value: | $247,459 | | |
| Tax Area: | 100 - APPRAISER-OH Schl Dist, in OH |
| CF | Conservation Futures | 0.0316035091 | $247,459 | $247,459 | $7.82 | | |
| CEM1 | Cemetery #1 | 0.0040320932 | $247,459 | $247,459 | $1.00 | | |
| COH | City of Oak Harbor | 2.3001546061 | $247,459 | $247,459 | $569.19 | | |
| OAKBOND | City of Oak Harbor BOND | 0.1926904192 | $247,459 | $247,459 | $47.68 | | |
| HOBOND | Hospital BOND | 0.1910887512 | $247,459 | $247,459 | $47.29 | | |
| HOGEN | Hospital GEN | 0.3902502903 | $247,459 | $247,459 | $96.57 | | |
| CE | County Current Expense | 0.3708482477 | $247,459 | $247,459 | $91.77 | | |
| ISLANDEMS | Hospital GEN (EMS) | 0.5000000000 | $247,459 | $247,459 | $123.73 | | |
| LIB | Library Sno-Isle GEN | 0.3153421757 | $247,459 | $247,459 | $78.03 | | |
| NWHIDPRMT | P & R N Whidbey GEN | 0.2004466701 | $247,459 | $247,459 | $49.60 | | |
| SCH201MO | School 201 Enrichment | 1.8559231640 | $247,459 | $247,459 | $459.26 | | |
| ST | State School | 1.3035497053 | $247,459 | $247,459 | $322.58 | | |
| ST2 | State School Part 2 | 0.8169543533 | $247,459 | $247,459 | $202.16 | | |
| | Total Tax Rate: | 8.4728839852 | | | | | |
| | | | | Taxes w/Current Exemptions: | $2,096.68 | | |
| | | | | Taxes w/o Exemptions: | $2,096.68 | | |
Improvement / Building
| Improvement #1: | RESIDENTIAL | State Code: | A1 | 750.0 sqft | Value: | $172,459 |
| Bathrooms: | 1 | Bedrooms: | 2 | | Ceiling: | DRYWALL PAINTED | Exterior Wall/Cover: | PLY/HARDBOARD T-111 | | Floor Covering: | CARPET/VINYL 80-20 | Floor Structure: | WOOD W/SUBFLOOR | | Foundation: | CONCRETE | Heating: | B/B HOT WATER-GAS | | Interior Finish: | DRYWALL PAINT | Plumbing Fixture Cnt: | 6 | | Roof Slope: | 8" IN 12" | Roof Structure/Cover: | CJ ASPHALT |
|
| | Type | Description | Class CD | Sub Class CD | Year Built | Area |
| | BAS | BASE/MAIN FLOOR | 3 | 0 | 1997 | 750.0 |
| | OP4 | OPEN PORCH W/CEILING-ROOF | 3 | 0 | 1997 | 105.0 |
| | AGR | ATTACHED GARAGE | 3 | 0 | 1997 | 240.0 |
| | oSTR | STRUCTURE/OTHER FEAT | 3 | 0 | 1997 | 0.0 |
Sketch
Property Image
Land
| 1 | 61 | MULTIPLE RESIDENCES | 0.0000 | 4794.00 | 0.00 | 0.00 | 1.00 | $75,000 | $0 |
Roll Value History
| 2026 | N/A | N/A | N/A | N/A | N/A |
| 2025 | $172,459 | $75,000 | $0 | $247,459 | $247,459 |
| 2024 | $174,449 | $75,000 | $0 | $249,449 | $249,449 |
| 2023 | $176,442 | $60,000 | $0 | $236,442 | $236,442 |
| 2022 | $162,579 | $60,000 | $0 | $222,579 | $222,579 |
| 2021 | $144,328 | $50,000 | $0 | $194,328 | $194,328 |
| 2020 | $144,879 | $45,000 | $0 | $189,879 | $189,879 |
| 2019 | $103,874 | $70,000 | $0 | $173,874 | $173,874 |
| 2018 | $104,175 | $65,000 | $0 | $169,175 | $169,175 |
| 2017 | $104,773 | $15,000 | $0 | $119,773 | $119,773 |
| 2016 | $105,972 | $15,000 | $0 | $120,972 | $43,106 |
| 2015 | $88,570 | $15,000 | $0 | $103,570 | $41,428 |
| 2014 | $81,730 | $23,347 | $0 | $105,077 | $42,031 |
| 2013 | $82,626 | $23,347 | $0 | $105,973 | $42,389 |
| 2012 | $84,418 | $23,347 | $0 | $107,765 | $107,765 |
| 2011 | $84,418 | $23,347 | $0 | $107,765 | $43,106 |
| 2010 | $86,262 | $36,482 | $0 | $122,744 | $31,946 |
| 2009 | $105,991 | $52,734 | $0 | $158,725 | $41,946 |
| 2008 | $107,152 | $43,146 | $0 | $150,298 | $41,946 |
| 2007 | $108,304 | $43,146 | $0 | $151,450 | $41,946 |
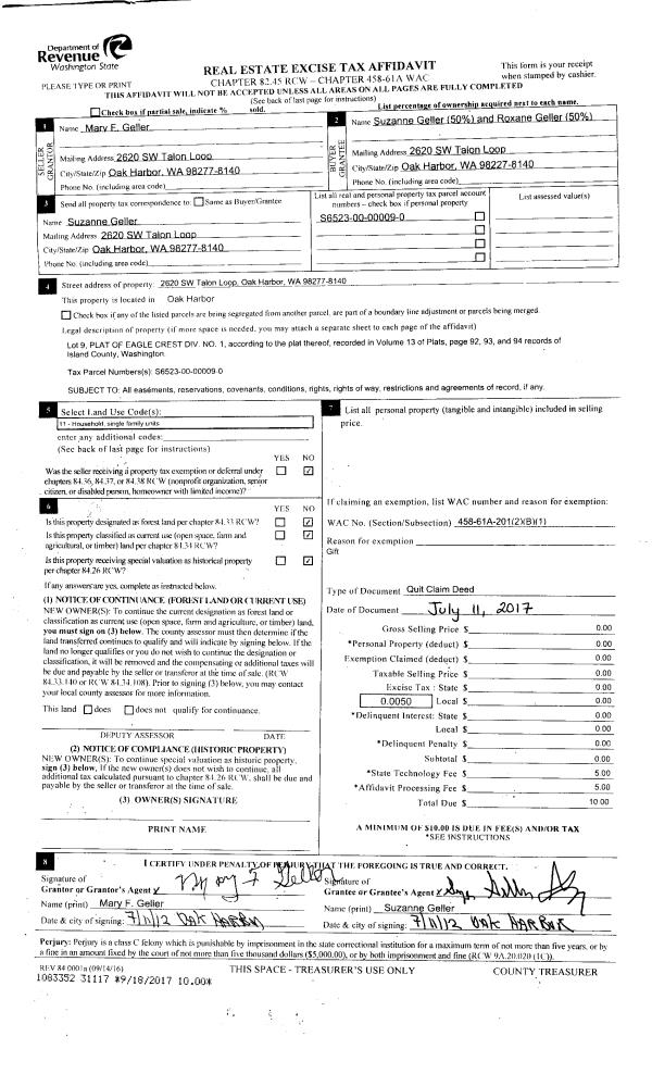
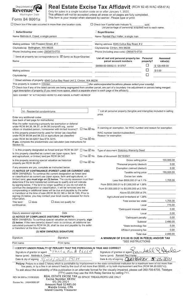
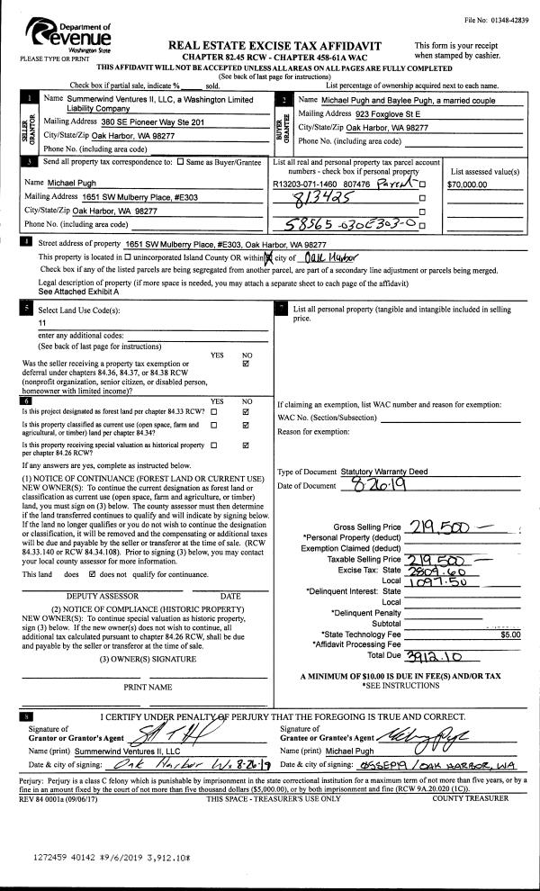
Deed and Sales History
| 1 | 01/11/2023 | WD | Warranty Deed | HALLAHAN, ROBERT J | PETERS, DIANA W | | | $248,000.00 | 55661 | 4555887 |
| 2 | 09/01/2021 | WD | Warranty Deed | ABBOTT TTEE, HARRY J | HALLAHAN, ROBERT J | | | $226,500.00 | 49963 | 4528710 |
| 3 | 12/15/2020 | QCD | Quit Claim Deed | FIDDLER, MARY L | ABBOTT TTEE, HARRY J | | | $0.00 | 46165 | 4505568 |
| 4 | 03/13/2019 | QCD | Quit Claim Deed | ABBOTT, HARRY J | FIDDLER, MARY L | | | $0.00 | 37904 | 4460647 |
| 5 | 11/05/2018 | WD | Warranty Deed | JOHNSON, CHRISTINE A | FIDDLER, MARY L | | | $0.00 | 36764 | 4455534 |
| 6 | 11/05/2018 | WD | Warranty Deed | JOHNSON, CHRISTINE A | FIDDLER, MARY L | | | $169,900.00 | 36588 | 4454709 |
| 7 | 06/13/2017 | WD | Warranty Deed | HESTER, SUANNA M | JOHNSON, CHRISTINE A | | | $155,000.00 | 29803 | 4424531 |
| 8 | 11/11/2011 | WD | Warranty Deed | ARCHIBALD, ENID A | HESTER, SUANNA M | | | $118,500.00 | 6131 | 4304809 |
| 9 | 07/03/2002 | WD | Warranty Deed | BOURNE, EVERETT J | ARCHIBALD, ENID A | | | $93,000.00 | 22619 | 4025011 |
| 10 | 02/25/2002 | WD | Warranty Deed | SEWELL, JOYCE R | BOURNE, EVERETT J | | | $87,000.00 | 20812 | 4012888 |
| 11 | 05/14/1999 | WD | Warranty Deed | HOMESTEAD, NW D | SEWELL, JOYCE R | | | $99,950.00 | 91926 | 99012177 |
| 12 | 01/01/1900 | OTHER | Other - Misc. Documents | Unknown | HOMESTEAD, NW D | | | $0.00 | 67103 | 96014854 |
Payout Agreement
| No payout information available.. |