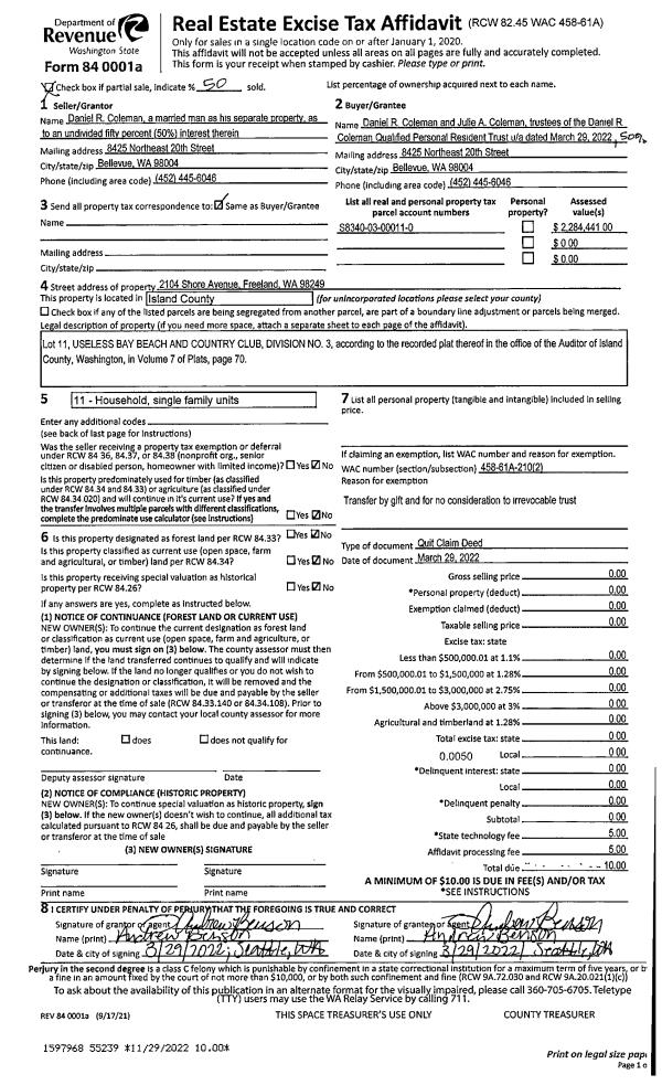
Property
Account |
| Property ID: | 75634 | Abbreviated Legal Description: | 75 - S/2 SW SW NW SW EX RD |
| Geographic ID: | R23111-147-0220 | Agent Code: | |
| Type: | Real | | |
| Tax Area: | 512 - APPRAISER-Stan/Cam Schl Dist, improved, greater than 1 acre | Land Use Code | 11 |
| Open Space: | N | DFL | N |
| Historic Property: | N | Remodel Property: | N |
| Multi-Family Redevelopment: | N | | |
| Township: | 31 | Section: | 11 |
| Range: | R2 |
Location |
| Address: | 693 S WEST CAMANO DR CAMANO ISLAND, WA 98282 | Mapsco: | |
| Neighborhood: | Cycle 5 | Map ID: | 469 |
| Neighborhood CD: | 5 |
Owner |
| Name: | GREENOUGH, BRIAN A | Owner ID: | 195692 |
| Mailing Address: | ASHLEY GREENOUGH 693 S WEST CAMANO DR CAMANO ISLAND, WA 98282-7541 | % Ownership: | 100.0000000000% |
| | | Exemptions: | |
Taxes and Assessment Details
Values
| (+) Improvement Homesite Value: | + | $0 | |
| (+) Improvement Non-Homesite Value: | + | $273,478 | |
| (+) Land Homesite Value: | + | $0 | |
| (+) Land Non-Homesite Value: | + | $260,000 | |
| (+) Curr Use (HS): | + | $0 | $0 |
| (+) Curr Use (NHS): | + | $0 | $0 |
| | | -------------------------- | |
| (=) Market Value: | = | $533,478 | |
| (–) Productivity Loss: | – | $0 | |
| | | -------------------------- | |
| (=) Subtotal: | = | $533,478 | |
| (+) Senior Appraised Value: | + | $0 | |
| (+) Non-Senior Appraised Value: | + | $533,478 | |
| | | -------------------------- | |
| (=) Total Appraised Value: | = | $533,478 | |
| (–) Senior Exemption Loss: | – | $0 | |
| (–) Exemption Loss: | – | $0 | |
| | | -------------------------- | |
| (=) Taxable Value: | = | $533,478 | |
Taxing Jurisdiction
| Owner: | GREENOUGH, BRIAN A | | |
| % Ownership: | 100.0000000000% | | |
| Total Value: | $533,478 | | |
| Tax Area: | 512 - APPRAISER-Stan/Cam Schl Dist, improved, greater than 1 acre |
| CF | Conservation Futures | 0.0316035091 | $533,478 | $533,478 | $16.86 | | |
| EMS1 | Fire & Rescue Dist #1 Camano GEN (EMS) | 0.3677864386 | $533,478 | $533,478 | $196.21 | | |
| FIRE1 | Fire & Rescue Dist #1 Camano GEN | 1.2502910536 | $533,478 | $533,478 | $667.00 | | |
| FIRE1BOND | Fire & Rescue Dist #1 Camano BOND | 0.1570001679 | $533,478 | $533,478 | $83.76 | | |
| CE | County Current Expense | 0.3708482477 | $533,478 | $533,478 | $197.84 | | |
| CR | County Roads | 0.4584763726 | $533,478 | $533,478 | $244.59 | | |
| LCIB | Library Sno-Isle BOND (Camano Island) | 0.0396325772 | $533,478 | $533,478 | $21.14 | | |
| LIB | Library Sno-Isle GEN | 0.3153421757 | $533,478 | $533,478 | $168.23 | | |
| SCH205_401 | School 205-401 Enrichment | 1.2698420524 | $533,478 | $533,478 | $677.43 | | |
| SCH205BOND | School 205-401 BOND | 0.9396497583 | $533,478 | $533,478 | $501.28 | | |
| ST | State School | 1.3035497053 | $533,478 | $533,478 | $695.42 | | |
| ST2 | State School Part 2 | 0.8169543533 | $533,478 | $533,478 | $435.83 | | |
| | Total Tax Rate: | 7.3209764117 | | | | | |
| | | | | Taxes w/Current Exemptions: | $3,905.59 | | |
| | | | | Taxes w/o Exemptions: | $3,905.59 | | |
Improvement / Building
| Improvement #1: | RESIDENTIAL | State Code: | Y | 1364.0 sqft | Value: | $273,478 |
| Bathrooms: | 2 | Bedrooms: | 3 | | Ceiling: | DRYWALL PAINTED | Exterior Wall/Cover: | WOOD SIDING | | Floor Covering: | CARPET/VINYL 80-20 | Floor Structure: | WOOD W/SUBFLOOR | | Foundation: | CONCRETE | Heating: | WALL HEAT ELECTRIC | | Interior Finish: | DRYWALL PAINT | Plumbing Fixture Cnt: | 9 | | Roof Slope: | 4" IN 12" | Roof Structure/Cover: | CJ ASPHALT |
|
| | Type | Description | Class CD | Sub Class CD | Year Built | Area |
| | BAS | BASE/MAIN FLOOR | 3 | 0 | 1993 | 1364.0 |
| | UB8 | BASEMENT UNFINISHED 8" | 3 | 0 | 1993 | 1352.0 |
| | OWP | OPEN WOOD PORCH W/STEPS | 3 | 0 | 1993 | 574.0 |
| | OWC | OPEN WOOD PORCH W/STEPS/ROOF/C | 3 | 0 | 1993 | 72.0 |
Sketch
Property Image
Land
| 1 | 17 | AC (01.01-02.00) | 1.1400 | 49658.40 | 0.00 | 0.00 | 1.00 | $260,000 | $0 |
Roll Value History
| 2026 | N/A | N/A | N/A | N/A | N/A |
| 2025 | $273,478 | $260,000 | $0 | $533,478 | $533,478 |
| 2024 | $276,844 | $240,000 | $0 | $516,844 | $516,844 |
| 2023 | $280,210 | $230,000 | $0 | $510,210 | $510,210 |
| 2022 | $256,774 | $240,000 | $0 | $496,774 | $496,774 |
| 2021 | $212,691 | $170,000 | $0 | $382,691 | $382,691 |
| 2020 | $207,115 | $150,000 | $0 | $357,115 | $357,115 |
| 2019 | $148,927 | $200,000 | $0 | $348,927 | $348,927 |
| 2018 | $149,379 | $150,000 | $0 | $299,379 | $299,379 |
| 2017 | $150,285 | $135,000 | $0 | $285,285 | $285,285 |
| 2016 | $152,096 | $130,000 | $0 | $282,096 | $282,096 |
| 2015 | $141,263 | $49,200 | $0 | $190,463 | $190,463 |
| 2014 | $143,073 | $49,200 | $0 | $192,273 | $192,273 |
| 2013 | $144,884 | $49,200 | $0 | $194,084 | $194,084 |
| 2012 | $146,695 | $49,200 | $0 | $195,895 | $195,895 |
| 2011 | $148,506 | $61,500 | $0 | $210,006 | $210,006 |
| 2010 | $152,994 | $61,500 | $0 | $214,494 | $214,494 |
| 2009 | $160,230 | $130,000 | $0 | $290,230 | $290,230 |
| 2008 | $162,097 | $87,423 | $0 | $249,520 | $249,520 |
| 2007 | $163,962 | $87,423 | $0 | $251,385 | $251,385 |
Deed and Sales History
| 1 | 09/13/2005 | WD | Warranty Deed | MCNEIL, SALLY A | GREENOUGH, BRIAN A | | | $250,000.00 | 4148470 | 54768 |
| 2 | 10/01/1983 | WD | Warranty Deed | SPRINGAN, PETER & | MCNEIL, SALLY A | | | $16,000.00 | 33041 | 416232 |
| 3 | 01/01/1900 | OTHER | Other - Misc. Documents | Unknown | SPRINGAN, PETER & | | | $0.00 | 0 | 0 |
Payout Agreement
| No payout information available.. |