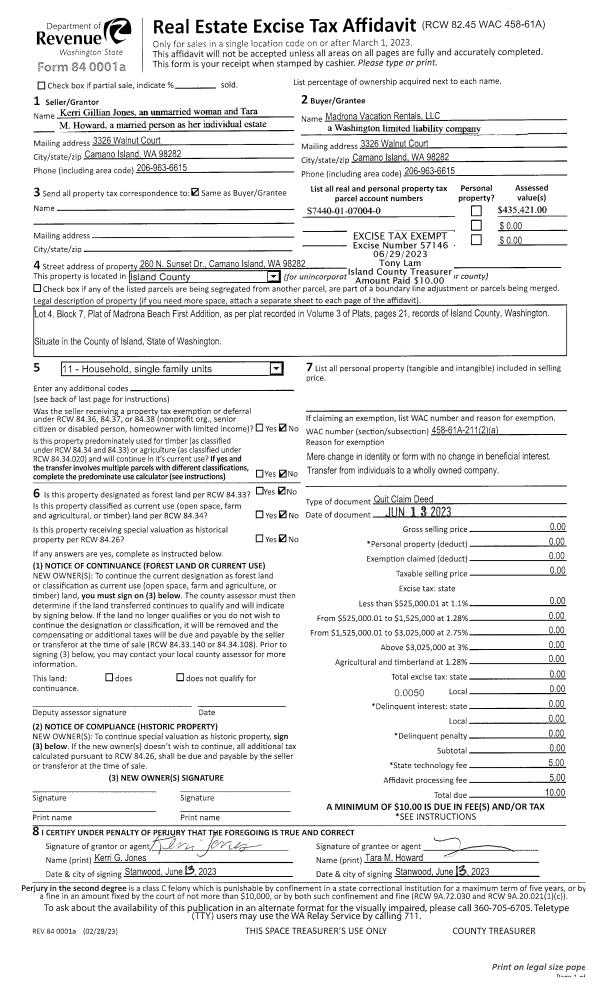
Property
Account |
| Property ID: | 756514 | Abbreviated Legal Description: | IN N/2 NE SE: BG SECR SD SUBDIV N85*W785.67' TPB N85*W146.85' N5*E332.21' S85*E143.61' S4*W332.27' TPB TGW SUB EZ FR PT 225-4400 |
| Geographic ID: | R23227-220-4410 | Agent Code: | |
| Type: | Real | | |
| Tax Area: | 512 - APPRAISER-Stan/Cam Schl Dist, improved, greater than 1 acre | Land Use Code | 11 |
| Open Space: | N | DFL | N |
| Historic Property: | N | Remodel Property: | N |
| Multi-Family Redevelopment: | N | | |
| Township: | 32 | Section: | 27 |
| Range: | R2 |
Location |
| Address: | 860 SALA PL CAMANO ISLAND, WA 98282 | Mapsco: | |
| Neighborhood: | North Camano | Map ID: | 570 |
| Neighborhood CD: | 06-C |
Owner |
| Name: | HADDOCK, JOHN L | Owner ID: | 255881 |
| Mailing Address: | JULIE M HADDOCK 860 SALAL PLACE CAMANO ISLAND, WA 98282 | % Ownership: | 100.0000000000% |
| | | Exemptions: | |
Taxes and Assessment Details
Values
| (+) Improvement Homesite Value: | + | $0 | |
| (+) Improvement Non-Homesite Value: | + | $638,195 | |
| (+) Land Homesite Value: | + | $0 | |
| (+) Land Non-Homesite Value: | + | $340,000 | |
| (+) Curr Use (HS): | + | $0 | $0 |
| (+) Curr Use (NHS): | + | $0 | $0 |
| | | -------------------------- | |
| (=) Market Value: | = | $978,195 | |
| (–) Productivity Loss: | – | $0 | |
| | | -------------------------- | |
| (=) Subtotal: | = | $978,195 | |
| (+) Senior Appraised Value: | + | $0 | |
| (+) Non-Senior Appraised Value: | + | $978,195 | |
| | | -------------------------- | |
| (=) Total Appraised Value: | = | $978,195 | |
| (–) Senior Exemption Loss: | – | $0 | |
| (–) Exemption Loss: | – | $0 | |
| | | -------------------------- | |
| (=) Taxable Value: | = | $978,195 | |
Taxing Jurisdiction
| Owner: | HADDOCK, JOHN L | | |
| % Ownership: | 100.0000000000% | | |
| Total Value: | $978,195 | | |
| Tax Area: | 512 - APPRAISER-Stan/Cam Schl Dist, improved, greater than 1 acre |
| CF | Conservation Futures | 0.0316035091 | $978,195 | $978,195 | $30.91 | | |
| EMS1 | Fire & Rescue Dist #1 Camano GEN (EMS) | 0.3677864386 | $978,195 | $978,195 | $359.77 | | |
| FIRE1 | Fire & Rescue Dist #1 Camano GEN | 1.2502910536 | $978,195 | $978,195 | $1,223.03 | | |
| FIRE1BOND | Fire & Rescue Dist #1 Camano BOND | 0.1570001679 | $978,195 | $978,195 | $153.58 | | |
| CE | County Current Expense | 0.3708482477 | $978,195 | $978,195 | $362.76 | | |
| CR | County Roads | 0.4584763726 | $978,195 | $978,195 | $448.48 | | |
| LCIB | Library Sno-Isle BOND (Camano Island) | 0.0396325772 | $978,195 | $978,195 | $38.77 | | |
| LIB | Library Sno-Isle GEN | 0.3153421757 | $978,195 | $978,195 | $308.47 | | |
| SCH205_401 | School 205-401 Enrichment | 1.2698420524 | $978,195 | $978,195 | $1,242.15 | | |
| SCH205BOND | School 205-401 BOND | 0.9396497583 | $978,195 | $978,195 | $919.16 | | |
| ST | State School | 1.3035497053 | $978,195 | $978,195 | $1,275.13 | | |
| ST2 | State School Part 2 | 0.8169543533 | $978,195 | $978,195 | $799.14 | | |
| | Total Tax Rate: | 7.3209764117 | | | | | |
| | | | | Taxes w/Current Exemptions: | $7,161.35 | | |
| | | | | Taxes w/o Exemptions: | $7,161.35 | | |
Improvement / Building
| Improvement #1: | RESIDENTIAL | State Code: | Y | 4061.4 sqft | Value: | $638,195 |
| Bathrooms: | 2.5 | Bedrooms: | 3 | | Ceiling: | DRYWALL PAINTED | Cooling: | HEAT PUMP/CONV/V | | Exterior Wall/Cover: | CEMENT FIBER | Floor Covering: | HARDWOOD/CARP 20-80 | | Floor Structure: | WOOD W/SUBFLOOR | Foundation: | CONCRETE | | Interior Finish: | DRYWALL PAINT | Plumbing Fixture Cnt: | 12 | | Roof Slope: | 10" IN 12" | Roof Structure/Cover: | CJ ASPHALT |
|
| | Type | Description | Class CD | Sub Class CD | Year Built | Area |
| | BAS | BASE/MAIN FLOOR | 4 | 0 | 2007 | 2799.2 |
| | UB8 | BASEMENT UNFINISHED 8" | 4 | 0 | 2007 | 277.5 |
| | AGR | ATTACHED GARAGE | 4 | 0 | 2007 | 882.2 |
| | OWP | OPEN WOOD PORCH W/STEPS | 4 | 0 | 2007 | 518.9 |
| | OWP | OPEN WOOD PORCH W/STEPS | 4 | 0 | 2007 | 507.8 |
| | DWN | DOWNSTAIRS LIVING AREA | 4 | 0 | 2007 | 1262.2 |
| | OP4 | OPEN PORCH W/CEILING-ROOF | 4 | 0 | 2007 | 104.5 |
Sketch
Property Image
Land
| 1 | 17 | AC (01.01-02.00) | 1.1100 | 48351.60 | 0.00 | 0.00 | 1.00 | $340,000 | $0 |
Roll Value History
| 2026 | N/A | N/A | N/A | N/A | N/A |
| 2025 | $638,195 | $340,000 | $0 | $978,195 | $978,195 |
| 2024 | $645,682 | $330,000 | $0 | $975,682 | $975,682 |
| 2023 | $653,168 | $330,000 | $0 | $983,168 | $983,168 |
| 2022 | $577,880 | $270,000 | $0 | $847,880 | $847,880 |
| 2021 | $508,427 | $230,000 | $0 | $738,427 | $738,427 |
| 2020 | $497,060 | $200,000 | $0 | $697,060 | $697,060 |
| 2019 | $416,423 | $220,000 | $0 | $636,423 | $636,423 |
| 2018 | $417,604 | $210,000 | $0 | $627,604 | $627,604 |
| 2017 | $419,944 | $150,000 | $0 | $569,944 | $569,944 |
| 2016 | $397,692 | $140,000 | $0 | $537,692 | $537,692 |
| 2015 | $402,111 | $104,000 | $0 | $506,111 | $506,111 |
| 2014 | $406,529 | $104,000 | $0 | $510,529 | $510,529 |
| 2013 | $410,947 | $104,000 | $0 | $514,947 | $514,947 |
| 2012 | $415,368 | $104,000 | $0 | $519,368 | $519,368 |
| 2011 | $419,786 | $130,000 | $0 | $549,786 | $549,786 |
| 2010 | $410,037 | $130,000 | $0 | $540,037 | $540,037 |
| 2009 | $413,711 | $147,180 | $0 | $560,891 | $560,891 |
| 2008 | $391,422 | $148,000 | $0 | $539,422 | $539,422 |
| 2007 | $179,167 | $118,000 | $0 | $297,167 | $297,167 |
Deed and Sales History
| 1 | 10/27/2011 | QCD | Quit Claim Deed | MERIT CONSTRUCTION CO INC | HADDOCK, JOHN L | | | $0.00 | 5972 | 4303625 |
| 2 | 10/21/1998 | WD | Warranty Deed | WATKINS, KENNETH R | MERIT CONSTRUCTION CO INC, | | | $75,500.00 | 84339 | 98023667 |
| 3 | 11/01/1997 | BLA | DNU - Boundary Line Adjustment | WATKINS, KENNETH R | WATKINS, KENNETH R | | | $0.00 | 67652 | 97018227 |
| 4 | 01/01/1900 | OTHER | Other - Misc. Documents | Unknown | WATKINS, KENNETH R | | | $0.00 | 80335 | 88001413 |
Payout Agreement
| No payout information available.. |