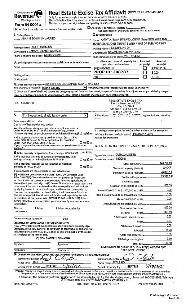
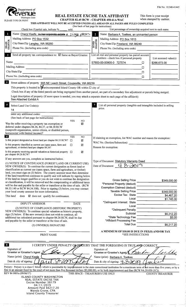
Property
Account |
| Property ID: | 756694 | Abbreviated Legal Description: | 12.4000 Acres ins Section 30s Township 32s Range R1s LOT B BLA 112/20 AF#4506055;s |
| Geographic ID: | R13230-038-1360 | Agent Code: | |
| Type: | Real | | |
| Tax Area: | 339 - APPRAISER-Cpvl Schl Dist, Special Dist, vacant & 50 acres or less | Land Use Code | 91 |
| Open Space: | N | DFL | N |
| Historic Property: | N | Remodel Property: | N |
| Multi-Family Redevelopment: | N | | |
| Township: | 32 | Section: | 30 |
| Range: | R1 |
Location |
| Address: | | Mapsco: | |
| Neighborhood: | Cycle 2 | Map ID: | 162 |
| Neighborhood CD: | 2 |
Owner |
| Name: | ISLAND COUNTY | Owner ID: | 307696 |
| Mailing Address: | PUBLIC WORKS - PARKS 1 NE 7TH ST COUPEVILLE, WA 98239 | % Ownership: | 100.0000000000% |
| | | Exemptions: | EX |
Taxes and Assessment Details
Values
| (+) Improvement Homesite Value: | + | $0 | |
| (+) Improvement Non-Homesite Value: | + | $0 | |
| (+) Land Homesite Value: | + | $0 | |
| (+) Land Non-Homesite Value: | + | $270,000 | |
| (+) Curr Use (HS): | + | $0 | $0 |
| (+) Curr Use (NHS): | + | $0 | $0 |
| | | -------------------------- | |
| (=) Market Value: | = | $270,000 | |
| (–) Productivity Loss: | – | $0 | |
| | | -------------------------- | |
| (=) Subtotal: | = | $270,000 | |
| (+) Senior Appraised Value: | + | $0 | |
| (+) Non-Senior Appraised Value: | + | $270,000 | |
| | | -------------------------- | |
| (=) Total Appraised Value: | = | $270,000 | |
| (–) Senior Exemption Loss: | – | $0 | |
| (–) Exemption Loss: | – | $270,000 | |
| | | -------------------------- | |
| (=) Taxable Value: | = | $0 | |
Taxing Jurisdiction
| Owner: | ISLAND COUNTY | | |
| % Ownership: | 100.0000000000% | | |
| Total Value: | $270,000 | | |
| Tax Area: | 339 - APPRAISER-Cpvl Schl Dist, Special Dist, vacant & 50 acres or less |
| CF | Conservation Futures | 0.0316035091 | $270,000 | $0 | $0.00 | | |
| CEM2 | Cemetery #2 | 0.0095056933 | $270,000 | $0 | $0.00 | | |
| HOBOND | Hospital BOND | 0.1910887512 | $270,000 | $0 | $0.00 | | |
| HOGEN | Hospital GEN | 0.3902502903 | $270,000 | $0 | $0.00 | | |
| CE | County Current Expense | 0.3708482477 | $270,000 | $0 | $0.00 | | |
| CR | County Roads | 0.4584763726 | $270,000 | $0 | $0.00 | | |
| ISLANDEMS | Hospital GEN (EMS) | 0.5000000000 | $270,000 | $0 | $0.00 | | |
| LIB | Library Sno-Isle GEN | 0.3153421757 | $270,000 | $0 | $0.00 | | |
| LIBCAP | Library Sno-Isle BOND (Cap Fac Imp Area) | 0.0543427938 | $270,000 | $0 | $0.00 | | |
| POCOUP | Port of Coupeville GEN | 0.1093371703 | $270,000 | $0 | $0.00 | | |
| POCOUPIDD | Port of Coupeville IDD | 0.3409740022 | $270,000 | $0 | $0.00 | | |
| COUPSDTECH | School 204 CP (TECH) | 0.7545480007 | $270,000 | $0 | $0.00 | | |
| SCH204MO | School 204 Enrichment | 0.6716186034 | $270,000 | $0 | $0.00 | | |
| ST | State School | 1.3035497053 | $270,000 | $0 | $0.00 | | |
| ST2 | State School Part 2 | 0.8169543533 | $270,000 | $0 | $0.00 | | |
| | Total Tax Rate: | 6.3184396689 | | | | | |
| | | | | Taxes w/Current Exemptions: | $0.00 | | |
| | | | | Taxes w/o Exemptions: | $1,705.98 | | |
Improvement / Building
Sketch
| No sketches available for this property. |
Property Image
Land
| 1 | 35 | AC (10.00-30.99) | 12.4000 | 540144.00 | 0.00 | 0.00 | 1.00 | $270,000 | $0 |
Roll Value History
| 2026 | N/A | N/A | N/A | N/A | N/A |
| 2025 | $0 | $270,000 | $0 | $270,000 | $0 |
| 2024 | $0 | $240,000 | $0 | $240,000 | $0 |
| 2023 | $0 | $240,000 | $0 | $240,000 | $0 |
| 2022 | $0 | $180,000 | $0 | $180,000 | $0 |
| 2021 | $0 | $180,000 | $0 | $180,000 | $0 |
| 2020 | $0 | $180,000 | $0 | $180,000 | $0 |
| 2019 | $0 | $150,000 | $0 | $150,000 | $0 |
| 2018 | $0 | $150,000 | $847 | $847 | $0 |
| 2017 | $0 | $150,000 | $847 | $847 | $847 |
| 2016 | $0 | $150,000 | $1,111 | $1,111 | $1,111 |
| 2015 | $0 | $150,000 | $1,111 | $1,111 | $1,111 |
| 2014 | $0 | $121,550 | $1,111 | $1,111 | $1,111 |
| 2013 | $0 | $121,550 | $1,111 | $1,111 | $1,111 |
| 2012 | $0 | $121,550 | $1,111 | $1,111 | $1,111 |
| 2011 | $0 | $143,000 | $1,111 | $1,111 | $1,111 |
| 2010 | $0 | $143,000 | $1,111 | $1,111 | $1,111 |
| 2009 | $0 | $220,000 | $1,111 | $1,111 | $1,111 |
| 2008 | $0 | $180,000 | $1,111 | $1,111 | $1,111 |
| 2007 | $0 | $146,300 | $1,111 | $1,111 | $1,111 |
Deed and Sales History
| 1 | 12/16/2020 | QCD | Quit Claim Deed | ISLAND COUNTY | ISLAND COUNTY | | | $0.00 | 46246 | 4506058 |
| 2 | 04/29/2019 | WD | Warranty Deed | ALLITO PROPERTIES LLC | ISLAND COUNTY | | | $45,000.00 | 38432 | 4462982 |
|   | |
| 3 | 04/24/2019 | EZ | Easement | ALLITO PROPERTIES LLC | UNITED STATES OF AMERICA | | | $585,000.00 | 38431 | 4462981 |
|   | |
| 4 | 04/01/2003 | QCD | Quit Claim Deed | ALLITO PROPERTIES LLC | ALLITO PROPERTIES LLC | | | $0.00 | 38430 | 4462980 |
| 5 | 06/11/1999 | WD | Warranty Deed | ALOHA LUMBER CORPORATION | ALLITO PROPERTIES LLC | | | $0.00 | 37676 | 4459659 |
| 6 | 07/14/2010 | QCD | Quit Claim Deed | PROPERTIES LLC, ALLITO | PROPERTIES LLC, ALLITO | | | $726.00 | 1860 | 4277914 |
| 7 | 04/01/2003 | QCD | Quit Claim Deed | ALLITO LLC, | PROPERTIES LLC, ALLITO | | | $0.00 | 31506 | 4054932 |
| 8 | 06/11/1999 | WD | Warranty Deed | ALOHA, LUMBER C | ALLITO LLC, | | | $52,500.00 | 92534 | 99015310 |
| 9 | 11/01/1997 | SEG | DNU - Segregation | ALOHA, LUMBER C | ALOHA, LUMBER C | | | $0.00 | 67661 | 0 |
| 10 | 01/01/1900 | OTHER | Other - Misc. Documents | Unknown | ALOHA, LUMBER C | | | $0.00 | 53507 | 95016059 |
Payout Agreement
| No payout information available.. |