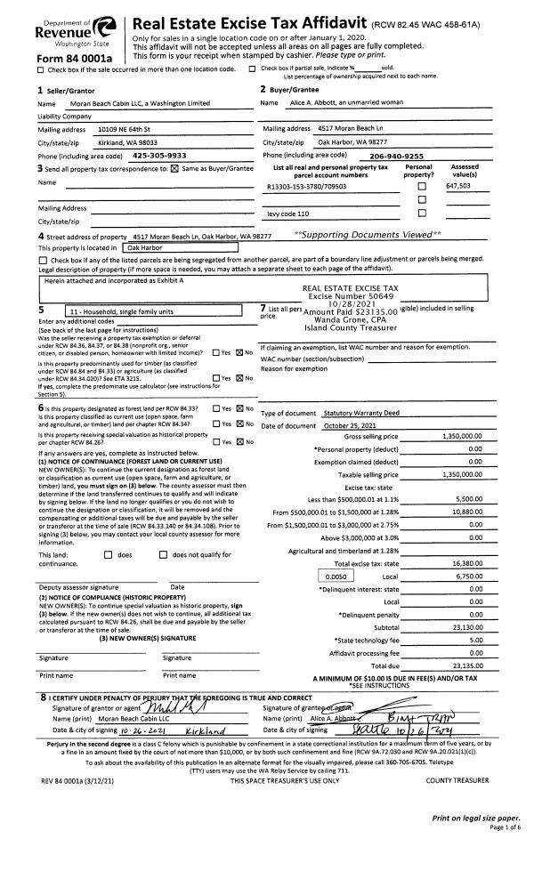
Property
Account |
| Property ID: | 756961 | Abbreviated Legal Description: | LOT 1 SP 103-96.23113.182-3530 V3 SP P173 AF#97014300 |
| Geographic ID: | R23113-181-3290 | Agent Code: | |
| Type: | Real | | |
| Tax Area: | 512 - APPRAISER-Stan/Cam Schl Dist, improved, greater than 1 acre | Land Use Code | 11 |
| Open Space: | N | DFL | N |
| Historic Property: | N | Remodel Property: | N |
| Multi-Family Redevelopment: | N | | |
| Township: | 31 | Section: | 13 |
| Range: | R2 |
Location |
| Address: | 1073 LAWSON RD CAMANO ISLAND, WA 98282 | Mapsco: | |
| Neighborhood: | Cycle 5 | Map ID: | 478 |
| Neighborhood CD: | 5 |
Owner |
| Name: | MKSK MANAGEMENT LLC | Owner ID: | 299823 |
| Mailing Address: | 21708 2ND AVE W BOTHELL, WA 98021 | % Ownership: | 100.0000000000% |
| | | Exemptions: | |
Taxes and Assessment Details
Values
| (+) Improvement Homesite Value: | + | $0 | |
| (+) Improvement Non-Homesite Value: | + | $486,619 | |
| (+) Land Homesite Value: | + | $0 | |
| (+) Land Non-Homesite Value: | + | $300,000 | |
| (+) Curr Use (HS): | + | $0 | $0 |
| (+) Curr Use (NHS): | + | $0 | $0 |
| | | -------------------------- | |
| (=) Market Value: | = | $786,619 | |
| (–) Productivity Loss: | – | $0 | |
| | | -------------------------- | |
| (=) Subtotal: | = | $786,619 | |
| (+) Senior Appraised Value: | + | $0 | |
| (+) Non-Senior Appraised Value: | + | $786,619 | |
| | | -------------------------- | |
| (=) Total Appraised Value: | = | $786,619 | |
| (–) Senior Exemption Loss: | – | $0 | |
| (–) Exemption Loss: | – | $0 | |
| | | -------------------------- | |
| (=) Taxable Value: | = | $786,619 | |
Taxing Jurisdiction
| Owner: | MKSK MANAGEMENT LLC | | |
| % Ownership: | 100.0000000000% | | |
| Total Value: | $786,619 | | |
| Tax Area: | 512 - APPRAISER-Stan/Cam Schl Dist, improved, greater than 1 acre |
| CF | Conservation Futures | 0.0316035091 | $786,619 | $786,619 | $24.86 | | |
| EMS1 | Fire & Rescue Dist #1 Camano GEN (EMS) | 0.3677864386 | $786,619 | $786,619 | $289.31 | | |
| FIRE1 | Fire & Rescue Dist #1 Camano GEN | 1.2502910536 | $786,619 | $786,619 | $983.50 | | |
| FIRE1BOND | Fire & Rescue Dist #1 Camano BOND | 0.1570001679 | $786,619 | $786,619 | $123.50 | | |
| CE | County Current Expense | 0.3708482477 | $786,619 | $786,619 | $291.72 | | |
| CR | County Roads | 0.4584763726 | $786,619 | $786,619 | $360.65 | | |
| LCIB | Library Sno-Isle BOND (Camano Island) | 0.0396325772 | $786,619 | $786,619 | $31.18 | | |
| LIB | Library Sno-Isle GEN | 0.3153421757 | $786,619 | $786,619 | $248.05 | | |
| SCH205_401 | School 205-401 Enrichment | 1.2698420524 | $786,619 | $786,619 | $998.88 | | |
| SCH205BOND | School 205-401 BOND | 0.9396497583 | $786,619 | $786,619 | $739.15 | | |
| ST | State School | 1.3035497053 | $786,619 | $786,619 | $1,025.40 | | |
| ST2 | State School Part 2 | 0.8169543533 | $786,619 | $786,619 | $642.63 | | |
| | Total Tax Rate: | 7.3209764117 | | | | | |
| | | | | Taxes w/Current Exemptions: | $5,758.83 | | |
| | | | | Taxes w/o Exemptions: | $5,758.83 | | |
Improvement / Building
| Improvement #1: | RESIDENTIAL | State Code: | Y | 2598.9 sqft | Value: | $486,619 |
| Bathrooms: | 3 | Bedrooms: | 3 | | Ceiling: | DRYWALL PAINTED | Exterior Wall/Cover: | CEMENT FIBER | | Floor Covering: | HARDWOOD/CARP 20-80 | Floor Structure: | WOOD W/SUBFLOOR | | Foundation: | CONCRETE | Heating: | FHA GAS | | Interior Finish: | DRYWALL PAINT | Plumbing Fixture Cnt: | 15 | | Roof Slope: | 5" IN 12" | Roof Structure/Cover: | CJ ASPHALT |
|
| | Type | Description | Class CD | Sub Class CD | Year Built | Area |
| | BAS | BASE/MAIN FLOOR | 3 | 0 | 2000 | 2178.9 |
| | BAS | BASE/MAIN FLOOR | 3 | 0 | 2000 | 420.0 |
| | OP4 | OPEN PORCH W/CEILING-ROOF | 3 | 0 | 2000 | 47.2 |
| | DGR | DETACHED GARAGE | 3 | 0 | 2000 | 834.8 |
| | AGR | ATTACHED GARAGE | 3 | 0 | 2000 | 577.2 |
| | OWP | OPEN WOOD PORCH W/STEPS | 3 | 0 | 2000 | 40.5 |
| | OWP | OPEN WOOD PORCH W/STEPS | 3 | 0 | 2000 | 579.8 |
| | OWC | OPEN WOOD PORCH W/STEPS/ROOF/C | 3 | 0 | 2000 | 102.0 |
Sketch
Property Image
Land
| 1 | 18 | AC (02.01-03.00) | 2.3000 | 100188.00 | 0.00 | 0.00 | 1.00 | $300,000 | $0 |
Roll Value History
| 2026 | N/A | N/A | N/A | N/A | N/A |
| 2025 | $486,619 | $300,000 | $0 | $786,619 | $786,619 |
| 2024 | $492,326 | $280,000 | $0 | $772,326 | $772,326 |
| 2023 | $498,034 | $270,000 | $0 | $768,034 | $768,034 |
| 2022 | $456,145 | $260,000 | $0 | $716,145 | $716,145 |
| 2021 | $383,160 | $180,000 | $0 | $563,160 | $563,160 |
| 2020 | $373,337 | $150,000 | $0 | $523,337 | $523,337 |
| 2019 | $288,965 | $200,000 | $0 | $488,965 | $488,965 |
| 2018 | $289,793 | $150,000 | $0 | $439,793 | $439,793 |
| 2017 | $291,352 | $135,000 | $0 | $426,352 | $426,352 |
| 2016 | $286,590 | $100,000 | $0 | $386,590 | $386,590 |
| 2015 | $282,393 | $89,600 | $0 | $371,993 | $371,993 |
| 2014 | $285,757 | $89,600 | $0 | $375,357 | $375,357 |
| 2013 | $289,116 | $89,600 | $0 | $378,716 | $378,716 |
| 2012 | $292,480 | $89,600 | $0 | $382,080 | $382,080 |
| 2011 | $295,842 | $112,000 | $0 | $407,842 | $407,842 |
| 2010 | $264,702 | $112,000 | $0 | $376,702 | $376,702 |
| 2009 | $275,915 | $135,000 | $0 | $410,915 | $410,915 |
| 2008 | $279,031 | $134,000 | $0 | $413,031 | $413,031 |
| 2007 | $279,222 | $130,000 | $0 | $409,222 | $409,222 |
Deed and Sales History
| 1 | 04/16/2021 | QCD | Quit Claim Deed | KLAUBER, MARK R | MKSK MANAGEMENT LLC | | | $0.00 | 48755 | 4522233 |
| 2 | 04/19/2021 | QCD | Quit Claim Deed | KLAUBER, MARK R | MKSK MANAGEMENT LLC | | | $0.00 | 48737 | 4522154 |
| 3 | 04/19/2021 | QCD | Quit Claim Deed | KLAUBER, RICHARD A | KLAUBER, MARK R | | | $0.00 | 48722 | 4522078 |
| 4 | 05/13/2016 | WD | Warranty Deed | OLSON, GEORGE E | KLAUBER, RICHARD A | | | $449,000.00 | 24398 | 4399660 |
| 5 | 04/19/2002 | WD | Warranty Deed | SKINNER, ROGER | OLSON, GEORGE E | | | $278,500.00 | 21511 | 4017844 |
| 6 | 05/05/1999 | WD | Warranty Deed | BAKER, SIDNEY W | SKINNER, ROGER | | | $61,000.00 | 91801 | 99011384 |
| 7 | 01/01/1900 | OTHER | Other - Misc. Documents | Unknown | BAKER, SIDNEY W | | | $0.00 | 60634 | 96003455 |
Payout Agreement
| No payout information available.. |