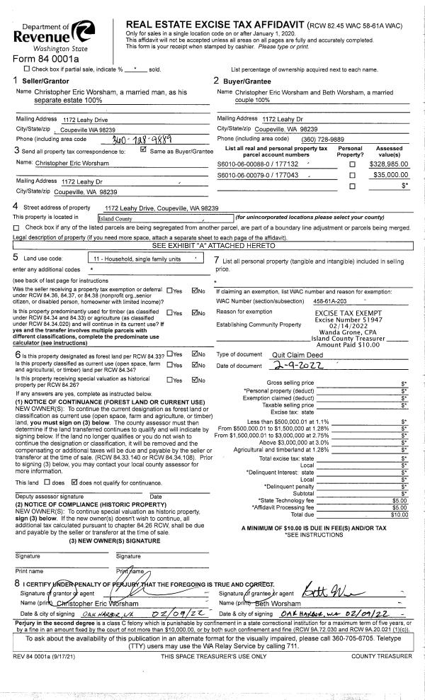
Property
Account |
| Property ID: | 757176 | Abbreviated Legal Description: | LOT 2 SP 45-94.23123.528-2120 V3 SP P175 AF#97017540 |
| Geographic ID: | R23123-528-1740 | Agent Code: | |
| Type: | Real | | |
| Tax Area: | 510 - APPRAISER-Stan/Cam Schl Dist, improved & 1 acre or less | Land Use Code | 11 |
| Open Space: | N | DFL | N |
| Historic Property: | N | Remodel Property: | N |
| Multi-Family Redevelopment: | N | | |
| Township: | 31 | Section: | 23 |
| Range: | R2 |
Location |
| Address: | 664 LACTRUP SPUR LN CAMANO ISLAND, WA 98282 | Mapsco: | |
| Neighborhood: | Cycle 5 | Map ID: | 502 |
| Neighborhood CD: | 5 |
Owner |
| Name: | BUTLER II, MICHAEL R | Owner ID: | 192839 |
| Mailing Address: | 664 LACTRUP SPUR LN CAMANO ISLAND, WA 98282 | % Ownership: | 100.0000000000% |
| | | Exemptions: | |
Taxes and Assessment Details
Values
| (+) Improvement Homesite Value: | + | $0 | |
| (+) Improvement Non-Homesite Value: | + | $460,080 | |
| (+) Land Homesite Value: | + | $0 | |
| (+) Land Non-Homesite Value: | + | $280,000 | |
| (+) Curr Use (HS): | + | $0 | $0 |
| (+) Curr Use (NHS): | + | $0 | $0 |
| | | -------------------------- | |
| (=) Market Value: | = | $740,080 | |
| (–) Productivity Loss: | – | $0 | |
| | | -------------------------- | |
| (=) Subtotal: | = | $740,080 | |
| (+) Senior Appraised Value: | + | $0 | |
| (+) Non-Senior Appraised Value: | + | $740,080 | |
| | | -------------------------- | |
| (=) Total Appraised Value: | = | $740,080 | |
| (–) Senior Exemption Loss: | – | $0 | |
| (–) Exemption Loss: | – | $0 | |
| | | -------------------------- | |
| (=) Taxable Value: | = | $740,080 | |
Taxing Jurisdiction
| Owner: | BUTLER II, MICHAEL R | | |
| % Ownership: | 100.0000000000% | | |
| Total Value: | $740,080 | | |
| Tax Area: | 510 - APPRAISER-Stan/Cam Schl Dist, improved & 1 acre or less |
| CF | Conservation Futures | 0.0316035091 | $740,080 | $740,080 | $23.39 | | |
| EMS1 | Fire & Rescue Dist #1 Camano GEN (EMS) | 0.3677864386 | $740,080 | $740,080 | $272.19 | | |
| FIRE1 | Fire & Rescue Dist #1 Camano GEN | 1.2502910536 | $740,080 | $740,080 | $925.32 | | |
| FIRE1BOND | Fire & Rescue Dist #1 Camano BOND | 0.1570001679 | $740,080 | $740,080 | $116.19 | | |
| CE | County Current Expense | 0.3708482477 | $740,080 | $740,080 | $274.46 | | |
| CR | County Roads | 0.4584763726 | $740,080 | $740,080 | $339.31 | | |
| LCIB | Library Sno-Isle BOND (Camano Island) | 0.0396325772 | $740,080 | $740,080 | $29.33 | | |
| LIB | Library Sno-Isle GEN | 0.3153421757 | $740,080 | $740,080 | $233.38 | | |
| SCH205_401 | School 205-401 Enrichment | 1.2698420524 | $740,080 | $740,080 | $939.78 | | |
| SCH205BOND | School 205-401 BOND | 0.9396497583 | $740,080 | $740,080 | $695.42 | | |
| ST | State School | 1.3035497053 | $740,080 | $740,080 | $964.73 | | |
| ST2 | State School Part 2 | 0.8169543533 | $740,080 | $740,080 | $604.61 | | |
| | Total Tax Rate: | 7.3209764117 | | | | | |
| | | | | Taxes w/Current Exemptions: | $5,418.11 | | |
| | | | | Taxes w/o Exemptions: | $5,418.11 | | |
Improvement / Building
| Improvement #1: | RESIDENTIAL | State Code: | Y | 2223.0 sqft | Value: | $460,080 |
| Bathrooms: | 2.5 | Bedrooms: | 4 | | Ceiling: | DRYWALL PAINTED | Exterior Wall/Cover: | CEMENT FIBER | | Floor Covering: | HARDWOOD/CARP 20-80 | Floor Structure: | WOOD W/SUBFLOOR | | Foundation: | CONCRETE | Heating: | FHA GAS | | Interior Finish: | DRYWALL PAINT | Plumbing Fixture Cnt: | 13 | | Roof Slope: | 8" IN 12" | Roof Structure/Cover: | CJ ASPHALT |
|
| | Type | Description | Class CD | Sub Class CD | Year Built | Area |
| | BAS | BASE/MAIN FLOOR | 4 | 0 | 2004 | 1118.5 |
| | OP1 | OPEN PORCH SLAB | 4 | 0 | 2004 | 69.0 |
| | OP4 | OPEN PORCH W/CEILING-ROOF | 4 | 0 | 2004 | 34.5 |
| | AGR | ATTACHED GARAGE | 4 | 0 | 2004 | 624.0 |
| | BIG | BUILT IN GARAGE | 4 | 0 | 2004 | 135.0 |
| | UPS | UPPER STORY | 4 | 0 | 2004 | 1104.5 |
| | OWP | OPEN WOOD PORCH W/STEPS | 4 | 0 | 2004 | 76.0 |
| | OWP | OPEN WOOD PORCH W/STEPS | 4 | 0 | 2004 | 698.0 |
Sketch
Property Image
Land
| 1 | 15 | SQ (12001-21780) | 0.3200 | 13939.20 | 0.00 | 0.00 | 1.00 | $280,000 | $0 |
Roll Value History
| 2026 | N/A | N/A | N/A | N/A | N/A |
| 2025 | $460,080 | $280,000 | $0 | $740,080 | $740,080 |
| 2024 | $465,477 | $270,000 | $0 | $735,477 | $735,477 |
| 2023 | $470,874 | $270,000 | $0 | $740,874 | $740,874 |
| 2022 | $431,284 | $240,000 | $0 | $671,284 | $671,284 |
| 2021 | $362,271 | $160,000 | $0 | $522,271 | $522,271 |
| 2020 | $352,796 | $150,000 | $0 | $502,796 | $502,796 |
| 2019 | $260,944 | $180,000 | $0 | $440,944 | $440,944 |
| 2018 | $261,692 | $150,000 | $0 | $411,692 | $411,692 |
| 2017 | $263,117 | $150,000 | $0 | $413,117 | $413,117 |
| 2016 | $266,105 | $130,000 | $0 | $396,105 | $396,105 |
| 2015 | $265,529 | $65,000 | $0 | $330,529 | $330,529 |
| 2014 | $268,529 | $65,000 | $0 | $333,529 | $333,529 |
| 2013 | $271,534 | $41,600 | $0 | $313,134 | $313,134 |
| 2012 | $274,535 | $41,600 | $0 | $316,135 | $316,135 |
| 2011 | $277,536 | $52,000 | $0 | $329,536 | $329,536 |
| 2010 | $284,176 | $52,000 | $0 | $336,176 | $336,176 |
| 2009 | $296,866 | $125,000 | $0 | $421,866 | $421,866 |
| 2008 | $297,267 | $85,600 | $0 | $382,867 | $382,867 |
| 2007 | $300,651 | $85,600 | $0 | $386,251 | $386,251 |
Deed and Sales History
| 1 | 07/29/2025 | WD | Warranty Deed | BUTLER II, MICHAEL R | GRAHAM, MITZI | | | $715,000.00 | 64325 | 4588975 |
| 2 | 02/01/2009 | ESTSEPPROP | Establish Separate Property | BUTLER, MICHAEL R | BUTLER II, MICHAEL R | | | $0.00 | 236 | 4268030 |
| 3 | 07/12/2005 | WD | Warranty Deed | TARCON CONSTRUCTION INC, | BUTLER, MICHAEL R | | | $390,950.00 | 53440 | 4141085 |
| 4 | 06/02/2004 | WD | Warranty Deed | CUNNINGHAM, GLEN A | TARCON CONSTRUCTION INC, | | | $87,799.00 | 42457 | 4103006 |
| 5 | 01/01/1900 | OTHER | Other - Misc. Documents | Unknown | CUNNINGHAM, GLEN A | | | $0.00 | 33388 | 93017604 |
Payout Agreement
| No payout information available.. |