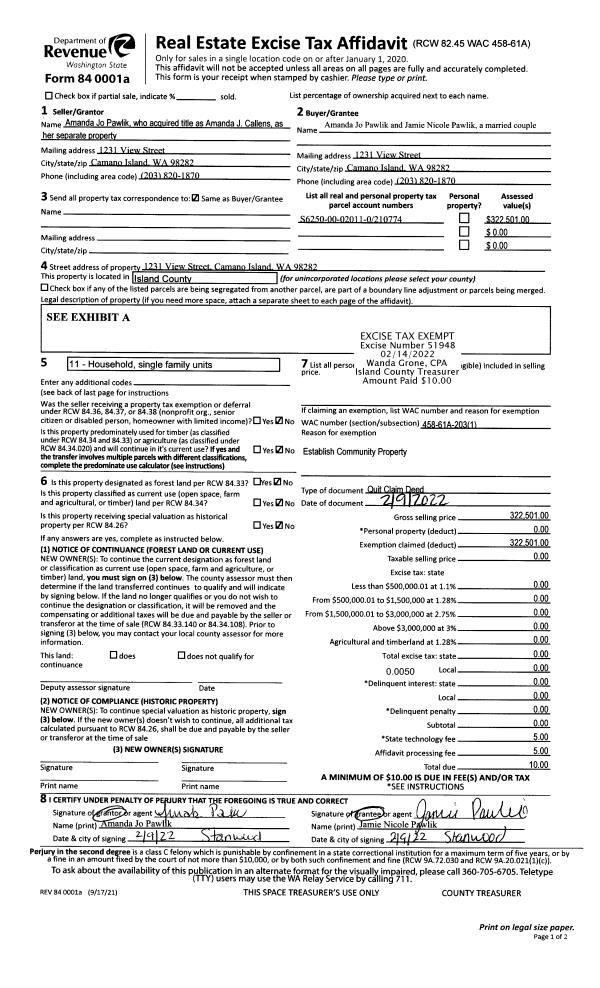
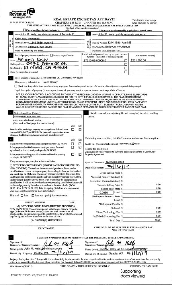
Property
Account |
| Property ID: | 757185 | Abbreviated Legal Description: | LOT 3 SP 45-94.23123.528-2120 V3 SP P175 AF#97017540 |
| Geographic ID: | R23123-517-1710 | Agent Code: | |
| Type: | Real | | |
| Tax Area: | 510 - APPRAISER-Stan/Cam Schl Dist, improved & 1 acre or less | Land Use Code | 11 |
| Open Space: | N | DFL | N |
| Historic Property: | N | Remodel Property: | N |
| Multi-Family Redevelopment: | N | | |
| Township: | 31 | Section: | 23 |
| Range: | R2 |
Location |
| Address: | 676 LACTRUP SPUR LN CAMANO ISLAND, WA 98282 | Mapsco: | |
| Neighborhood: | Cycle 5 | Map ID: | 502 |
| Neighborhood CD: | 5 |
Owner |
| Name: | BRUNZELL, BERT R | Owner ID: | 289857 |
| Mailing Address: | JEANINE R BRUNZELL 676 LACTRUP SPUR LN CAMANO ISLAND, WA 98282 | % Ownership: | 100.0000000000% |
| | | Exemptions: | SNR/DSBL |
Taxes and Assessment Details
Values
| (+) Improvement Homesite Value: | + | $551,031 | |
| (+) Improvement Non-Homesite Value: | + | $0 | |
| (+) Land Homesite Value: | + | $390,000 | |
| (+) Land Non-Homesite Value: | + | $0 | |
| (+) Curr Use (HS): | + | $0 | $0 |
| (+) Curr Use (NHS): | + | $0 | $0 |
| | | -------------------------- | |
| (=) Market Value: | = | $941,031 | |
| (–) Productivity Loss: | – | $0 | |
| | | -------------------------- | |
| (=) Subtotal: | = | $941,031 | |
| (+) Senior Appraised Value: | + | $594,897 | |
| (+) Non-Senior Appraised Value: | + | $0 | |
| | | -------------------------- | |
| (=) Total Appraised Value: | = | $594,897 | |
| (–) Senior Exemption Loss: | – | $356,938 | |
| (–) Exemption Loss: | – | $0 | |
| | | -------------------------- | |
| (=) Taxable Value: | = | $237,959 | |
Taxing Jurisdiction
| Owner: | BRUNZELL, BERT R | | |
| % Ownership: | 100.0000000000% | | |
| Total Value: | $941,031 | | |
| Tax Area: | 510 - APPRAISER-Stan/Cam Schl Dist, improved & 1 acre or less |
| CF | Conservation Futures | 0.0316035091 | $941,031 | $237,959 | $7.52 | | |
| EMS1 | Fire & Rescue Dist #1 Camano GEN (EMS) | 0.3677864386 | $941,031 | $237,959 | $87.52 | | |
| FIRE1 | Fire & Rescue Dist #1 Camano GEN | 1.2502910536 | $941,031 | $237,959 | $297.52 | | |
| FIRE1BOND | Fire & Rescue Dist #1 Camano BOND | 0.0000000000 | $941,031 | $0 | $0.00 | | |
| CE | County Current Expense | 0.3708482477 | $941,031 | $237,959 | $88.25 | | |
| CR | County Roads | 0.4584763726 | $941,031 | $237,959 | $109.10 | | |
| LCIB | Library Sno-Isle BOND (Camano Island) | 0.0000000000 | $941,031 | $0 | $0.00 | | |
| LIB | Library Sno-Isle GEN | 0.3153421757 | $941,031 | $237,959 | $75.04 | | |
| SCH205_401 | School 205-401 Enrichment | 0.0000000000 | $941,031 | $0 | $0.00 | | |
| SCH205BOND | School 205-401 BOND | 0.0000000000 | $941,031 | $0 | $0.00 | | |
| ST | State School | 1.3035497053 | $941,031 | $237,959 | $310.19 | | |
| ST2 | State School Part 2 | 0.0000000000 | $941,031 | $0 | $0.00 | | |
| | Total Tax Rate: | 4.0978975026 | | | | | |
| | | | | Taxes w/Current Exemptions: | $975.14 | | |
| | | | | Taxes w/o Exemptions: | $6,889.27 | | |
Improvement / Building
| Improvement #1: | RESIDENTIAL | State Code: | Y | 3408.0 sqft | Value: | $551,031 |
| Bathrooms: | 3 | Bedrooms: | 4 | | Ceiling: | DRYWALL PAINTED | Exterior Wall/Cover: | CEMENT FIBER | | Floor Covering: | HARDWOOD/CARP 20-80 | Floor Structure: | WOOD W/SUBFLOOR | | Foundation: | CONCRETE | Heating: | FHA GAS | | Interior Finish: | DRYWALL PAINT | Plumbing Fixture Cnt: | 15 | | Roof Slope: | 5" IN 12" | Roof Structure/Cover: | CJ ASPHALT |
|
| | Type | Description | Class CD | Sub Class CD | Year Built | Area |
| | BAS | BASE/MAIN FLOOR | 4 | 0 | 2004 | 1704.0 |
| | OP1 | OPEN PORCH SLAB | 4 | 0 | 2004 | 400.0 |
| | AGR | ATTACHED GARAGE | 4 | 0 | 2004 | 936.4 |
| | OWP | OPEN WOOD PORCH W/STEPS | 4 | 0 | 2004 | 217.5 |
| | OWC | OPEN WOOD PORCH W/STEPS/ROOF/C | 4 | 0 | 2004 | 400.0 |
| | OWC | OPEN WOOD PORCH W/STEPS/ROOF/C | 4 | 0 | 2004 | 24.0 |
| | DWN | DOWNSTAIRS LIVING AREA | 4 | 0 | 2004 | 1704.0 |
Sketch
Property Image
Land
| 1 | 16 | AC (00.51-01.00) | 0.6300 | 27442.80 | 0.00 | 0.00 | 1.00 | $390,000 | $0 |
Roll Value History
| 2026 | N/A | N/A | N/A | N/A | N/A |
| 2025 | $551,031 | $390,000 | $0 | $941,031 | $237,959 |
| 2024 | $557,345 | $370,000 | $0 | $927,345 | $237,959 |
| 2023 | $563,660 | $360,000 | $0 | $923,660 | $237,959 |
| 2022 | $514,730 | $340,000 | $0 | $854,730 | $237,959 |
| 2021 | $435,659 | $220,000 | $0 | $655,659 | $237,959 |
| 2020 | $424,897 | $170,000 | $0 | $594,897 | $237,959 |
| 2019 | $348,023 | $220,000 | $0 | $568,023 | $568,023 |
| 2018 | $349,021 | $180,000 | $0 | $529,021 | $529,021 |
| 2017 | $341,532 | $180,000 | $0 | $521,532 | $521,532 |
| 2016 | $345,412 | $150,000 | $0 | $495,412 | $495,412 |
| 2015 | $342,115 | $92,800 | $0 | $434,915 | $434,915 |
| 2014 | $345,925 | $92,800 | $0 | $438,725 | $438,725 |
| 2013 | $349,736 | $92,800 | $0 | $442,536 | $442,536 |
| 2012 | $353,546 | $92,800 | $0 | $446,346 | $446,346 |
| 2011 | $357,357 | $116,000 | $0 | $473,357 | $473,357 |
| 2010 | $366,391 | $116,000 | $0 | $482,391 | $482,391 |
| 2009 | $365,540 | $125,000 | $0 | $490,540 | $490,540 |
| 2008 | $366,128 | $185,000 | $0 | $551,128 | $551,128 |
| 2007 | $370,368 | $185,000 | $0 | $555,368 | $555,368 |
Deed and Sales History
| 1 | 05/02/2019 | WD | Warranty Deed | FLURY, RICHARD M | BRUNZELL, BERT R | | | $618,000.00 | 38605 | 4463796 |
| 2 | 10/05/2004 | WD | Warranty Deed | CAMWOOD CONSTRUCTION INC, | FLURY, RICHARD M | | | $357,900.00 | 44949 | 4116077 |
| 3 | 06/02/2004 | WD | Warranty Deed | CUNNINGHAM, GLEN A | CAMWOOD CONSTRUCTION INC, | | | $112,954.00 | 42456 | 4103009 |
| 4 | 01/01/1900 | OTHER | Other - Misc. Documents | Unknown | CUNNINGHAM, GLEN A | | | $0.00 | 33388 | 93017604 |
Payout Agreement
| No payout information available.. |