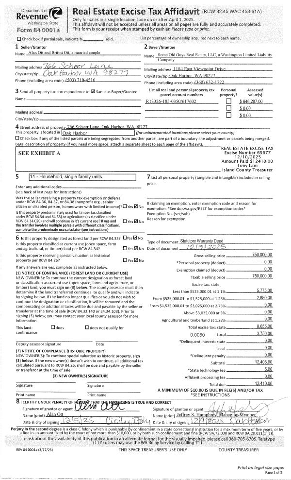
Property
Account |
| Property ID: | 757265 | Abbreviated Legal Description: | LOT 1 OH-SP 97-1.13335.275-1270 V3 SP P177 AF#97019436 |
| Geographic ID: | R13335-259-1300 | Agent Code: | |
| Type: | Real | | |
| Tax Area: | 100 - APPRAISER-OH Schl Dist, in OH | Land Use Code | 11 |
| Open Space: | N | DFL | N |
| Historic Property: | N | Remodel Property: | N |
| Multi-Family Redevelopment: | N | | |
| Township: | 33 | Section: | 35 |
| Range: | R1 |
Location |
| Address: | 350 NE 7TH AVE OAK HARBOR, WA 98277 | Mapsco: | |
| Neighborhood: | Cycle 1 | Map ID: | 258 |
| Neighborhood CD: | 1 |
Owner |
| Name: | GLB PROPERTIES LLC | Owner ID: | 316904 |
| Mailing Address: | 978 WALKER HEIGHTS PL OAK HARBOR, WA 98277 | % Ownership: | 100.0000000000% |
| | | Exemptions: | |
Taxes and Assessment Details
Values
| (+) Improvement Homesite Value: | + | $0 | |
| (+) Improvement Non-Homesite Value: | + | $97,893 | |
| (+) Land Homesite Value: | + | $0 | |
| (+) Land Non-Homesite Value: | + | $130,000 | |
| (+) Curr Use (HS): | + | $0 | $0 |
| (+) Curr Use (NHS): | + | $0 | $0 |
| | | -------------------------- | |
| (=) Market Value: | = | $227,893 | |
| (–) Productivity Loss: | – | $0 | |
| | | -------------------------- | |
| (=) Subtotal: | = | $227,893 | |
| (+) Senior Appraised Value: | + | $0 | |
| (+) Non-Senior Appraised Value: | + | $227,893 | |
| | | -------------------------- | |
| (=) Total Appraised Value: | = | $227,893 | |
| (–) Senior Exemption Loss: | – | $0 | |
| (–) Exemption Loss: | – | $0 | |
| | | -------------------------- | |
| (=) Taxable Value: | = | $227,893 | |
Taxing Jurisdiction
| Owner: | GLB PROPERTIES LLC | | |
| % Ownership: | 100.0000000000% | | |
| Total Value: | $227,893 | | |
| Tax Area: | 100 - APPRAISER-OH Schl Dist, in OH |
| CF | Conservation Futures | 0.0316035091 | $227,893 | $227,893 | $7.20 | | |
| CEM1 | Cemetery #1 | 0.0040320932 | $227,893 | $227,893 | $0.92 | | |
| COH | City of Oak Harbor | 2.3001546061 | $227,893 | $227,893 | $524.19 | | |
| OAKBOND | City of Oak Harbor BOND | 0.1926904192 | $227,893 | $227,893 | $43.91 | | |
| HOBOND | Hospital BOND | 0.1910887512 | $227,893 | $227,893 | $43.55 | | |
| HOGEN | Hospital GEN | 0.3902502903 | $227,893 | $227,893 | $88.94 | | |
| CE | County Current Expense | 0.3708482477 | $227,893 | $227,893 | $84.51 | | |
| ISLANDEMS | Hospital GEN (EMS) | 0.5000000000 | $227,893 | $227,893 | $113.95 | | |
| LIB | Library Sno-Isle GEN | 0.3153421757 | $227,893 | $227,893 | $71.86 | | |
| NWHIDPRMT | P & R N Whidbey GEN | 0.2004466701 | $227,893 | $227,893 | $45.68 | | |
| SCH201MO | School 201 Enrichment | 1.8559231640 | $227,893 | $227,893 | $422.95 | | |
| ST | State School | 1.3035497053 | $227,893 | $227,893 | $297.07 | | |
| ST2 | State School Part 2 | 0.8169543533 | $227,893 | $227,893 | $186.18 | | |
| | Total Tax Rate: | 8.4728839852 | | | | | |
| | | | | Taxes w/Current Exemptions: | $1,930.91 | | |
| | | | | Taxes w/o Exemptions: | $1,930.91 | | |
Improvement / Building
| Improvement #1: | RESIDENTIAL | State Code: | Y | 1128.0 sqft | Value: | $97,893 |
| Bathrooms: | 2.5 | Bedrooms: | 3 | | Ceiling: | DRY WALL SPRAYED | Exterior Wall/Cover: | CONCRETE BLOCK | | Floor Covering: | CARPET/VINYL 60-40 | Floor Structure: | WOOD W/SUBFLOOR | | Foundation: | CONCRETE BLOCKS | Heating: | FHA OIL | | Interior Finish: | DRYWALL PAINT | Plumbing Fixture Cnt: | 11 | | Roof Slope: | 8" IN 12" | Roof Structure/Cover: | CJ ASPHALT |
|
| | Type | Description | Class CD | Sub Class CD | Year Built | Area |
| | BAS | BASE/MAIN FLOOR | 3 | 0 | 1953 | 1128.0 |
| | ATF | ATTIC FINISHED | 3 | 0 | 1953 | 216.0 |
| | OP4 | OPEN PORCH W/CEILING-ROOF | 3 | 0 | 1953 | 36.0 |
| | AGR | ATTACHED GARAGE | 3 | 0 | 1953 | 324.0 |
| | OP4 | OPEN PORCH W/CEILING-ROOF | 3 | 0 | 1953 | 12.0 |
Sketch
Property Image
Land
| 1 | 13 | SQ (06001-08000) | 0.1700 | 7405.20 | 0.00 | 0.00 | 1.00 | $130,000 | $0 |
Roll Value History
| 2026 | N/A | N/A | N/A | N/A | N/A |
| 2025 | $97,893 | $130,000 | $0 | $227,893 | $227,893 |
| 2024 | $229,834 | $170,000 | $0 | $399,834 | $399,834 |
| 2023 | $226,239 | $170,000 | $0 | $396,239 | $396,239 |
| 2022 | $207,662 | $160,000 | $0 | $367,662 | $367,662 |
| 2021 | $183,007 | $120,000 | $0 | $303,007 | $303,007 |
| 2020 | $177,903 | $100,000 | $0 | $277,903 | $277,903 |
| 2019 | $125,006 | $160,000 | $0 | $285,006 | $285,006 |
| 2018 | $125,411 | $125,000 | $0 | $250,411 | $250,411 |
| 2017 | $83,498 | $110,000 | $0 | $193,498 | $193,498 |
| 2016 | $85,044 | $90,000 | $0 | $175,044 | $175,044 |
| 2015 | $86,590 | $70,000 | $0 | $156,590 | $156,590 |
| 2014 | $88,136 | $55,000 | $0 | $143,136 | $143,136 |
| 2013 | $89,684 | $55,000 | $0 | $144,684 | $144,684 |
| 2012 | $91,230 | $65,000 | $0 | $156,230 | $156,230 |
| 2011 | $92,775 | $65,000 | $0 | $157,775 | $157,775 |
| 2010 | $99,513 | $65,000 | $0 | $164,513 | $164,513 |
| 2009 | $104,124 | $62,250 | $0 | $166,374 | $166,374 |
| 2008 | $105,674 | $75,000 | $0 | $180,674 | $180,674 |
| 2007 | $98,172 | $75,000 | $0 | $173,172 | $173,172 |
Deed and Sales History
| 1 | 06/10/2025 | WD | Warranty Deed | JOHNSON, COLLEEN D | GLB PROPERTIES LLC | | | $215,000.00 | 63764 | 4586879 |
| 2 | 03/24/2008 | TRUSTEED | Trustee's Deed | DEUTSCHE BANK NATIONAL TRUST C | JOHNSON, COLLEEN D | | | $162,000.00 | 80945 | 4226548 |
| 3 | 10/15/2007 | TRUSTEED | Trustee's Deed | AUSTIN, STEVEN M | DEUTSCHE BANK NATIONAL TRUST C | | | $171,137.00 | 73484 | 4214413 |
| 4 | 09/22/2004 | WD | Warranty Deed | RUBY, ROBERT H | AUSTIN, STEVEN M | | | $139,900.00 | 44570 | 4114189 |
| 5 | 07/17/1998 | QCD | Quit Claim Deed | GRANITE HOLDINGS LLC, | RUBY, ROBERT H | | | $0.00 | 82975 | 98015621 |
| 6 | 05/22/1998 | QCD | Quit Claim Deed | RUBY, ROBERT H | GRANITE HOLDINGS LLC, | | | $0.00 | 81970 | 98010363 |
| 7 | 01/01/1900 | OTHER | Other - Misc. Documents | Unknown | LEXY, MANOR A | | | $0.00 | 73748 | 97017880 |
| 8 | 01/01/1900 | OTHER | Other - Misc. Documents | LEXY, MANOR A | GRANITE, HOLDINGS L | | | $0.00 | 81970 | 98010363 |
| 9 | 01/01/1900 | OTHER | Other - Misc. Documents | GRANITE, HOLDINGS L | RUBY, ROBERT H | | | $0.00 | 82975 | 98015621 |
Payout Agreement
| No payout information available.. |