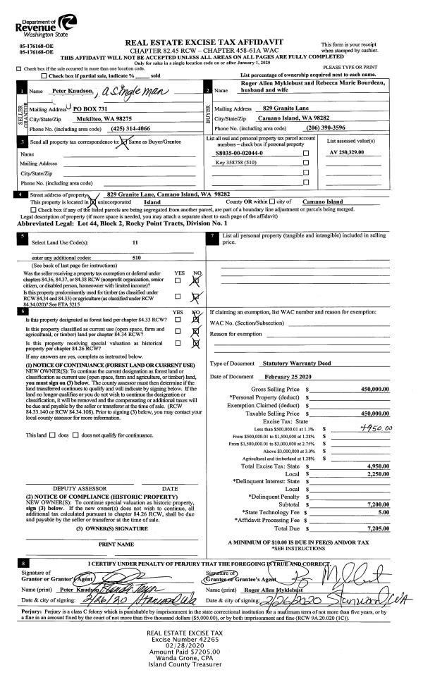
Property
Account |
| Property ID: | 757498 | Abbreviated Legal Description: | LOT A SP83-60 |
| Geographic ID: | R23024-485-4300 | Agent Code: | |
| Type: | Real | | |
| Tax Area: | 712 - APPRAISER-S Whid Schl Dist, outside Langley, improved, greater than 1 acre | Land Use Code | 11 |
| Open Space: | N | DFL | N |
| Historic Property: | N | Remodel Property: | N |
| Multi-Family Redevelopment: | N | | |
| Township: | 30 | Section: | 24 |
| Range: | R2 |
Location |
| Address: | 3582 SARATOGA RD LANGLEY, WA 98260 | Mapsco: | |
| Neighborhood: | Cycle 3 | Map ID: | 411 |
| Neighborhood CD: | 3 |
Owner |
| Name: | SANDFORD JTWROS, JOYCE A | Owner ID: | 316280 |
| Mailing Address: | LAURI A. NYGAARD JTWROS 3582 SARATOGA RD LANGLEY, WA 98260 | % Ownership: | 100.0000000000% |
| | | Exemptions: | |
Taxes and Assessment Details
Values
| (+) Improvement Homesite Value: | + | $0 | |
| (+) Improvement Non-Homesite Value: | + | $6,836 | |
| (+) Land Homesite Value: | + | $0 | |
| (+) Land Non-Homesite Value: | + | $310,000 | |
| (+) Curr Use (HS): | + | $0 | $0 |
| (+) Curr Use (NHS): | + | $0 | $0 |
| | | -------------------------- | |
| (=) Market Value: | = | $316,836 | |
| (–) Productivity Loss: | – | $0 | |
| | | -------------------------- | |
| (=) Subtotal: | = | $316,836 | |
| (+) Senior Appraised Value: | + | $0 | |
| (+) Non-Senior Appraised Value: | + | $316,836 | |
| | | -------------------------- | |
| (=) Total Appraised Value: | = | $316,836 | |
| (–) Senior Exemption Loss: | – | $0 | |
| (–) Exemption Loss: | – | $0 | |
| | | -------------------------- | |
| (=) Taxable Value: | = | $316,836 | |
Taxing Jurisdiction
| Owner: | SANDFORD JTWROS, JOYCE A | | |
| % Ownership: | 100.0000000000% | | |
| Total Value: | $316,836 | | |
| Tax Area: | 712 - APPRAISER-S Whid Schl Dist, outside Langley, improved, greater than 1 acre |
| CF | Conservation Futures | 0.0316035091 | $316,836 | $316,836 | $10.01 | | |
| FIRE3 | Fire & Rescue Dist #3 S Whidbey GEN | 1.2004855531 | $316,836 | $316,836 | $380.36 | | |
| HOBOND | Hospital BOND | 0.1910887512 | $316,836 | $316,836 | $60.54 | | |
| HOGEN | Hospital GEN | 0.3902502903 | $316,836 | $316,836 | $123.65 | | |
| CE | County Current Expense | 0.3708482477 | $316,836 | $316,836 | $117.50 | | |
| CR | County Roads | 0.4584763726 | $316,836 | $316,836 | $145.26 | | |
| ISLANDEMS | Hospital GEN (EMS) | 0.5000000000 | $316,836 | $316,836 | $158.42 | | |
| LIB | Library Sno-Isle GEN | 0.3153421757 | $316,836 | $316,836 | $99.91 | | |
| PORTWHID | Port of S Whidbey GEN | 0.1094540357 | $316,836 | $316,836 | $34.68 | | |
| SCH206BOND | School 206 BOND | 0.3161759235 | $316,836 | $316,836 | $100.18 | | |
| SCH206MO | School 206 Enrichment | 0.4547169547 | $316,836 | $316,836 | $144.07 | | |
| ST | State School | 1.3035497053 | $316,836 | $316,836 | $413.01 | | |
| ST2 | State School Part 2 | 0.8169543533 | $316,836 | $316,836 | $258.84 | | |
| SWHIDPRBD | P & R S Whidbey BOND | 0.0152817568 | $316,836 | $316,836 | $4.84 | | |
| SWHIDPRBD2 | P & R S Whidbey BOND2 | 0.0138911264 | $316,836 | $316,836 | $4.40 | | |
| SWHIDPRMT | P & R S Whidbey GEN | 0.2053334452 | $316,836 | $316,836 | $65.06 | | |
| | Total Tax Rate: | 6.6934522006 | | | | | |
| | | | | Taxes w/Current Exemptions: | $2,120.73 | | |
| | | | | Taxes w/o Exemptions: | $2,120.73 | | |
Improvement / Building
| Improvement #1: | MANUFACTURED HOME | State Code: | Y | 460.0 sqft | Value: | $6,836 |
| Bathrooms: | 0 | Bedrooms: | 0 | | Ceiling: | PLASTER PAINTED | Cooling: | EVAP NO DUCT | | Exterior Wall/Cover: | VINYL | Floor Covering: | CARPET 100% | | Floor Structure: | SLAB ON GRADE | Foundation: | SLAB | | Heating: | FHA ELECTRIC | Interior Finish: | PLASTER | | Plumbing Fixture Cnt: | 1 | Roof Slope: | FLAT | | Roof Structure/Cover: | CJ ALUMINIUM HEAVY |   |   |
|
| | Type | Description | Class CD | Sub Class CD | Year Built | Area |
| | BAS | BASE/MAIN FLOOR | 2 | 0 | 1960 | 460.0 |
| | ENP | ENCLOSED PORCH | 2 | 0 | 1960 | 350.0 |
Sketch
Property Image
Land
| 1 | 18 | AC (02.01-03.00) | 0.0000 | 0.00 | 0.00 | 0.00 | 1.00 | $310,000 | $0 |
Roll Value History
| 2026 | N/A | N/A | N/A | N/A | N/A |
| 2025 | $6,836 | $310,000 | $0 | $316,836 | $316,836 |
| 2024 | $6,836 | $290,000 | $0 | $296,836 | $296,836 |
| 2023 | $5,946 | $330,000 | $0 | $335,946 | $39,478 |
| 2022 | $5,382 | $270,000 | $0 | $275,382 | $39,478 |
| 2021 | $4,681 | $190,000 | $0 | $194,681 | $39,478 |
| 2020 | $4,544 | $165,000 | $0 | $169,544 | $39,478 |
| 2019 | $3,579 | $200,000 | $0 | $203,579 | $39,478 |
| 2018 | $3,579 | $170,000 | $0 | $173,579 | $39,478 |
| 2017 | $3,579 | $150,000 | $0 | $153,579 | $39,478 |
| 2016 | $3,579 | $125,000 | $0 | $128,579 | $39,478 |
| 2015 | $3,579 | $100,000 | $0 | $103,579 | $39,478 |
| 2014 | $3,579 | $85,000 | $0 | $88,579 | $28,579 |
| 2013 | $19,709 | $95,000 | $0 | $114,709 | $39,478 |
| 2012 | $19,709 | $103,275 | $0 | $122,984 | $39,478 |
| 2011 | $19,709 | $121,500 | $0 | $141,209 | $39,478 |
| 2010 | $22,908 | $135,000 | $0 | $157,908 | $39,478 |
| 2009 | $23,618 | $120,000 | $0 | $143,618 | $39,478 |
| 2008 | $23,963 | $120,000 | $0 | $143,963 | $39,478 |
| 2007 | $24,660 | $120,000 | $0 | $144,660 | $39,478 |
Deed and Sales History
| 1 | 03/02/2019 | TOD | Transfer On Death Deed | CAMPBELL, GLORIA J | SANDFORD JTWROS, JOYCE A | | | $0.00 | 63014 | 4460124 |
| 2 | 03/02/2019 | TOD | Transfer On Death Deed | CAMPBELL, GLORIA J | SANDFORD JTWROS, JOYCE A | | | $0.00 | 63013 | 4460124 |
| 3 | 10/24/2022 | OTHER | Other - Misc. Documents | CAMPBELL, GLORIA J | CAMPBELL, GLORIA J | | | | 89304 | |
| 4 | 09/01/1984 | QCD | Quit Claim Deed | CAMPBELL, DEAN H | CAMPBELL, GLORIA J | | | $0.00 | 42597 | 84002768 |
| 5 | 01/01/1900 | OTHER | Other - Misc. Documents | Unknown | CAMPBELL, DEAN H | | | $0.00 | 0 | 0 |
Payout Agreement
| No payout information available.. |