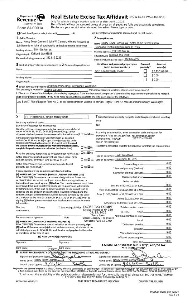
Property
Account |
| Property ID: | 7575 | Abbreviated Legal Description: | 55 - SE SW SW SE TGW & SUB EZ |
| Geographic ID: | R13111-017-3140 | Agent Code: | |
| Type: | Real | | |
| Tax Area: | 312 - APPRAISER-Cpvl Schl Dist, outside Cpvl, improved, greater than 1 acre | Land Use Code | 11 |
| Open Space: | N | DFL | N |
| Historic Property: | N | Remodel Property: | N |
| Multi-Family Redevelopment: | N | | |
| Township: | 31 | Section: | 11 |
| Range: | R1 |
Location |
| Address: | 700 HAZZLE CT COUPEVILLE, WA 98239 | Mapsco: | |
| Neighborhood: | Cycle 2 | Map ID: | 51 |
| Neighborhood CD: | 2 |
Owner |
| Name: | GILLETT, RAYMOND | Owner ID: | 308359 |
| Mailing Address: | PO BOX 684 COUPEVILLE, WA 98239 | % Ownership: | 100.0000000000% |
| | | Exemptions: | |
Taxes and Assessment Details
Values
| (+) Improvement Homesite Value: | + | $0 | |
| (+) Improvement Non-Homesite Value: | + | $485,703 | |
| (+) Land Homesite Value: | + | $0 | |
| (+) Land Non-Homesite Value: | + | $308,125 | |
| (+) Curr Use (HS): | + | $0 | $0 |
| (+) Curr Use (NHS): | + | $0 | $0 |
| | | -------------------------- | |
| (=) Market Value: | = | $793,828 | |
| (–) Productivity Loss: | – | $0 | |
| | | -------------------------- | |
| (=) Subtotal: | = | $793,828 | |
| (+) Senior Appraised Value: | + | $0 | |
| (+) Non-Senior Appraised Value: | + | $793,828 | |
| | | -------------------------- | |
| (=) Total Appraised Value: | = | $793,828 | |
| (–) Senior Exemption Loss: | – | $0 | |
| (–) Exemption Loss: | – | $0 | |
| | | -------------------------- | |
| (=) Taxable Value: | = | $793,828 | |
Taxing Jurisdiction
| Owner: | GILLETT, RAYMOND | | |
| % Ownership: | 100.0000000000% | | |
| Total Value: | $793,828 | | |
| Tax Area: | 312 - APPRAISER-Cpvl Schl Dist, outside Cpvl, improved, greater than 1 acre |
| CF | Conservation Futures | 0.0316035091 | $793,828 | $793,828 | $25.09 | | |
| CEM2 | Cemetery #2 | 0.0095056933 | $793,828 | $793,828 | $7.55 | | |
| FIRE5 | Fire & Rescue Dist #5 C Whidbey GEN | 1.2008080668 | $793,828 | $793,828 | $953.24 | | |
| FIRE5BOND | Fire & Rescue Dist #5 C Whidbey BOND | 0.1400090713 | $793,828 | $793,828 | $111.14 | | |
| HOBOND | Hospital BOND | 0.1910887512 | $793,828 | $793,828 | $151.69 | | |
| HOGEN | Hospital GEN | 0.3902502903 | $793,828 | $793,828 | $309.79 | | |
| CE | County Current Expense | 0.3708482477 | $793,828 | $793,828 | $294.39 | | |
| CR | County Roads | 0.4584763726 | $793,828 | $793,828 | $363.95 | | |
| ISLANDEMS | Hospital GEN (EMS) | 0.5000000000 | $793,828 | $793,828 | $396.91 | | |
| LIB | Library Sno-Isle GEN | 0.3153421757 | $793,828 | $793,828 | $250.33 | | |
| LIBCAP | Library Sno-Isle BOND (Cap Fac Imp Area) | 0.0543427938 | $793,828 | $793,828 | $43.14 | | |
| POCOUP | Port of Coupeville GEN | 0.1093371703 | $793,828 | $793,828 | $86.79 | | |
| POCOUPIDD | Port of Coupeville IDD | 0.3409740022 | $793,828 | $793,828 | $270.67 | | |
| COUPSDTECH | School 204 CP (TECH) | 0.7545480007 | $793,828 | $793,828 | $598.98 | | |
| SCH204MO | School 204 Enrichment | 0.6716186034 | $793,828 | $793,828 | $533.15 | | |
| ST | State School | 1.3035497053 | $793,828 | $793,828 | $1,034.79 | | |
| ST2 | State School Part 2 | 0.8169543533 | $793,828 | $793,828 | $648.52 | | |
| | Total Tax Rate: | 7.6592568070 | | | | | |
| | | | | Taxes w/Current Exemptions: | $6,080.12 | | |
| | | | | Taxes w/o Exemptions: | $6,080.12 | | |
Improvement / Building
| Improvement #1: | RESIDENTIAL | State Code: | Y | 3078.0 sqft | Value: | $485,703 |
| Bathrooms: | 2 | Bedrooms: | 3 | | Ceiling: | DRYWALL PAINTED | Exterior Wall/Cover: | WOOD SIDING | | Floor Covering: | CARPET/VINYL 80-20 | Floor Structure: | WOOD W/SUBFLOOR | | Foundation: | CONCRETE | Heating: | WALL HEAT ELECTRIC | | Interior Finish: | DRYWALL PAINT | Plumbing Fixture Cnt: | 12 | | Roof Slope: | 8" IN 12" | Roof Structure/Cover: | BEAM CONCRETE TILE |
|
| | Type | Description | Class CD | Sub Class CD | Year Built | Area |
| | BAS | BASE/MAIN FLOOR | 4 | 0 | 1991 | 1092.0 |
| | DGR | DETACHED GARAGE | 4 | 0 | 1991 | 936.0 |
| | OCP | OPEN CARPORT | 4 | 0 | 1991 | 264.0 |
| | OWP | OPEN WOOD PORCH W/STEPS | 4 | 0 | 1991 | 200.0 |
| | OWR | OPEN WOOD PORCH W/STEPS/ROOF | 4 | 0 | 1991 | 644.0 |
| | DWN | DOWNSTAIRS LIVING AREA | 4 | 0 | 1991 | 1050.0 |
| | UPS | UPPER STORY | 4 | 0 | 1991 | 936.0 |
Sketch
Property Image
Land
| 1 | HS | HOMESITE | 1.0000 | 43560.00 | 0.00 | 0.00 | 1.00 | $220,000 | $0 |
| 2 | 91 | UNDEVELOPED LAND-METES AND BOUNDS | 1.5000 | 65340.00 | 0.00 | 0.00 | 1.00 | $88,125 | $0 |
Roll Value History
| 2026 | N/A | N/A | N/A | N/A | N/A |
| 2025 | $485,703 | $308,125 | $0 | $793,828 | $793,828 |
| 2024 | $473,289 | $280,000 | $0 | $753,289 | $753,289 |
| 2023 | $479,496 | $270,000 | $0 | $749,496 | $749,496 |
| 2022 | $439,805 | $250,000 | $0 | $689,805 | $689,805 |
| 2021 | $387,325 | $150,000 | $0 | $537,325 | $537,325 |
| 2020 | $378,533 | $150,000 | $0 | $528,533 | $528,533 |
| 2019 | $297,788 | $180,000 | $0 | $477,788 | $477,788 |
| 2018 | $275,026 | $160,000 | $0 | $435,026 | $435,026 |
| 2017 | $276,360 | $130,000 | $0 | $406,360 | $406,360 |
| 2016 | $279,032 | $120,000 | $0 | $399,032 | $399,032 |
| 2015 | $281,702 | $80,750 | $0 | $362,452 | $362,452 |
| 2014 | $284,372 | $80,750 | $0 | $365,122 | $365,122 |
| 2013 | $287,044 | $80,750 | $0 | $367,794 | $367,794 |
| 2012 | $291,689 | $80,750 | $0 | $372,439 | $372,439 |
| 2011 | $294,358 | $95,000 | $0 | $389,358 | $389,358 |
| 2010 | $301,586 | $95,000 | $0 | $396,586 | $396,586 |
| 2009 | $313,063 | $125,000 | $0 | $438,063 | $438,063 |
| 2008 | $317,282 | $124,000 | $0 | $441,282 | $441,282 |
| 2007 | $322,163 | $110,000 | $0 | $432,163 | $432,163 |
Deed and Sales History
| 1 | 08/04/2022 | PRD | Personal Representatives Deed | GILLETT, RAYMOND D | GILLETT, RAYMOND | | | $0.00 | 56415 | 4558825 |
| 2 | 08/04/2022 | PRD | Personal Representatives Deed | GILLETT, RAYMOND D | GILLETT, RAYMOND D | | | $0.00 | 54162 | 4549700 |
| 3 | 03/01/1990 | WD | Warranty Deed | CARLSON, JOHN B | GILLETT, RAYMOND D | | | $13,700.00 | 1523 | 90004926 |
| 4 | 01/01/1900 | OTHER | Other - Misc. Documents | Unknown | CARLSON, JOHN B | | | $0.00 | 0 | 0 |
Payout Agreement
| No payout information available.. |