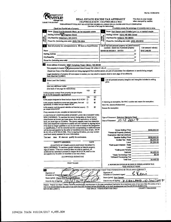
Property
Account |
| Property ID: | 757684 | Abbreviated Legal Description: | LOT 4 SP 228-95.23019.204-2380 V3 SP P176 AF#97018714 |
| Geographic ID: | R23019-206-2650 | Agent Code: | |
| Type: | Real | | |
| Tax Area: | 312 - APPRAISER-Cpvl Schl Dist, outside Cpvl, improved, greater than 1 acre | Land Use Code | 11 |
| Open Space: | N | DFL | N |
| Historic Property: | N | Remodel Property: | N |
| Multi-Family Redevelopment: | N | | |
| Township: | 30 | Section: | 19 |
| Range: | R2 |
Location |
| Address: | 190 LILY LN GREENBANK, WA 98253 | Mapsco: | |
| Neighborhood: | Cycle 3 | Map ID: | 392 |
| Neighborhood CD: | 3 |
Owner |
| Name: | CHENG, BENJAMIN | Owner ID: | 283002 |
| Mailing Address: | STEWART N GOLDSTEIN 190 LILY LANE GREENBANK, WA 98253 | % Ownership: | 100.0000000000% |
| | | Exemptions: | |
Taxes and Assessment Details
Values
| (+) Improvement Homesite Value: | + | $0 | |
| (+) Improvement Non-Homesite Value: | + | $415,987 | |
| (+) Land Homesite Value: | + | $0 | |
| (+) Land Non-Homesite Value: | + | $380,000 | |
| (+) Curr Use (HS): | + | $0 | $0 |
| (+) Curr Use (NHS): | + | $0 | $0 |
| | | -------------------------- | |
| (=) Market Value: | = | $795,987 | |
| (–) Productivity Loss: | – | $0 | |
| | | -------------------------- | |
| (=) Subtotal: | = | $795,987 | |
| (+) Senior Appraised Value: | + | $0 | |
| (+) Non-Senior Appraised Value: | + | $795,987 | |
| | | -------------------------- | |
| (=) Total Appraised Value: | = | $795,987 | |
| (–) Senior Exemption Loss: | – | $0 | |
| (–) Exemption Loss: | – | $0 | |
| | | -------------------------- | |
| (=) Taxable Value: | = | $795,987 | |
Taxing Jurisdiction
| Owner: | CHENG, BENJAMIN | | |
| % Ownership: | 100.0000000000% | | |
| Total Value: | $795,987 | | |
| Tax Area: | 312 - APPRAISER-Cpvl Schl Dist, outside Cpvl, improved, greater than 1 acre |
| CF | Conservation Futures | 0.0316035091 | $795,987 | $795,987 | $25.16 | | |
| CEM2 | Cemetery #2 | 0.0095056933 | $795,987 | $795,987 | $7.57 | | |
| FIRE5 | Fire & Rescue Dist #5 C Whidbey GEN | 1.2008080668 | $795,987 | $795,987 | $955.83 | | |
| FIRE5BOND | Fire & Rescue Dist #5 C Whidbey BOND | 0.1400090713 | $795,987 | $795,987 | $111.45 | | |
| HOBOND | Hospital BOND | 0.1910887512 | $795,987 | $795,987 | $152.10 | | |
| HOGEN | Hospital GEN | 0.3902502903 | $795,987 | $795,987 | $310.63 | | |
| CE | County Current Expense | 0.3708482477 | $795,987 | $795,987 | $295.19 | | |
| CR | County Roads | 0.4584763726 | $795,987 | $795,987 | $364.94 | | |
| ISLANDEMS | Hospital GEN (EMS) | 0.5000000000 | $795,987 | $795,987 | $397.99 | | |
| LIB | Library Sno-Isle GEN | 0.3153421757 | $795,987 | $795,987 | $251.01 | | |
| LIBCAP | Library Sno-Isle BOND (Cap Fac Imp Area) | 0.0543427938 | $795,987 | $795,987 | $43.26 | | |
| POCOUP | Port of Coupeville GEN | 0.1093371703 | $795,987 | $795,987 | $87.03 | | |
| POCOUPIDD | Port of Coupeville IDD | 0.3409740022 | $795,987 | $795,987 | $271.41 | | |
| COUPSDTECH | School 204 CP (TECH) | 0.7545480007 | $795,987 | $795,987 | $600.61 | | |
| SCH204MO | School 204 Enrichment | 0.6716186034 | $795,987 | $795,987 | $534.60 | | |
| ST | State School | 1.3035497053 | $795,987 | $795,987 | $1,037.61 | | |
| ST2 | State School Part 2 | 0.8169543533 | $795,987 | $795,987 | $650.29 | | |
| | Total Tax Rate: | 7.6592568070 | | | | | |
| | | | | Taxes w/Current Exemptions: | $6,096.68 | | |
| | | | | Taxes w/o Exemptions: | $6,096.68 | | |
Improvement / Building
| Improvement #1: | RESIDENTIAL | State Code: | Y | 2060.1 sqft | Value: | $415,987 |
| Bathrooms: | 2.5 | Bedrooms: | 3 | | Ceiling: | DRYWALL PAINTED | Exterior Wall/Cover: | CEMENT FIBER | | Floor Covering: | HARDWOOD/CARP 20-80 | Floor Structure: | WOOD W/SUBFLOOR | | Foundation: | CONCRETE | Heating: | FHA GAS | | Interior Finish: | DRYWALL PAINT | Plumbing Fixture Cnt: | 14 | | Roof Slope: | 8" IN 12" | Roof Structure/Cover: | CJ ASPHALT |
|
| | Type | Description | Class CD | Sub Class CD | Year Built | Area |
| | BAS | BASE/MAIN FLOOR | 4 | 0 | 1999 | 1136.1 |
| | OP4 | OPEN PORCH W/CEILING-ROOF | 4 | 0 | 1999 | 40.0 |
| | AGR | ATTACHED GARAGE | 4 | 0 | 1999 | 600.0 |
| | UPS | UPPER STORY | 4 | 0 | 1999 | 924.0 |
| | OWP | OPEN WOOD PORCH W/STEPS | 4 | 0 | 1999 | 239.3 |
| | OWC | OPEN WOOD PORCH W/STEPS/ROOF/C | 4 | 0 | 1999 | 90.0 |
Sketch
Property Image
Land
| 1 | 18 | AC (02.01-03.00) | 0.0000 | 91476.00 | 0.00 | 0.00 | 1.00 | $380,000 | $0 |
Roll Value History
| 2026 | N/A | N/A | N/A | N/A | N/A |
| 2025 | $415,987 | $380,000 | $0 | $795,987 | $795,987 |
| 2024 | $421,107 | $360,000 | $0 | $781,107 | $781,107 |
| 2023 | $426,227 | $330,000 | $0 | $756,227 | $756,227 |
| 2022 | $390,601 | $280,000 | $0 | $670,601 | $670,601 |
| 2021 | $343,675 | $250,000 | $0 | $593,675 | $593,675 |
| 2020 | $334,273 | $200,000 | $0 | $534,273 | $534,273 |
| 2019 | $247,840 | $260,000 | $0 | $507,840 | $507,840 |
| 2018 | $248,551 | $200,000 | $0 | $448,551 | $448,551 |
| 2017 | $212,448 | $200,000 | $0 | $412,448 | $412,448 |
| 2016 | $215,071 | $150,000 | $0 | $365,071 | $365,071 |
| 2015 | $217,693 | $145,000 | $0 | $362,693 | $362,693 |
| 2014 | $220,318 | $123,250 | $0 | $343,568 | $343,568 |
| 2013 | $224,511 | $123,250 | $0 | $347,761 | $347,761 |
| 2012 | $227,135 | $123,250 | $0 | $350,385 | $350,385 |
| 2011 | $229,760 | $145,000 | $0 | $374,760 | $374,760 |
| 2010 | $239,041 | $145,000 | $0 | $384,041 | $384,041 |
| 2009 | $249,215 | $155,000 | $0 | $404,215 | $404,215 |
| 2008 | $252,150 | $136,500 | $0 | $388,650 | $388,650 |
| 2007 | $252,743 | $136,500 | $0 | $389,243 | $389,243 |
Deed and Sales History
| 1 | 11/20/2017 | WD | Warranty Deed | CUNNINGHAM, SAM J | CHENG, BENJAMIN | | | $530,000.00 | 31999 | 4434540 |
| 2 | 11/20/2017 | QCD | Quit Claim Deed | CUNNINGHAM, SAM J | CUNNINGHAM, SAM J | | | $0.00 | 31998 | 4434539 |
| 3 | 12/11/2012 | DECREE | Divorce Decree/Legal Separation | CUNNINGHAM, SAM J | CUNNINGHAM, SAM J | | | | 82553 | |
| 4 | 09/22/2005 | WD | Warranty Deed | DAWKINS, NORMAN D | CUNNINGHAM, SAM J | | | $429,000.00 | 54839 | 4148946 |
| 5 | 03/01/1998 | WD | Warranty Deed | EATON, FRANKLIN H | DAWKINS, NORMAN D | | | $75,000.00 | 80871 | 98004956 |
| 6 | 01/01/1900 | OTHER | Other - Misc. Documents | Unknown | EATON, FRANKLIN H | | | $0.00 | 73860 | 97018455 |
Payout Agreement
| No payout information available.. |