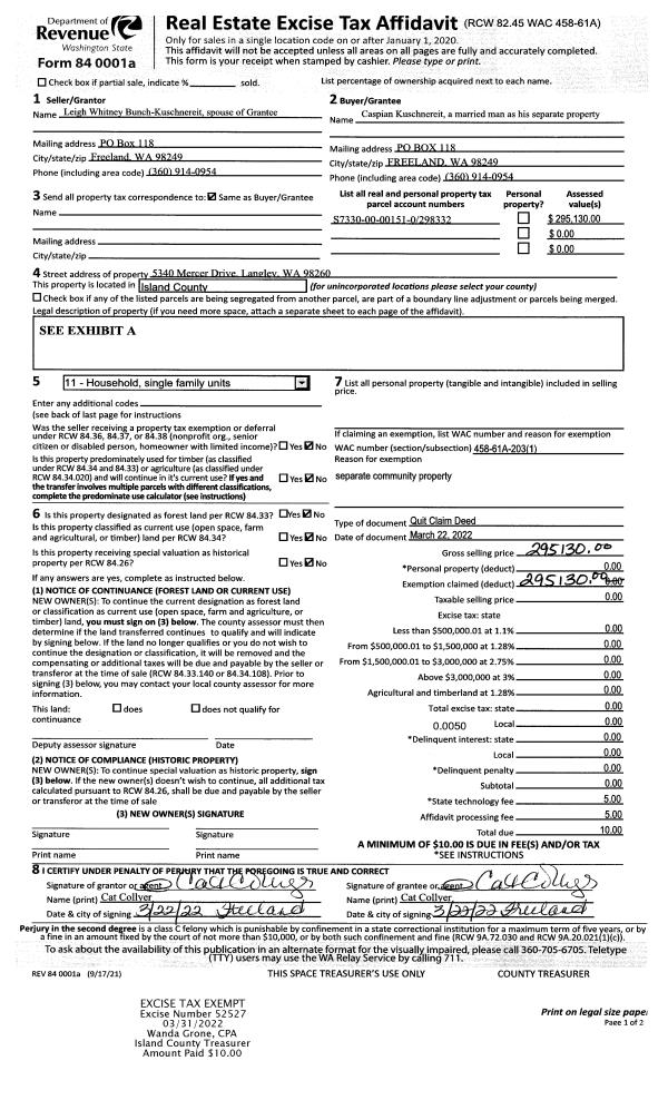
Property
Account |
| Property ID: | 757817 | Abbreviated Legal Description: | MT VW BCH 2 LOT 324 TGW W/2 ADJ VAC BROADMOOR DR & LOT 206 TGW E/2 ADJ VAC BROADMOOR DR FR 00323-0 & 00205-0 COMB 12/97 |
| Geographic ID: | S7525-02-00324-0 | Agent Code: | |
| Type: | Real | | |
| Tax Area: | 540 - APPRAISER-Stan/Cam Schl Dist, Special Dist, improved & less than 1 acre | Land Use Code | 48 |
| Open Space: | N | DFL | N |
| Historic Property: | N | Remodel Property: | N |
| Multi-Family Redevelopment: | N | | |
| Township: | | Section: | |
| Range: | |
Location |
| Address: | | Mapsco: | |
| Neighborhood: | Cycle 5 | Map ID: | 948 |
| Neighborhood CD: | 5 |
Owner |
| Name: | ACE WATER ASSOC | Owner ID: | 148108 |
| Mailing Address: | C/O BILL GOODENOUGH 3421 187TH PL SE BOTHELL, WA 98012-8828 | % Ownership: | 100.0000000000% |
| | | Exemptions: | |
Taxes and Assessment Details
Values
| (+) Improvement Homesite Value: | + | $0 | |
| (+) Improvement Non-Homesite Value: | + | $30,940 | |
| (+) Land Homesite Value: | + | $0 | |
| (+) Land Non-Homesite Value: | + | $9,000 | |
| (+) Curr Use (HS): | + | $0 | $0 |
| (+) Curr Use (NHS): | + | $0 | $0 |
| | | -------------------------- | |
| (=) Market Value: | = | $39,940 | |
| (–) Productivity Loss: | – | $0 | |
| | | -------------------------- | |
| (=) Subtotal: | = | $39,940 | |
| (+) Senior Appraised Value: | + | $0 | |
| (+) Non-Senior Appraised Value: | + | $39,940 | |
| | | -------------------------- | |
| (=) Total Appraised Value: | = | $39,940 | |
| (–) Senior Exemption Loss: | – | $0 | |
| (–) Exemption Loss: | – | $0 | |
| | | -------------------------- | |
| (=) Taxable Value: | = | $39,940 | |
Taxing Jurisdiction
| Owner: | ACE WATER ASSOC | | |
| % Ownership: | 100.0000000000% | | |
| Total Value: | $39,940 | | |
| Tax Area: | 540 - APPRAISER-Stan/Cam Schl Dist, Special Dist, improved & less than 1 acre |
| CF | Conservation Futures | 0.0316035091 | $39,940 | $39,940 | $1.26 | | |
| EMS1 | Fire & Rescue Dist #1 Camano GEN (EMS) | 0.3677864386 | $39,940 | $39,940 | $14.69 | | |
| FIRE1 | Fire & Rescue Dist #1 Camano GEN | 1.2502910536 | $39,940 | $39,940 | $49.94 | | |
| FIRE1BOND | Fire & Rescue Dist #1 Camano BOND | 0.1570001679 | $39,940 | $39,940 | $6.27 | | |
| CE | County Current Expense | 0.3708482477 | $39,940 | $39,940 | $14.81 | | |
| CR | County Roads | 0.4584763726 | $39,940 | $39,940 | $18.31 | | |
| LCIB | Library Sno-Isle BOND (Camano Island) | 0.0396325772 | $39,940 | $39,940 | $1.58 | | |
| LIB | Library Sno-Isle GEN | 0.3153421757 | $39,940 | $39,940 | $12.59 | | |
| SCH205_401 | School 205-401 Enrichment | 1.2698420524 | $39,940 | $39,940 | $50.72 | | |
| SCH205BOND | School 205-401 BOND | 0.9396497583 | $39,940 | $39,940 | $37.53 | | |
| ST | State School | 1.3035497053 | $39,940 | $39,940 | $52.06 | | |
| ST2 | State School Part 2 | 0.8169543533 | $39,940 | $39,940 | $32.63 | | |
| | Total Tax Rate: | 7.3209764117 | | | | | |
| | | | | Taxes w/Current Exemptions: | $292.39 | | |
| | | | | Taxes w/o Exemptions: | $292.39 | | |
Improvement / Building
| Improvement #1: | MISC | State Code: | Y | 0.0 sqft | Value: | $30,940 |
| | Type | Description | Class CD | Sub Class CD | Year Built | Area |
| | oPUM | PUMP HOUSE | 1 | 0 | 1900 | 80.0 |
| | oWT2 | 20K GALLON TANK | 1 | 0 | 1900 | 314.2 |
Sketch
Property Image
Land
| 1 | 14 | SQ (08001-12000) | 0.0000 | 0.00 | 0.00 | 0.00 | 1.00 | $9,000 | $0 |
Roll Value History
| 2026 | N/A | N/A | N/A | N/A | N/A |
| 2025 | $30,940 | $9,000 | $0 | $39,940 | $39,940 |
| 2024 | $30,940 | $9,000 | $0 | $39,940 | $39,940 |
| 2023 | $30,940 | $9,000 | $0 | $39,940 | $39,940 |
| 2022 | $30,940 | $9,000 | $0 | $39,940 | $39,940 |
| 2021 | $23,207 | $5,000 | $0 | $28,207 | $28,207 |
| 2020 | $23,207 | $5,000 | $0 | $28,207 | $28,207 |
| 2019 | $23,207 | $5,000 | $0 | $28,207 | $28,207 |
| 2018 | $23,207 | $5,000 | $0 | $28,207 | $28,207 |
| 2017 | $23,207 | $5,000 | $0 | $28,207 | $28,207 |
| 2016 | $23,207 | $5,000 | $0 | $28,207 | $28,207 |
| 2015 | $23,207 | $6,800 | $0 | $30,007 | $30,007 |
| 2014 | $23,207 | $6,800 | $0 | $30,007 | $30,007 |
| 2013 | $23,207 | $6,800 | $0 | $30,007 | $30,007 |
| 2012 | $23,207 | $6,800 | $0 | $30,007 | $30,007 |
| 2011 | $23,207 | $8,500 | $0 | $31,707 | $31,707 |
| 2010 | $23,207 | $8,500 | $0 | $31,707 | $31,707 |
| 2009 | $23,248 | $8,500 | $0 | $31,748 | $31,748 |
| 2008 | $23,290 | $8,500 | $0 | $31,790 | $31,790 |
| 2007 | $23,332 | $8,500 | $0 | $31,832 | $31,832 |
Deed and Sales History
| 1 | 08/11/2000 | CD | DNU - Correction Deed | VANASSE, H J | ACE WATER ASSOC, | | | $0.00 | 3199 | 20014986 |
| 2 | 12/01/1997 | BLA | DNU - Boundary Line Adjustment | VANASSE, H J | VANASSE, H J | | | $0.00 | 67712 | 97021487 |
| 3 | 01/01/1900 | OTHER | Other - Misc. Documents | Unknown | VANASSE, H J | | | $0.00 | 0 | 0 |
Payout Agreement
| No payout information available.. |