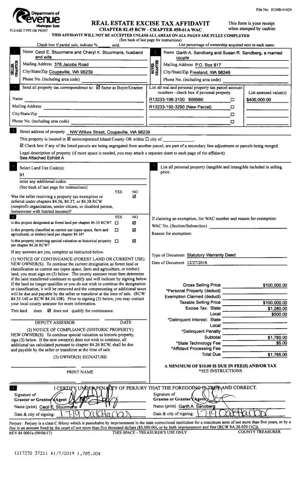
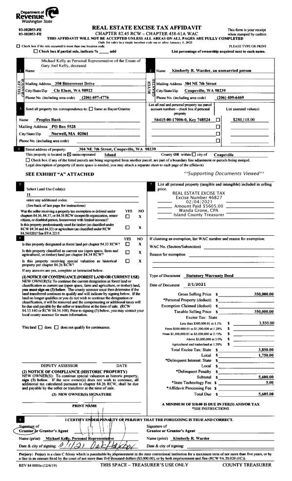
Property
Account |
| Property ID: | 757915 | Abbreviated Legal Description: | THIRD ST COTTAGES - CONDO UNIT 6 12.5% INT |
| Geographic ID: | S8313-00-00006-0 | Agent Code: | |
| Type: | Real | | |
| Tax Area: | 700 - APPRAISER-S Whid Schl Dist, in town of Langley | Land Use Code | 14 |
| Open Space: | N | DFL | N |
| Historic Property: | N | Remodel Property: | N |
| Multi-Family Redevelopment: | N | | |
| Township: | | Section: | |
| Range: | |
Location |
| Address: | 380 COTTAGE LN UNIT 6 LANGLEY, WA 98260 | Mapsco: | |
| Neighborhood: | 42*LG-3rd street | Map ID: | 912 |
| Neighborhood CD: | 42*LG3rdst |
Owner |
| Name: | CHAMBERLIN, MARCIA D | Owner ID: | 288214 |
| Mailing Address: | 15114 64TH CT NEW KENMORE, WA 98028 | % Ownership: | 100.0000000000% |
| | | Exemptions: | |
Taxes and Assessment Details
Values
| (+) Improvement Homesite Value: | + | $0 | |
| (+) Improvement Non-Homesite Value: | + | $249,440 | |
| (+) Land Homesite Value: | + | $0 | |
| (+) Land Non-Homesite Value: | + | $225,000 | |
| (+) Curr Use (HS): | + | $0 | $0 |
| (+) Curr Use (NHS): | + | $0 | $0 |
| | | -------------------------- | |
| (=) Market Value: | = | $474,440 | |
| (–) Productivity Loss: | – | $0 | |
| | | -------------------------- | |
| (=) Subtotal: | = | $474,440 | |
| (+) Senior Appraised Value: | + | $0 | |
| (+) Non-Senior Appraised Value: | + | $474,440 | |
| | | -------------------------- | |
| (=) Total Appraised Value: | = | $474,440 | |
| (–) Senior Exemption Loss: | – | $0 | |
| (–) Exemption Loss: | – | $0 | |
| | | -------------------------- | |
| (=) Taxable Value: | = | $474,440 | |
Taxing Jurisdiction
| Owner: | CHAMBERLIN, MARCIA D | | |
| % Ownership: | 100.0000000000% | | |
| Total Value: | $474,440 | | |
| Tax Area: | 700 - APPRAISER-S Whid Schl Dist, in town of Langley |
| CF | Conservation Futures | 0.0316035091 | $474,440 | $474,440 | $14.99 | | |
| LANG | City of Langley | 1.0093520762 | $474,440 | $474,440 | $478.88 | | |
| LANGBOND | City of Langley BOND | 1.0326110892 | $474,440 | $474,440 | $489.91 | | |
| FIRE3 | Fire & Rescue Dist #3 S Whidbey GEN | 1.2004855531 | $474,440 | $474,440 | $569.56 | | |
| HOBOND | Hospital BOND | 0.1910887512 | $474,440 | $474,440 | $90.66 | | |
| HOGEN | Hospital GEN | 0.3902502903 | $474,440 | $474,440 | $185.15 | | |
| CE | County Current Expense | 0.3708482477 | $474,440 | $474,440 | $175.95 | | |
| ISLANDEMS | Hospital GEN (EMS) | 0.5000000000 | $474,440 | $474,440 | $237.22 | | |
| LIB | Library Sno-Isle GEN | 0.3153421757 | $474,440 | $474,440 | $149.61 | | |
| PORTWHID | Port of S Whidbey GEN | 0.1094540357 | $474,440 | $474,440 | $51.93 | | |
| SCH206BOND | School 206 BOND | 0.3161759235 | $474,440 | $474,440 | $150.01 | | |
| SCH206MO | School 206 Enrichment | 0.4547169547 | $474,440 | $474,440 | $215.74 | | |
| ST | State School | 1.3035497053 | $474,440 | $474,440 | $618.46 | | |
| ST2 | State School Part 2 | 0.8169543533 | $474,440 | $474,440 | $387.60 | | |
| SWHIDPRBD | P & R S Whidbey BOND | 0.0152817568 | $474,440 | $474,440 | $7.25 | | |
| SWHIDPRBD2 | P & R S Whidbey BOND2 | 0.0138911264 | $474,440 | $474,440 | $6.59 | | |
| SWHIDPRMT | P & R S Whidbey GEN | 0.2053334452 | $474,440 | $474,440 | $97.42 | | |
| | Total Tax Rate: | 8.2769389934 | | | | | |
| | | | | Taxes w/Current Exemptions: | $3,926.93 | | |
| | | | | Taxes w/o Exemptions: | $3,926.93 | | |
Improvement / Building
| Improvement #1: | RESIDENTIAL | State Code: | A1 | 873.9 sqft | Value: | $249,440 |
| Bathrooms: | 1 | Bedrooms: | 1 | | Ceiling: | PLYWOOD PAINTED | Exterior Wall/Cover: | WOOD SIDING | | Floor Covering: | SOFTWOOD/VINYL 80-20 | Floor Structure: | WOOD W/SUBFLOOR | | Foundation: | CONCRETE | Heating: | GLASS PANEL ELECTRIC | | Interior Finish: | PLASTER | Plumbing Fixture Cnt: | 6 | | Roof Slope: | 8" IN 12" | Roof Structure/Cover: | CJ ASPHALT |
|
| | Type | Description | Class CD | Sub Class CD | Year Built | Area |
| | BAS | BASE/MAIN FLOOR | 5 | 0 | 1998 | 653.9 |
| | OWC | OPEN WOOD PORCH W/STEPS/ROOF/C | 5 | 0 | 1998 | 104.0 |
| | LOF | LOFT | 5 | 0 | 1998 | 80.0 |
| | LOF | LOFT | 5 | 0 | 1998 | 140.0 |
| | oSIT | Site Improvements | 5 | 0 | 1998 | 0.0 |
Sketch
Property Image
Land
| 1 | 61 | MULTIPLE RESIDENCES | 0.0000 | 3660.00 | 0.00 | 0.00 | 1.00 | $225,000 | $0 |
Roll Value History
| 2026 | N/A | N/A | N/A | N/A | N/A |
| 2025 | $249,440 | $225,000 | $0 | $474,440 | $474,440 |
| 2024 | $252,359 | $225,000 | $0 | $477,359 | $477,359 |
| 2023 | $255,281 | $225,000 | $0 | $480,281 | $480,281 |
| 2022 | $234,945 | $225,000 | $0 | $459,945 | $459,945 |
| 2021 | $208,183 | $200,000 | $0 | $408,183 | $408,183 |
| 2020 | $215,872 | $180,000 | $0 | $395,872 | $395,872 |
| 2019 | $155,015 | $230,000 | $0 | $385,015 | $385,015 |
| 2018 | $155,501 | $170,000 | $0 | $325,501 | $325,501 |
| 2017 | $156,467 | $122,903 | $0 | $279,370 | $279,370 |
| 2016 | $158,404 | $122,903 | $0 | $281,307 | $281,307 |
| 2015 | $148,703 | $122,903 | $0 | $271,606 | $271,606 |
| 2014 | $139,653 | $122,903 | $0 | $262,556 | $262,556 |
| 2013 | $141,322 | $122,903 | $0 | $264,225 | $264,225 |
| 2012 | $144,656 | $122,903 | $0 | $267,559 | $267,559 |
| 2011 | $144,656 | $122,903 | $0 | $267,559 | $267,559 |
| 2010 | $135,944 | $122,903 | $0 | $258,847 | $258,847 |
| 2009 | $141,702 | $155,550 | $0 | $297,252 | $297,252 |
| 2008 | $157,978 | $155,550 | $0 | $313,528 | $313,528 |
| 2007 | $159,778 | $155,550 | $0 | $315,328 | $315,328 |
Deed and Sales History
| 1 | 12/11/2018 | PRD | Personal Representatives Deed | CHAMBERLIN, CHARLES E | CHAMBERLIN, MARCIA D | | | $0.00 | 36989 | 4456553 |
| 2 | 03/28/2002 | WD | Warranty Deed | FREI, KATHRYN L | CHAMBERLIN, CHARLES E | | | $207,000.00 | 21291 | 4016262 |
| 3 | 06/20/2000 | WD | Warranty Deed | BROWN, KETURAH A | FREI, KATHRYN L | | | $190,000.00 | 2341 | 2011178 |
| 4 | 01/01/1998 | WD | Warranty Deed | LANGLEY, COTTAGE C | BROWN, KETURAH A | | | $143,900.00 | 80083 | 98000416 |
| 5 | 01/01/1900 | OTHER | Other - Misc. Documents | Unknown | LANGLEY, COTTAGE C | | | $0.00 | 67525 | 97009172 |
Payout Agreement
| No payout information available.. |