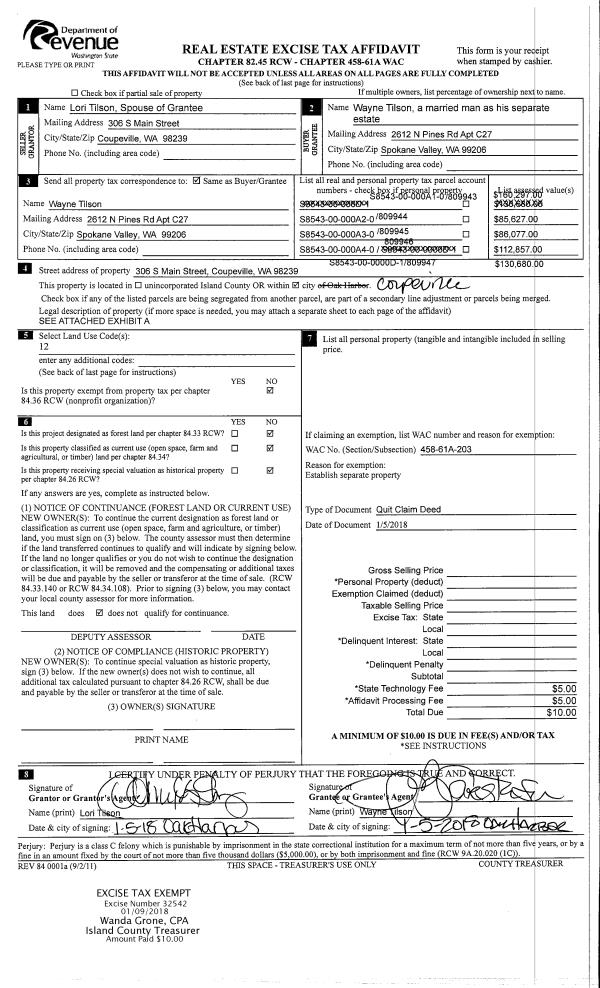
Property
Account |
| Property ID: | 758040 | Abbreviated Legal Description: | SHANG LA SH 2 LOTS 27 & 28 BLK 3 COMB 2/95 |
| Geographic ID: | S8150-02-03028-0 | Agent Code: | |
| Type: | Real | | |
| Tax Area: | 310 - APPRAISER-Cpvl Schl Dist, outside Cpvl, improved & 1 acre or less | Land Use Code | 11 |
| Open Space: | N | DFL | N |
| Historic Property: | N | Remodel Property: | N |
| Multi-Family Redevelopment: | N | | |
| Township: | | Section: | |
| Range: | |
Location |
| Address: | 788 SHANGRI-LA CIR COUPEVILLE, WA 98239 | Mapsco: | |
| Neighborhood: | Cycle 2 | Map ID: | 466 |
| Neighborhood CD: | 2 |
Owner |
| Name: | JAD ENTERPRISES, LLC | Owner ID: | 270007 |
| Mailing Address: | PO BOX 392 COUPEVILLE, WA 98239 | % Ownership: | 100.0000000000% |
| | | Exemptions: | |
Taxes and Assessment Details
Values
| (+) Improvement Homesite Value: | + | $0 | |
| (+) Improvement Non-Homesite Value: | + | $200,828 | |
| (+) Land Homesite Value: | + | $0 | |
| (+) Land Non-Homesite Value: | + | $220,000 | |
| (+) Curr Use (HS): | + | $0 | $0 |
| (+) Curr Use (NHS): | + | $0 | $0 |
| | | -------------------------- | |
| (=) Market Value: | = | $420,828 | |
| (–) Productivity Loss: | – | $0 | |
| | | -------------------------- | |
| (=) Subtotal: | = | $420,828 | |
| (+) Senior Appraised Value: | + | $0 | |
| (+) Non-Senior Appraised Value: | + | $420,828 | |
| | | -------------------------- | |
| (=) Total Appraised Value: | = | $420,828 | |
| (–) Senior Exemption Loss: | – | $0 | |
| (–) Exemption Loss: | – | $0 | |
| | | -------------------------- | |
| (=) Taxable Value: | = | $420,828 | |
Taxing Jurisdiction
| Owner: | JAD ENTERPRISES, LLC | | |
| % Ownership: | 100.0000000000% | | |
| Total Value: | $420,828 | | |
| Tax Area: | 310 - APPRAISER-Cpvl Schl Dist, outside Cpvl, improved & 1 acre or less |
| CF | Conservation Futures | 0.0316035091 | $420,828 | $420,828 | $13.30 | | |
| CEM2 | Cemetery #2 | 0.0095056933 | $420,828 | $420,828 | $4.00 | | |
| FIRE5 | Fire & Rescue Dist #5 C Whidbey GEN | 1.2008080668 | $420,828 | $420,828 | $505.33 | | |
| FIRE5BOND | Fire & Rescue Dist #5 C Whidbey BOND | 0.1400090713 | $420,828 | $420,828 | $58.92 | | |
| HOBOND | Hospital BOND | 0.1910887512 | $420,828 | $420,828 | $80.42 | | |
| HOGEN | Hospital GEN | 0.3902502903 | $420,828 | $420,828 | $164.23 | | |
| CE | County Current Expense | 0.3708482477 | $420,828 | $420,828 | $156.06 | | |
| CR | County Roads | 0.4584763726 | $420,828 | $420,828 | $192.94 | | |
| ISLANDEMS | Hospital GEN (EMS) | 0.5000000000 | $420,828 | $420,828 | $210.41 | | |
| LIB | Library Sno-Isle GEN | 0.3153421757 | $420,828 | $420,828 | $132.70 | | |
| LIBCAP | Library Sno-Isle BOND (Cap Fac Imp Area) | 0.0543427938 | $420,828 | $420,828 | $22.87 | | |
| POCOUP | Port of Coupeville GEN | 0.1093371703 | $420,828 | $420,828 | $46.01 | | |
| POCOUPIDD | Port of Coupeville IDD | 0.3409740022 | $420,828 | $420,828 | $143.49 | | |
| COUPSDTECH | School 204 CP (TECH) | 0.7545480007 | $420,828 | $420,828 | $317.53 | | |
| SCH204MO | School 204 Enrichment | 0.6716186034 | $420,828 | $420,828 | $282.64 | | |
| ST | State School | 1.3035497053 | $420,828 | $420,828 | $548.57 | | |
| ST2 | State School Part 2 | 0.8169543533 | $420,828 | $420,828 | $343.80 | | |
| | Total Tax Rate: | 7.6592568070 | | | | | |
| | | | | Taxes w/Current Exemptions: | $3,223.22 | | |
| | | | | Taxes w/o Exemptions: | $3,223.22 | | |
Improvement / Building
| Improvement #1: | RESIDENTIAL | State Code: | Y | 1088.0 sqft | Value: | $200,828 |
| Bathrooms: | 1 | Bedrooms: | 3 | | Ceiling: | DRYWALL PAINTED | Exterior Wall/Cover: | PLY/HARDBOARD T-111 | | Floor Covering: | CARPET/VINYL 80-20 | Floor Structure: | WOOD W/SUBFLOOR | | Foundation: | CONCRETE | Heating: | BASEBOARD ELECTRIC | | Interior Finish: | DRYWALL PAINT | Plumbing Fixture Cnt: | 6 | | Roof Slope: | 8" IN 12" | Roof Structure/Cover: | BEAM ALUMINUM HEAVY |
|
| | Type | Description | Class CD | Sub Class CD | Year Built | Area |
| | BAS | BASE/MAIN FLOOR | 3 | 0 | 1970 | 768.0 |
| | UPH | HALF STORY | 3 | 0 | 1970 | 320.0 |
| | OWP | OPEN WOOD PORCH W/STEPS | 3 | 0 | 1970 | 21.0 |
| | OWR | OPEN WOOD PORCH W/STEPS/ROOF | 3 | 0 | 1970 | 212.0 |
| | UTY | STORAGE/UTILITY | 3 | 0 | 1970 | 272.0 |
Sketch
| No sketches available for this property. |
Property Image
Land
| 1 | 15 | SQ (12001-21780) | 0.4760 | 20734.56 | 0.00 | 0.00 | 1.00 | $220,000 | $0 |
Roll Value History
| 2026 | N/A | N/A | N/A | N/A | N/A |
| 2025 | $200,828 | $220,000 | $0 | $420,828 | $420,828 |
| 2024 | $200,046 | $190,000 | $0 | $390,046 | $390,046 |
| 2023 | $201,210 | $180,000 | $0 | $381,210 | $381,210 |
| 2022 | $184,412 | $170,000 | $0 | $354,412 | $354,412 |
| 2021 | $162,292 | $140,000 | $0 | $302,292 | $302,292 |
| 2020 | $158,242 | $120,000 | $0 | $278,242 | $278,242 |
| 2019 | $114,298 | $155,000 | $0 | $269,298 | $269,298 |
| 2018 | $88,912 | $135,000 | $0 | $223,912 | $223,912 |
| 2017 | $89,538 | $115,000 | $0 | $204,538 | $204,538 |
| 2016 | $90,788 | $115,000 | $0 | $205,788 | $59,816 |
| 2015 | $92,039 | $90,000 | $0 | $182,039 | $59,816 |
| 2014 | $93,289 | $55,000 | $0 | $148,289 | $96,388 |
| 2013 | $94,540 | $55,000 | $0 | $149,540 | $97,201 |
| 2012 | $84,483 | $76,500 | $0 | $160,983 | $31,188 |
| 2011 | $85,742 | $85,000 | $0 | $170,742 | $31,188 |
| 2010 | $91,263 | $85,000 | $0 | $176,263 | $31,188 |
| 2009 | $95,225 | $100,000 | $0 | $195,225 | $31,188 |
| 2008 | $96,532 | $100,000 | $0 | $196,532 | $31,188 |
| 2007 | $97,839 | $100,000 | $0 | $197,839 | $31,188 |
Deed and Sales History
| 1 | 01/25/2018 | WD | Warranty Deed | MAGNUSSON, HERBERT N | JAD ENTERPRISES, LLC | | | $225,000.00 | 32735 | 4438113 |
| 2 | 02/01/1995 | OTHER | Other - Misc. Documents | MAGNUSSON, HERBERT N | MAGNUSSON, HERBERT N | | | $0.00 | 66248 | 95001565 |
| 3 | 01/01/1900 | OTHER | Other - Misc. Documents | Unknown | MAGNUSSON, HERBERT N | | | $0.00 | 0 | 0 |
Payout Agreement
| No payout information available.. |