Property
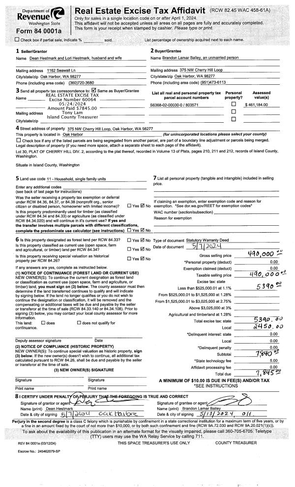
Account |
| Property ID: | 758184 | Abbreviated Legal Description: | PT S/2 NE SW LY SELY OF SELY LN ZYLSTRA RD EX W660 |
| Geographic ID: | R13208-142-2400 | Agent Code: | |
| Type: | Real | | |
| Tax Area: | 112 - APPRAISER-OH Schl Dist, outside OH, improved, greater than 1 acre | Land Use Code | 11 |
| Open Space: | N | DFL | N |
| Historic Property: | N | Remodel Property: | N |
| Multi-Family Redevelopment: | N | | |
| Township: | 32 | Section: | 08 |
| Range: | R1 |
Location |
| Address: | 2004 ZYLSTRA RD OAK HARBOR, WA 98277 | Mapsco: | |
| Neighborhood: | Cycle 1 | Map ID: | 108 |
| Neighborhood CD: | 1 |
Owner |
| Name: | ELVEBAK TTEE, RYAN A | Owner ID: | 316378 |
| Mailing Address: | ALLISON J ELVEBAK TTEE 2004 ZYLSTRA RD OAK HARBOR, WA 98277 | % Ownership: | 100.0000000000% |
| | | Exemptions: | |
Taxes and Assessment Details
Values
| (+) Improvement Homesite Value: | + | $0 | |
| (+) Improvement Non-Homesite Value: | + | $411,222 | |
| (+) Land Homesite Value: | + | $0 | |
| (+) Land Non-Homesite Value: | + | $260,000 | |
| (+) Curr Use (HS): | + | $0 | $0 |
| (+) Curr Use (NHS): | + | $0 | $0 |
| | | -------------------------- | |
| (=) Market Value: | = | $671,222 | |
| (–) Productivity Loss: | – | $0 | |
| | | -------------------------- | |
| (=) Subtotal: | = | $671,222 | |
| (+) Senior Appraised Value: | + | $0 | |
| (+) Non-Senior Appraised Value: | + | $671,222 | |
| | | -------------------------- | |
| (=) Total Appraised Value: | = | $671,222 | |
| (–) Senior Exemption Loss: | – | $0 | |
| (–) Exemption Loss: | – | $0 | |
| | | -------------------------- | |
| (=) Taxable Value: | = | $671,222 | |
Taxing Jurisdiction
| Owner: | ELVEBAK TTEE, RYAN A | | |
| % Ownership: | 100.0000000000% | | |
| Total Value: | $671,222 | | |
| Tax Area: | 112 - APPRAISER-OH Schl Dist, outside OH, improved, greater than 1 acre |
| CF | Conservation Futures | 0.0316035091 | $671,222 | $671,222 | $21.21 | | |
| CEM1 | Cemetery #1 | 0.0040320932 | $671,222 | $671,222 | $2.71 | | |
| FIRE2 | Fire & Rescue Dist #2 N Whidbey GEN | 0.5475949600 | $671,222 | $671,222 | $367.56 | | |
| HOBOND | Hospital BOND | 0.1910887512 | $671,222 | $671,222 | $128.26 | | |
| HOGEN | Hospital GEN | 0.3902502903 | $671,222 | $671,222 | $261.94 | | |
| CE | County Current Expense | 0.3708482477 | $671,222 | $671,222 | $248.92 | | |
| CR | County Roads | 0.4584763726 | $671,222 | $671,222 | $307.74 | | |
| ISLANDEMS | Hospital GEN (EMS) | 0.5000000000 | $671,222 | $671,222 | $335.61 | | |
| LIB | Library Sno-Isle GEN | 0.3153421757 | $671,222 | $671,222 | $211.66 | | |
| NWHIDPRMT | P & R N Whidbey GEN | 0.2004466701 | $671,222 | $671,222 | $134.54 | | |
| SCH201MO | School 201 Enrichment | 1.8559231640 | $671,222 | $671,222 | $1,245.74 | | |
| ST | State School | 1.3035497053 | $671,222 | $671,222 | $874.97 | | |
| ST2 | State School Part 2 | 0.8169543533 | $671,222 | $671,222 | $548.36 | | |
| | Total Tax Rate: | 6.9861102925 | | | | | |
| | | | | Taxes w/Current Exemptions: | $4,689.22 | | |
| | | | | Taxes w/o Exemptions: | $4,689.22 | | |
Improvement / Building
| Improvement #1: | RESIDENTIAL | State Code: | Y | 3190.7 sqft | Value: | $411,222 |
| Bathrooms: | 2 | Bedrooms: | 2 | | Ceiling: | DRYWALL PAINTED | Cooling: | HEAT PUMP/CONV/V | | Exterior Wall/Cover: | CEMENT FIBER | Floor Covering: | CARPET/VINYL 80-20 | | Floor Structure: | WOOD W/SUBFLOOR | Foundation: | CONCRETE | | Interior Finish: | DRYWALL PAINT | Plumbing Fixture Cnt: | 10 | | Roof Slope: | 4" IN 12" | Roof Structure/Cover: | CJ ASPHALT |
|
| | Type | Description | Class CD | Sub Class CD | Year Built | Area |
| | BAS | BASE/MAIN FLOOR | 3 | 0 | 1992 | 2230.7 |
| | AGR | ATTACHED GARAGE | 3 | 0 | 1992 | 699.9 |
| | OWP | OPEN WOOD PORCH W/STEPS | 3 | 0 | 1992 | 348.4 |
| | DWN | DOWNSTAIRS LIVING AREA | 3 | 0 | 1992 | 960.0 |
Sketch
Property Image
Land
| 1 | 18 | AC (02.01-03.00) | 2.5200 | 109771.20 | 0.00 | 0.00 | 1.00 | $260,000 | $0 |
Roll Value History
| 2026 | N/A | N/A | N/A | N/A | N/A |
| 2025 | $411,222 | $260,000 | $0 | $671,222 | $671,222 |
| 2024 | $415,935 | $250,000 | $0 | $665,935 | $665,935 |
| 2023 | $401,796 | $280,000 | $0 | $681,796 | $681,796 |
| 2022 | $368,084 | $250,000 | $0 | $618,084 | $618,084 |
| 2021 | $333,532 | $210,000 | $0 | $543,532 | $543,532 |
| 2020 | $325,370 | $175,000 | $0 | $500,370 | $500,370 |
| 2019 | $250,986 | $190,000 | $0 | $440,986 | $440,986 |
| 2018 | $251,688 | $150,000 | $0 | $401,688 | $401,688 |
| 2017 | $233,482 | $150,000 | $0 | $383,482 | $383,482 |
| 2016 | $236,136 | $120,000 | $0 | $356,136 | $356,136 |
| 2015 | $160,269 | $90,000 | $0 | $250,269 | $250,269 |
| 2014 | $143,481 | $90,000 | $0 | $233,481 | $233,481 |
| 2013 | $145,253 | $102,000 | $0 | $247,253 | $247,253 |
| 2012 | $147,023 | $102,000 | $0 | $249,023 | $249,023 |
| 2011 | $141,709 | $120,000 | $0 | $261,709 | $261,709 |
| 2010 | $142,873 | $120,000 | $0 | $262,873 | $262,873 |
| 2009 | $149,012 | $132,000 | $0 | $281,012 | $281,012 |
| 2008 | $154,337 | $132,000 | $0 | $286,337 | $286,337 |
| 2007 | $156,136 | $132,000 | $0 | $288,136 | $288,136 |
Deed and Sales History
| 1 | 03/13/2025 | QCD | Quit Claim Deed | ELVEBAK, RYAN | ELVEBAK TTEE, RYAN A | | | $0.00 | 63355 | 4585305 |
| 2 | 01/24/2005 | WD | Warranty Deed | VANDENBOSCH, ADRIAN H | ELVEBAK, RYAN | | | $199,000.00 | 50390 | 4124572 |
| 3 | 04/01/1991 | WD | Warranty Deed | Unknown | VANDENBOSCH, ADRIAN H | | | $32,000.00 | 11374 | 91005863 |
Payout Agreement
| No payout information available.. |