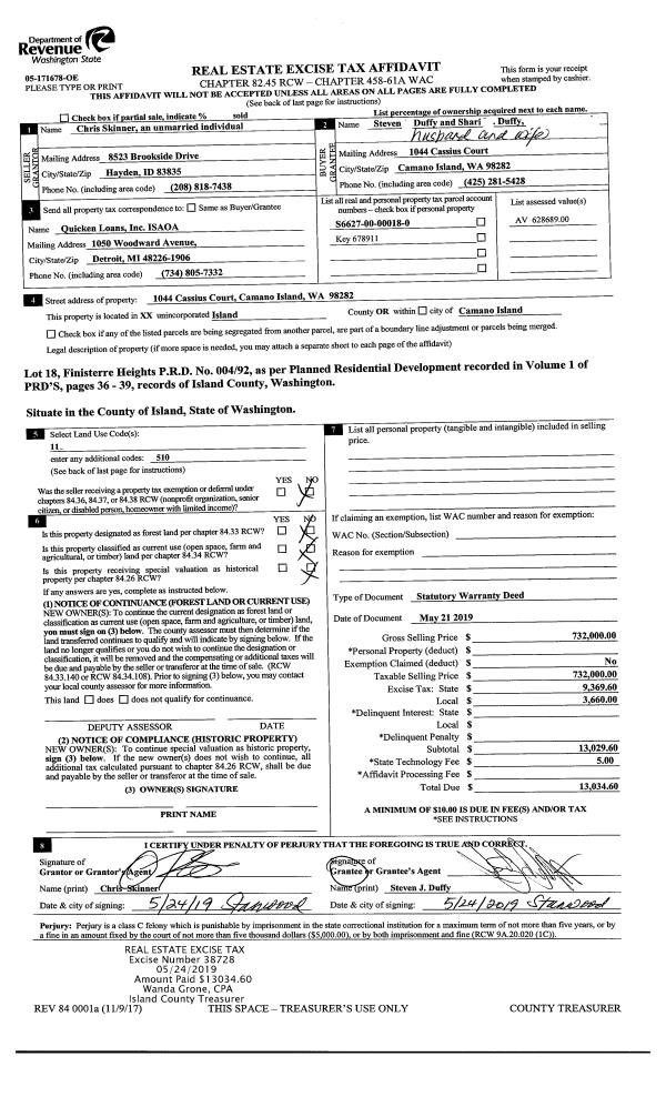
Property
Account |
| Property ID: | 759030 | Abbreviated Legal Description: | IN NW SE: BG SWCR NW SE N30 E530' N220' E808' M/L TO ELN SD NW SE S250' M/L TO SECR NW SE W TPB FR 139-3560 & PT 200-3300 |
| Geographic ID: | R13205-145-3560 | Agent Code: | |
| Type: | Real | | |
| Tax Area: | 112 - APPRAISER-OH Schl Dist, outside OH, improved, greater than 1 acre | Land Use Code | 11 |
| Open Space: | N | DFL | N |
| Historic Property: | N | Remodel Property: | N |
| Multi-Family Redevelopment: | N | | |
| Township: | 32 | Section: | 05 |
| Range: | R1 |
Location |
| Address: | 2386 ZYLSTRA RD OAK HARBOR, WA 98277 | Mapsco: | |
| Neighborhood: | Cycle 1 | Map ID: | 99 |
| Neighborhood CD: | 1 |
Owner |
| Name: | SWAGART, NATHAN DAVID | Owner ID: | 297525 |
| Mailing Address: | MARNY C BARRAU 2386 ZYLSTRA RD OAK HARBOR, WA 98277 | % Ownership: | 100.0000000000% |
| | | Exemptions: | |
Taxes and Assessment Details
Values
| (+) Improvement Homesite Value: | + | $0 | |
| (+) Improvement Non-Homesite Value: | + | $371,374 | |
| (+) Land Homesite Value: | + | $0 | |
| (+) Land Non-Homesite Value: | + | $290,000 | |
| (+) Curr Use (HS): | + | $0 | $0 |
| (+) Curr Use (NHS): | + | $0 | $0 |
| | | -------------------------- | |
| (=) Market Value: | = | $661,374 | |
| (–) Productivity Loss: | – | $0 | |
| | | -------------------------- | |
| (=) Subtotal: | = | $661,374 | |
| (+) Senior Appraised Value: | + | $0 | |
| (+) Non-Senior Appraised Value: | + | $661,374 | |
| | | -------------------------- | |
| (=) Total Appraised Value: | = | $661,374 | |
| (–) Senior Exemption Loss: | – | $0 | |
| (–) Exemption Loss: | – | $0 | |
| | | -------------------------- | |
| (=) Taxable Value: | = | $661,374 | |
Taxing Jurisdiction
| Owner: | SWAGART, NATHAN DAVID | | |
| % Ownership: | 100.0000000000% | | |
| Total Value: | $661,374 | | |
| Tax Area: | 112 - APPRAISER-OH Schl Dist, outside OH, improved, greater than 1 acre |
| CF | Conservation Futures | 0.0316035091 | $661,374 | $661,374 | $20.90 | | |
| CEM1 | Cemetery #1 | 0.0040320932 | $661,374 | $661,374 | $2.67 | | |
| FIRE2 | Fire & Rescue Dist #2 N Whidbey GEN | 0.5475949600 | $661,374 | $661,374 | $362.17 | | |
| HOBOND | Hospital BOND | 0.1910887512 | $661,374 | $661,374 | $126.38 | | |
| HOGEN | Hospital GEN | 0.3902502903 | $661,374 | $661,374 | $258.10 | | |
| CE | County Current Expense | 0.3708482477 | $661,374 | $661,374 | $245.27 | | |
| CR | County Roads | 0.4584763726 | $661,374 | $661,374 | $303.22 | | |
| ISLANDEMS | Hospital GEN (EMS) | 0.5000000000 | $661,374 | $661,374 | $330.69 | | |
| LIB | Library Sno-Isle GEN | 0.3153421757 | $661,374 | $661,374 | $208.56 | | |
| NWHIDPRMT | P & R N Whidbey GEN | 0.2004466701 | $661,374 | $661,374 | $132.57 | | |
| SCH201MO | School 201 Enrichment | 1.8559231640 | $661,374 | $661,374 | $1,227.46 | | |
| ST | State School | 1.3035497053 | $661,374 | $661,374 | $862.13 | | |
| ST2 | State School Part 2 | 0.8169543533 | $661,374 | $661,374 | $540.31 | | |
| | Total Tax Rate: | 6.9861102925 | | | | | |
| | | | | Taxes w/Current Exemptions: | $4,620.43 | | |
| | | | | Taxes w/o Exemptions: | $4,620.43 | | |
Improvement / Building
| Improvement #1: | RESIDENTIAL | State Code: | Y | 2255.0 sqft | Value: | $371,374 |
| Bathrooms: | 3 | Bedrooms: | 0 | | Ceiling: | DRYWALL PAINTED | Cooling: | HEAT PUMP/CONV/V | | Exterior Wall/Cover: | COMMON BRICK VENEER | Floor Covering: | HARDWOOD/CARP 20-80 | | Floor Structure: | WOOD W/SUBFLOOR | Foundation: | CONCRETE BLOCKS | | Interior Finish: | DRYWALL PAINT | Plumbing Fixture Cnt: | 11 | | Roof Slope: | 5" IN 12" | Roof Structure/Cover: | CJ ASPHALT |
|
| | Type | Description | Class CD | Sub Class CD | Year Built | Area |
| | BAS | BASE/MAIN FLOOR | 3 | 0 | 1968 | 2255.0 |
| | OP4 | OPEN PORCH W/CEILING-ROOF | 3 | 0 | 1968 | 140.0 |
| | CPD | OPEN CARPORT DIRT FLOOR | 3 | 0 | 1968 | 2400.0 |
| | UTY | STORAGE/UTILITY | 3 | 0 | 1968 | 1679.9 |
| | OWP | OPEN WOOD PORCH W/STEPS | 3 | 0 | 1968 | 200.0 |
Sketch
Property Image
Land
| 1 | 32 | AC (03.01-09.99) | 5.0000 | 0.00 | 0.00 | 0.00 | 1.00 | $290,000 | $0 |
Roll Value History
| 2026 | N/A | N/A | N/A | N/A | N/A |
| 2025 | $371,374 | $290,000 | $0 | $661,374 | $661,374 |
| 2024 | $376,737 | $260,000 | $0 | $636,737 | $636,737 |
| 2023 | $375,759 | $250,000 | $0 | $625,759 | $625,759 |
| 2022 | $345,041 | $220,000 | $0 | $565,041 | $565,041 |
| 2021 | $304,174 | $190,000 | $0 | $494,174 | $494,174 |
| 2020 | $297,348 | $140,000 | $0 | $437,348 | $437,348 |
| 2019 | $229,894 | $200,000 | $0 | $429,894 | $429,894 |
| 2018 | $230,659 | $170,000 | $0 | $400,659 | $400,659 |
| 2017 | $174,238 | $160,000 | $0 | $334,238 | $334,238 |
| 2016 | $176,794 | $160,000 | $0 | $336,794 | $336,794 |
| 2015 | $179,350 | $135,000 | $0 | $314,350 | $314,350 |
| 2014 | $181,907 | $135,000 | $0 | $316,907 | $316,907 |
| 2013 | $184,464 | $123,750 | $0 | $308,214 | $308,214 |
| 2012 | $187,020 | $123,750 | $0 | $310,770 | $310,770 |
| 2011 | $205,758 | $137,500 | $0 | $343,258 | $343,258 |
| 2010 | $213,116 | $137,500 | $0 | $350,616 | $350,616 |
| 2009 | $220,841 | $187,500 | $0 | $408,341 | $408,341 |
| 2008 | $230,872 | $187,500 | $0 | $418,372 | $418,372 |
| 2007 | $234,177 | $187,500 | $0 | $421,677 | $421,677 |
Deed and Sales History
| 1 | 12/22/2020 | QCD | Quit Claim Deed | SWAGART, NATHAN DAVID | SWAGART, NATHAN DAVID | | | $0.00 | 46332 | 4506574 |
| 2 | 01/16/2019 | QCD | Quit Claim Deed | SWAGART, NATHAN | SWAGART, NATHAN DAVID | | | $0.00 | 38741 | 4464355 |
| 3 | 02/26/2015 | WD | Warranty Deed | PETERSON, ROBERT L | SWAGART, NATHAN | | | $275,000.00 | 18661 | 4374280 |
| 4 | 03/01/1998 | BLA | DNU - Boundary Line Adjustment | PETERSON, ROBERT L | PETERSON, ROBERT L | | | $0.00 | 67822 | 98003327 |
| 5 | 02/01/1998 | ESTSEPPROP | Establish Separate Property | PETERSON, ROBERT L | PETERSON, ROBERT L | | | $0.00 | 80596 | 98003195 |
| 6 | 01/01/1900 | OTHER | Other - Misc. Documents | Unknown | PETERSON, ROBERT L | | | $0.00 | 0 | 0 |
Payout Agreement
| No payout information available.. |