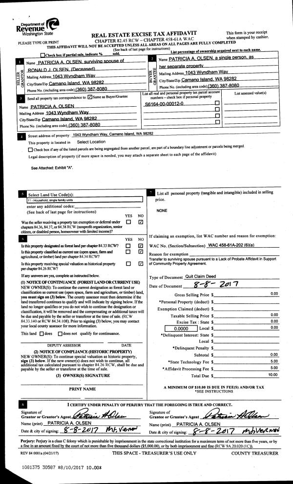
Property
Account |
| Property ID: | 759174 | Abbreviated Legal Description: | SHANNON FOREST #3 LOT 86 |
| Geographic ID: | S8152-03-00086-0 | Agent Code: | |
| Type: | Real | | |
| Tax Area: | 100 - APPRAISER-OH Schl Dist, in OH | Land Use Code | 11 |
| Open Space: | N | DFL | N |
| Historic Property: | N | Remodel Property: | N |
| Multi-Family Redevelopment: | N | | |
| Township: | | Section: | |
| Range: | |
Location |
| Address: | 724 SW REGENCY DR OAK HARBOR, WA 98277 | Mapsco: | |
| Neighborhood: | Cycle 1 | Map ID: | 92 |
| Neighborhood CD: | 1 |
Owner |
| Name: | LEHMAN, ANTHONY | Owner ID: | 303333 |
| Mailing Address: | YEKATERINA WILLIAMS 724 SW REGENCY DR OAK HARBOR, WA 98277 | % Ownership: | 100.0000000000% |
| | | Exemptions: | |
Taxes and Assessment Details
Values
| (+) Improvement Homesite Value: | + | $0 | |
| (+) Improvement Non-Homesite Value: | + | $269,720 | |
| (+) Land Homesite Value: | + | $0 | |
| (+) Land Non-Homesite Value: | + | $210,000 | |
| (+) Curr Use (HS): | + | $0 | $0 |
| (+) Curr Use (NHS): | + | $0 | $0 |
| | | -------------------------- | |
| (=) Market Value: | = | $479,720 | |
| (–) Productivity Loss: | – | $0 | |
| | | -------------------------- | |
| (=) Subtotal: | = | $479,720 | |
| (+) Senior Appraised Value: | + | $0 | |
| (+) Non-Senior Appraised Value: | + | $479,720 | |
| | | -------------------------- | |
| (=) Total Appraised Value: | = | $479,720 | |
| (–) Senior Exemption Loss: | – | $0 | |
| (–) Exemption Loss: | – | $0 | |
| | | -------------------------- | |
| (=) Taxable Value: | = | $479,720 | |
Taxing Jurisdiction
| Owner: | LEHMAN, ANTHONY | | |
| % Ownership: | 100.0000000000% | | |
| Total Value: | $479,720 | | |
| Tax Area: | 100 - APPRAISER-OH Schl Dist, in OH |
| CF | Conservation Futures | 0.0316035091 | $479,720 | $479,720 | $15.16 | | |
| CEM1 | Cemetery #1 | 0.0040320932 | $479,720 | $479,720 | $1.93 | | |
| COH | City of Oak Harbor | 2.3001546061 | $479,720 | $479,720 | $1,103.43 | | |
| OAKBOND | City of Oak Harbor BOND | 0.1926904192 | $479,720 | $479,720 | $92.44 | | |
| HOBOND | Hospital BOND | 0.1910887512 | $479,720 | $479,720 | $91.67 | | |
| HOGEN | Hospital GEN | 0.3902502903 | $479,720 | $479,720 | $187.21 | | |
| CE | County Current Expense | 0.3708482477 | $479,720 | $479,720 | $177.90 | | |
| ISLANDEMS | Hospital GEN (EMS) | 0.5000000000 | $479,720 | $479,720 | $239.86 | | |
| LIB | Library Sno-Isle GEN | 0.3153421757 | $479,720 | $479,720 | $151.28 | | |
| NWHIDPRMT | P & R N Whidbey GEN | 0.2004466701 | $479,720 | $479,720 | $96.16 | | |
| SCH201MO | School 201 Enrichment | 1.8559231640 | $479,720 | $479,720 | $890.32 | | |
| ST | State School | 1.3035497053 | $479,720 | $479,720 | $625.34 | | |
| ST2 | State School Part 2 | 0.8169543533 | $479,720 | $479,720 | $391.91 | | |
| | Total Tax Rate: | 8.4728839852 | | | | | |
| | | | | Taxes w/Current Exemptions: | $4,064.61 | | |
| | | | | Taxes w/o Exemptions: | $4,064.61 | | |
Improvement / Building
| Improvement #1: | RESIDENTIAL | State Code: | Y | 1700.0 sqft | Value: | $269,720 |
| Bathrooms: | 2 | Bedrooms: | 3 | | Ceiling: | DRYWALL PAINTED | Exterior Wall/Cover: | CEMENT FIBER | | Floor Covering: | CARPET/VINYL 60-40 | Floor Structure: | WOOD W/SUBFLOOR | | Foundation: | CONCRETE | Heating: | FHA GAS | | Interior Finish: | DRYWALL PAINT | Plumbing Fixture Cnt: | 9 | | Roof Slope: | 5" IN 12" | Roof Structure/Cover: | CJ ASPHALT |
|
| | Type | Description | Class CD | Sub Class CD | Year Built | Area |
| | BAS | BASE/MAIN FLOOR | 3 | 0 | 1998 | 1172.0 |
| | DWN | DOWNSTAIRS LIVING AREA | 3 | 0 | 1998 | 528.0 |
| | BIG | BUILT IN GARAGE | 3 | 0 | 1998 | 528.0 |
| | OWP | OPEN WOOD PORCH W/STEPS | 3 | 0 | 1998 | 56.0 |
| | OWP | OPEN WOOD PORCH W/STEPS | 3 | 0 | 1998 | 352.0 |
Sketch
Property Image
Land
| 1 | 13 | SQ (06001-08000) | 0.0000 | 0.00 | 0.00 | 0.00 | 1.00 | $210,000 | $0 |
Roll Value History
| 2026 | N/A | N/A | N/A | N/A | N/A |
| 2025 | $269,720 | $210,000 | $0 | $479,720 | $479,720 |
| 2024 | $272,960 | $200,000 | $0 | $472,960 | $472,960 |
| 2023 | $276,200 | $190,000 | $0 | $466,200 | $466,200 |
| 2022 | $247,174 | $180,000 | $0 | $427,174 | $427,174 |
| 2021 | $217,470 | $120,000 | $0 | $337,470 | $337,470 |
| 2020 | $211,999 | $100,000 | $0 | $311,999 | $311,999 |
| 2019 | $155,979 | $150,000 | $0 | $305,979 | $305,979 |
| 2018 | $156,428 | $130,000 | $0 | $286,428 | $286,428 |
| 2017 | $142,130 | $110,000 | $0 | $252,130 | $252,130 |
| 2016 | $143,862 | $90,000 | $0 | $233,862 | $233,862 |
| 2015 | $145,595 | $70,000 | $0 | $215,595 | $215,595 |
| 2014 | $147,329 | $55,000 | $0 | $202,329 | $202,329 |
| 2013 | $149,062 | $55,000 | $0 | $204,062 | $204,062 |
| 2012 | $150,796 | $50,000 | $0 | $200,796 | $200,796 |
| 2011 | $148,591 | $50,000 | $0 | $198,591 | $198,591 |
| 2010 | $155,525 | $50,000 | $0 | $205,525 | $205,525 |
| 2009 | $162,234 | $75,000 | $0 | $237,234 | $237,234 |
| 2008 | $164,249 | $100,000 | $0 | $264,249 | $264,249 |
| 2007 | $166,278 | $100,000 | $0 | $266,278 | $266,278 |
Deed and Sales History
| 1 | 02/24/2022 | QCD | Quit Claim Deed | LEHMAN, ANTHONY | LEHMAN, ANTHONY | | | $0.00 | 52107 | 4540570 |
| 2 | 03/08/2022 | DECREE | Divorce Decree/Legal Separation | LEHMAN, ANTHONY | LEHMAN, ANTHONY | | | | 89274 | |
| 3 | 08/24/2017 | WD | Warranty Deed | MIRANDA, BRIAN R | LEHMAN, ANTHONY | | | $295,000.00 | 30869 | 4429189 |
| 4 | 04/11/2014 | WD | Warranty Deed | KAYONA, RAYMOND F | MIRANDA, BRIAN R | | | $215,000.00 | 14908 | 4357925 |
| 5 | 12/13/2004 | ESTSEPPROP | Establish Separate Property | KAYONA, RAYMOND F | KAYONA, RAYMOND F | | | $0.00 | 46058 | 4122048 |
| 6 | 12/21/2004 | WD | Warranty Deed | ATKINS, TERRY E & CATHY J | KAYONA, RAYMOND F | | | $201,900.00 | 46059 | 4122049 |
| 7 | 01/01/1998 | WD | Warranty Deed | ATKINS, TERRY E | ATKINS, TERRY E & CATHY J | | | $134,900.00 | 80328 | 98001705 |
| 8 | 09/01/1997 | WD | Warranty Deed | FORESIGHT, INVESTMENTS I | JONES, BRUCE M | | | $41,500.00 | 73493 | 97016428 |
| 9 | 01/01/1900 | OTHER | Other - Misc. Documents | Unknown | FORESIGHT, INVESTMENTS I | | | $0.00 | 66678 | 0 |
Payout Agreement
| No payout information available.. |