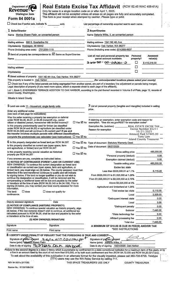
Property
Account |
| Property ID: | 7593 | Abbreviated Legal Description: | 60 - E/2 SE SE SW TGW & SUB EZ |
| Geographic ID: | R13111-033-2480 | Agent Code: | |
| Type: | Real | | |
| Tax Area: | 312 - APPRAISER-Cpvl Schl Dist, outside Cpvl, improved, greater than 1 acre | Land Use Code | 11 |
| Open Space: | N | DFL | N |
| Historic Property: | N | Remodel Property: | N |
| Multi-Family Redevelopment: | N | | |
| Township: | 31 | Section: | 11 |
| Range: | R1 |
Location |
| Address: | 674 HAZZLE CT COUPEVILLE, WA 98239 | Mapsco: | |
| Neighborhood: | Cycle 2 | Map ID: | 50 |
| Neighborhood CD: | 2 |
Owner |
| Name: | BOMMERSBACH, MARJORIE (MIMI) L | Owner ID: | 111658 |
| Mailing Address: | 674 HAZZLE CT COUPEVILLE, WA 98239 | % Ownership: | 100.0000000000% |
| | | Exemptions: | |
Taxes and Assessment Details
Values
| (+) Improvement Homesite Value: | + | $0 | |
| (+) Improvement Non-Homesite Value: | + | $190,760 | |
| (+) Land Homesite Value: | + | $0 | |
| (+) Land Non-Homesite Value: | + | $340,000 | |
| (+) Curr Use (HS): | + | $0 | $0 |
| (+) Curr Use (NHS): | + | $0 | $0 |
| | | -------------------------- | |
| (=) Market Value: | = | $530,760 | |
| (–) Productivity Loss: | – | $0 | |
| | | -------------------------- | |
| (=) Subtotal: | = | $530,760 | |
| (+) Senior Appraised Value: | + | $0 | |
| (+) Non-Senior Appraised Value: | + | $530,760 | |
| | | -------------------------- | |
| (=) Total Appraised Value: | = | $530,760 | |
| (–) Senior Exemption Loss: | – | $0 | |
| (–) Exemption Loss: | – | $0 | |
| | | -------------------------- | |
| (=) Taxable Value: | = | $530,760 | |
Taxing Jurisdiction
| Owner: | BOMMERSBACH, MARJORIE (MIMI) L | | |
| % Ownership: | 100.0000000000% | | |
| Total Value: | $530,760 | | |
| Tax Area: | 312 - APPRAISER-Cpvl Schl Dist, outside Cpvl, improved, greater than 1 acre |
| CF | Conservation Futures | 0.0316035091 | $530,760 | $530,760 | $16.77 | | |
| CEM2 | Cemetery #2 | 0.0095056933 | $530,760 | $530,760 | $5.05 | | |
| FIRE5 | Fire & Rescue Dist #5 C Whidbey GEN | 1.2008080668 | $530,760 | $530,760 | $637.34 | | |
| FIRE5BOND | Fire & Rescue Dist #5 C Whidbey BOND | 0.1400090713 | $530,760 | $530,760 | $74.31 | | |
| HOBOND | Hospital BOND | 0.1910887512 | $530,760 | $530,760 | $101.42 | | |
| HOGEN | Hospital GEN | 0.3902502903 | $530,760 | $530,760 | $207.13 | | |
| CE | County Current Expense | 0.3708482477 | $530,760 | $530,760 | $196.83 | | |
| CR | County Roads | 0.4584763726 | $530,760 | $530,760 | $243.34 | | |
| ISLANDEMS | Hospital GEN (EMS) | 0.5000000000 | $530,760 | $530,760 | $265.38 | | |
| LIB | Library Sno-Isle GEN | 0.3153421757 | $530,760 | $530,760 | $167.37 | | |
| LIBCAP | Library Sno-Isle BOND (Cap Fac Imp Area) | 0.0543427938 | $530,760 | $530,760 | $28.84 | | |
| POCOUP | Port of Coupeville GEN | 0.1093371703 | $530,760 | $530,760 | $58.03 | | |
| POCOUPIDD | Port of Coupeville IDD | 0.3409740022 | $530,760 | $530,760 | $180.98 | | |
| COUPSDTECH | School 204 CP (TECH) | 0.7545480007 | $530,760 | $530,760 | $400.48 | | |
| SCH204MO | School 204 Enrichment | 0.6716186034 | $530,760 | $530,760 | $356.47 | | |
| ST | State School | 1.3035497053 | $530,760 | $530,760 | $691.87 | | |
| ST2 | State School Part 2 | 0.8169543533 | $530,760 | $530,760 | $433.61 | | |
| | Total Tax Rate: | 7.6592568070 | | | | | |
| | | | | Taxes w/Current Exemptions: | $4,065.22 | | |
| | | | | Taxes w/o Exemptions: | $4,065.22 | | |
Improvement / Building
| Improvement #1: | RESIDENTIAL | State Code: | Y | 1498.0 sqft | Value: | $190,760 |
| Bathrooms: | 1 | Bedrooms: | 1 | | Ceiling: | TONGUE & GROOVE | Exterior Wall/Cover: | PLY/HARDBOARD T-111 | | Floor Covering: | CARPET/VINYL 60-40 | Floor Structure: | WOOD W/SUBFLOOR | | Foundation: | CONCRETE | Heating: | BASEBOARD ELECTRIC | | Interior Finish: | DRYWALL PAINT | Plumbing Fixture Cnt: | 6 | | Roof Slope: | 12" IN 12" | Roof Structure/Cover: | BEAM ALUMINUM HEAVY |
|
| | Type | Description | Class CD | Sub Class CD | Year Built | Area |
| | BAS | BASE/MAIN FLOOR | 3 | 0 | 1978 | 1008.0 |
| | OWP | OPEN WOOD PORCH W/STEPS | 3 | 0 | 1978 | 426.0 |
| | LOF | LOFT | 3 | 0 | 1978 | 490.0 |
| | DGR | DETACHED GARAGE | 3 | 0 | 1978 | 483.0 |
| | oCAR | CARPORT | 3 | 0 | 1978 | 861.0 |
| | UTY | STORAGE/UTILITY | 3 | 0 | 1978 | 12.5 |
Sketch
| No sketches available for this property. |
Property Image
Land
| 1 | HS | HOMESITE | 1.0000 | 43560.00 | 0.00 | 0.00 | 1.00 | $220,000 | $0 |
| 2 | 91 | UNDEVELOPED LAND-METES AND BOUNDS | 4.0000 | 174240.00 | 0.00 | 0.00 | 1.00 | $120,000 | $0 |
Roll Value History
| 2026 | N/A | N/A | N/A | N/A | N/A |
| 2025 | $190,760 | $340,000 | $0 | $530,760 | $530,760 |
| 2024 | $173,945 | $300,000 | $0 | $473,945 | $473,945 |
| 2023 | $176,571 | $280,000 | $0 | $456,571 | $456,571 |
| 2022 | $162,267 | $260,000 | $0 | $422,267 | $422,267 |
| 2021 | $143,165 | $170,000 | $0 | $313,165 | $313,165 |
| 2020 | $140,172 | $160,000 | $0 | $300,172 | $300,172 |
| 2019 | $102,232 | $230,000 | $0 | $332,232 | $332,232 |
| 2018 | $88,439 | $200,000 | $0 | $288,439 | $288,439 |
| 2017 | $89,050 | $200,000 | $0 | $289,050 | $289,050 |
| 2016 | $90,313 | $150,000 | $0 | $240,313 | $240,313 |
| 2015 | $91,576 | $125,000 | $0 | $216,576 | $216,576 |
| 2014 | $92,841 | $125,000 | $0 | $217,841 | $217,841 |
| 2013 | $94,104 | $121,500 | $0 | $215,604 | $215,604 |
| 2012 | $95,368 | $121,500 | $0 | $216,868 | $216,868 |
| 2011 | $96,632 | $135,000 | $0 | $231,632 | $231,632 |
| 2010 | $103,586 | $135,000 | $0 | $238,586 | $238,586 |
| 2009 | $107,842 | $150,000 | $0 | $257,842 | $257,842 |
| 2008 | $109,305 | $150,000 | $0 | $259,305 | $259,305 |
| 2007 | $110,767 | $133,250 | $0 | $244,017 | $244,017 |
Deed and Sales History
| 1 | 07/11/2006 | WD | Warranty Deed | BOMMERSBACH, MARCUS J | BOMMERSBACH, MARJORIE (MIMI) L | | | $0.00 | 63101 | 4176238 |
| 2 | 01/01/1900 | OTHER | Other - Misc. Documents | Unknown | BOMMERSBACH, MARCUS J | | | $0.00 | 0 | 0 |
Payout Agreement
| No payout information available.. |