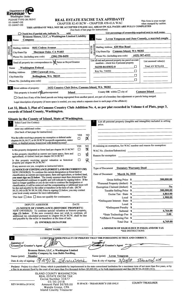
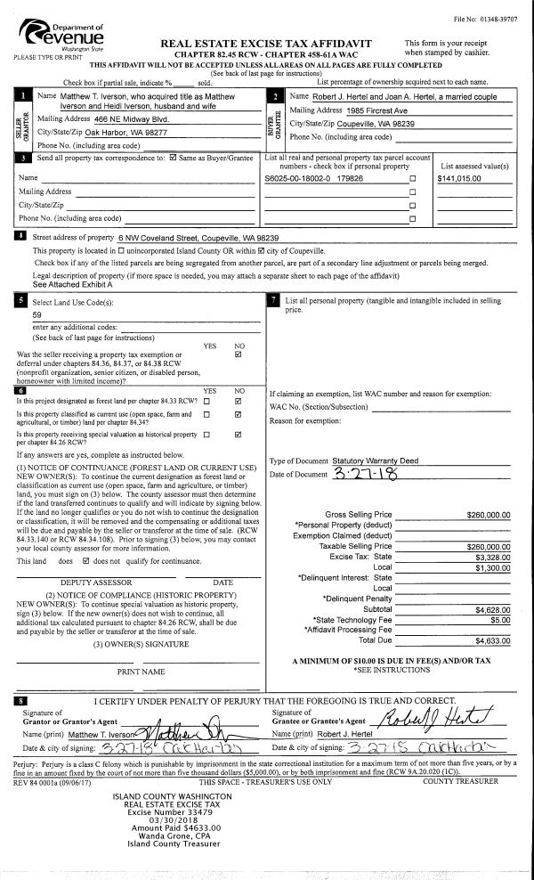
Property
Account |
| Property ID: | 759316 | Abbreviated Legal Description: | SHANNON FOREST #3 LOT 100 |
| Geographic ID: | S8152-03-00100-0 | Agent Code: | |
| Type: | Real | | |
| Tax Area: | 100 - APPRAISER-OH Schl Dist, in OH | Land Use Code | 11 |
| Open Space: | N | DFL | N |
| Historic Property: | N | Remodel Property: | N |
| Multi-Family Redevelopment: | N | | |
| Township: | | Section: | |
| Range: | |
Location |
| Address: | 1752 SW 7TH AVE OAK HARBOR, WA 98277 | Mapsco: | |
| Neighborhood: | Cycle 1 | Map ID: | 92 |
| Neighborhood CD: | 1 |
Owner |
| Name: | ALLEN, ALISON | Owner ID: | 292234 |
| Mailing Address: | ADAM ALLEN 1751 SW 7TH AVE OAK HARBOR, WA 98277 | % Ownership: | 100.0000000000% |
| | | Exemptions: | |
Taxes and Assessment Details
Values
| (+) Improvement Homesite Value: | + | $0 | |
| (+) Improvement Non-Homesite Value: | + | $301,056 | |
| (+) Land Homesite Value: | + | $0 | |
| (+) Land Non-Homesite Value: | + | $210,000 | |
| (+) Curr Use (HS): | + | $0 | $0 |
| (+) Curr Use (NHS): | + | $0 | $0 |
| | | -------------------------- | |
| (=) Market Value: | = | $511,056 | |
| (–) Productivity Loss: | – | $0 | |
| | | -------------------------- | |
| (=) Subtotal: | = | $511,056 | |
| (+) Senior Appraised Value: | + | $0 | |
| (+) Non-Senior Appraised Value: | + | $511,056 | |
| | | -------------------------- | |
| (=) Total Appraised Value: | = | $511,056 | |
| (–) Senior Exemption Loss: | – | $0 | |
| (–) Exemption Loss: | – | $0 | |
| | | -------------------------- | |
| (=) Taxable Value: | = | $511,056 | |
Taxing Jurisdiction
| Owner: | ALLEN, ALISON | | |
| % Ownership: | 100.0000000000% | | |
| Total Value: | $511,056 | | |
| Tax Area: | 100 - APPRAISER-OH Schl Dist, in OH |
| CF | Conservation Futures | 0.0316035091 | $511,056 | $511,056 | $16.15 | | |
| CEM1 | Cemetery #1 | 0.0040320932 | $511,056 | $511,056 | $2.06 | | |
| COH | City of Oak Harbor | 2.3001546061 | $511,056 | $511,056 | $1,175.51 | | |
| OAKBOND | City of Oak Harbor BOND | 0.1926904192 | $511,056 | $511,056 | $98.48 | | |
| HOBOND | Hospital BOND | 0.1910887512 | $511,056 | $511,056 | $97.66 | | |
| HOGEN | Hospital GEN | 0.3902502903 | $511,056 | $511,056 | $199.44 | | |
| CE | County Current Expense | 0.3708482477 | $511,056 | $511,056 | $189.52 | | |
| ISLANDEMS | Hospital GEN (EMS) | 0.5000000000 | $511,056 | $511,056 | $255.53 | | |
| LIB | Library Sno-Isle GEN | 0.3153421757 | $511,056 | $511,056 | $161.16 | | |
| NWHIDPRMT | P & R N Whidbey GEN | 0.2004466701 | $511,056 | $511,056 | $102.44 | | |
| SCH201MO | School 201 Enrichment | 1.8559231640 | $511,056 | $511,056 | $948.48 | | |
| ST | State School | 1.3035497053 | $511,056 | $511,056 | $666.19 | | |
| ST2 | State School Part 2 | 0.8169543533 | $511,056 | $511,056 | $417.51 | | |
| | Total Tax Rate: | 8.4728839852 | | | | | |
| | | | | Taxes w/Current Exemptions: | $4,330.13 | | |
| | | | | Taxes w/o Exemptions: | $4,330.13 | | |
Improvement / Building
| Improvement #1: | RESIDENTIAL | State Code: | Y | 1772.6 sqft | Value: | $301,056 |
| Bathrooms: | 3 | Bedrooms: | 4 | | Ceiling: | DRYWALL PAINTED | Exterior Wall/Cover: | PLY/HARDBOARD T-111 | | Floor Covering: | CARPET/VINYL 20-80 | Floor Structure: | WOOD W/SUBFLOOR | | Foundation: | CONCRETE | Heating: | FHA GAS | | Interior Finish: | DRYWALL PAINT | Plumbing Fixture Cnt: | 12 | | Roof Slope: | 5" IN 12" | Roof Structure/Cover: | CJ ASPHALT |
|
| | Type | Description | Class CD | Sub Class CD | Year Built | Area |
| | BAS | BASE/MAIN FLOOR | 3 | 0 | 1998 | 1209.1 |
| | DWN | DOWNSTAIRS LIVING AREA | 3 | 0 | 1998 | 563.5 |
| | BIG | BUILT IN GARAGE | 3 | 0 | 1998 | 774.0 |
| | OWP | OPEN WOOD PORCH W/STEPS | 3 | 0 | 1998 | 120.3 |
| | OWP | OPEN WOOD PORCH W/STEPS | 3 | 0 | 1998 | 38.4 |
Sketch
Property Image
Land
| 1 | 14 | SQ (08001-12000) | 0.0000 | 0.00 | 0.00 | 0.00 | 1.00 | $210,000 | $0 |
Roll Value History
| 2026 | N/A | N/A | N/A | N/A | N/A |
| 2025 | $301,056 | $210,000 | $0 | $511,056 | $511,056 |
| 2024 | $304,587 | $200,000 | $0 | $504,587 | $504,587 |
| 2023 | $301,056 | $190,000 | $0 | $491,056 | $491,056 |
| 2022 | $275,811 | $180,000 | $0 | $455,811 | $455,811 |
| 2021 | $242,602 | $120,000 | $0 | $362,602 | $362,602 |
| 2020 | $236,013 | $100,000 | $0 | $336,013 | $336,013 |
| 2019 | $172,930 | $150,000 | $0 | $322,930 | $322,930 |
| 2018 | $173,414 | $130,000 | $0 | $303,414 | $303,414 |
| 2017 | $153,456 | $110,000 | $0 | $263,456 | $263,456 |
| 2016 | $155,326 | $90,000 | $0 | $245,326 | $245,326 |
| 2015 | $157,198 | $70,000 | $0 | $227,198 | $227,198 |
| 2014 | $159,070 | $55,000 | $0 | $214,070 | $214,070 |
| 2013 | $160,941 | $55,000 | $0 | $215,941 | $215,941 |
| 2012 | $162,813 | $50,000 | $0 | $212,813 | $212,813 |
| 2011 | $140,560 | $50,000 | $0 | $190,560 | $190,560 |
| 2010 | $144,758 | $50,000 | $0 | $194,758 | $194,758 |
| 2009 | $151,015 | $75,000 | $0 | $226,015 | $226,015 |
| 2008 | $152,858 | $100,000 | $0 | $252,858 | $252,858 |
| 2007 | $154,716 | $100,000 | $0 | $254,716 | $254,716 |
Deed and Sales History
| 1 | 10/14/2019 | WD | Warranty Deed | TOWNE, BAILEY ALAN | ALLEN, ALISON | | | $363,500.00 | 40713 | 4473498 |
| 2 | 02/06/2018 | QCD | Quit Claim Deed | TOWNE, BAILEY ALAN | TOWNE, BAILEY ALAN | | | $0.00 | 32943 | 4439222 |
| 3 | 02/07/2018 | WD | Warranty Deed | BEDNAR, CHRISTOPHER J | TOWNE, BAILEY ALAN | | | $319,000.00 | 32942 | 4439221 |
| 4 | 12/09/2002 | WD | Warranty Deed | LEATHERMAN, HAROLD E | BEDNAR, CHRISTOPHER J | | | $179,000.00 | 24998 | 4040500 |
| 5 | 10/21/1998 | WD | Warranty Deed | PAUL BODIN CONST INC, | LEATHERMAN, HAROLD E | | | $138,753.00 | 84313 | 98023572 |
| 6 | 07/02/1998 | WD | Warranty Deed | PAUL, BODIN C | PAUL BODIN CONST INC, | | | $42,500.00 | 82750 | 98014246 |
| 7 | 01/01/1900 | OTHER | Other - Misc. Documents | Unknown | FORESIGHT, INVESTMENTS I | | | $0.00 | 66678 | 0 |
| 8 | 01/01/1900 | OTHER | Other - Misc. Documents | FORESIGHT, INVESTMENTS I | PAUL, BODIN C | | | $0.00 | 82750 | 98014246 |
Payout Agreement
| No payout information available.. |