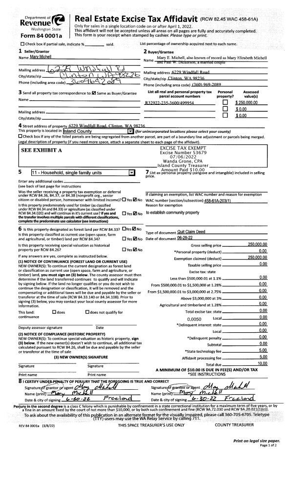
Property
Account |
| Property ID: | 75938 | Abbreviated Legal Description: | 71 - SW NE NW SW EX E30'TO IS CO AF#204441 |
| Geographic ID: | R23111-222-0860 | Agent Code: | |
| Type: | Real | | |
| Tax Area: | 512 - APPRAISER-Stan/Cam Schl Dist, improved, greater than 1 acre | Land Use Code | 11 |
| Open Space: | N | DFL | N |
| Historic Property: | N | Remodel Property: | N |
| Multi-Family Redevelopment: | N | | |
| Township: | 31 | Section: | 11 |
| Range: | R2 |
Location |
| Address: | 638 COMFORT CT CAMANO ISLAND, WA 98282 | Mapsco: | |
| Neighborhood: | Cycle 5 | Map ID: | 469 |
| Neighborhood CD: | 5 |
Owner |
| Name: | CONDON, GARY / MONIQUE | Owner ID: | 57670 |
| Mailing Address: | 638 COMFORT CT CAMANO ISLAND, WA 98282-6559 | % Ownership: | 100.0000000000% |
| | | Exemptions: | |
Taxes and Assessment Details
Values
| (+) Improvement Homesite Value: | + | $0 | |
| (+) Improvement Non-Homesite Value: | + | $335,839 | |
| (+) Land Homesite Value: | + | $0 | |
| (+) Land Non-Homesite Value: | + | $300,000 | |
| (+) Curr Use (HS): | + | $0 | $0 |
| (+) Curr Use (NHS): | + | $0 | $0 |
| | | -------------------------- | |
| (=) Market Value: | = | $635,839 | |
| (–) Productivity Loss: | – | $0 | |
| | | -------------------------- | |
| (=) Subtotal: | = | $635,839 | |
| (+) Senior Appraised Value: | + | $0 | |
| (+) Non-Senior Appraised Value: | + | $635,839 | |
| | | -------------------------- | |
| (=) Total Appraised Value: | = | $635,839 | |
| (–) Senior Exemption Loss: | – | $0 | |
| (–) Exemption Loss: | – | $0 | |
| | | -------------------------- | |
| (=) Taxable Value: | = | $635,839 | |
Taxing Jurisdiction
| Owner: | CONDON, GARY / MONIQUE | | |
| % Ownership: | 100.0000000000% | | |
| Total Value: | $635,839 | | |
| Tax Area: | 512 - APPRAISER-Stan/Cam Schl Dist, improved, greater than 1 acre |
| CF | Conservation Futures | 0.0316035091 | $635,839 | $635,839 | $20.09 | | |
| EMS1 | Fire & Rescue Dist #1 Camano GEN (EMS) | 0.3677864386 | $635,839 | $635,839 | $233.85 | | |
| FIRE1 | Fire & Rescue Dist #1 Camano GEN | 1.2502910536 | $635,839 | $635,839 | $794.98 | | |
| FIRE1BOND | Fire & Rescue Dist #1 Camano BOND | 0.1570001679 | $635,839 | $635,839 | $99.83 | | |
| CE | County Current Expense | 0.3708482477 | $635,839 | $635,839 | $235.80 | | |
| CR | County Roads | 0.4584763726 | $635,839 | $635,839 | $291.52 | | |
| LCIB | Library Sno-Isle BOND (Camano Island) | 0.0396325772 | $635,839 | $635,839 | $25.20 | | |
| LIB | Library Sno-Isle GEN | 0.3153421757 | $635,839 | $635,839 | $200.51 | | |
| SCH205_401 | School 205-401 Enrichment | 1.2698420524 | $635,839 | $635,839 | $807.42 | | |
| SCH205BOND | School 205-401 BOND | 0.9396497583 | $635,839 | $635,839 | $597.47 | | |
| ST | State School | 1.3035497053 | $635,839 | $635,839 | $828.85 | | |
| ST2 | State School Part 2 | 0.8169543533 | $635,839 | $635,839 | $519.45 | | |
| | Total Tax Rate: | 7.3209764117 | | | | | |
| | | | | Taxes w/Current Exemptions: | $4,654.97 | | |
| | | | | Taxes w/o Exemptions: | $4,654.97 | | |
Improvement / Building
| Improvement #1: | RESIDENTIAL | State Code: | Y | 1924.3 sqft | Value: | $335,839 |
| Bathrooms: | 3 | Bedrooms: | 3 | | Ceiling: | DRYWALL PAINTED | Exterior Wall/Cover: | WOOD SIDING | | Floor Covering: | CARPET/VINYL 80-20 | Floor Structure: | WOOD W/SUBFLOOR | | Foundation: | CONCRETE | Heating: | WALL HEAT ELECTRIC | | Interior Finish: | DRYWALL PAINT | Plumbing Fixture Cnt: | 14 | | Roof Slope: | 5" IN 12" | Roof Structure/Cover: | CJ ASPHALT |
|
| | Type | Description | Class CD | Sub Class CD | Year Built | Area |
| | BAS | BASE/MAIN FLOOR | 3 | 0 | 1992 | 1924.3 |
| | AGR | ATTACHED GARAGE | 3 | 0 | 1992 | 420.0 |
| | OWP | OPEN WOOD PORCH W/STEPS | 3 | 0 | 1992 | 394.0 |
| | OWC | OPEN WOOD PORCH W/STEPS/ROOF/C | 3 | 0 | 1992 | 322.3 |
| | CPD | OPEN CARPORT DIRT FLOOR | 3 | 0 | 1992 | 224.0 |
| | oOBD | Out Buildings | 3 | 0 | 1992 | 536.0 |
Sketch
| No sketches available for this property. |
Property Image
Land
| 1 | 18 | AC (02.01-03.00) | 2.2700 | 98881.20 | 0.00 | 0.00 | 1.00 | $300,000 | $0 |
Roll Value History
| 2026 | N/A | N/A | N/A | N/A | N/A |
| 2025 | $335,839 | $300,000 | $0 | $635,839 | $635,839 |
| 2024 | $308,961 | $280,000 | $0 | $588,961 | $588,961 |
| 2023 | $312,569 | $270,000 | $0 | $582,569 | $582,569 |
| 2022 | $286,777 | $260,000 | $0 | $546,777 | $546,777 |
| 2021 | $247,170 | $180,000 | $0 | $427,170 | $427,170 |
| 2020 | $241,043 | $150,000 | $0 | $391,043 | $391,043 |
| 2019 | $178,409 | $200,000 | $0 | $378,409 | $378,409 |
| 2018 | $178,907 | $150,000 | $0 | $328,907 | $328,907 |
| 2017 | $174,266 | $135,000 | $0 | $309,266 | $309,266 |
| 2016 | $176,190 | $140,000 | $0 | $316,190 | $316,190 |
| 2015 | $175,539 | $63,200 | $0 | $238,739 | $238,739 |
| 2014 | $177,473 | $63,200 | $0 | $240,673 | $240,673 |
| 2013 | $162,930 | $63,200 | $0 | $226,130 | $226,130 |
| 2012 | $165,869 | $63,200 | $0 | $229,069 | $229,069 |
| 2011 | $140,460 | $79,000 | $0 | $219,460 | $219,460 |
| 2010 | $145,004 | $79,000 | $0 | $224,004 | $224,004 |
| 2009 | $142,314 | $130,000 | $0 | $272,314 | $272,314 |
| 2008 | $144,255 | $125,235 | $0 | $269,490 | $269,490 |
| 2007 | $146,277 | $125,235 | $0 | $271,512 | $271,512 |
Deed and Sales History
| 1 | 10/01/1995 | OTHER | Other - Misc. Documents | CONDON, GARY/MONIQUE | CONDON, GARY/MONIQUE | | | $0.00 | 66682 | 204441 |
| 2 | 08/01/1991 | WD | Warranty Deed | ARRINGTON, DALE | CONDON, GARY/MONIQUE | | | $31,500.00 | 13137 | 91013347 |
| 3 | 03/01/1990 | WD | Warranty Deed | PARKINSON, DAVE | ARRINGTON, DALE | | | $16,500.00 | 1421 | 90004660 |
| 4 | 04/01/1986 | QCD | Quit Claim Deed | BOWERS, FRED T | PARKINSON, DAVE | | | $0.00 | 61033 | 86004826 |
| 5 | 01/01/1900 | OTHER | Other - Misc. Documents | Unknown | BOWERS, FRED T | | | $0.00 | 0 | 0 |
Payout Agreement
| No payout information available.. |