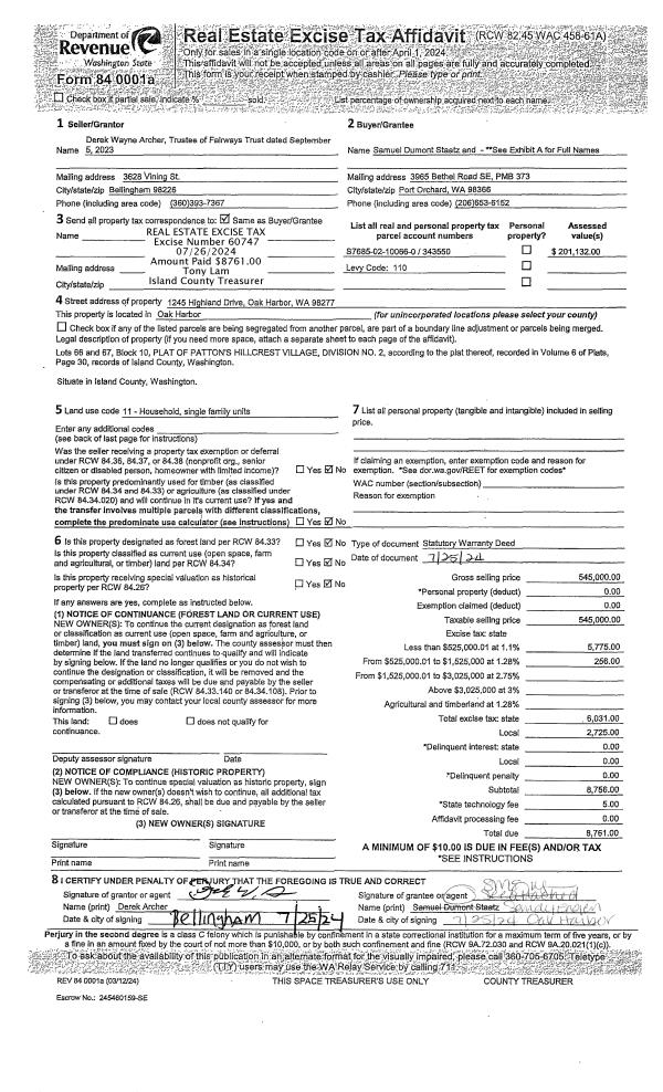
Property
Account |
| Property ID: | 759389 | Abbreviated Legal Description: | SHANNON FOREST #3 LOT 107 |
| Geographic ID: | S8152-03-00107-0 | Agent Code: | |
| Type: | Real | | |
| Tax Area: | 100 - APPRAISER-OH Schl Dist, in OH | Land Use Code | 11 |
| Open Space: | N | DFL | N |
| Historic Property: | N | Remodel Property: | N |
| Multi-Family Redevelopment: | N | | |
| Township: | | Section: | |
| Range: | |
Location |
| Address: | 749 SW REGENCY DR OAK HARBOR, WA 98277 | Mapsco: | |
| Neighborhood: | Cycle 1 | Map ID: | 92 |
| Neighborhood CD: | 1 |
Owner |
| Name: | GOULD, RYAN K | Owner ID: | 109849 |
| Mailing Address: | 5206 BEACH DR SW SEATTLE, WA 98136-1042 | % Ownership: | 100.0000000000% |
| | | Exemptions: | |
Taxes and Assessment Details
Values
| (+) Improvement Homesite Value: | + | $0 | |
| (+) Improvement Non-Homesite Value: | + | $242,231 | |
| (+) Land Homesite Value: | + | $0 | |
| (+) Land Non-Homesite Value: | + | $210,000 | |
| (+) Curr Use (HS): | + | $0 | $0 |
| (+) Curr Use (NHS): | + | $0 | $0 |
| | | -------------------------- | |
| (=) Market Value: | = | $452,231 | |
| (–) Productivity Loss: | – | $0 | |
| | | -------------------------- | |
| (=) Subtotal: | = | $452,231 | |
| (+) Senior Appraised Value: | + | $0 | |
| (+) Non-Senior Appraised Value: | + | $452,231 | |
| | | -------------------------- | |
| (=) Total Appraised Value: | = | $452,231 | |
| (–) Senior Exemption Loss: | – | $0 | |
| (–) Exemption Loss: | – | $0 | |
| | | -------------------------- | |
| (=) Taxable Value: | = | $452,231 | |
Taxing Jurisdiction
| Owner: | GOULD, RYAN K | | |
| % Ownership: | 100.0000000000% | | |
| Total Value: | $452,231 | | |
| Tax Area: | 100 - APPRAISER-OH Schl Dist, in OH |
| CF | Conservation Futures | 0.0316035091 | $452,231 | $452,231 | $14.29 | | |
| CEM1 | Cemetery #1 | 0.0040320932 | $452,231 | $452,231 | $1.82 | | |
| COH | City of Oak Harbor | 2.3001546061 | $452,231 | $452,231 | $1,040.20 | | |
| OAKBOND | City of Oak Harbor BOND | 0.1926904192 | $452,231 | $452,231 | $87.14 | | |
| HOBOND | Hospital BOND | 0.1910887512 | $452,231 | $452,231 | $86.42 | | |
| HOGEN | Hospital GEN | 0.3902502903 | $452,231 | $452,231 | $176.48 | | |
| CE | County Current Expense | 0.3708482477 | $452,231 | $452,231 | $167.71 | | |
| ISLANDEMS | Hospital GEN (EMS) | 0.5000000000 | $452,231 | $452,231 | $226.12 | | |
| LIB | Library Sno-Isle GEN | 0.3153421757 | $452,231 | $452,231 | $142.61 | | |
| NWHIDPRMT | P & R N Whidbey GEN | 0.2004466701 | $452,231 | $452,231 | $90.65 | | |
| SCH201MO | School 201 Enrichment | 1.8559231640 | $452,231 | $452,231 | $839.31 | | |
| ST | State School | 1.3035497053 | $452,231 | $452,231 | $589.51 | | |
| ST2 | State School Part 2 | 0.8169543533 | $452,231 | $452,231 | $369.45 | | |
| | Total Tax Rate: | 8.4728839852 | | | | | |
| | | | | Taxes w/Current Exemptions: | $3,831.71 | | |
| | | | | Taxes w/o Exemptions: | $3,831.71 | | |
Improvement / Building
| Improvement #1: | RESIDENTIAL | State Code: | Y | 1340.5 sqft | Value: | $242,231 |
| Bathrooms: | 2 | Bedrooms: | 3 | | Ceiling: | DRYWALL PAINTED | Exterior Wall/Cover: | CEMENT FIBER | | Floor Covering: | CARPET/VINYL 80-20 | Floor Structure: | WOOD W/SUBFLOOR | | Foundation: | CONCRETE | Heating: | FHA GAS | | Interior Finish: | DRYWALL PAINT | Plumbing Fixture Cnt: | 9 | | Roof Slope: | 6" IN 12" | Roof Structure/Cover: | CJ ASPHALT |
|
| | Type | Description | Class CD | Sub Class CD | Year Built | Area |
| | BAS | BASE/MAIN FLOOR | 3 | 0 | 1998 | 1340.5 |
| | AGR | ATTACHED GARAGE | 3 | 0 | 1998 | 473.0 |
| | OWC | OPEN WOOD PORCH W/STEPS/ROOF/C | 3 | 0 | 1998 | 99.5 |
Sketch
Property Image
Land
| 1 | 14 | SQ (08001-12000) | 0.0000 | 0.00 | 0.00 | 0.00 | 1.00 | $210,000 | $0 |
Roll Value History
| 2026 | N/A | N/A | N/A | N/A | N/A |
| 2025 | $242,231 | $210,000 | $0 | $452,231 | $452,231 |
| 2024 | $245,212 | $200,000 | $0 | $445,212 | $445,212 |
| 2023 | $242,231 | $190,000 | $0 | $432,231 | $432,231 |
| 2022 | $222,034 | $180,000 | $0 | $402,034 | $402,034 |
| 2021 | $195,428 | $120,000 | $0 | $315,428 | $315,428 |
| 2020 | $190,238 | $100,000 | $0 | $290,238 | $290,238 |
| 2019 | $136,645 | $150,000 | $0 | $286,645 | $286,645 |
| 2018 | $137,046 | $130,000 | $0 | $267,046 | $267,046 |
| 2017 | $128,373 | $110,000 | $0 | $238,373 | $238,373 |
| 2016 | $129,939 | $90,000 | $0 | $219,939 | $219,939 |
| 2015 | $131,503 | $70,000 | $0 | $201,503 | $201,503 |
| 2014 | $133,069 | $55,000 | $0 | $188,069 | $188,069 |
| 2013 | $134,636 | $55,000 | $0 | $189,636 | $189,636 |
| 2012 | $136,200 | $50,000 | $0 | $186,200 | $186,200 |
| 2011 | $136,722 | $50,000 | $0 | $186,722 | $186,722 |
| 2010 | $141,093 | $50,000 | $0 | $191,093 | $191,093 |
| 2009 | $147,175 | $75,000 | $0 | $222,175 | $222,175 |
| 2008 | $148,938 | $100,000 | $0 | $248,938 | $248,938 |
| 2007 | $150,713 | $100,000 | $0 | $250,713 | $250,713 |
Deed and Sales History
| 1 | 07/11/2008 | WD | Warranty Deed | ZARKER, MICHAEL R | GOULD, RYAN K | | | $241,000.00 | 81872 | 4233045 |
| 2 | 08/03/2005 | WD | Warranty Deed | HARMONYH PROPERTY MANAGEMENT L | ZARKER, MICHAEL R | | | $239,950.00 | 53908 | 4143728 |
| 3 | 06/29/2005 | 5 | DNU - Marriage License/Name Change | TURNER, REX E | HARMONYH PROPERTY MANAGEMENT L | | | $0.00 | 53336 | 4140452 |
| 4 | 10/30/2002 | WD | Warranty Deed | HOUSLEY, KEVIN D | TURNER, REX E | | | $158,000.00 | 24411 | 4036321 |
| 5 | 06/30/1998 | WD | Warranty Deed | HOUSLEY, KEVIN D | HOUSLEY, KEVIN D | | | $138,000.00 | 82609 | 98013479 |
| 6 | 10/01/1997 | WD | Warranty Deed | FORESIGHT, INVESTMENTS I | SELLGREN, & C | | | $45,500.00 | 73535 | 97016621 |
| 7 | 01/01/1900 | OTHER | Other - Misc. Documents | Unknown | FORESIGHT, INVESTMENTS I | | | $0.00 | 66678 | 0 |
| 8 | 01/01/1900 | OTHER | Other - Misc. Documents | SELLGREN, & C | HOUSLEY, KEVIN D | | | $0.00 | 82609 | 98013479 |
Payout Agreement
| No payout information available.. |