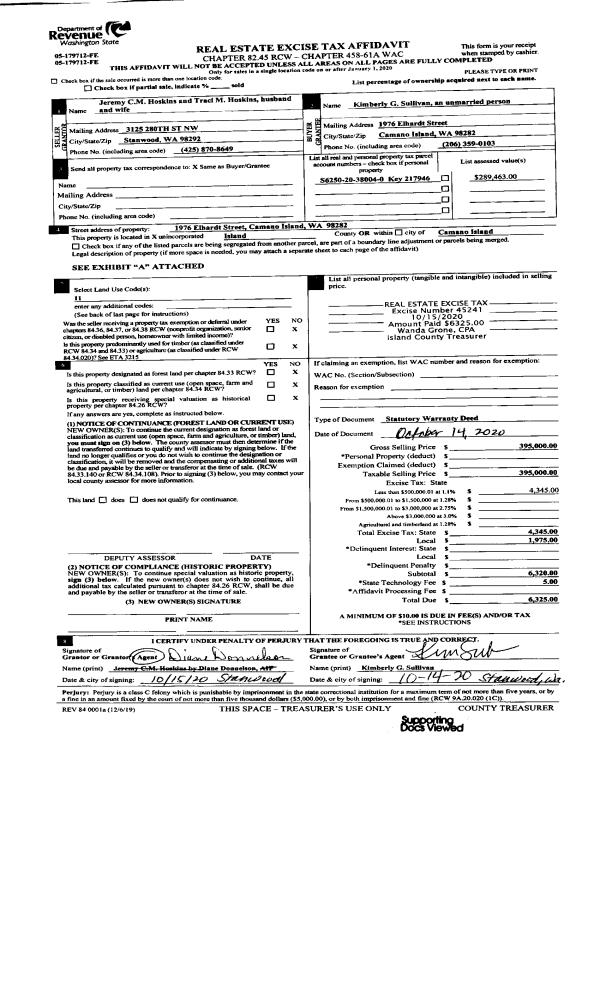
Property
Account |
| Property ID: | 75956 | Abbreviated Legal Description: | 90 - SE NW NE SE EX W30'FOR RD |
| Geographic ID: | R23111-222-4550 | Agent Code: | |
| Type: | Real | | |
| Tax Area: | 512 - APPRAISER-Stan/Cam Schl Dist, improved, greater than 1 acre | Land Use Code | 11 |
| Open Space: | N | DFL | N |
| Historic Property: | N | Remodel Property: | N |
| Multi-Family Redevelopment: | N | | |
| Township: | 31 | Section: | 11 |
| Range: | R2 |
Location |
| Address: | 633 LEWIS LN CAMANO ISLAND, WA 98282 | Mapsco: | |
| Neighborhood: | Cycle 5 | Map ID: | 470 |
| Neighborhood CD: | 5 |
Owner |
| Name: | CALLAGHAN III, THOMAS R | Owner ID: | 273825 |
| Mailing Address: | TWILA D CALLAGHAN 370 N EAST CAMANO DR #235 CAMANO ISLAND, WA 98282 | % Ownership: | 100.0000000000% |
| | | Exemptions: | |
Taxes and Assessment Details
Values
| (+) Improvement Homesite Value: | + | $0 | |
| (+) Improvement Non-Homesite Value: | + | $508,547 | |
| (+) Land Homesite Value: | + | $0 | |
| (+) Land Non-Homesite Value: | + | $300,000 | |
| (+) Curr Use (HS): | + | $0 | $0 |
| (+) Curr Use (NHS): | + | $0 | $0 |
| | | -------------------------- | |
| (=) Market Value: | = | $808,547 | |
| (–) Productivity Loss: | – | $0 | |
| | | -------------------------- | |
| (=) Subtotal: | = | $808,547 | |
| (+) Senior Appraised Value: | + | $0 | |
| (+) Non-Senior Appraised Value: | + | $808,547 | |
| | | -------------------------- | |
| (=) Total Appraised Value: | = | $808,547 | |
| (–) Senior Exemption Loss: | – | $0 | |
| (–) Exemption Loss: | – | $0 | |
| | | -------------------------- | |
| (=) Taxable Value: | = | $808,547 | |
Taxing Jurisdiction
| Owner: | CALLAGHAN III, THOMAS R | | |
| % Ownership: | 100.0000000000% | | |
| Total Value: | $808,547 | | |
| Tax Area: | 512 - APPRAISER-Stan/Cam Schl Dist, improved, greater than 1 acre |
| CF | Conservation Futures | 0.0316035091 | $808,547 | $808,547 | $25.55 | | |
| EMS1 | Fire & Rescue Dist #1 Camano GEN (EMS) | 0.3677864386 | $808,547 | $808,547 | $297.37 | | |
| FIRE1 | Fire & Rescue Dist #1 Camano GEN | 1.2502910536 | $808,547 | $808,547 | $1,010.92 | | |
| FIRE1BOND | Fire & Rescue Dist #1 Camano BOND | 0.1570001679 | $808,547 | $808,547 | $126.94 | | |
| CE | County Current Expense | 0.3708482477 | $808,547 | $808,547 | $299.85 | | |
| CR | County Roads | 0.4584763726 | $808,547 | $808,547 | $370.70 | | |
| LCIB | Library Sno-Isle BOND (Camano Island) | 0.0396325772 | $808,547 | $808,547 | $32.04 | | |
| LIB | Library Sno-Isle GEN | 0.3153421757 | $808,547 | $808,547 | $254.97 | | |
| SCH205_401 | School 205-401 Enrichment | 1.2698420524 | $808,547 | $808,547 | $1,026.73 | | |
| SCH205BOND | School 205-401 BOND | 0.9396497583 | $808,547 | $808,547 | $759.75 | | |
| ST | State School | 1.3035497053 | $808,547 | $808,547 | $1,053.98 | | |
| ST2 | State School Part 2 | 0.8169543533 | $808,547 | $808,547 | $660.55 | | |
| | Total Tax Rate: | 7.3209764117 | | | | | |
| | | | | Taxes w/Current Exemptions: | $5,919.35 | | |
| | | | | Taxes w/o Exemptions: | $5,919.35 | | |
Improvement / Building
| Improvement #1: | RESIDENTIAL | State Code: | Y | 1968.0 sqft | Value: | $508,547 |
| Bathrooms: | 2 | Bedrooms: | 3 | | Ceiling: | DRYWALL PAINTED | Cooling: | HEAT PUMP/CONV/V | | Exterior Wall/Cover: | CEMENT FIBER | Floor Covering: | HARDWOOD/CARP 20-80 | | Floor Structure: | WOOD W/SUBFLOOR | Foundation: | CONCRETE | | Interior Finish: | DRYWALL PAINT | Plumbing Fixture Cnt: | 11 | | Roof Slope: | 5" IN 12" | Roof Structure/Cover: | CJ ASPHALT |
|
| | Type | Description | Class CD | Sub Class CD | Year Built | Area |
| | BAS | BASE/MAIN FLOOR | 3 | 0 | 2018 | 1968.0 |
| | AGR | ATTACHED GARAGE | 3 | 0 | 2018 | 676.0 |
| | OWC | OPEN WOOD PORCH W/STEPS/ROOF/C | 3 | 0 | 2018 | 172.0 |
| | OP4 | OPEN PORCH W/CEILING-ROOF | 3 | 0 | 2018 | 168.0 |
| | DGR | DETACHED GARAGE | 3 | 0 | 2018 | 1600.0 |
| | ATU | ATTIC UNFINISHED | 3 | 0 | 2018 | 1168.0 |
Sketch
Property Image
Land
| 1 | 18 | AC (02.01-03.00) | 2.2800 | 99316.80 | 0.00 | 0.00 | 1.00 | $300,000 | $0 |
Roll Value History
| 2026 | N/A | N/A | N/A | N/A | N/A |
| 2025 | $508,547 | $300,000 | $0 | $808,547 | $808,547 |
| 2024 | $512,615 | $280,000 | $0 | $792,615 | $792,615 |
| 2023 | $516,683 | $270,000 | $0 | $786,683 | $786,683 |
| 2022 | $472,767 | $260,000 | $0 | $732,767 | $732,767 |
| 2021 | $406,846 | $180,000 | $0 | $586,846 | $586,846 |
| 2020 | $396,016 | $150,000 | $0 | $546,016 | $546,016 |
| 2019 | $306,141 | $200,000 | $0 | $506,141 | $506,141 |
| 2018 | $219,223 | $150,000 | $0 | $369,223 | $369,223 |
| 2017 | $0 | $80,000 | $0 | $80,000 | $80,000 |
| 2016 | $0 | $75,000 | $0 | $75,000 | $75,000 |
| 2015 | $0 | $86,500 | $0 | $86,500 | $86,500 |
| 2014 | $0 | $86,500 | $0 | $86,500 | $86,500 |
| 2013 | $0 | $86,500 | $0 | $86,500 | $86,500 |
| 2012 | $0 | $86,500 | $0 | $86,500 | $86,500 |
| 2011 | $0 | $86,500 | $0 | $86,500 | $86,500 |
| 2010 | $0 | $86,500 | $0 | $86,500 | $86,500 |
| 2009 | $0 | $78,045 | $0 | $78,045 | $78,045 |
| 2008 | $0 | $78,045 | $0 | $78,045 | $78,045 |
| 2007 | $0 | $78,045 | $0 | $78,045 | $78,045 |
Deed and Sales History
| 1 | 02/22/2016 | WD | Warranty Deed | CRIST, LORRAINE E | CALLAGHAN III, THOMAS R | | | $80,000.00 | 23254 | 4394621 |
| 2 | 05/18/2015 | TOD | Transfer On Death Deed | CRIST, RICHARD L | CRIST, LORRAINE E | | | | 86125 | |
| 3 | 01/01/1900 | OTHER | Other - Misc. Documents | Unknown | CRIST, RICHARD L | | | $0.00 | 0 | 0 |
Payout Agreement
| No payout information available.. |